Niinimäentie 232
47400, Kausala, Iitti
2mh, olohuone/avokeittiö, tkh, khh, kphx2, wcx2,s,p
299 000 €
129 m²

Tätä asuntoa myy Sanna Hirvonen, Myyntijohtaja, LKV, KiLAT
Huoneistokeskus Oy | Kouvola

Sijainti
Asuntoesittely
Upea kokonaisuus Kausalan Tillolassa!
Tässä kodissa yhdistyvät tila, mukavuus ja monipuoliset mahdollisuudet! Vuonna 2006 valmistunut talo Kausalan Tillolassa tarjoaa viihtyisää asumista ja runsaasti tilaa niin arkeen kuin harrastuksiinkin.
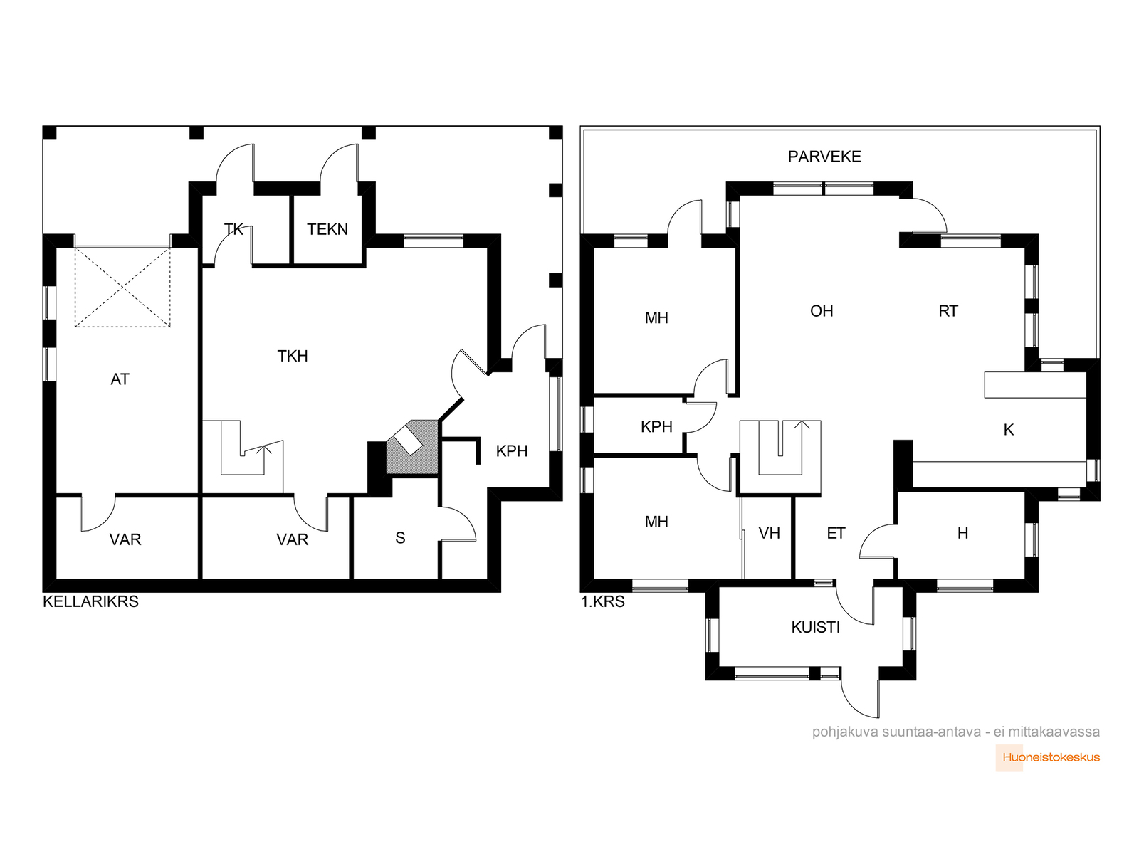
Asuinkerroksessa avarat ja valoisat tilat kutsuvat viettämään aikaa yhdessä. Keittiö ja olohuone muodostavat yhtenäisen kokonaisuuden, josta on käynti taloa kiertävälle parvekkeelle. Keittiön kruununa toimii leivinuuni/takka, joka luo lämpöä ja tunnelmaa kylmiin iltoihin. Kerroksesta löytyy myös kaksi makuuhuonetta, pesuhuone/WC sekä käytännöllinen kodinhoitohuone.
Alakerrassa on tilaa rentoutumiseen ja harrastamiseen. Sieltä löytyy tilava takka-/harrastehuone, pieni erillinen työtila sekä pesuhuone ja sauna, josta on suora käynti lasitetulle terassille. Terassilla on myös kesäkeittiö, joka mahdollistaa ruoanlaiton ja illanvieton ulkona säästä riippumatta. Koko kodissa on miellyttävä sähköinen lattialämmitys.
Pihapiirissä on tunnelmallinen Lapin kota sekä käytännöllinen autotalli/-katosrakennus. Lisäksi kiinteistöön kuuluu iso hallitila, joka on erinomainen tila esimerkiksi autojen kanssa työskenteleville tai muille harrastajille, jotka kaipaavat tilaa ja säilytystilaa.
Tämä koti tarjoaa ainutlaatuisen yhdistelmän viihtyisää asumista ja monipuolisia mahdollisuuksia harrastuksille ja arjelle.
Kiinnostuitko tästä monipuolisesta kokonaisuudesta?
Pohjakuva

Perustiedot
- Sijainti
- Niinimäentie 232, 47400, Kausala, Iitti
- Huoneluku
- 4
- Asuinpinta-ala
- 129 m²
- Muu pinta-ala
- 92 m²
- Kokonaispinta-ala
- 221 m²
- Pinta-alan peruste
- Pinta-ala ei ole tarkistusmitattu ja todellinen pinta-ala voi olla suurempi tai pienempi, kuin ilmoitettu
- Lisätiedot pinta-alasta
- Pinta-alaa ei ole tarkistusmitattu, kerrosala on 157m2
- Kohteen tyyppi
- Omakotitalo
- Kerros
- 2
- Käyttöönottovuosi
- 2006
- Kohde myydään vuokrattuna
- Ei
- Vapautuminen
- 1-2 kk kaupanteosta
Tilat ja materiaalit
- Keittiön kuvaus
- Kodinkoneet uusittu 2006
- Keittiön lattiat
- Laatta
- Keittiön varusteet
- Erillisuuni, jääkaappi, erillinen pakastin, astianpesukone, ja liesituuletin / hormi, kiinteät valaisimet
- Liesi
- Keraaminen liesi ja erillisuuni
- Kylpyhuone
- KPH asuinkerros; suihku/suihkukaappi, peilikaappi, kaapistot, kiinteät valaisimet, sähköinen lattialämmitys KPH alakerta; suihku, wc, poreammevaraus, sähköinen lattialämmitys, kiinteät valaisimet, silikonit vaihdettu 2020
- WC Lukumäärä
- 2
- WC:n lattiat
- Laatta
- WC:n seinät
- Kaakeli
- Makuuhuoneiden lukumäärä
- 2
- Makuuhuoneiden lattiat
- Parketti
- Olohuoneen lattiat
- Parketti
- Kodinhoitohuoneen varusteet
- Pesuallas, kuivausrumpu, lattialämmitys, pesukoneliitäntä, pesukone, lattiakaivo, ja pyykkikaapit
- Kodinhoitohuoneen lattiat
- Laatta
- Kohteen säilytystilat
- Vaatehuone, jäähdytetty kellari ja muu erillinen varasto
- Sauna
- Kyllä
- Saunan kuvaus
- Combikiaus (puu/sähkökiuas)
- Takka
- Varaava takka
Lisätiedot
- Asunnon kunto
- Hyvä
- Parveke
- On parveke
- Terassi
- Kyllä
- Muut tilat
- Lasitettu kesäkeittiö
- Muuta kauppaan kuuluvaa
- Lisätietoja sisältyvistä varusteista: ilmalämpöpumppu, keskuspölynimuri, kiinteät valaisimet, kuivauskaappi/-rumpu, pyykinpesukone, sälekaihtimet/rullaverhot
Taloyhtiö ja kiinteistö
- Tontin pinta-ala
- 1,755 ha
- Tontin omistus
- Oma
- Tontin tyyppi
- Tasamaatontti
- Tontin myyntityyppi
- Koko tontti
- Tontin tiedot
- Iitin kunnalla etuosto-oikeus. Valtatien 12 parantaminen välillä Mankala-Tillola, tienpitäjälle on tarkoitus lunastaa tiesuunnitelmassa tietarkoituksiin osoitetut alueet. Tämän tontin osalta se on noin 7000m2, lisätietoja saa välittäjältä.
- Rakennusmateriaali
- Puu ja harkko muu
- Lämmitysjärjestelmä
- Ilmalämpöpumppu Puu Sähkö Tyyppi: sähköinen lattialämmitys sähköinen lattialämmitys, uuni/takka
- Ilmanvaihto
- Koneellinen ilmanvaihto
- Vesijohto
- Kaivo
- Viemäröinti
- Kunnallinen viemäriverkosto
- Lisätietoja viemäristä
- Liitetty 2018
- Kattotyyppi
- harjakatto
- Katemateriaali
- tiilikate
- Lisätietoa rakennusoikeudesta
- Osittain teollisuusaluetta ja osittain maa- ja metsätalousaluetta, ja aiempia rakennuksia rakentaessa on haettu suunnittelutarveratkaisua.
- Kohteesta on energiatodistus
- Kyllä
- Energialuokka
- D2018
- Lisätietoja energiatodistuksesta
- Energiatodistus voimassa 23.11.2034 asti
- Lisätietoja liikenneyhteyksistä
- Kausalan rautatieasema noin 6km
- Tie perille
- Kyllä
- Palvelut
- Kausalan keskustan palvelut reilu 5km, Kouvolaan noin reilu 16km, Lahteen reilu 47 km
- Koulut
- Kausalan ala-aste noin 5km
- Kaavatilanne
- Yleiskaava
- Kaavoitustiedot
- Iitin kunta.
- Lisätietoa muista rakennuksista
- Autotalli/autokatosrakennus , hallirakennus, puuvaja, Lapin kotakeittiö
