Nikulantie 14
45700, Kuusankoski, Kouvola
5h+k+kph/s+khh+wcx3+th
95 000 €
258 m²

Tätä asuntoa myy Sanna Hirvonen, Myyntijohtaja, LKV, KiLAT
Huoneistokeskus Oy | Kouvola

Sijainti
Asuntoesittely
Monien mahdollisuuksien omakotitalo suositulla Melkunmäellä!
Nyt on tarjolla tilava ja monipuolinen omakotitalo Kuusankosken arvostetulla asuinalueella. Vuonna 1970 rakennettu talo sijaitsee omalla, reilun kokoisella 2178 m2:n tontilla, tarjoten runsaasti tilaa niin asumiseen kuin harrastuksiinkin. Alueelta on hyvät yhteydet niin Kuusankosken keskustaan kuin muihin palveluihin. Luonto on lähellä, tarjoten hyvät mahdollisuudet ulkoiluun ja virkistykseen. Kuntotarkastus tehty 4/2025.
Tilavat ja käytännölliset tilat:
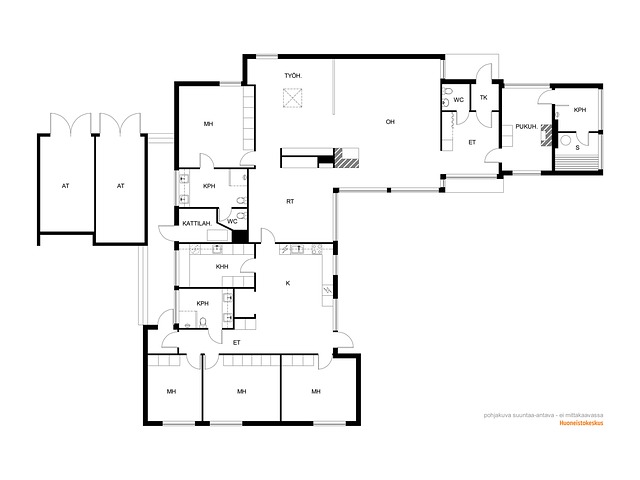
Tämä omakotitalo on kooltaan 5h+k+kph/s+khh+wcx3+th (239 m2 ei tarkistus mitattu). Talon huonejako tarjoaa monia mahdollisuuksia tilankäyttöön. Oletpa sitten lapsiperhe, etätyöntekijä tai tilaa harrastuksille kaipaava, tästä talosta löytyy varmasti sopivat ratkaisut. ja sisältää viisi huonetta, keittiön, kylpyhuoneen/saunan, kodinhoitohuoneen, kolme erillistä WC:tä sekä teknisen tilan sekä autotallin. Huonejärjestely on suunniteltu käytännöllisyyttä ja asumismukavuutta silmällä pitäen.
Ota yhteyttä ja sovi henkilökohtainen esittely. Pääset tutustumaan taloon ja sen mahdollisuuksiin paikan päällä. Älä jätä tätä tilaisuutta käyttämättä!
Pohjakuva

Perustiedot
- Sijainti
- Nikulantie 14, 45700, Kuusankoski, Kouvola
- Huoneluku
- 6
- Asuinpinta-ala
- 258 m²
- Muu pinta-ala
- 22 m²
- Kokonaispinta-ala
- 280 m²
- Lisätiedot pinta-alasta
- Asuintilojen pinta-ala on otettu kaupungin papereista. Pinta-alatietoa ei ole tarkistusmitattu joten se saattaa poiketa olennaisestikin nykystandardein mitattavasta pinta-alasta.
- Kohteen tyyppi
- Omakotitalo
- Kerros
- 1
- Rakennusvuosi
- 1970
- Lisätietoja rakennusvuodesta
- Asunnonmuuttokatselmus tehty: 11.6.1970
- Käyttöönottovuosi
- 1970
- Kohde myydään vuokrattuna
- Ei
- Vapautuminen
- Sopimuksen mukaan
Hinta ja kustannukset
- Myyntihinta
- 95 000 €
- Kiinteistövero (€/vuosi)
- 592,19 €
- Sähköliittymä siirtyy
- Kyllä
- Neliöhinta
- 368,22 € / m²
- Lisätietoja maksusta
- Tietoja kiinteistöverosta: 592,19. Lisätietoja vastikkeista: Ostaja maksaa 3% varainsiirtoveroa kauppahinnasta. Sähkönkulutus ollut vuonna 2024 10868,92 kWh Kaukolämmönkulutus ollut vuonna 2024 26,384 MWh
Tilat ja materiaalit
- Keittiön lattiat
- Parketti
- Keittiön seinät
- Maali
- Keittiön varusteet
- Erillisuuni, liesi, jääkaappi, astianpesukone, erillinen pakastin, ja liesituuletin / hormi
- Liesi
- Induktioliesi ja erillisuuni
- Kylpyhuone
- Hirsiseinät
- Kylpyhuoneen seinät
- Puu
- Kylpyhuoneen lattiat
- Laatta
- Kylpyhuoneen varusteet
- Lattialämmitys, suihkuseinä, ja suihku
- WC Lukumäärä
- 3
- Erillinen WC
- Kahdessa wc:ssä suihku
- WC:n lattiat
- Laatta
- WC:n seinät
- Kaakeli
- Makuuhuoneiden lukumäärä
- 4
- Makuuhuoneiden seinät
- Maali
- Makuuhuoneiden lattiat
- Parketti
- Olohuoneen seinät
- Maali
- Olohuoneen lattiat
- Parketti
- Kodinhoitohuoneen varusteet
- Pesukoneliitäntä
- Kodinhoitohuoneen seinät
- Maali
- Kodinhoitohuoneen lattiat
- Laatta
- Kohteen säilytystilat
- Vaatehuone
- Sauna
- Kyllä
- Kiuas
- Sähkökiuas
- Takka
- Takka
Lisätiedot
- Asunnon kunto
- Tyydyttävä
- Lisätietoja kunnosta
- Asunto alkuperäiskuntoinen
- Muuta kauppaan kuuluvaa
- Lisätietoja sisältyvistä varusteista: ilmalämpöpumppu, matontamppausteline, pyykinkuivausteline
Taloyhtiö ja kiinteistö
- Tontin pinta-ala
- 2 178 m²
- Tontin omistus
- Oma
- Tontin tyyppi
- Rinnetontti
- Tontin myyntityyppi
- Koko tontti
- Rakennusmateriaali
- Tiili, hirsi ja puu
- Lämmitysjärjestelmä
- Ilmalämpöpumppu Kaukolämpö vesikiertoinen patterilämmitys
- Vesijohto
- Kunnallisvesi
- Viemäröinti
- Kunnallinen viemäriverkosto
- Kattotyyppi
- Aumakatto
- Katemateriaali
- Huopa
- Lisätietoa rakennusoikeudesta
- Kouvolan kaupunki PL 85 Torikatu 10 45100 Kouvola puh. 020 61511
- Rakennusoikeus e-luku
- 0.25
- Kohteesta on energiatodistus
- Ei lain edellyttämää energiatodistusta
- Tie perille
- Kyllä
- Palvelut
- Kuusankosken keskustan palvelut n. 1,5 km Kauppakeskus Veturi n. 6 km
- Koulut
- Koulurinteen koulu n. 1,3 km
- Kaavatilanne
- Asemakaava
- Kuntotarkastus tehty
- 14.04.2025
- Rakennusvaihe
- Valmis
- Asbestikartoitus
- Ei
- Muut rakennukset
- Autotalli
- Lisätietoa muista rakennuksista
- Kahden auton talli 36m2.
Tehdyt remontit
Kattomuutos tehty tasakatosta aumakatoksi 1994
v. 2000 patteriputket uusittu
