Nuottakodantie 9
01150, Kalkkiranta, Söderkulla, Sipoo
4-5 mh, oh, tkh, k, khh, psh, pkh, s, 2xwc, kph, 2 auton talli
335 000 €
243 m²

Tätä asuntoa myy Peter Forss, Myyntipäällikkö, LKV
Kaupanvahvistaja
Huoneistokeskus Oy | Porvoo

Sijainti
Asuntoesittely
Vankka ja tilava 4-5 makuuhuoneen ja 243/326 m2 kokoinen talo Kalkkirannassa.
Talo on valmistunut vuonna 2002 ja ollut suhteellisen pienellä käytöllä. Talon kellarikerros on harkkorakenteinen ja yläkerta puurunkoinen, jonka julkisivut ovat tiilivuoratut. Välipohja on ontelolaatta/betonirakenteinen.
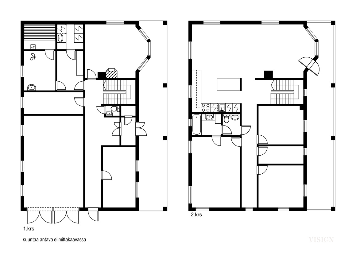
Yläkerroksessa on kolme makuuhuonetta, olohuone, keittiö, kylpyhuone ammeella, wc ja vaatehuone. Suurimmassa makuuhuoneessa on varaus kahdeksi makuuhuoneeksi jakamisesta väliseinän ja yhden oviaukon rakentamalla. Kellarikerroksessa on makuu-/työhuone, saunaosasto, takkahuone, kodinhoitohuone, varasto-/työtiloja ja tilava kahden auton autotalli.
Kauppaan sisältyy laituripaikka veneelle Salparvikenissä jonne talolta noin 500 metrin kävelymatka. Talo on liitetty kunnalliseen vesi- ja viemäriverkostoon.
Tässä paikka sinulle joka kaipaat tilavaa taloa, paljon huoneita sekä tiloja monen muotoiseen harrastamiseen. Kohde soveltuu hyvin myös yrittäjälle koska alakerran työhuoneella on oma sisäänkäynti ja suuressa autotallissa paljon tilaa työskentelyyn ja varastointiin. Kaiken tämän lisäksi pihalle on vielä tarpeen vaatiessa mahdollista rakentaa esimerkiksi 75 m2 kokoinen varasto/autotallirakennus tai pienempi talousrakennus ja vaikka pihasauna.
Kohteesta on hyvät ja nopeat kulkuyhteydet eri puolille Etelä-Suomea ja vieressä olevilla Kalkkirannantien linja-autopysäkeille on säännölliset linja-autovuorot niin julkisilla liikkuminenkin onnistuu helpolla.
Pohjakuva

Perustiedot
- Sijainti
- Nuottakodantie 9, 01150, Kalkkiranta, Söderkulla, Sipoo
- Huoneluku
- 6
- Asuinpinta-ala
- 243 m²
- Muu pinta-ala
- 83 m²
- Kokonaispinta-ala
- 326 m²
- Lisätiedot pinta-alasta
- Rakennuslupa-asiakirjoissa ja rakennusrekisterissä mukaan talon kerrosala 243 m2 ja kokonaisala 326 m2. Asiakirjoissa ei ole ilmoitettu asuinpinta-alaa joten asuinpinta-alana ilmoitettu talon kerrosala.
- Kohteen tyyppi
- Omakotitalo
- Kerros
- 2
- Rakennusvuosi
- 2002
- Käyttöönottovuosi
- 2002
- Kohde myydään vuokrattuna
- Ei
- Vapautuminen
- Heti
Hinta ja kustannukset
- Myyntihinta
- 335 000 €
- Sähköliittymä siirtyy
- Kyllä
- Neliöhinta
- 1 378,60 € / m²
- Lisätietoja maksusta
- Tietoja kiinteistöverosta: 765,23. Lisätietoja vastikkeista: Kokonaissähkönkulutus on ollut 1.11.2022-31.10.2023 välillä 36.247 kWh josta sähköauton lataus on ollut arviolta 6.000 - 8.000 kWh, jäteastian tyhjennys noin 20 e/kk (tyhjennys kahden viikon välein), laituripaikkamaksu 0 - 200 e/v, vesi- ja jätevesimaksu kulutusmittarin mukaan (vesi 1,67 e/m3 ja viemäri 2,38 e/m3 + perusmaksut 277,51 e/v), ilmoitettu kiinteistövero on vuodelta 2023.
Tilat ja materiaalit
- Keittiön varusteet
- Jääkaappi, astianpesukone, erillinen pakastin, ja liesituuletin / hormi, kiinteät valaisimet
- Liesi
- Keraaminen liesi
- Kylpyhuoneen seinät
- Kaakeli
- Kylpyhuoneen lattiat
- Laatta
- Kylpyhuoneen varusteet
- Allaskaappi, suihkukaappi, kylpyamme, peili, lattialämmitys, suihku, ja kiinteät valaisimet
- WC Lukumäärä
- 2
- Sauna
- Kyllä
- Kiuas
- Sähkökiuas
- Takka
- Takka
Lisätiedot
- Asunnon kunto
- Tyydyttävä
- Ranta
- Rantaoikeus
- Lisätietoja rannasta
- Venepaikkaoikeus Salparvikenissä, laituripaikka, vuosimaksu laituripaikasta ollut 0 ja 200 euron välillä, talolta kävelymatkaa laiturille noin 500 m.
- Vesistön nimi
- Suomenlahti
- Lisätietoa lattioiden pintamateriaaleista
- laatta ja laminaatti
- Muuta kauppaan kuuluvaa
- Lisätietoja sisältyvistä varusteista: ilmalämpöpumppu, kaapistot, kiinteät valaisimet, lämminvesivaraaja
Taloyhtiö ja kiinteistö
- Tontin pinta-ala
- 2 500 m²
- Tontin omistus
- Oma
- Tontin myyntityyppi
- Koko tontti
- Tontin tiedot
- Hallinnanjakosopimuksella jaettu 2500 m2 osuus Tallbacka nimisestä kiinteistöstä.
- Rakennusmateriaali
- Tiili, puu, betoni ja kivi
- Lämmitysjärjestelmä
- Sähkö Tyyppi: sähköinen lattialämmitys, sähköpatterilämmitys Ilmalämpöpumppu sähköinen lattialämmitys, sähköpatterilämmitys
- Lisätietoja vesiputkesta
- Hallinta-alueella A ja B on yhteinen vesiliittymä, päämittari ja hallinta-alueen A alamittari sijaitsevat hallinta-alueen B rakennuksen autotallissa (Nuottakodantie 7).
- Lisätietoja viemäristä
- Hallinnanjakosopimuksen osapuolilla yhteinen paineviemärijärjestelmän repijäpumppu joka sijaitsee Hallinta-alueella B
- Kattotyyppi
- Auma
- Katemateriaali
- Pelti
- Lisätietoa rakennusoikeudesta
- Hallinta-alueella hallinnanjakosopimuksen mukaan rakennusoikeutta talousrakennuksille 75 m2, eli esimerkiksi tilavan autotallirakennuksen ja/tai pihasaunarakennuksen rakentaminen mahdollista.
- Lisätietoja liikenneyhteyksistä
- Kalkkirannantiellä säännöllisiä linja-autovuoroja (katso aikatauluja hsl.fi)
- Tie perille
- Kyllä
- Palvelut
- Söderkullan kattavat palvelut (mm S-Market, K-Market, Lidl, Tokmanni, R-Kioski, Alko, Postin palvelupiste, kirjasto, useita parturikampaamoja, useita ravintoloita, sote-asema yms.) noin 5,5 km, Kalkkirannantien päässä På Krogen ravintola ja rannan tuntumassa Grilli.
- Koulut
- Salpar skola (lk. 1-6) noin 500 m, suomenkielinen peruskoulu (lk. 1-9) Söderkullassa, ruotsinkielinen yläaste sekä suomen- ja ruotsinkieliset lukiot Sipoon keskuksessa Nikkilässä (Söderkullaan ja Nikkilään koululaiskuljetukset Kalkkirannantieltä linja-autolla).
- Kaavatilanne
- Yleiskaava
- Kaavoitustiedot
- Sipoo 2025 yleiskaava, kohde sijaitsee AT-alueeksi merkityllä alueella
- Kuntotutkimus tehty
- 01.01.2025