Paippistentie 425
04170, Paippinen, Sipoo
5h, k, khh, psh/wc, s, wc, vh
410 000 €
128 m²

Tätä asuntoa myy Peter Forss, Myyntipäällikkö, LKV
Kaupanvahvistaja
Huoneistokeskus Oy | Porvoo

Sijainti
Asuntoesittely
Huippukuntoinen maalämpötalo maaseudun rauhassa – tilaa, tunnelmaa ja toimivuutta
Tervetuloa tutustumaan tähän erinomaisessa kunnossa olevaan, yksitasoiseen omakotitaloon idyllisessä maalaismaisemassa! Tämä modernisti varusteltu ja energiatehokas koti tarjoaa huoletonta asumista ja runsaasti mahdollisuuksia niin lapsiperheille, pariskunnille kuin aktiivisille harrastajille.
Talo tarjoaa nykyisellään kaksi makuuhuonetta, mutta tilaratkaisut ovat helposti muokattavissa. Ruokailuhuone ja iso ikkunallinen vaatehuone on vaivattomasti muunnettavissa kahdeksi lisämakuuhuoneeksi – näin koti mukautuu jopa neljän makuuhuoneen tarpeisiin.
Lämmitysratkaisut on toteutettu nykyaikaisesti ja ekologisesti: maalämpöpumppu yhdistettynä vesikiertoiseen lattialämmitykseen takaa miellyttävän sisäilman vuoden ympäri. Varaava takka olohuoneessa luo tunnelmaa ja tuo lisälämpöä talvipakkasilla, ja eteisen ilmalämpöpumppu huolehtii myös kesän viilennyksestä. Koneellinen tulo- ja poistoilmanvaihto lämmöntalteenotolla sekä tuulettuva alapohja viimeistelevät miellyttävän sisäilman ja rakenteiden kestävyyden.
Pihapiirissä sijaitsee iso ja monikäyttöinen autotallirakennus, jossa on kaksi korkeaa sähkötoimista nosto-ovea kaukosäätimellä. Tallissa on juokseva vesi, kaksi lattiakaivoa ja ilmalämpöpumppu lämmitykseen – erinomainen tila niin harrastamiseen kuin työskentelyyn.
Tontti tarjoaa runsaasti rakennusoikeutta, joten esimerkiksi unelmien pihasauna on täysin mahdollinen.
Sijainti on vertaansa vailla: koillisraja rajoittuu kauniiseen Sipoonjoen yläjuoksuun ja lounaisrajalta kulkee valtiollinen Paippistentie, johon tontilla on oma liittymä. Julkinen liikenne kulkee aivan tontin läheltä, ja koulukuljetukset Nikkilän suuntaan onnistuvat helposti. Lähietäisyydeltä löytyy myös ruotsinkielinen kyläkoulu Paipis skola, jonne on alle kahden kilometrin kävelymatka.
Tässä on monien mahdollisuuksien koti, joka yhdistää modernin tekniikan, luonnonläheisyyden ja käytännölliset tilaratkaisut.
Tartu tilaisuuteen – tämä koti kannattaa kokea paikan päällä!
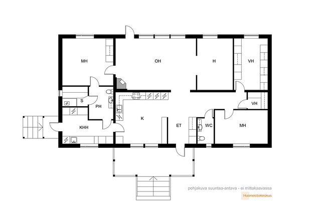
Pohjakuva

Perustiedot
- Sijainti
- Paippistentie 425, 04170, Paippinen, Sipoo
- Huoneluku
- 5
- Asuinpinta-ala
- 128 m²
- Muu pinta-ala
- 20,5 m²
- Kokonaispinta-ala
- 148,5 m²
- Lisätiedot pinta-alasta
- Rakennuslupapiirustuksen pinta-alaerittelyssä asuinpinta-ala 128 m2 ja kerrosala 148,5 m2.
- Kohteen tyyppi
- Omakotitalo
- Rakennusvuosi
- 2013
- Käyttöönottovuosi
- 2013
- Kohde myydään vuokrattuna
- Ei
- Vapautuminen
- Heti
Hinta ja kustannukset
- Myyntihinta
- 410 000 €
- Yhtiövastike
- Hoitovastike 0 € / kk
- Sähköliittymä siirtyy
- Kyllä
- Neliöhinta
- 3 203,13 € / m²
- Lisätietoja maksusta
- Lisätietoja vastikkeista: Sähkönkulutus on vuonna 2023 ollut 13 266 kWh ja vuonna 2024 kulutus on ollut 11 333 kWh, jäteastian (roskis) tyhjennys joka toinen viikko noin 250 euroa/vuosi, vesimaksu kulutusmittarin mukaan Sipoon Veden hinnaston mukaisesti perusmaksu 131,74 e/vuosi + kulutuksen mukaan 1.97 e/m3. Kiinteistövero on vuonna 2024 ollut 707,80 euroa sisältäen talon, autotallirakennuksen ja 2000 m2 pihapiiriä ja loput ovat olleet koko tilan maa- ja metsätalousaluetta josta ei makseta kiinteistöveroa. Ostajan kiinteistövero tulee jonkin verran nousemaan kun kiinteistövero tullaan veloittamaan koko myytävästä maapohjasta. Maa- ja metsätalous kiinteistöverovapautus koskee vain yli 2 ha:n maa- ja metsätalousalueiksi rekisteröityjä kiinteistöjä
Tilat ja materiaalit
- Keittiön varusteet
- Astianpesukone, liesituuletin, erillisuuni, jääkaappi, erillinen pakastin, ja kiinteät valaisimet
- Liesi
- Keraaminen liesi ja erillisuuni
- Kylpyhuoneen seinät
- Kaakeli
- Kylpyhuoneen lattiat
- Laatta
- Kylpyhuoneen varusteet
- Suihkuseinä, peili, wc-istuin, suihku, ja kiinteät valaisimet
- Kodinhoitohuoneen varusteet
- Pesukone, pesuallas, kuivausrumpu, ja pesukoneliitäntä
- Kodinhoitohuoneen seinät
- Maali
- Kodinhoitohuoneen lattiat
- Laatta
- Sauna
- Kyllä
- Kiuas
- Sähkökiuas
- Takka
- Takka
Lisätiedot
- Asunnon kunto
- Hyvä
- Ranta
- Ranta
- Lisätietoja rannasta
- Määräala rajoittuu koillisrajaltaan Sipoonjoen rantapenkereeseen noin 100 metrin matkalta (Sipoonjoen yläjuoksua)
- Lisätietoa seinien pintamateriaaleista
- maalattu levy
- Lisätietoa lattioiden pintamateriaaleista
- parketti
- Muuta kauppaan kuuluvaa
- Lisätietoja sisältyvistä varusteista: ilmalämpöpumppu, kaapistot, kiinteät valaisimet, kuivauskaappi/-rumpu, pyykinpesukone, sälekaihtimet/rullaverhot, verhotangot
Taloyhtiö ja kiinteistö
- Tontin pinta-ala
- 14 500 m²
- Tontin omistus
- Oma
- Tontin tyyppi
- Tasamaatontti
- Tontin myyntityyppi
- Koko tontti
- Tontin tiedot
- Kohde myydään noin 1,45 ha:n (14500 m2) määräalana joka jää lohkomistoimituksessa kantatilaksi, myyjä on laittanut jo lohkomistoimituksen vireille ja myyjä vastaa lohkomiskuluista. Kantatila ei saa osuuksia yhteisalueisiin (Skoltomter ja Sandtäkter). Sipoon kunnalla on etuosto-oikeus kiinteistönkaupassa kun kiinteistön pinta-ala on yli 5000 m2.
- Rakennusmateriaali
- Puu
- Lämmitysjärjestelmä
- Ilmalämpöpumppu Maalämpö vesikiertoinen lattialämmitys
- Lisätietoja viemäristä
- Kaikki viemärivedet johdettu 6m3 umpisäiliöön, määräalan rajalla kunnallisen viemäriverkoston liityntäkohta säiliöltä noin 20-30 metrin päässä, eli kunnalliseen viemäriverkostoon on helppo liittyä.
- Kattotyyppi
- harja
- Katemateriaali
- tiili
- Lisätietoja liikenneyhteyksistä
- Paippistentiellä kulkee jonkin verran linja-autovuoroja (katso aikatauluja hsl.fi).
- Tie perille
- Kyllä
- Palvelut
- Sipoon keskus Nikkilä noin 6 km, Järvenpään keskusta noin 15 km, Porvoon keskusta noin 32 km, Helsingin keskusta noin 40 km.
- Koulut
- Paipis skola luokat 0-6 ja päiväkoti 3-5 vuotiaille noin 1,9 km, suomenkielinen ala-aste sekä suomen- ja ruotsinkieliset ylä-asteet ja lukiot Nikkilässä jonne koululaiskuljetus Paippistentiellä.
- Kaavatilanne
- Yleiskaava
- Kaavoitustiedot
- Sipoo yleiskaava 2025, Sipoon kunta 0923531/kaavoitus, sipoo.fi/kaavoitus
- Muut rakennukset
- Autotalli
- Lisätietoa muista rakennuksista
- Samaan aikaan valmistunut 70 m2 autotallirakennus, lämmitys ilmalämpöpumpulla, kaksi korkeaa nosto-ovea kauko-ohjauksella, betonilattia, vesipiste, kaksi lattiakaivoa.