Papinniitynkaari 1
73310, Tahkovuori, Kuopio
Kahdeksan kappaletta 2 h, k, s -huoneistoja (43 m2) + talousrakennuksen tilat.
400 000 € (1 162,79 € / m²)
344 m²

Tätä asuntoa myy Jukka Leskinen, Kiinteistönvälittäjä, LKV LVV
Huoneistokeskus Oy | Kuopio

Sijainti
Asuntoesittely
Mahdollisuuksien paikka Tahkovuorella
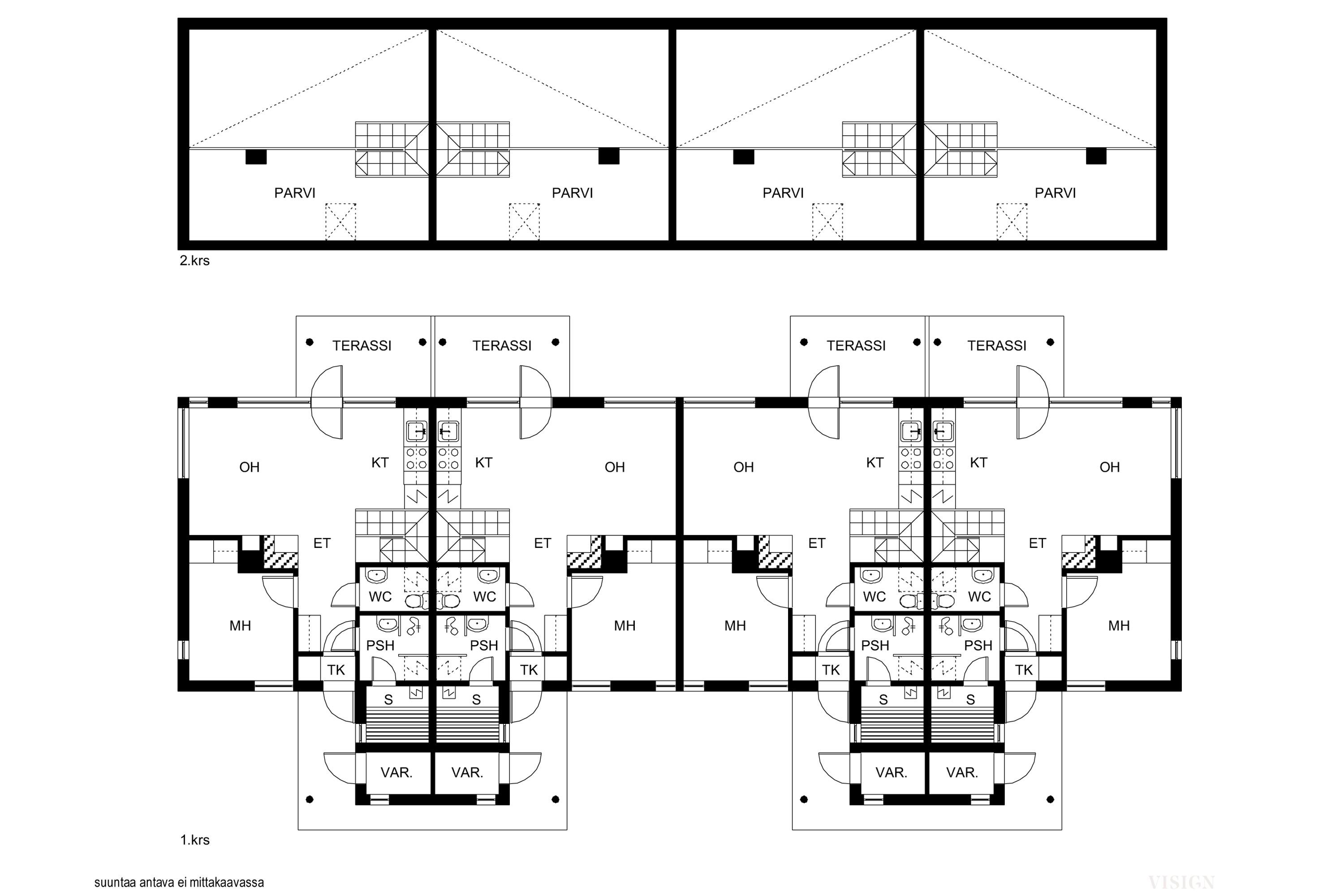
Aivan Tahkon keskustan tuntumassa kahdeksan huoneistoa ja aputilat käsittävä, vuonna 1991 valmistunut asunto-osakeyhtiö, josta myydään koko osakekanta. Huoneistot soveltuvat hyvin esimerkiksi vuokrauskäyttöön. Yhtiöllä on oma tontti 8440 m2 ja joka koostuu kahdesta eri palstasta. Myydään kalustettuna. Kuntotarkastus ja PTS-suunnitelma on laadittu. Sovi esittely paikanpäällä.Pohjakuva

Perustiedot
- Sijainti
- Papinniitynkaari 1, 73310, Tahkovuori, Kuopio
- Omistusmuoto
- Omistusasunto
- Huoneluku
- 8
- Asuinpinta-ala
- 344 m²
- Kokonaispinta-ala
- 344 m²
- Pinta-alan peruste
- Yhtiöjärjestyksen mukainen
- Lisätiedot pinta-alasta
- Kiinteistössä on yhteensä 8 kappaletta 43 m2:n suuruisia loma-asuntoja. Huoneistojen pinta-ala on yhteensä 344 m2. Pihapiirissä on myös 45 m2:n suuruinen talousrakennus, jossa on muun muassa pesuhuone, sauna ja varastotilaa. Kunkin huoneiston yhteydessä on kylmä varasto. Pinta-alat on saatu yhtiöjärjestyksestä eikä niitä ole tarkistusmitattu.
- Kohteen tyyppi
- Mökki tai huvila
- Kerros
- 1 / 1
- Rakennusvuosi
- 1992
- Käyttöönottovuosi
- 1992
- Kohde myydään vuokrattuna
- Ei
- Vapautuminen
- Sopimuksen mukaan
Hinta ja kustannukset
- Velaton hinta
- 400 000 €
- Myyntihinta
- 400 000 €
- Lisätietoja vastikkeista
- Vastiketta on tähän mennessä kannettu 6 150 e/kk, jolla on katettu menot (vuositasolla 73 800 e). Yhtiöllä on lyhytaikaista velkaa 12 135,93 euroa. Huoneistoissa on ollut majoitustoimintaa vuosina 2022, 2023 ja 2024.
- Neliöhinta
- 1 162,79 € / m²
- Lisätietoja maksusta
- Huoneistoissa ei ole omia sähkön tai veden mittareita. Kiinteistöllä on yhdet mittarit sähkölle ja vedelle. Taloyhtiön hallitukselle on annettu valtuutus periä (tai olla perimättä) ylimääräistä vastiketta yhtiön taloudellisen aseman tai maksuvalmiuden sitä vaatiessa
Tilat ja materiaalit
- Keittiön kuvaus
- Huoneistojen varusteet ja pintamateriaalit saattavat vaihdella eri huoneistoissa.
- Keittiön varusteet
- Jääkaappi, astianpesukone, liesi, liesituuletin, ja mikroaaltouuni
- Kylpyhuoneen seinät
- Kaakeli
- Kylpyhuoneen lattiat
- Laatta
- Kylpyhuoneen varusteet
- Suihku, lattialämmitys, ja suihkuseinä
- WC Lukumäärä
- 1
- Erillinen WC
- Wc:ssä vesivaraaja.
- WC:n lattiat
- Laatta
- WC:n seinät
- Kaakeli
- Makuuhuoneiden lukumäärä
- 1
- Kohteen säilytystilat
- Kylmä ulkovarasto ja kaapistot
- Sauna
- Kyllä
- Kiuas
- Sähkökiuas
- Takka
- Takka
Lisätiedot
- Asunnon kunto
- Tyydyttävä
- Näkymät
- Piha- ja puistoalueelle.
- Terassi
- Kyllä
- Lisätietoja terassista
- Katettu terassi, jonne käynti olohuoneesta.
- Piha
- Piha-alue asfaltoitu. Nurmikkoa ja luonnonpuita.
- Ranta
- Oikeus vesialueisiin
Taloyhtiö ja kiinteistö
- Taloyhtiön nimi
- Asunto Oy Nilsiän Eturessu
- Taloyhtiön lisätiedot
- Kiinteistö myydään tässä kunnossa irtaimiston kanssa. Nykykunto ja tulevat korjaustarpeet ovat esitetty vuosina 2024-25 tehdyissä kuntotarkastuksissa ja PTS-suunnitelmassa. Kodinkoneiden ja muiden laitteiden kuntoa ei ole todettu.
- Tontin pinta-ala
- 0,986 ha
- Tontin omistus
- Oma
- Tontin tiedot
- Kiinteistö käsittää kolme erillistä tonttia RESSULA (rakennukset sijaitsevat tällä), PUISTORESSULA (puistoalue) ja TILA (tiealue). Pinta-ala yhteensä 0,986 hehtaaria.
- Rakennusmateriaali
- Puu
- Lämmitysjärjestelmä
- Sähkö Vesivaraaja Avotakka
- Ilmanvaihto
- koneellinen poisto
- Vesijohto
- Kunnallisvesi
- Viemäröinti
- Kunnallinen viemäriverkosto
- Kattotyyppi
- Harjakatto
- Katemateriaali
- Tiili
- Rakennusoikeus
- 1000
- Lisätietoja kiinteistönhoidosta
- Huoltoyhtiö
- Taloyhtiössä on
- Pesutupa, ulkovarasto, ja huoneistokohtaiset varastot
- Lunastusoikeus yhtiöllä
- Ei
- Lunastusoikeus osakkaille
- Ei
- Kohteesta on energiatodistus
- Kyllä
- Energialuokka
- E2018
- Energiatodistuksen voimassaolo
- 24.9.2034
- Taloyhtiöön kuuluu
- Pihamaalla grillikota.
- Liikenneyhteydet
- Bussipysäkki lähellä
- Lisätietoja liikenneyhteyksistä
- Sesonkiakoina maksuton Skibussi rinteille, Tahkon keskustaan ja Nilsiän keskustaan. Lähin pysäkki 150 m.
- Paikallistiedot
- Kohde sijaitsee reilun yhden kilometrin päässä Tahkon keskustasta.
- Palvelut
- Lähimmät kaupat ja ravintolat 1 km. Tahko Spa 1,3 km. Golfkentät 1,5 ja 5 km. Laskettelurinteet 1,6 km. Uimaranta 1,3 km. Talvella hiihtolatu 300 m. Vierasvenesatama 1,2 km. Nilsiän keskustan palvelut (mm. kauppoja, terveyskeskus, apteekki) 11 km.
- Huoneistoon kuuluu yhtiöjärjestyksen mukaan autopaikka
- Pistokkeellinen pihapaikka
- Lisätietoja huoneiston autopaikasta
- Huoneistojen autopaikat ovat yhtiön asfaltoidulla piha-alueella.
- Sähköpistokepaikkoja
- 8 kpl
- Piha-autopaikkoja
- 8 kpl
- Taloyhtiöllä sauna
- Kyllä
- Kaavatilanne
- Asemakaava ja yleiskaava
- Lisätiedot kaavoituksesta
- www.kuopio.fi/kaavoitus, (017) 182 111/kaavat. Rakennusoikeutta on käyttämättä noin 532 m2.
- Asbestikartoitus
- Ei
Tehdyt remontit
Normaaleja ylläpitokorjauksia vuosien aikana.
Kattoikkunat poistettu 2001.
