Pekanpolku 3 A
21530, Saari, Paimio
3h+k+wc+khh/wc+kph+s+v+ak
258 000 €
75 m²

Tätä asuntoa myy Mika Kulmala, Kiinteistönvälittäjä LKV, KiAT, osakas
Huoneistomarkkinat Oy LKV

Sijainti
Asuntoesittely
Juuri valmistunut moderni omakotitalo tarjoaa vaivatonta ja energiatehokasta asumista rauhallisella ja luonnonläheisellä alueella lähellä Paimion palveluja. Yksitasoinen ja harkitun kokoinen koti soveltuu erinomaisesti niin yksinasujalle, pariskunnalle kuin pienelle perheelle. Oma 2 544 m²:n tontti jaetaan hallinnanjakosopimuksella viereen valmistuvan vastaavanlaisen talon kanssa, ja pihat avautuvat vehreään ympäristöön tarjoten miellyttävät puitteet ulkoiluun ja oleskeluun.
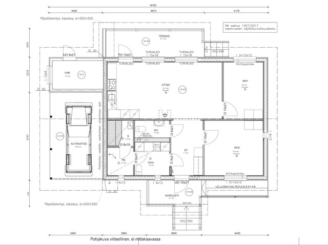
Asunnon kerrosala on 85 m² ja huoneistoala 75 m², ja pohjaratkaisu on tehokas ja toimiva. Avara olohuoneen ja avokeittiön yhdistelmä muodostaa kodin viihtyisän sydämen, ja keittiötä täydentävät laadukkaat Puustellin kalusteet. Kokonaisuuteen kuuluu kaksi makuuhuonetta, erillinen wc, kodinhoitohuone, kylpyhuone ja sauna. Energiatehokas poistoilmalämpöpumppu sekä vesikiertoinen lattialämmitys takaavat miellyttävän asumismukavuuden ja maltilliset käyttökustannukset ympäri vuoden.
Lisäksi taloon kuuluu autokatos ja varasto. Rauhallinen ja luonnonläheinen sijainti yhdistyy sujuvaan arkeen, sillä koulut ja päiväkodit ovat kävelyetäisyydellä ja hyvät liikenneyhteydet Turun ja Helsingin suuntaan tekevät arjesta sujuvaa.
Yhteydenotot: Mika Kulmala, 040 7799 548, [email protected]
Pohjakuva

Perustiedot
- Sijainti
- Pekanpolku 3 A, 21530, Saari, Paimio
- Huoneluku
- 3
- Asuinpinta-ala
- 75 m²
- Muu pinta-ala
- 10 m²
- Kokonaispinta-ala
- 85 m²
- Lisätiedot pinta-alasta
- Rakennuslupa asiakirjojen mukaan talon kerrosala on 85 m² ja huoneistoala on 75 m².
- Kohteen tyyppi
- Omakotitalo
- Kerros
- 1
- Rakennusvuosi
- 2026
- Käyttöönottovuosi
- 2026
- Kohde myydään vuokrattuna
- Ei
- Vapautuminen
- Heti
Tilat ja materiaalit
- Keittiön kuvaus
- Puustellin kalusteet. Rakennustapaseloste liitteen mukainen varustelu, joka esitteen liitteenä.
- Keittiön lattiat
- Vinyyli
- Keittiön varusteet
- Jääkaappipakastin, liesi, astianpesukone, ja erillisuuni
- Liesi
- Induktioliesi
- Kylpyhuone
- Rakennustapaseloste liitteen mukainen varustelu, joka esitteen liitteenä.
- Kylpyhuoneen seinät
- Kaakeli
- Kylpyhuoneen lattiat
- Laatta
- Kylpyhuoneen varusteet
- Suihku ja lattialämmitys
- WC Lukumäärä
- 2
- Erillinen WC
- Rakennustapaseloste liitteen mukainen varustelu, joka esitteen liitteenä. Yksi erillinen wc ja toinen wc kodinhoitohuoneen yhteydessä.
- WC:n lattiat
- Laatta
- WC:n seinät
- Kaakeli
- Makuuhuoneet
- Rakennustapaseloste liitteen mukainen varustelu, joka esitteen liitteenä.
- Makuuhuoneiden lukumäärä
- 2
- Makuuhuoneiden lattiat
- Vinyyli
- Olohuone
- Rakennustapaseloste liitteen mukainen varustelu, joka esitteen liitteenä.
- Olohuoneen lattiat
- Vinyyli
- Kodinhoitohuoneen varusteet
- Pesukoneliitäntä, lattialämmitys, pesuallas, pyykkikaapit, ja pöytätaso
- Kodinhoitohuoneen seinät
- Kaakeli
- Kodinhoitohuoneen lattiat
- Laatta
- Kodinhoitohuone
- Rakennustapaseloste liitteen mukainen varustelu, joka esitteen liitteenä.
- Kohteen säilytystilat
- Kaapistot ja ulkovarasto
- Sauna
- Kyllä
- Kiuas
- Sähkökiuas
- Saunan kuvaus
- Rakennustapaseloste liitteen mukainen varustelu, joka esitteen liitteenä. Lauteet tervaleppää, Harvian pilarikiuas.
- Takka
- Takkavaraus
Lisätiedot
- Asunnon kunto
- Uusi
- Terassi
- Kyllä
- Piha
- Pihan mullat valmiina ja nurmikko istutettu. Ajoväylät sorastettu.
Taloyhtiö ja kiinteistö
- Tontin pinta-ala
- 2 544 m²
- Tontin omistus
- Oma
- Tontin tyyppi
- Tasamaatontti
- Tontin myyntityyppi
- Määräosa
- Tontin tiedot
- Tontti jaetaan hallinnanjakosopimuksella Pekanpolku 3B:n kanssa.
- Rakennusmateriaali
- Puu
- Lämmitysjärjestelmä
- Poistoilmalämpöpumppu
- Ilmanvaihto
- Koneellinen LTO
- Vesijohto
- Kunnallisvesi
- Viemäröinti
- Kunnallinen viemäriverkosto
- Kattotyyppi
- Harjakatto
- Katon kunto
- Uusi
- Katemateriaali
- Pelti
- Rakennusoikeus
- 400
- Lisätietoa rakennusoikeudesta
- Rakennusoikeutta käytetään 172 m². Talo A 85 m² ja talo B 85 m², roskakatos 2 m². Käyttämättä jää 228 m².
- Kohteesta on energiatodistus
- Kyllä
- Energialuokka
- B2018
- Energiatodistuksen voimassaolo
- 18.10.2033
- Liikenneyhteydet
- Sujuvat yhteydet omalla autolla ja hyvät pyöräilytiet
- Tie perille
- Kyllä
- Palvelut
- Paimion keskustan palvelut n. 1 km
- Koulut
- Vistan ja Kriivarin koulu n. 1 km
- Kaavatilanne
- Asemakaava
- Kaavoitustiedot
- Liesätiedot Paimio kaupungilta.
- Rakennusvaihe
- Valmis
- Lisätietoa muista rakennuksista
- Roskakatos
