Pellonpiennar 9
07110, Hinthaara, Porvoo
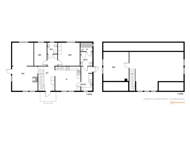
2-5 mh, oh, rt, k, kph, khh, wc, et
288 000 €
158 m²

Tätä asuntoa myy Magnus Smeds, Asuntomyyjä, KED
Huoneistokeskus Oy | Porvoo

Sijainti
Asuntoesittely
Upea omakotitalo aivan Hinthaaran keskustan lähettyvillä, missä päiväkoti ja koulu sijaitsee. Isolle perheelle
potentiaalinen koti, koko yläkerta vielä vaiheessa, paitsi pinnat valmiita. Yläkertaan saa vallan mainiosti muutama
makuuhuone lisää. Alakerrassa kaksi makuuhuonetta, erittäin viihtyisä ruokasali-olohuonekokonaisuus, mistä myös
uloskäynti. Keittiö isohko, jossa varmasti perhe viihtyy. Märkätilat sitten talon toisessa päädyssä, kodinhoitotilat,
kylpyhuone ja sauna, ja uloskäynti valtavalle terassille, osittain katettu. Pihapiirissä iso kahden auton autotalli.
Tähän kokonaisuuteen kannattaa ilman muuta tulla ihastumaan, varaa oma esittelyaikasi heti, tervetuloa!
Perustiedot
- Sijainti
- Pellonpiennar 9, 07110, Hinthaara, Porvoo
- Huoneluku
- 6
- Asuinpinta-ala
- 158 m²
- Muu pinta-ala
- 14 m²
- Kokonaispinta-ala
- 172 m²
- Pinta-alan peruste
- Pinta-ala ei ole tarkistusmitattu ja todellinen pinta-ala voi olla suurempi tai pienempi, kuin ilmoitettu
- Lisätiedot pinta-alasta
- Pinta-alatiedot saatu Porvoon rakennusvalvonnasta.
- Kohteen tyyppi
- Omakotitalo
- Kerros
- 2
- Rakennusvuosi
- 2006
- Käyttöönottovuosi
- 2006
- Kohde myydään vuokrattuna
- Ei
- Vapautuminen
- Sopimuksen mukaan, kuitenkin viimeistään 1 kk kaupanteosta
Tilat ja materiaalit
- Keittiön kuvaus
- Kaapisto: Luonnonväriset ovet, välitilalaatoitus, laminaatti- ja rosteritasot. Kodinkoneet: Jääkaappi, pakastinkaappi, astianpesukone, induktioliesitaso, erillisuuni, liesituuletin. Lattia laminaattia ja seinät tapettia.
- Kylpyhuone
- Kylpyhuone: Suihkunurkkaus/ -seinä, käsienpesuallas, allaskaappi, peili, wc-istuin. Lattia ja seinät laattaa. Sauna: Sähkölämmitteinen kiuas. Laattalattia ja seinät puu.
- Erillinen WC
- Käsienpesuallas, allaskaappi, peilihyllykkö, kaappi, wc-istuin. Lattia laminaatti ja seinät puu.
- Makuuhuoneet
- Alakerrassa kaksi makuuhuonetta, joissa lattiat laminaattia ja seinät maalattu. Yläkerrassa tällä hetkellä yksi isompi makuuhuone sekä valtavankokoinen huone, josta saa tehtyä vaikka kaksi makuuhuonetta ja aulaa. Lattia laminaattia ja seinät maalattu.
- Olohuone
- Yhdistetyssä olohuone- ja ruokailutilassa laminaattilattiat ja seinät maalattu, tapettia ja puuta sekä valetiili. Ruokailuhuoneessa isohko takka, joka lisää tunnelmaa.
- Kodinhoitohuone
- Ylä- ja alakaapistoa, korkea kaappi, työtasoa ja käsienpesuallas, pesukoneliitäntä ilmavesilämpöpumppu sekä uloskäynti terassille. Lattia laattaa ja seinät puuta.
- Sauna
- Kyllä
- Takka
- Takka
Lisätiedot
- Asunnon kunto
- Hyvä
- Terassi
- Kyllä
- Lisätietoja terassista
- Valtavankokoinen terassi joka ympäröi puolet talosta, osa avonaista ja osa katettua.
Taloyhtiö ja kiinteistö
- Tontin pinta-ala
- 1 240 m²
- Tontin omistus
- Oma
- Tontin tyyppi
- Tasamaatontti
- Tontin myyntityyppi
- Koko tontti
- Rakennusmateriaali
- Puu
- Lämmitysjärjestelmä
- Sähkö Poistoilmalämpöpumppu
- Ilmanvaihto
- Koneellinen ilmanvaihto
- Vesijohto
- Kunnallisvesi
- Viemäröinti
- Kunnallinen viemäriverkosto
- Kattotyyppi
- Harjakatto
- Katon kunto
- Hyvä
- Katemateriaali
- Pelti
- Kohteesta on energiatodistus
- Ei lain edellyttämää energiatodistusta
- Liikenneyhteydet
- Bussipysäkki lähellä
- Tie perille
- Kyllä
- Paikallistiedot
- Lähistöllä pieni kauppapiste Puh Lättähatun yhteydessä n. 500 m. Hinthaarassa erittäin aktiivinen kyläyhdistys.
- Koulut
- Alakoulu kävelymatkan päässä.
- Kaavatilanne
- Asemakaava
- Rakennusvaihe
- Valmis
- Muut rakennukset
- Autotalli
- Lisätietoa muista rakennuksista
- Kahden auton autotalli, 40 m2, valmistunut 2019, loppukatselmus tehty 1.3.2019.
