Perintötie 1 F
01510, Aviapolis, Vantaa
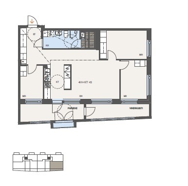
4 h, avokeittiö, pesutilat, sauna, iso lasitettu parveke ( yht.järj. 4 h + kt + s ).
327 900 € (4 203,85 € / m²)
78 m²

Tätä asuntoa myy Hannele Kaunisnummi, Asuntomyyjä
Huoneistokeskus Oy | Vantaa

Sijainti
Asuntoesittely
Tässä on tilava ja moderni asunto, joka sijaitsee Vantaan halutussa Aviapoliksen kaupunginosassa. Tämä neljännen kerroksen asunto tarjoaa avaran pohjaratkaisun, johon kuuluu avokeittiö, sauna ja iso lasitettu parveke, joka tuo mukavasti lisätilaa ympäri vuoden. Asunnon lattiat ovat tyylikästä parkettia, ja keittiö on varustettu nykyaikaisilla laitteilla, kuten induktioliedellä ja erillisellä pakastimella.
Vuonna 2019 valmistunut taloyhtiö, Asunto Oy Vantaan Manttaali, tarjoaa erinomaiset puitteet asumiseen. Yhtiössä on muun muassa pesutupa, väestönsuoja ja urheiluvälinevarasto. Asunto on hyvin pidetty ja hyvässä kunnossa, ja taloyhtiössä on tehty säännöllisiä huoltotöitä.
Sijainti on erinomainen: Kauppakeskus Jumbon monipuoliset palvelut ovat aivan vieressä, ja liikenneyhteydet ovat loistavat, sillä läheltä löytyvät sekä bussiyhteydet että nopeat yhteydet Kehä 3:lle ja Tuusulanväylälle. Lentoasema on myös kätevästi saavutettavissa, mikä tekee tästä kodista ihanteellisen erityisesti paljon matkustavalle perheelle.
Tartu tilaisuuteen ja tee tästä asunnosta perheesi uusi koti!
Perustiedot
- Sijainti
- Perintötie 1 F, 01510, Aviapolis, Vantaa
- Omistusmuoto
- Omistusasunto
- Huoneluku
- 4
- Asuinpinta-ala
- 78 m²
- Kokonaispinta-ala
- 78 m²
- Pinta-alan peruste
- Yhtiöjärjestyksen mukainen, Isännöitsijäntodistuksen mukainen
- Lisätiedot pinta-alasta
- Asunnon pinta-alatietoja ei ole tarkistusmitattu, siksi ne saattavat poiketa esitteessä ja internetissä ilmoitetusta.
- Kohteen tyyppi
- Kerrostalo
- Kerros
- 4 / 7
- Rakennusvuosi
- 2019
- Käyttöönottovuosi
- 2019
- Kohde myydään vuokrattuna
- Ei
- Vapautuminen
- Heti
Tilat ja materiaalit
- Keittiön lattiat
- Parketti
- Keittiön varusteet
- Liesituuletin, liesi, jääkaappi, astianpesukone, ja erillinen pakastin
- Liesi
- Induktioliesi
- Kylpyhuoneen lattiat
- Laatta
- Kylpyhuoneen varusteet
- WC-istuin, pesukoneliitäntä, peili, lattialämmitys, suihku, ja kiinteät valaisimet
- Makuuhuoneiden lattiat
- Parketti
- Olohuoneen lattiat
- Parketti
- Sauna
- Kyllä
- Kiuas
- Sähkökiuas
Lisätiedot
- Asunnon kunto
- Hyvä
- Parveke
- Lasitettu parveke
- Hissi
- Kyllä
- Muuta kauppaan kuuluvaa
- Lisätietoja sisältyvistä varusteista: kiinteät valaisimet, sälekaihtimet/rullaverhot
- Muut kaupan kannalta merkittävät tiedot
- Taloyhtiön osakeluettelo on siirretty huoneistotietojärjestelmään. Ostajan tulee hakea omistusoikeuden rekisteröintiä Maanmittauslaitokselta. Ostaja vastaa tällöin omistusoikeuden rekisteröintikustannuksista, mahdollisista osakekirjan mitätöinnistä aiheutuvista kustannuksista sekä mahdollisesta hakemusmaksun korotuksesta. Ostajan pankin ostajalta mahdollisesti veloittamista kaupantekoon, omistusoikeuden rekisteröintiin tai panttausmerkinnän hakemiseen liittyvistä kustannuksista ostaja saa tiedon pankiltaan.
Taloyhtiö ja kiinteistö
- Taloyhtiön nimi
- Asunto Oy Vantaan Manttaali
- Isännöitsijätoimisto
- Aamu & Isännöintipiste Oy
- Isännöitsijän nimi
- Topi Virtanen
- Isännöitsijän puhelin
- 09 615 07333
- Tontin pinta-ala
- 14 736 m²
- Tontin omistus
- Oma
- Käyttö/luovutusrajoitukset
- Lunastuslauseke autopaikoista yht.järj, § 17.
- Rakennusmateriaali
- Betoni ja teräs
- Lämmitysjärjestelmä
- Kaukolämpö
- Kattotyyppi
- Harja-/ tasakatto
- Lisätietoja kiinteistönhoidosta
- Huoltoyhtiö
- Kiinteistönhoidon lisätiedot
- Vantaan Kiinteistöpalvelu
- Taloyhtiössä on
- Pesutupa, väestönsuoja, urheiluvälinevarasto, ja lastenvaunuvarasto, huoneistokohtaiset varastot
- Kohteesta on energiatodistus
- Kyllä
- Energialuokka
- C2013
- Taloyhtiöön kuuluu
- Erillinen ulkovälinevarastorakennus on yhteisomistuksessa Asunto Oy Vantaan Jousen ja Asunto Oy Vantaan Koukun kanssa hallinnanjakosopimuksen mukaisesti. Yhtiöllä on käyttöoikeus Asunto Oy Vantaan Jousen ja Asunto Oy Vantaan Koukun jätehuoneeseen.
- Lisätietoja liikenneyhteyksistä
- Bussit, Kehä 3, Tuusulanväylä, Lento-asema.
- Palvelut
- Kauppakeskus Jumbon palvelut vieressä.
- Koulut
- Alueella. Veromies
- Lisätietoja taloyhtiön autonsäilytyspaikoista
- Yhtiö hallitsee hallinnanjakosopimuksen mukaisesti 39 pysäköintipaikkaa, jotka tullaan sijoittamaan korttelin 121 tontille 13 toteutettavaan pysäköintilaitokseen. Pysäköintilaitokseen sijoitettavat yhtiön pysäköintipaikat ovat yhteiskäyttöpaikkoja ja niiden omistusoikeus säilyy yhtiöllä. Oikeus pysäköintihallissa sijaitsevien yhteiskäyttöpaikkojen käyttämiseen määräytyy siten, että kukin yhtiön osakkeista AH1-AH39 oikeuttaa pysäköimään yhden ajoneuvon kulloinkin vapaana olevalle paikalle yhtiön omistamista yhteiskäyttöpaikoista.
- Kaavatilanne
- Asemakaava
- Lisätiedot kaavoituksesta
- Vantaan kaupunki 09 83911
- Taloyhtiön kiinnitykset
- 11 304 930 €
Tehdyt remontit
Yhtiössä tehdyt huomattavat kunnossapito- ja muutostyöt
Vuosi Kunnossapito- tai muutostyö
2019 Yhtiö luovutettiin asumiskäyttöön 2-2019
2020 1-vuotistakuutarkastukset sisältäen rakennuksen kuntolausunnon ja tarkastuksen
2020 1-vuotistakuukorjaukset YIT:n toimesta.
2021 1-vuotistakuukorjaukset YIT:n toimesta.
2022 YIT:n toimesta vesikaton vuotojen korjaus.
2024 Huoneistojen hanojen vaihtoja.
Tulevat remontit
2025-2026 yleisiä huoltotoimenpiteitä.
2027 Kuntoarvio + PTS rakennuttajan 10-vuotisvastuita ajatellen ja salaojien ja sadevesijärjestelmien kuvaus ja huuhtelu.
