Pihlajatie 6A
04480, Haarajoki, Järvenpää
5h+2k+2s+3wc+kht+alakerta (1mh) +ak+2varasto+parveke+3terassia
438 000 €
120 m²
Tätä asuntoa myy Sami Paulig, Asuntomyyjä
Huoneistokeskus Oy | Helsinki, Runeberginkatu

Sijainti
Asuntoesittely
Todella upea moderni 3-4 makuuhuoneen jykevä kivitalo huippupaikalla aivan Helsinki-Lahti moottoritien vieressä!
Talo ja piha kauttaaltaan rakennettu uudelleen ja modernisoitu laadukkaasti 2010-luvulla.
Todella hyvä kunto.
Edulliset asumiskulut:
Sähkönkulutusarvio koko kiinteistöllä vain 14 000 kwh/v.
Upea täysin kivetetty ja viimeistelty arvopiha kolmella terassilla, lisäksi terassiparveke!
Paljon ylimääräisiä tilaneliöitä, jotka eivät näy asuinneliöissä.
Iso alakerta omalla sisäänkäynnillä, jossa oma keittiö.
3 x wc ja kaksi saunaa.
Sisällä sähkösauna ja pihalla upea puusauna ja palju+terassi.
Varaavatakka ja 2 ilmalämpöpumppua.
Iso, tilava oma tontti.
Upea täysin valmiiksi tehty ja kauniisti viimeistelty piha istutuksineen.
Autokatos ja pysäköintitilaa kuudelle autolle. Isot varastot.
Nopeat yhteydet kaikkialle, Helsinki-lahti moottoritie 2min.
Järvenpään keskusta alle 10min.
Juna-asema, kauppa, koulu ja päiväkoti vieressä.
Tämänkin talon myy:
Sami Paulig
040 5332289
Autan myös sinun kotisi myynnissä!
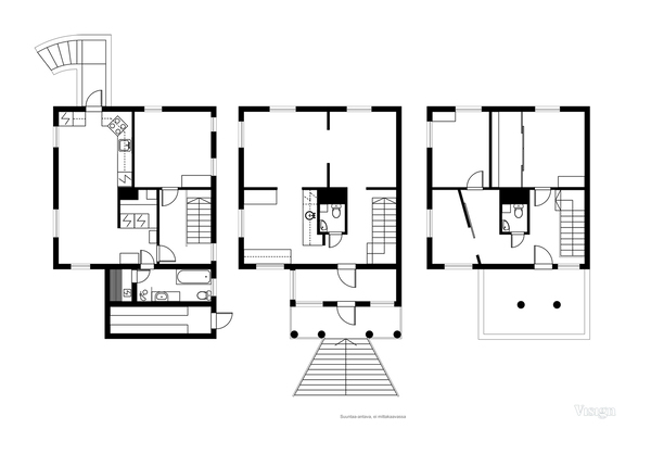
Pohjakuva

Perustiedot
- Sijainti
- Pihlajatie 6A, 04480, Haarajoki, Järvenpää
- Huoneluku
- 5
- Asuinpinta-ala
- 120 m²
- Muu pinta-ala
- 0 m²
- Kokonaispinta-ala
- 120 m²
- Kohteen tyyppi
- Omakotitalo
- Kerros
- 3
- Rakennusvuosi
- 1961
- Lisätietoja rakennusvuodesta
- Talo uusittu täysin 2008-2011 Rahun mukaan talo on valmistunut 1961.
- Käyttöönottovuosi
- 1961
- Kohde myydään vuokrattuna
- Ei
- Vapautuminen
- Sopimuksen mukaan
Tilat ja materiaalit
- Keittiön lattiat
- Laatta
- Keittiön seinät
- Laatta ja maali
- Keittiön varusteet
- Erillisuuni, jääkaappi, liesi, liesituuletin, astianpesukone, ja pakastekaappi, viinikaappi
- Liesi
- Induktioliesi ja erillisuuni
- Kylpyhuoneen seinät
- Kaakeli
- Kylpyhuoneen lattiat
- Laatta
- Kylpyhuoneen varusteet
- Lattialämmitys, kylpyamme, wc-istuin, ja suihku
- WC Lukumäärä
- 3
- WC:n lattiat
- Laatta
- WC:n seinät
- Kaakeli
- Makuuhuoneiden lukumäärä
- 3
- Makuuhuoneiden seinät
- Maali ja tapetti
- Makuuhuoneiden lattiat
- Parketti
- Olohuoneen seinät
- Maali ja tapetti
- Olohuoneen lattiat
- Parketti
- Kodinhoitohuoneen varusteet
- Lattialämmitys, pesukone, kuivausrumpu, pöytätaso, ja pesukoneliitäntä
- Kodinhoitohuoneen seinät
- Maali
- Kodinhoitohuoneen lattiat
- Laatta
- Kohteen säilytystilat
- Vaatehuone ja muu erillinen varasto
- Sauna
- Kyllä
- Kiuas
- Puukiuas
- Saunan kuvaus
- Ulkosaunassa puukiuas, sisällä sähkökiuas
- Takka
- Takka
Lisätiedot
- Asunnon kunto
- Hyvä
- Terassi
- Kyllä
- Lisätietoja terassista
- Patio
- Muuta kauppaan kuuluvaa
- Lisätietoja sisältyvistä varusteista: ilmalämpöpumppu
- Muut kaupan kannalta merkittävät tiedot
- Järjestelmäteknisistä syistä kohde nousi uutena, myyntikohde ei ole uusi.
Taloyhtiö ja kiinteistö
- Tontin pinta-ala
- 1 410 m²
- Tontin omistus
- Oma
- Tontin myyntityyppi
- Koko tontti
- Tontin tiedot
- Koko tontti 2210m2, hallinnanjakosopimuksella oma tontti on myytävällä talolla 1410m2.
- Rakennusmateriaali
- Tiili ja kivi
- Lämmitysjärjestelmä
- Sähkö Tyyppi: sähköinen lattialämmitys, sähköpatterilämmitys Puu Ilmalämpöpumppu uuni/takka, sähköpatterilämmitys, sähköinen lattialämmitys
- Kattotyyppi
- Harjakatto
- Katemateriaali
- Pelti
- Lisätietoja liikenneyhteyksistä
- Moottoritielle 2min. Juna-asema 1km.
- Tie perille
- Kyllä
- Palvelut
- K-kauppa 300m
- Koulut
- 300m
- Kaavatilanne
- Yleiskaava ja asemakaava
- Asbestikartoitus
- Ei
- Muut rakennukset
- Liiteri, autokatos, ja varasto saunarakennus