Pikkukoskentie 1 B
00650, Veräjämäki, Oulunkylä, Helsinki
4-6h+k+2kph+2wc+sauna+takkahuone+parveke+terassi/piha+autotalli (yhtiöjärjestyksen mukaan 4h+k+s+aputilat).
499 000 € (3 696,30 € / m²)
135 m²

Tätä asuntoa myy Marko Meijanen, Myyntineuvottelija
Sp-Koti Helsinki Kortteli | WM Crew Oy

Sijainti
Asuntoesittely
Paritaloasunto rauhallisella ja arvostetulla Veräjämäen alueella!
Tämä vuonna 1987 valmistunut paritaloasunto tarjoaa asuintilaa yhteensä 135 m² sekä noin 10 m² autotallin. Asunto on kuntotarkastettu 11/2024, ja raportti on saatavilla välittäjältä.
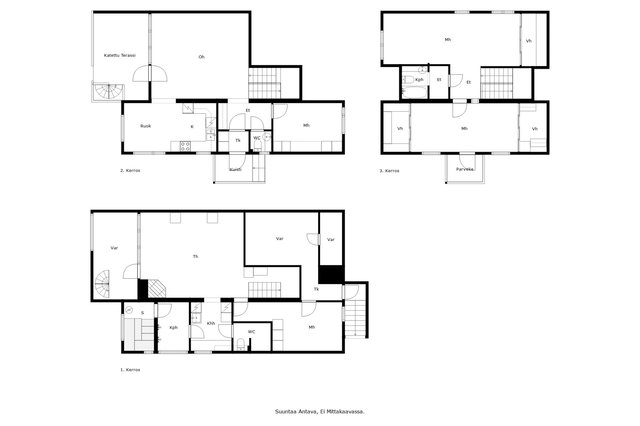
Tilat kolmessa kerroksessa:
• Alakerta: tilava takkahuone, makuuhuone, kylpyhuone, sauna, wc ja kodinhoitohuone. Lisäksi ilmalämpöpumppu tuo asumismukavuutta.
• Keskikerros: tuulikaappi, eteinen, olohuone, keittiö, wc ja makuuhuone. Olohuoneesta on käynti terassille/piha-alueelle, ja myös tässä kerroksessa on ilmalämpöpumppu.
• Yläkerta: kaksi makuuhuonetta, kaksi vaatehuonetta, kylpyhuone ja parveke. Toisen makuuhuoneen voi halutessaan jakaa kahdeksi erilliseksi huoneeksi.
Asunto Oy Vaahteraveräjässä on yhteensä neljä asuntoa, ja yhtiöjärjestyksen mukaan jokainen osakas vastaa itse oman asuntonsa kunnostamisesta ja remonteista.
Veräjämäki on viihtyisä ja rauhallinen asuinalue, josta on hyvät kulkuyhteydet. Oulunkylän juna-asema sijaitsee lähettyvillä, ja alueelta löytyvät koulut, päiväkodit sekä monipuoliset ulkoilumahdollisuudet.
Tervetuloa tutustumaan!
Marko Meijanen
044 237 8058
[email protected]
Nikita Missiouk
044 244 6364
[email protected]Perustiedot
- Sijainti
- Pikkukoskentie 1 B, 00650, Veräjämäki, Oulunkylä, Helsinki
- Omistusmuoto
- Omistusasunto
- Huoneluku
- 4
- Asuinpinta-ala
- 135 m²
- Kokonaispinta-ala
- 135 m²
- Pinta-alan peruste
- Yhtiöjärjestyksen mukainen, Isännöitsijäntodistuksen mukainen, (Pinta-ala ei ole tarkistusmitattu ja todellinen pinta-ala voi olla suurempi tai pienempi, kuin ilmoitettu)
- Lisätiedot pinta-alasta
- Asiakastiedot "Rakennuksen tiedot" otteen mukaan B asunnon asuintilojen pinta-ala on 116 m2.
- Kohteen tyyppi
- Paritalo
- Kerros
- 1 / 2
- Rakennusvuosi
- 1987
- Kohde myydään vuokrattuna
- Ei
- Vapautuminen
- Sopimuksen mukaan
Hinta ja kustannukset
- Velaton hinta
- 499 000 €
- Myyntihinta
- 499 000 €
- Kokonaissähkön kulutustiedot
- 13659.98 kWh / vuosi
- Sähkölämmityskulut keskimäärin
- 108 € / kk
- Yhtiövastike
- Hoitovastike 117,30 € / kk (0,87 € / m²), Yhtiövastike yhteensä 117,30 € / kk
- Lisätietoja vastikkeista
- Yhtiökokouksessa 20.04.2025 päätetyt maksut ovat asunnon Pikkukoskentie 1 B:n osalta 1407,7 €/vuosi. Se sisältää kiinteistöveron 1064,6 €/vuosi ja hoitovastikkeen 343,1 €/vuosi = 117,3 €/kk.
- Neliöhinta
- 3 696,30 € / m²
- Lisätietoja maksusta
- Sähköstä, vedestä ja lämmityksestä aiheutuneet kustannukset hoitaa jokainen osakkeenomistaja omalta osaltaan itse erillisten mittareilla mitattujen lukemien perusteella samoin kuin mahdolliset vakuutusmaksut. Osakkeenomistajat hoitavat omistamiensa asuntojen korjauksista ja hoidosta aiheutuneet kustannukset omalta osaltaan itse vallitsevaa asunto-osakeyhtiölakia noudattaen sekä oheiseen karttapiirrokseen merkityn taloon kuuluvan tontin osan hoidosta aiheutuneet kustannukset. Mahdollisten muiden yhteisten kustannusten hoidosta päättää yhtiön hallitus tapauskohtaisesti.
Tilat ja materiaalit
- Keittiön kuvaus
- Tilava keittiö, johon mahtuu hyvin ruokaryhmä.
- Keittiön varusteet
- Jääkaappipakastin, astianpesukone, uuni, ja liesituuletin
- Liesi
- Keraaminen liesi
- Kylpyhuone
- Alakerroksessa on tilava kylpyhuone, josta on kulku saunaan. Varusteina suihku. Yläkerrassa on kylpyhuone. Varusteina wc-istuin, amme, suihku, allas/allaskaappi, peili ja lattialämmitys.
- Erillinen WC
- Alakerroksessa ja keskikerroksessa on erilliset wc:t. Alakerrassa on varusteina wc-istuin. Keskikerroksessa on varusteina wc-istuin, bidee-suihku, allas/allaskaappi ja peili.
- Makuuhuoneet
- Muokattavat huonetilat, joihin saa melko kätevästi tehtyä tarpeesta riippuen 4-5 makuuhuonetta sekä kellarikerrokseen tarvittaessa lisää erillisiä huoneita. Tällä hetkellä yläkerrassa on kaksi makuuhuonetta sekä keskikerroksessa yksi makuuhuone.
- Olohuone
- Valoisa olohuone keskikerroksessa, jonka yhteydessä käynti terassille.
- Kodinhoitohuone
- Alakerrassa on tilava kodinhoitohuone.
- Sauna
- Kyllä
- Kiuas
- Sähkökiuas
- Takka
- Varaava takka
Lisätiedot
- Asunnon kunto
- Tyydyttävä
- Näkymät
- Olohuoneesta ja keittiöstä on näkymät takapihalle etelään. Alakerran makuuhuoneesta on näkymät etupihalle pohjoiseen. Yläkerran makuuhuoneista on näkymät itään ja toisesta huoneesta länteen.
- Parveke
- Ulostyönnetty parveke
- Parvekkeen ilmansuunta
- Itä
- Terassi
- Kyllä
- Piha
- Vehreä suojaisa piha.
- Muut tilat
- Kellarikerroksessa runsaasti ns. aputilaa, varastotilaa sekä takkahuone. Makuuhuoneissa hyvin kiinteää kaappitilaa liukuovilla eroteltuna.
- Lisätietoa seinien pintamateriaaleista
- Maali ja kaakeli.
- Lisätietoa lattioiden pintamateriaaleista
- Puulattia, laatta, kaakeli, muovimatto
- Lisätietoa katon pintamateriaaleista
- Maali ja paneeli.
- Muut kaupan kannalta merkittävät tiedot
- Keittiön lattialämmityksessä on ongelmia. Loppukesästä 2024 havaittu kellarissa mustia muurahaisia, jotka karkotettiin ja ei ole nähty sen jälkeen. Noin kerran talvessa on nähty hiiri yläkerrassa.
Taloyhtiö ja kiinteistö
- Taloyhtiön nimi
- Asunto Oy Vaahteraveräjä
- Isännöitsijän nimi
- Sirkku Kuusava
- Isännöitsijän sähköposti
- [email protected]
- Isännöitsijän puhelin
- 0400385529
- Tontin pinta-ala
- 1 600 m²
- Tontin omistus
- Oma
- Käyttö/luovutusrajoitukset
- Yhtiöjärjestys 12 §.
- Rakennusmateriaali
- Betoni
- Lämmitysjärjestelmä
- Sähkö Kustannukset: 13659.98 kWh / vuosi 2xilmalämpöpumppu
- Ilmanvaihto
- Koneellinen poistoilmanvaihto
- Kattotyyppi
- Harjakatto
- Katemateriaali
- Tiili
- Lisätietoja kiinteistönhoidosta
- Asukkaat
- Kiinteistönhoidon lisätiedot
- Asukkaat itse hoitavat talkoilla kiinteistönhoidon.
- Lunastusoikeus osakkaille
- Kyllä
- Kohteesta on energiatodistus
- Ei lain edellyttämää energiatodistusta
- Lisätietoja liikenneyhteyksistä
- Linja-autopysäkki n. 110 m. Oulunkylän juna-asema n. 600 m. Pikaratikkalinjan 15 pysäkki n. 650 m.
- Palvelut
- S-market n. 710 m. Alepa n. 900 m. K-supermarket n. 1520 m. Oulunkylän terveysasema n. 660 m. Oulunkylän terveysaseman hammashoitola n. 660 m. Oulunkylän kirjasto n. 660 m
- Koulut
- Koskelan ala-aste n. 710 m. Oulunkylän ala-aste n. 1020 m.
- Lisätietoja huoneiston autopaikasta
- Asunnolle kuuluu n. 10 m2 autotalli.
- Taloyhtiön autopaikat
- Asunnolle kuuluu n. 10 m2 autotalli.
- Kaavatilanne
- Asemakaava
- Lisätiedot kaavoituksesta
- Helsingin kaupunki puh. 09 310 22111 tai https://kartta.hel.fi/. Oulunkylä, Oulunkyläntien ympäristön suunnitelman kuvaus: Oulunkyläntien varteen suunnitellaan uusia asuntoja. Lisätietoja antaa Arkkitehti Leena Holmila, p. (09) 310 42111. Oulunkylä, Oulunkylän keskustakorttelin suunnitelman kuvaus: Oulunkylän keskustaa uudistetaan. Tavoitteena on kehittää Oulunkylän keskustasta viihtyisä, monipuolinen ja vetovoimainen kaupunginosakeskus, jossa on helppo liikkua. Suunnitelmissa on asuntoja, liiketilaa katutasoon sekä uusi perhe- ja hyvinvointikeskus radan varteen. Alueen kirjastolle, nuorisotilalle ja työväenopistolle suunnitellaan uudet tilat. Lisäksi vanha asema on tarkoitus suojella. Lisätietoja antaa Sari Ollila, arkkitehti, p. (09) 310 37373.
- Kuntotarkastus tehty
- 06.11.2024
- Asbestikartoitus
- Ei
- Taloyhtiön kiinnitykset
- 0 €
- Taloyhtiön kiinnitysten päivämäärä
- Isännöitsijäntodistuksen päivämäärän mukainen
Tehdyt remontit
Terassin kattoikkunat uusittu 2024. Wc-istuimet ja vesikalusteiden uusinta 2024. Huleveden ohjattiin menemään kaupungin hulevesiverkkoon 2022. Ilmalämpöpumppu asennettu keskikerrokseen 2020. Yläkerran lattialämmityksen liittimet uusittu 2018. Puutarhan suunnittelu ja toteutus 2018. Kattorakenne korjattiin, pinnoite uusittiin ja lumiesteet lisättiin 2015. Ilmalämpöpumppu on asennettu kellariin 2015. Keskikerroksen pinnat maalattu 2015. Yläkerran kaksi makuuhuonetta yhdistettiin ja pintaremontti tehty 2008. Keittiön tasojen vaihto, jääkappi/liesi/astianpesukone uusittu 2008. Kellarin maalaus 2008. Ulkona puuosien maalaus 2008. Terassin puuosien lisäys ja maalaus 2008.
Tulevat remontit
Kunnossapitotarveselvitys 2025: Märkätilojen kunnostus 2025. Saunan uusiminen 2025. Kellarikomeron tuuletuksen parantaminen 2025. Kellarin portaiden uusiminen 2026. Ulkosähköjohtojen suojaaminen 2026. Ulkovuorauksen korjaus 2026. Sadeveden ohjaus, terassi 2026. Lukkojen uusinta 2026. Liesituulettimen uusiminen 2026. Ulkopokien maalaus 2026. Kuntotarkastus 2024 lisätutkimustarpeet: Salaojajärjestelmän videokuvaus ja painehuuhtelu tarvittaessa 0…1 vuoden aikajaksolla. Toimenpiteet salaojajärjestelmän tarkastusraportin suositusten mukaan.
