Pikkumäenkatu 26 B
37120, Sammalisto, Nokia
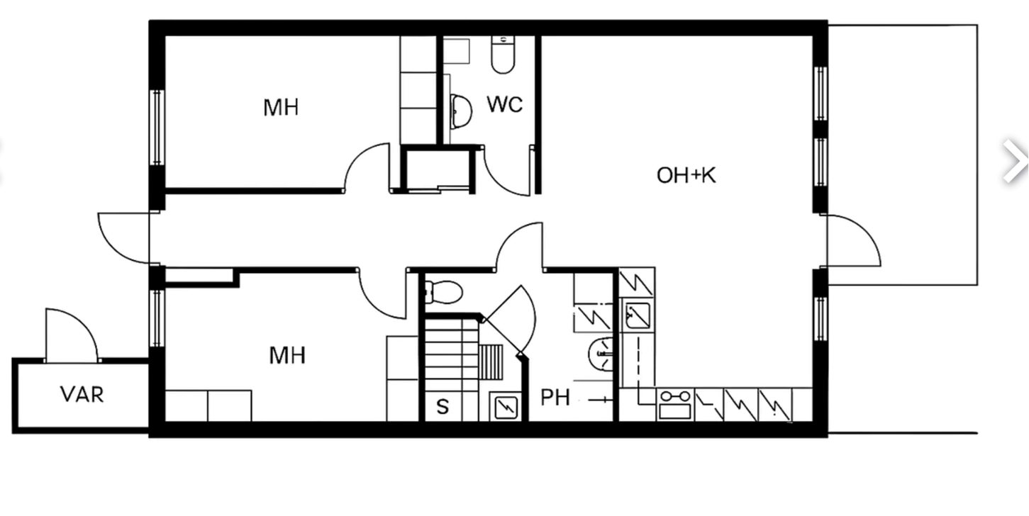
3h+k+wc+kph+s+var.+terassi
219 000 € (3 041,67 € / m²)
72 m²

Tätä asuntoa myy Antti Kulmanen, Kiinteistönvälittäjä LKV, KiLAT
Huoneistokeskus Oy | Tampere

Sijainti
Asuntoesittely
Tervetuloa tutustumaan tähän yhdessä tasossa olevaan kolmioon, jossa nykyaikainen asumismukavuus ja toimiva pohjaratkaisu kohtaavat. Vuonna 2017 valmistunut huoneisto on hyväkuntoinen – tänne on helppo asettua.
Olohuoneesta on kulku omalle terassille ja aidatulle, koilliseen avautuvalle pihalle. Yhtiön tontti rajoittuu kaavan mukaan virkistysalueeseen, joten ympäristö pysyy jatkossakin vehreänä ja rauhallisena. Oma sauna tarjoaa rentouttavat löylyt ja ilmalämpöpumppu pitää sisäilman miellyttävänä kesähelteillä.
Taloyhtiö lämpenee toimintavarmalla maalämmöllä, joka jakautuu asuntoihin vesikiertoisen lattialämmityksen kautta – miellyttävä lämpö jakautuu tasaisesti joka huoneeseen. Huoneistokohtainen koneellinen ilmanvaihto pitää sisäilman raikkaana ympäri vuoden. Yhtiö on alle 10 vuotta vanha, joten isoja remonttihuolia ei ole näköpiirissä. Pihat ovat asfaltoitu ja kokonaisuus on siisti ja hyvin hoidettu.
Arkea helpottavat kaksi autopaikkaa heti asunnon edessä sekä lisäksi oma tolppapaikka. Sisäänkäynnin vieressä sijaitseva varasto tuo kätevää säilytystilaa. Valokuituyhteys varmistaa nopeat nettiyhteydet ja sujuvat etätyöt.
Tämä tilava ja käytännöllinen koti sopii erinomaisesti esimerkiksi pienelle perheelle tai pariskunnalle, joka arvostaa helppoa asumista, rauhallista ympäristöä ja nykyaikaisia mukavuuksia.
Ota yhteyttä, jos kiinnostuit tästä kohteesta, niin kerron mielelläni lisää.
Pohjakuva

Perustiedot
- Sijainti
- Pikkumäenkatu 26 B, 37120, Sammalisto, Nokia
- Omistusmuoto
- Omistusasunto
- Huoneluku
- 3
- Asuinpinta-ala
- 72 m²
- Muu pinta-ala
- 0 m²
- Kokonaispinta-ala
- 72 m²
- Pinta-alan peruste
- Yhtiöjärjestyksen mukainen, Isännöitsijäntodistuksen mukainen
- Kohteen tyyppi
- Rivitalo
- Kerros
- 1 / 1
- Rakennusvuosi
- 2017
- Käyttöönottovuosi
- 2017
- Kohde myydään vuokrattuna
- Ei
- Vapautuminen
- Sopimuksen mukaan
Hinta ja kustannukset
- Velaton hinta
- 219 000 €
- Myyntihinta
- 219 000 €
- Yhtiövastike
- Hoitovastike 252 € / kk, Muu vastike 35,28 € / kk, Yhtiövastike yhteensä 287,28 € / kk
- Autopaikkamaksu
- 6 € / kk
- Vesimaksu
- 25 € / hlö
- Sähköliittymä siirtyy
- Kyllä
- Neliöhinta
- 3 041,67 € / m²
- Lisätietoja maksusta
- Lisätietoja vastikkeista: Varainsiirtovero 1,5 % velattomasta kauppahinnasta. Vesimaksuennakko 25eur/kk/hlö
Tilat ja materiaalit
- Keittiön lattiat
- Laminaatti
- Keittiön seinät
- Maali
- Keittiön varusteet
- Jääkaappi, astianpesukone, erillisuuni, erillinen pakastin, liesi, liesituuletin, ja kiinteät valaisimet
- Liesi
- Induktioliesi ja erillisuuni
- Kylpyhuoneen seinät
- Kaakeli
- Kylpyhuoneen lattiat
- Laatta
- Kylpyhuoneen varusteet
- Pesukoneliitäntä, suihkuseinä, allaskaappi, suihku, peilikaappi, wc-istuin, lattialämmitys, ja kiinteät valaisimet
- WC Lukumäärä
- 1
- WC:n lattiat
- Laatta
- WC:n seinät
- Kaakeli
- Makuuhuoneiden lukumäärä
- 2
- Makuuhuoneiden seinät
- Maali
- Makuuhuoneiden lattiat
- Laminaatti
- Olohuoneen seinät
- Maali
- Olohuoneen lattiat
- Laminaatti
- Sauna
- Kyllä
- Kiuas
- Sähkökiuas
Lisätiedot
- Asunnon kunto
- Hyvä
- Näkymät
- Takapihalle
- Terassi
- Kyllä
- Muuta kauppaan kuuluvaa
- Lisätietoja sisältyvistä varusteista: huoneistokohtainen ilmanvaihtokone, kaapistot, sälekaihtimet/rullaverhot
Taloyhtiö ja kiinteistö
- Taloyhtiön nimi
- As Oy Samulinvuori, Nokia
- Isännöitsijätoimisto
- TALOTILI OY
- Isännöitsijän sähköposti
- [email protected]
- Isännöitsijän puhelin
- 020 748 8359
- Taloyhtiön lisätiedot
- Tietoja lainojen pituuksista: Rahoituksen nimi : Po1 Asfaltti ja valaistus 2020 Rahoituksen kattaminen: Pääomavastike Lainan saldo: 5 007,68 eur (30.6.2025)
- Tontin pinta-ala
- 3 785 m²
- Tontin omistus
- Vuokra
- Maanvuokraaja
- Tontiki Oy
- Tontin vuosivuokra
- 10 905,23 €
- Vuokra-aika päättyy
- 30.06.2066
- Rakennusmateriaali
- Puu
- Lämmitysjärjestelmä
- Ilmalämpöpumppu Maalämpö
- Kattotyyppi
- Harjakatto
- Katemateriaali
- pelti
- Lisätietoja kiinteistönhoidosta
- Huoltoyhtiö
- Kiinteistönhoidon lisätiedot
- Nokian Kiinteistöhuolto Oy
- Kohteesta on energiatodistus
- Kyllä
- Energialuokka
- C2013
- Lisätietoja energiatodistuksesta
- Viimeinen voimassaolopäivä 26.6.2026
- Taloyhtiöön kuuluu
- Taloyhtiön omistuksessa tekninen tila 10m2 ja roskakatos/varasto.
- Lisätietoja huoneiston autopaikasta
- Yhtiöllä ulkopaikkoja sähköpistokkeella 10kpl
- Lisätietoja taloyhtiön autonsäilytyspaikoista
- Sähköpistokepaikka ja asunnon edessä 2 autopaikkaa.
- Sähköpistokepaikkoja
- 10 kpl
- Piha-autopaikkoja
- 20 kpl
- Kaavatilanne
- Osayleiskaava
- Lisätiedot kaavoituksesta
- Nokian kaupunki
- Taloyhtiön kiinnitykset
- 200 000 €
Tehdyt remontit
2020 Latausinfran kaapelointi
2020 Asfaltointi
2020 Pihavalaistus
2021 Katolle menevien tikkaiden kiipeilysuojat
2021 Lumiesteiden lisäys katolle
2021 Kiertovesipumpun vaihto
2021 Huoneistokohtainen ilmanvaihdon säätö ja ilmakanavien puhdistus
2022 Käyttövesivaraajan uusinta
2025 Aurinkovoimala, aurinkopaneelien asennus
Tulevat remontit
-Kymmenvuotistarkastus 2027-2028
-Muut normaalit kunnossapitotarpeet