Pulmussuontie 3
20300, Kastu, Turku
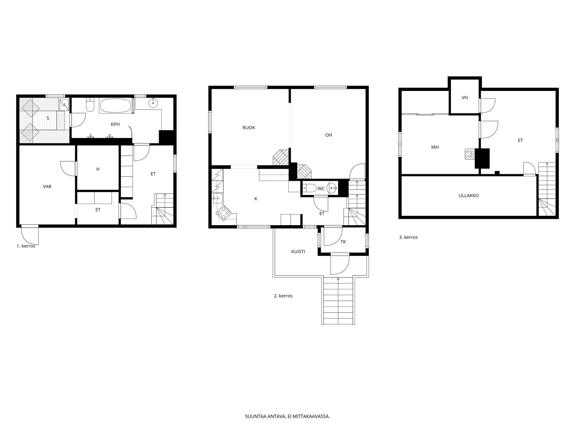
3h, k, aula, kph, s
157 000 €
95 m²

Tätä asuntoa myy Jari Otsola, Kiinteistönvälittäjä LKV, Auktorisoitu kiinteistöarvioija (AKA), asunnot, Kaupanvahvistaja
Huoneistokeskus Oy | Turku

Sijainti
Asuntoesittely
Omakotitalo suositulta Kastun alueelta etsii uutta omistajaa. Tämä 1940-luvun lopulla valmistunut, lämminhenkinen asuinrakennus sijaitsee tasamaastoisella ja vehreällä kaupungin 670 m2:n vuokratontilla, jossa on tilaa niin pihaleikeille kuin puutarhanhoidollekin.
Talon sijainti on erinomainen — keskustaan on vain lyhyt matka, ja kaikki arjen palvelut sekä kulkuyhteydet löytyvät lähietäisyydellä. Tämä kohde sopii loistavasti esimerkiksi lapsiperheelle tai rauhallista asuinaluetta arvostavalle pariskunnalle.
Pohjakuva

Perustiedot
- Sijainti
- Pulmussuontie 3, 20300, Kastu, Turku
- Huoneluku
- 3
- Asuinpinta-ala
- 95 m²
- Muu pinta-ala
- 35 m²
- Kokonaispinta-ala
- 130 m²
- Pinta-alan peruste
- Pinta-ala ei ole tarkistusmitattu ja todellinen pinta-ala voi olla suurempi tai pienempi, kuin ilmoitettu
- Lisätiedot pinta-alasta
- Ei tarkistusmitattu. Pinta-alat saattavat tämän ikäisissä kohteissa (rekisteröity ennen 01.01.1992) poiketa olennaisestikin asuinrakennusten nykyisten mittaustapojen ja standardien (SFS 5139) mukaan laskettavasta asuintilojen pinta-alasta. Pinta-ala voi siis olla edellä mainittua pienempi tai suurempi. Pinta-alatiedot on saatu Digi- ja väestötietoviraston rakennusluettelosta.
- Kohteen tyyppi
- Omakotitalo
- Kerros
- 3
- Rakennusvuosi
- 1949
- Käyttöönottovuosi
- 1949
- Kohde myydään vuokrattuna
- Ei
- Vapautuminen
- Sopimuksen mukaan
Hinta ja kustannukset
- Myyntihinta
- 157 000 €
- Sähköliittymä siirtyy
- Kyllä
- Neliöhinta
- 1 652,63 € / m²
- Lisätietoja maksusta
- Tietoja kiinteistöverosta: 65,92 (2024). Lisätietoja vastikkeista: Sähkönkulutustieto on vuodelta 2021 (1.1.-31.12.2021). Myöhemmistä vuosista ei ole asuttuna luotettavaa tietoa. Tontin vuosivuokra (viimeksi peritty) on 1372,87 €. (2024) Mahdollinen tontin lunastushinta (2025) on 51590 €. Varainsiirtovero 3 % kauppahinnasta. Kaupanvahvistajan palkkio 143 €.
Tilat ja materiaalit
- Keittiön lattiat
- Laminaatti
- Keittiön seinät
- Maali ja tapetti
- Keittiön varusteet
- Astianpesukone, liesituuletin, jääkaappipakastin, ja kiinteät valaisimet
- Liesi
- Keraaminen liesi
- Kylpyhuoneen seinät
- Kaakeli
- Kylpyhuoneen lattiat
- Laatta
- Kylpyhuoneen varusteet
- Poreamme (Ei ole ollut käytössä useaan vuoteen. Toimintakunnosta ei ole varmuutta.), suihku, ja lattialämmitys
- WC:n lattiat
- Laatta
- WC:n seinät
- Puu
- Makuuhuoneet
- Yläkerran makuuhuoneessa on Harvian puukamiina.
- Makuuhuoneiden lukumäärä
- 2
- Makuuhuoneiden seinät
- Maali
- Makuuhuoneiden lattiat
- Laminaatti
- Olohuone
- Olohuoneessa on kaakeluuni.
- Olohuoneen seinät
- Maali
- Olohuoneen lattiat
- Laminaatti
- Kodinhoitohuoneen varusteet
- Lattialämmitys, pesukoneliitäntä, pyykkikaapit, ja pöytätaso
- Kodinhoitohuoneen seinät
- Kaakeli
- Kodinhoitohuoneen lattiat
- Laatta
- Kodinhoitohuone
- Kodinhoitotila tilaavassa kylpyhuoneessa.
- Kohteen säilytystilat
- Kaapistot, ullakko ja kylmä autotalli talousrakennuksessa
- Sauna
- Kyllä
- Kiuas
- Sähkökiuas
Lisätiedot
- Asunnon kunto
- Tyydyttävä
- Lisätietoja kunnosta
- Kiinteistö on asumaton eikä myyjä ole tietoinen tarpeiston kunnosta. Ostajaa kehotetaan tarkistamaan kauppaan kuuluva tarpeisto sekä laitteet erityisen huolellisesti.
- Terassi
- Kyllä
- Muuta kauppaan kuuluvaa
- Lisätietoja sisältyvistä varusteista: istutukset, kaapistot, lämminvesivaraaja, sälekaihtimet/rullaverhot
Taloyhtiö ja kiinteistö
- Tontin pinta-ala
- 670 m²
- Tontin omistus
- Vuokra
- Tontin tyyppi
- Tasamaatontti
- Tontin myyntityyppi
- Koko tontti
- Maanvuokraaja
- Turun Kaupunki
- Tontin tiedot
- Tonttivuokra 2024.
- Tontin vuosivuokra
- 1 372,87 €
- Vuokra-aika päättyy
- 31.12.2055
- Rakennusmateriaali
- Puu
- Lämmitysjärjestelmä
- Puu Sähkö Tyyppi: sähköpatterilämmitys uuni/takka, sähköpatterilämmitys
- Ilmanvaihto
- Painovoimainen ilmanvaihto
- Vesijohto
- Kunnallisvesi
- Viemäröinti
- Kunnallinen viemäriverkosto
- Kattotyyppi
- Harjakatto
- Katemateriaali
- Tiili
- Rakennusoikeus
- 170
- Lisätietoa rakennusoikeudesta
- Kokonaisrakennusoikeus 170 k-m2. Asuinrakennuksen rakennusoikeus 140 k-m2 ja talousrakennus 30 k-m2.
- Kohteesta on energiatodistus
- Ei lain edellyttämää energiatodistusta
- Kaavatilanne
- Asemakaava
- Kaavoitustiedot
- Turun kaupunki (02) 330 000
- Kuntotutkimus tehty
- 27.09.2012
- Rakennusvaihe
- Valmis
- Asbestikartoitus
- Ei
- Lisätietoa asbestikartoituksesta
- Rakennus on valmistunut ennen vuotta 1994, eikä asbestikartoitusta ole tehty.
- Muut rakennukset
- Talousrakennus
- Lisätietoa muista rakennuksista
- Talousrakennus ei ole ollut käytössä eikä ole kaikilta osin käyttökelpoinen. Rakennuksen katto on uusittu. Katto on vuotanut aiemmin.
Tehdyt remontit
Edellinen omistaja on tehnyt rakennuksessa muutostöitä, joihin ei ole haettu rakennuslupia.
