Pussinperä 1
21200, Kerttula, Raisio
4h+k+s
155 000 €
136 m²

Tätä asuntoa myy Marko Satola, Myyntipäällikkö, LKV
Huoneistokeskus Oy | Turku

Sijainti
Asuntoesittely
Suositulta Kerttulan alueelta omatonttinen ja yksitasoinen Okt!
Hyvin pidetty ja hoidettu tiilivuorattu omakotitalo kolmella makuuhuoneella. Tilavassa olohuoneessa on suuret ikkunat, joista valoa tulvii sisään. Erillisessä takkahuoneessa on suuri varaava takka tuomassa lämpöä ja tunnelmaa. Muutaman vuoden sisällä talon vesikatto ränneineen on uusittu, samoin autotallin ovi, joka myös toimii nyt moottorilla.
Talossa on asuintilojen lisäksi runsaasti lämmintä tilaa varastotilojen, sekä autotallin muodossa.
Oma 610m2 suuruinen hoidettu tontti, jolla suojaisa terassi ilta-aurinkoon.
Kiinteistö sijaitsee rauhallisen päättyvän kadun varrella. Kohde on kuntokartoitettu, pyydä raportti välittäjältä.
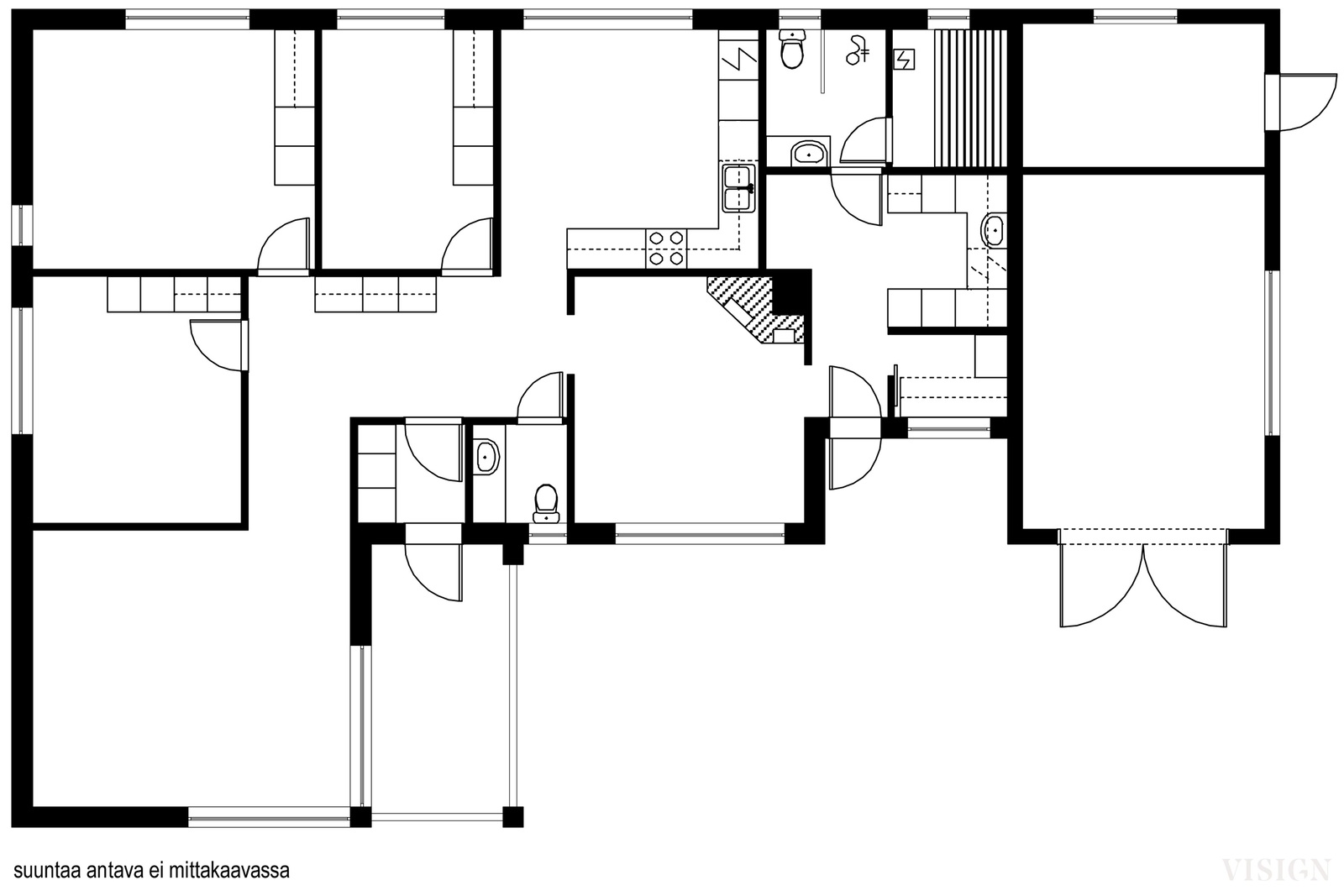
Pohjakuva

Perustiedot
- Sijainti
- Pussinperä 1, 21200, Kerttula, Raisio
- Huoneluku
- 4
- Asuinpinta-ala
- 136 m²
- Muu pinta-ala
- 0 m²
- Kokonaispinta-ala
- 136 m²
- Lisätiedot pinta-alasta
- Ilmoitettu pinta-ala on kerrosala. Pinta-alatieto saatu rakennuspiirustuksesta. Pinta-aloja ei ole tarkistusmitattu. Edellä mainittu pinta-ala saattaa tämän ikäisessä kohteessa poiketa olennaisestikin huoneiston nykyisten ja rakentamisaikaisen mittaustapojen ja standardien mukaan laskettavasta pinta-alasta.
- Kohteen tyyppi
- Omakotitalo
- Kerros
- 1
- Rakennusvuosi
- 1986
- Käyttöönottovuosi
- 1986
- Kohde myydään vuokrattuna
- Ei
- Vapautuminen
- Sopimuksen mukaan
Hinta ja kustannukset
Tilat ja materiaalit
- Keittiön lattiat
- Parketti
- Keittiön seinät
- Maali ja tapetti
- Keittiön varusteet
- Jääkaappi, liesi, liesituuletin, ja astianpesukone
- Liesi
- sähköliesi
- Kylpyhuoneen seinät
- Kaakeli
- Kylpyhuoneen lattiat
- Laatta
- Kylpyhuoneen varusteet
- Lattialämmitys, suihku, ja wc-istuin
- WC Lukumäärä
- 1
- WC:n lattiat
- Laatta
- WC:n seinät
- Kaakeli
- Makuuhuoneiden lukumäärä
- 3
- Makuuhuoneiden seinät
- Tapetti
- Makuuhuoneiden lattiat
- Parketti
- Olohuoneen seinät
- Tapetti
- Olohuoneen lattiat
- Parketti
- Kodinhoitohuoneen varusteet
- Lattialämmitys, pesukoneliitäntä, lattiakaivo, ja pesuallas
- Kodinhoitohuoneen seinät
- Kaakeli
- Kodinhoitohuoneen lattiat
- Laatta
- Säilytystilojen kuvaus
- Autotalli ja lämmin varasto.
- Kohteen säilytystilat
- Autotalli ja lämmin varasto.
- Sauna
- Kyllä
- Kiuas
- Sähkökiuas
- Takka
- Takka
Lisätiedot
- Asunnon kunto
- Tyydyttävä
- Muuta kauppaan kuuluvaa
- Lisätietoja sisältyvistä varusteista: kiinteät valaisimet
Taloyhtiö ja kiinteistö
- Tontin pinta-ala
- 610 m²
- Tontin omistus
- Oma
- Tontin tyyppi
- Tasamaatontti
- Tontin myyntityyppi
- Koko tontti
- Rakennusmateriaali
- Puu ja tiili
- Lämmitysjärjestelmä
- Sähkö Tyyppi: sähköinen lattialämmitys, sähköpatterilämmitys Puu sähköinen lattialämmitys, sähköpatterilämmitys
- Kattotyyppi
- harja
- Katemateriaali
- pelti
- Kohteesta on energiatodistus
- Kyllä
- Energialuokka
- D2018
- Tie perille
- Kyllä
- Kaavatilanne
- Asemakaava
- Kaavoitustiedot
- Raision kaupungin asemakaavaosasto puh. 02-4343111
- Kuntotutkimus tehty
- 01.01.2024
- Asbestikartoitus
- Ei