Pyyrytie 6 B
80160, Rantakylä, JOENSUU, Joensuu
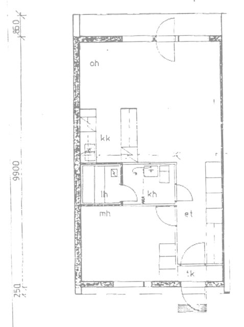
Tupakeittiö + makuuhuone + kph + s + osin katettua terassia
37 000 €
54 m²

Tätä asuntoa myy Petri Nieminen
LKV OGZ | Jokaisen Huoneistokauppa Oy *

Sijainti
Asuntoesittely
Rantakylässä paritaloasunto 57m² 2h+k+ph+s
Vuonna 1984 valmistuneessa rakennusalaltaan n. 57m² paritalohuoneistossa reilunkokoinen suojaisa oma piha-alue.
Pintamateriaaleina tässä tilaihmeessä on uusittu mm. parkettilattia tupakeittiössä. makuuhuoneessa muovimatto, seinät tapetti tai maali pinnoin, sisäkatot joko maalattu tai styrox levytys..
Kosteissa tiloissa 2016 uusitut muovipinnat, lämminvesinvaraaja uusittu, sauna uusittu v.2013 paneelipinnoille, kiuas uusittu v.2011.
Kiinteistö jaettu on hallinnanjakosopimuksella, tontti on ostettu omaksi, tasakaton muuttamiseksi harjakatoksi suunnitelmat ja kattoristikkokuvat jo olemassa.
Koti nyt vuokrattu.
Lisätiedot Nieminen 040 837 5508Perustiedot
- Sijainti
- Pyyrytie 6 B, 80160, Rantakylä, JOENSUU, Joensuu
- Huoneluku
- 2
- Asuinpinta-ala
- 54 m²
- Kokonaispinta-ala
- 54 m²
- Pinta-alan peruste
- Pinta-ala ei ole tarkistusmitattu ja todellinen pinta-ala voi olla suurempi tai pienempi, kuin ilmoitettu
- Lisätiedot pinta-alasta
- Ei tarkistusmitattu. Pinta-alat saattavat tämän ikäisissä kohteissa (rekisteröity ennen 01.01.1992) poiketa olennaisestikin asuinrakennusten nykyisten mittaustapojen ja standardien (SFS 5139) mukaan laskettavasta asuintilojen pinta-alasta. Pinta-ala voi siis olla edellä mainittua pienempi tai suurempi.
- Kohteen tyyppi
- Paritalo
- Kerros
- 1
- Rakennusvuosi
- 1984
- Lisätietoja rakennusvuodesta
- Asunto rakennettu 1984 alkuperäisesti talo rakennettu n.1970 luvulla
- Kohde myydään vuokrattuna
- Kyllä
- Vapautuminen
- Irtisanomisaika 6kk
- Lisätietoja vapautumisesta
- Vapautuminen sopimuksen mukaan vuokralaisella 6kk irtisanomisaika. Vuokra 500€/kk+ 15€/hlö vesi, lisäksi oma sähkösopimus.
Hinta ja kustannukset
- Velaton hinta
- 37 000 €
- Myyntihinta
- 37 000 €
- Kokonaissähkön kulutustiedot
- 7500 kWh / vuosi
- Keskimääräinen lämmityskustannus
- 75 € / kk
- Kiinteistövero (€/vuosi)
- 80,17 €
- Neliöhinta
- 685,19 € / m²
- Lisätietoja maksusta
- vesimaksu palveluhinnaston mukaan(kulutus) , koko kiinteistön kiinteistövero 320,69€ josta 1/4 osa.
Tilat ja materiaalit
- Keittiön kuvaus
- laakaovin ja läpianto kaapistoilla varustetussa keittiössä reilusti laminaattipintaista laskutilaa, varustuksena liesi+liesituuletin+jääkaappi.
- Keittiön lattiat
- Parketti
- Keittiön seinät
- Tapetti ja maali
- Keittiön varusteet
- Jääkaappi, liesi, ja liesituuletin
- Liesi
- Valurautaliesi
- Kylpyhuone
- Kylpyhuoneen muovipinnat uusittu 2016, varustuksena lämminvesivaraaja joka uusittu , pyykinpesukone liitäntä, suihku. (vesimittari)
- Kylpyhuoneen seinät
- Muovimatto
- Kylpyhuoneen lattiat
- Muovimatto
- Kylpyhuoneen varusteet
- WC-istuin, pesuallas, suihku, peilikaappi, kulma-allas, ja pesukoneliitäntä
- Makuuhuoneet
- etupihan puolella
- Makuuhuoneiden lukumäärä
- 1
- Makuuhuoneiden seinät
- Tapetti ja maali
- Makuuhuoneiden lattiat
- Parketti
- Olohuone
- Avara tupakeittiö tyyppinen
- Olohuoneen seinät
- Tapetti ja maali
- Olohuoneen lattiat
- Parketti
- Kohteen säilytystilat
- komerot ja kaapistot
- Sauna
- Kyllä
- Kiuas
- Sähkökiuas
- Saunan kuvaus
- paneelipinnoin
Lisätiedot
- Asunnon kunto
- Tyydyttävä
- Lisätietoja kunnosta
- Tule ja totea itse !!! katon korjaamisesta on valmiit suunnitelmat harjakatoksi muuttamiseksi luvat haettu.
- Parveke
- Ei parveketta
- Terassi
- Kyllä
- Lisätietoja terassista
- osin katettu
- Piha
- Tasainen pensasaidan ympäröimä
- Ranta
- Ei rantaa
- Hissi
- Ei
- Muut tilat
- Muuta kauppaan kuuluvaa: edellisellä asukkaalla sähkön kulutus ollut n.7500Kwh. Veden kulutus maksetaan kulutuksen mukaan paritalon puolikkaan 6A omistajalle. runsaasti kaappitilaa, valoisa keittiö ( suuri kattoikkuna ) kiinteistöllä on hallinnanjakosopimus. Pintamateriaalit: tupakeittiössä lattiassa uusittu parkettilattia, makuuhuoneessa muovimattoa, seinäpinnat huonetiloissa joko tapetoitu/maalattu, sisäkatot koristelevyä, kylpyhuoneen/saunan lattiat muovia samoin kph.n seinät, Kph.n ja saunan katto paneloitu.
- Lisätietoa seinien pintamateriaaleista
- Tapetti, maali, kosteat tilat muovipinnoin, sauna panelipinnoin
- Lisätietoa lattioiden pintamateriaaleista
- Parkettia olohuoneessa käytävällä, makuuhuoneessa muovimattoa.
- Lisätietoa katon pintamateriaaleista
- Sisäverhouslevyä/styrox/maali/ saunassa pesutiloissa paneelia.
- Kauppaan ei kuulu
- Polttopuut eivät kuulu kauppaan
- Muut kaupan kannalta merkittävät tiedot
- Sijainti Ruuhitien varressa.
Taloyhtiö ja kiinteistö
- Tontin pinta-ala
- 742 m²
- Tontin omistus
- Oma
- Tontin tyyppi
- Tasamaatontti
- Tontin myyntityyppi
- Määräosa
- Tontin tiedot
- Näkymät: tasainen. Maaperä/Kasvusto: aidattu nurmipiha.
- Rakennusmateriaali
- puu/betoni
- Lämmitysjärjestelmä
- suora sähkö jako seinäpattereilla. (oma mittari) Sähkö Tyyppi: Sähköpatterit Kustannukset: 7500 kWh / vuosi
- Ilmanvaihto
- Painovoimainen ilmanvaihto
- Vesijohto
- Kunnallisvesi
- Viemäröinti
- Kunnallinen viemäriverkosto
- Lisätietoja viemäristä
- Kunnan
- Kattotyyppi
- Tasakatto
- Katon kunto
- Teknisen käyttöiän mukainen, suunnitelmat harjakatoksi muuttamiseksi olemassa.
- Katemateriaali
- Huopa
- Lisätietoa rakennusoikeudesta
- Ao 1 e=0.3
- Rakennusoikeus e-luku
- 0.3
- Kohteesta on energiatodistus
- Kyllä
- Energialuokka
- H
- Lisätietoja energiatodistuksesta
- Kevennetyn energiatodistusmenettelyn mukainen todistus.
- Liikenneyhteydet
- Bussipysäkki lähellä, hyvät pyöräilytiet ja sujuvat yhteydet omalla autolla
- Tie perille
- Kyllä
- Kaavatilanne
- Asemakaava
- Kaavoitustiedot
- sitova tonttijako, yleiskaava.
- Rakennusvaihe
- Valmis
- Asbestikartoitus
- Ei
- Lisätietoa muista rakennuksista
- rakennusalaltaan n. 57m² paritalon toinen pääty, puurunko pintana kivirouhelevy, huoneistoala n.54m²
Tehdyt remontit
Parkettien asennukset, kylpyhuoneen muovipinnat uusittu 2016, varustuksena lämminvesivaraaja joka uusittu , pyykinpesukone liitäntä,suihku. (vesimittari)
