Raatetie 6 B
01350, Hiekkaharju, Simonkylä, Vantaa
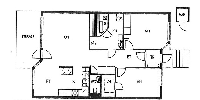
3h,k,s,kh,wc,vh
229 000 € (2 974,03 € / m²)
77 m²

Tätä asuntoa myy Juha Remes, Myyntipäällikkö, LKV
Huoneistokeskus Oy | Vantaa

Sijainti
Asuntoesittely
Erinomaisella sijainnilla puistoon rajoittuvalla tontilla hyvin hoidetussa taloyhtiössä tyylikäs koti. Läheisyydestä löytyvät sekä vehreät puistoalueet ulkoiluun, urheilupuistot ja kentät eri harrastuksiin sekä koulut ja päiväkodit. Hyvät kulkuyhteydet bussilla ja myös junalla.
Yksitasoinen siisti koti sopii myös varttuneemmalle väelle. Huoneisto vapautuu nopeasti ja isot päivitykset sisätiloihin on jo tehty. Saunaosasto, erillinen wc ja myös keittiö on uudistettu. Ikkunoista on hienot näkymät molemmin puolin taloa. Autopaikka sähkötolpalla ja lämmin varasto kuuluvat huoneistolle.
Huomionarvoista ovat edulliset asumiskulut, pieni yhtiövastike ja vesimaksu oman kulutuksen mukaan. Yhtiössä ei ole suunnitteilla lähiaikoina isompia kunnostuksia.
Esittelyt sovittavissa joustavasti!
Perustiedot
- Sijainti
- Raatetie 6 B, 01350, Hiekkaharju, Simonkylä, Vantaa
- Omistusmuoto
- Omistusasunto
- Huoneluku
- 3
- Asuinpinta-ala
- 77 m²
- Kokonaispinta-ala
- 77 m²
- Pinta-alan peruste
- Yhtiöjärjestyksen mukainen, Isännöitsijäntodistuksen mukainen
- Lisätiedot pinta-alasta
- Pinta-aloja ei ole tarkistusmitattu.
- Kohteen tyyppi
- Rivitalo
- Kerros
- 1 / 1
- Rakennusvuosi
- 1987
- Käyttöönottovuosi
- 1987
- Kohde myydään vuokrattuna
- Ei
- Vapautuminen
- Heti
Hinta ja kustannukset
- Velaton hinta
- 229 000 €
- Myyntihinta
- 229 000 €
- Velkaosuus
- 0 €
- Yhtiövastike
- Hoitovastike 85 € / kk, Yhtiövastike yhteensä 85 € / kk
- Sähköliittymä siirtyy
- Kyllä
- Neliöhinta
- 2 974,03 € / m²
- Lisätietoja maksusta
- Lisätietoja vastikkeista: Vesimaksu maksetaan 4 krt vuodessa kulutuksen mukaan. Kokonaissähkölasku on ollut keskimäärin n. 100 euroa kuukaudessa
Tilat ja materiaalit
- Keittiön kuvaus
- Keittiö on uusittu 2010.
- Keittiön lattiat
- Parketti
- Keittiön varusteet
- Jääkaappipakastin, liesituuletin, astianpesukone, erillisuuni, ja liesitaso
- Liesi
- erillisuuni liesitaso
- Kylpyhuone
- Kylpyhuone/sauna on uusittu 2009/2010.
- Kylpyhuoneen seinät
- Kaakeli
- Kylpyhuoneen lattiat
- Laatta
- Kylpyhuoneen varusteet
- Lattialämmitys, peilikaappi, suihku, ja pesukoneliitäntä
- Erillinen WC
- WC on uusittu 2016.
- WC:n lattiat
- Laatta
- WC:n seinät
- Kaakeli
- Makuuhuoneiden lukumäärä
- 2
- Makuuhuoneiden lattiat
- Parketti
- Olohuoneen lattiat
- Parketti
- Säilytystilojen kuvaus
- Siistikuntoinen, patterilämmitys.
- Kohteen säilytystilat
- Siistikuntoinen patterilämmitys.
- Sauna
- Kyllä
- Kiuas
- Sähkökiuas
Lisätiedot
- Asunnon kunto
- Hyvä
- Lisätietoja kunnosta
- Ulkovarasto on eristetty ja kunnostettu 2012.
- Näkymät
- Olohuoneesta ja keittiöstä näkymät vehreään ja suojaisaan metsikköön / puistoalueelle.
- Terassi
- Kyllä
- Muuta kauppaan kuuluvaa
- Lisätietoja sisältyvistä varusteista: kaapistot, lämminvesivaraaja, sälekaihtimet/rullaverhot
Taloyhtiö ja kiinteistö
- Taloyhtiön nimi
- Asunto Oy Harajuurenkuja
- Isännöitsijän nimi
- Pasi Jääskeläinen
- Tontin pinta-ala
- 1 061 m²
- Tontin omistus
- Oma
- Rakennusmateriaali
- Puu ja tiili
- Lämmitysjärjestelmä
- Sähkö
- Kattotyyppi
- Harja
- Katemateriaali
- Tiili
- Lisätietoja kiinteistönhoidosta
- Asukkaat
- Taloyhtiössä on
- Huoneistokohtaiset varastot
- Lisätietoja energiatodistuksesta
- Aiemman energiatodistuksen voimassaoloaika on umpeutunut 20.11.2023.
- Lisätietoja huoneiston autopaikasta
- Autopaikkojen sähkötolpista on mahdollisuus ladata autoa, asukkaat maksavat kulutuksen mukaan sähkötolpan käytöstä.
- Sähköpistokepaikkoja
- 3 kpl
- Kaavatilanne
- Asemakaava
- Lisätiedot kaavoituksesta
- Kaavoitus asiakaspalvelu 09 83911.
- Asbestikartoitus
- Ei
- Lisätietoa asbestikartoituksesta
- Asbestikartoitusta ei ole tehty.
Tehdyt remontit
Pihan asfaltti uusittu 2005, kylpyhuoneet on uusittu 2009, viemäreiden kannakointi 2013.
