Rautatienkatu 9 as 3
30100, Kuhala, Forssa
2h+kt+s ja autokatos 14
102 000 € (2 400 € / m²)
42,5 m²

Tätä asuntoa myy Forssan Kiinteistökauppiaat Oy
Sijainti
Asuntoesittely
Tämä 2014 rakennettu City-kaksio sijaitsee Rautatienkadun varrella, vain kävelymatkan päässä keskustan palveluista. Asunnossa on toimiva pohjaratkaisu, jossa olohuone ja keittiö yhdistyvät saumattomasti. Olohuoneesta on käynti tilavalle lasitetulle parvekkeelle, josta avautuu näkymä Rautatienkadulle.
Keittiössä on vaaleat kaapistot ja kodinkoneina astianpesukone ja jääkaappi/pakastin. Makuuhuoneessa on kaapistot ja laatoitetussa kylpyhuoneessa on tilaa myös pyykkikoneelle. Asunnon oma sauna tuo arkeen ripauksen luksusta.
Asunto Oy Forssan Hellaanpuisto on hyvin hoidettu taloyhtiö ja tuleville vuosille ei ole suunniteltu suuria remontteja. Asuntoon kuuluu myös oma autokatospaikka, joka sisältyy hintaan.
Tämä asunto on loistava valinta niin ensiasunnoksi kuin sijoituskohteeksikin ja mikseipä pienelle perheellekin.
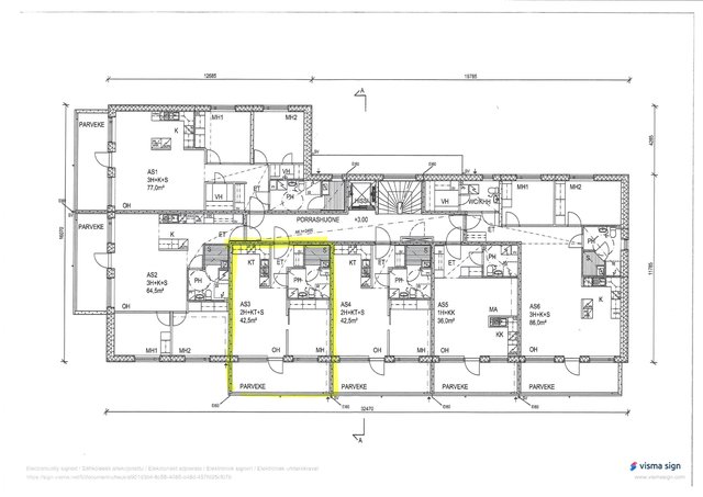
Pohjakuva

Perustiedot
- Sijainti
- Rautatienkatu 9 as 3, 30100, Kuhala, Forssa
- Omistusmuoto
- Omistusasunto
- Huoneluku
- 2
- Asuinpinta-ala
- 42,5 m²
- Kokonaispinta-ala
- 42,5 m²
- Pinta-alan peruste
- Isännöitsijäntodistuksen mukainen, Yhtiöjärjestyksen mukainen, (Pinta-ala ei ole tarkistusmitattu ja todellinen pinta-ala voi olla suurempi tai pienempi, kuin ilmoitettu)
- Lisätiedot pinta-alasta
- Autokatoksen numero 14 pinta-ala on 15 m²
- Kohteen tyyppi
- Kerrostalo
- Kerros
- 2 / 6
- Rakennusvuosi
- 2014
- Käyttöönottovuosi
- 2014
- Kohde myydään vuokrattuna
- Ei
- Vapautuminen
- Heti
Tilat ja materiaalit
- Keittiön kuvaus
- Kiva L-mallinen keittiötila on olohuoneen jatkeena. Vaaleat kaapistot, sähköliesi, jääkaappi/pakastin ja astianpesukone.
- Kylpyhuone
- Laatoitettu pesuhuone, jossa vessa, suihku ja paikka pyykkikoneelle.
- Makuuhuoneet
- Makuuhuoneessa kaapistot ja yksi kaapinovi puuttuu. Eikä haittaa, vaikka seinätkin saisivat uuden värin.
- Makuuhuoneiden lukumäärä
- 1
- Olohuone
- Olohuoneesta kulku tilavalle lasitetulle parvekkeelle. Seinäpinnat kaipaavat päivitystä.
- Säilytystilojen kuvaus
- Taloyhtiössä ulkoiluvälinevarasto ja väestönsuoja.
- Kohteen säilytystilat
- Huoneistokohtainen varasto
- Sauna
- Kyllä
- Saunan kuvaus
- Paneloitu sauna, jossa sähkölämmitteinen kiuas.
Lisätiedot
- Asunnon kunto
- Tyydyttävä
- Näkymät
- Rautatienkadulle
- Parveke
- Lasitettu parveke
- Hissi
- Kyllä
- Muut tilat
- Autokatos, numero 14 sisältyy kauppaan (3000€.)
Taloyhtiö ja kiinteistö
- Taloyhtiön nimi
- Asunto Oy Forssan Hellaanpuisto
- Isännöitsijätoimisto
- OP Koti Lounaismaa Oy
- Isännöitsijän nimi
- Markku Yrjölä
- Isännöitsijän sähköposti
- [email protected]
- Isännöitsijän puhelin
- 010 731 7924
- Tontin pinta-ala
- 2 319 m²
- Tontin omistus
- Oma
- Rakennusmateriaali
- Betoni
- Lämmitysjärjestelmä
- Kaukolämpö Ilmalämpöpumppu
- Ilmanvaihto
- Huoneistokohtainen ilmanvaihto.
- Vesijohto
- Kunnallisvesi
- Viemäröinti
- Kunnallinen viemäriverkosto
- Kattotyyppi
- Harjakatto
- Katemateriaali
- Huopa
- Lisätietoja kiinteistönhoidosta
- Huoltoyhtiö
- Kiinteistönhoidon lisätiedot
- Talohuolto Pajuniemi Oy [email protected] Kuhalankatu 22, 30420 Forssa
- Taloyhtiössä on
- Kaapeli-tv (Kaapeli-tv DVB-C), kellarikomero, urheiluvälinevarasto, ja valokuituverkko (Lounea laajakaista 100/50 Mbit)
- Lunastusoikeus yhtiöllä
- Ei
- Lunastusoikeus osakkaille
- Ei
- Kohteesta on energiatodistus
- Kyllä
- Energialuokka
- B2018
- Energiatodistuksen voimassaolo
- 14.12.2032
- Paikallistiedot
- Rautatienkadun varressa, lähellä liikenneympyrää.
- Lisätietoja huoneiston autopaikasta
- Autokatos numero 14 omalla osakekirjallaan.
- Autotallit
- 9
- Autokatokset
- 10
- Piha-autopaikkoja
- 14 kpl
- Taloyhtiöllä sauna
- Ei
- Kaavatilanne
- Asemakaava
- Lisätietoja kunnossapitotarveselvityksestä
- Kunnossapitotarveselvitys 2025-2029: Ei suoritettavia peruskorjauksia seuraavalle viidelle vuodelle.
- Asbestikartoitus
- Ei
Tehdyt remontit
2018 Etäluettavat vesimittarit
2019 Pesuhuoneiden pistorasiat vaihdettu
2020 Verkkopellien asennus
2021 Palovaroittimien patterit vaihdettu ryhmänä
2023 10 vuotis-kuntoarvio
2023 Päädyn elementtisaumojen uusinta
2023 Yhden putkilinjan siirto kylpyhuoneesta makuuhuoneeseen
2024 Palovaroittimet, parvekelasi huolto, Iv-puhdistus ja säätö, viemäreiden kuvaus ja puhdistus
Tulevat remontit
Kunnossapitotarveselvitys seuraavalle 5 vuodelle:
Ei suoritettavia peruskorjauksia seuraavalle viidelle vuodelle.
