Rentolantie 10
90440, Ristisuo, Kempele
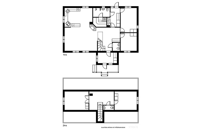
4mh,oh,k,khh,kph/s,wc(2kpl),yläk.aula
259 000 €
150 m²

Tätä asuntoa myy Eija Tyybäkinoja, Ylempi kiinteistönvälittäjä, YKV, LKV, kaupanvahvistaja
Huoneistokeskus Oy | Oulu

Sijainti
Asuntoesittely
Maalaisromanttinen koti rauhallisella, mutta keskeisellä sijainnilla
Tämä hurmaava koti sijaitsee rauhallisella ja lapsiperheiden suosimalla alueella, jossa kaikki tarvittava on lähellä. Päiväkoti on tien toisella puolella ja koulut kätevästi lähistöllä. Alueella on myös erinomaiset liikenneyhteydet, juna-asema on lyhyen kävelymatkan päässä ja sieltä pääsee helposti Oulun keskustaan.
Talon tilava ja suojaisa pihapiiri tarjoaa täydellisen paikan rentoutua ja nauttia ulkoilmasta perheen kesken. Koti huokuu ihanaa maalaisromanttista tunnelmaa, joka tekee siitä erityisen kutsuvan ja viihtyisän.
Talossa on tilaa isollekkin perheelle, yläkerrassa on kaksi tilavaa makuuhuonetta sekä aula, alakerrasta löytyy myös kaksi makuuhuonetta. Keittiön ja olohuoneen katseenvangitsijana ja lämmöntuojana on jykevä varaava takka.
Lisäksi autokatos jonka yhteydessä on varasto, sekä puuliiteri.
Tervetuloa tutustumaan tähän upeaan kotiin, joka tarjoaa rauhaa, tilaa ja käytännöllisyyttä perheen arkeen!
Pohjakuva

Perustiedot
- Sijainti
- Rentolantie 10, 90440, Ristisuo, Kempele
- Huoneluku
- 5
- Asuinpinta-ala
- 150 m²
- Muu pinta-ala
- 18,5 m²
- Kokonaispinta-ala
- 174 m²
- Lisätiedot pinta-alasta
- Kokonaisala/kerrosala 174 m²+ 8 m² (Ulkovarasto 8 m²), lato 10,5 m2 Pinta-alat on saatu rakennuspiirroksista.
- Kohteen tyyppi
- Omakotitalo
- Kerros
- 2
- Rakennusvuosi
- 2000
- Käyttöönottovuosi
- 2000
- Kohde myydään vuokrattuna
- Ei
- Vapautuminen
- Sopimuksen mukaan
Hinta ja kustannukset
- Myyntihinta
- 259 000 €
- Kokonaissähkön kulutustiedot
- 21905 kWh / vuosi
- Kiinteistövero (€/vuosi)
- 563 €
- Sähköliittymä siirtyy
- Kyllä
- Neliöhinta
- 1 726,67 € / m²
- Lisätietoja maksusta
- Tietoja kiinteistöverosta: 563e. Lisätietoja vastikkeista: Sähkökulut/ lämmitys+käyttösähkö n. 2200e/v Vesimaksut n. 350e/v Varainsiirtovero 3%.
Tilat ja materiaalit
- Keittiön kuvaus
- Seinät osin tiiliseinä, paneli ja tapetti. Keittiössä massiivipuutasot.
- Keittiön lattiat
- Laatta
- Keittiön seinät
- Tapetti ja puu
- Keittiön varusteet
- Erillisuuni, jääkaappi, liesituuletin, astianpesukone, ja kiinteät valaisimet
- Liesi
- Keraaminen liesi ja erillisuuni
- Kylpyhuoneen seinät
- Kaakeli
- Kylpyhuoneen lattiat
- Laatta
- Kylpyhuoneen varusteet
- Lattialämmitys, wc-istuin, allaskaappi, ja suihku
- WC Lukumäärä
- 2
- Erillinen WC
- kph:ssa myös wc-pönttö
- WC:n lattiat
- Laatta
- WC:n seinät
- Tapetti ja puu
- Makuuhuoneet
- Alakerran makuuhuoneiden lattiat muovia, yläkerran makuuhuoneet parkettia.
- Makuuhuoneiden lukumäärä
- 4
- Makuuhuoneiden seinät
- Tapetti
- Makuuhuoneiden lattiat
- Parketti ja muovimatto
- Olohuone
- Mosaiikkiparketti Osin paneliseinät ja tapetti
- Olohuoneen seinät
- Tapetti ja puu
- Olohuoneen lattiat
- Parketti
- Kodinhoitohuoneen varusteet
- Lattialämmitys, keskuspölynimuri, ja pesukoneliitäntä
- Kodinhoitohuoneen seinät
- Maali
- Kodinhoitohuoneen lattiat
- Laatta
- Kohteen säilytystilat
- Ulkovarasto ja seinäkaapit
- Sauna
- Kyllä
- Kiuas
- Sähkökiuas
- Takka
- Takka
Lisätiedot
- Asunnon kunto
- Hyvä
- Lisätietoa lattioiden pintamateriaaleista
- Alakerrassa varaava lattialämmitys(sähkölämmityskaapelit alakerran lattioissa) yläkerrassa patterilämmitys.
- Muuta kauppaan kuuluvaa
- Lisätietoja sisältyvistä varusteista: keskuspölynimuri, lämminvesivaraaja, sälekaihtimet/rullaverhot
Taloyhtiö ja kiinteistö
- Tontin pinta-ala
- 1 223 m²
- Tontin omistus
- Oma
- Tontin tyyppi
- Tasamaatontti
- Tontin myyntityyppi
- Koko tontti
- Käyttö/luovutusrajoitukset
- Erillispientalojen korttelilaue 1ap/50 ktym2 AO e=0,25
- Rakennusmateriaali
- Puu
- Lämmitysjärjestelmä
- Sähkö Tyyppi: sähköinen lattialämmitys, sähköpatterilämmitys Kustannukset: 21905 kWh / vuosi Puu uuni/takka, sähköpatterilämmitys, sähköinen lattialämmitys
- Ilmanvaihto
- Koneellinen ilmanvaihto ja lto
- Vesijohto
- Kunnallisvesi
- Lisätietoja vesiputkesta
- Kempeleen vesihuolto
- Viemäröinti
- Kunnallinen viemäriverkosto
- Kattotyyppi
- Harjakatto
- Katemateriaali
- Peltikate
- Rakennusoikeus
- 305
- Lisätietoa rakennusoikeudesta
- Kempeleen kunta/rakennusvalvonta
- Rakennusoikeus e-luku
- 0.25
- Kohteesta on energiatodistus
- Kyllä
- Energialuokka
- D2018
- Energiatodistuksen voimassaolo
- 19.11.2034
- Lisätietoja energiatodistuksesta
- et-luku 211 voimassa 19.11.2034
- Lisätietoja liikenneyhteyksistä
- Juna-asemalle n. 300m Bussipysäkille n. 500m
- Tie perille
- Kyllä
- Palvelut
- Kaupat n. 1,5 km Zeppelin n. 1,5 km Ostoskeskus n. 0,5 km
- Koulut
- Ylikylän koulu, Kirkonkylän koulu
- Kaavatilanne
- Yleiskaava ja asemakaava
- Kaavoitustiedot
- Kempeleen kunta 08-5587 2200
- Muut rakennukset
- Autokatos, liiteri ja varasto
- Lisätietoa muista rakennuksista
- Ulkovarasto (8m²) jonka yhteydessä autokatos. Erillinen puuliiteri.