Reppurinkatu 2 C
15240, Mukkula, Lahti
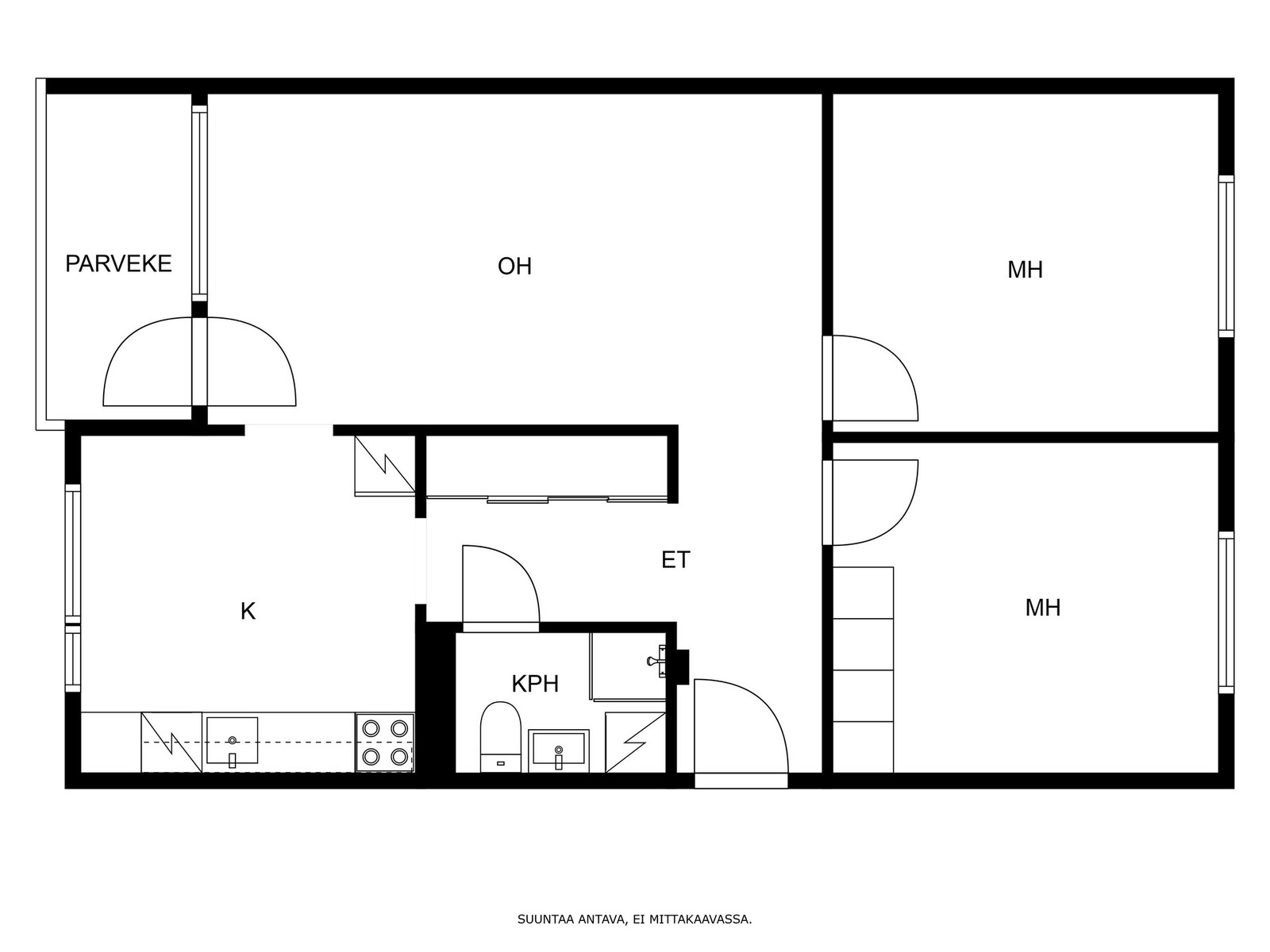
3h,k,kph/wc,et,p
45 000 € (629,37 € / m²)
71,5 m²

Tätä asuntoa myy Antti Lavonen, Kiinteistönvälittäjä, LKV, kaupanvahvistaja
Huoneistokeskus Oy | Lahti

Sijainti
Asuntoesittely
Valoisa läpitalon kolmio hyvien palveluiden äärellä Mukkulan ytimessä. Asunnon kylpyhuone on uusittu putkiremonttien yhteydessä 2018-2019. Muilta osin asunto peruskuntoinen, mutta siisti. Taloyhtiössä on tehty paljon remontteja vuosien varrella. Parveke avautuu valoisimpaan mahdolliseen suuntaan eli etelä-lounaaseen. Päiväkoti ja koulut ovat vieressä, kuten myös kaupat ja monipuoliset liikuntamahdollisuudet sekä upea Mukkulan kartanon hiekkaranta Vesijärven rannassa. Varaa esittelyaikasi kohteen välittäjältä.
Pohjakuva

Perustiedot
- Sijainti
- Reppurinkatu 2 C, 15240, Mukkula, Lahti
- Omistusmuoto
- Omistusasunto
- Huoneluku
- 3
- Asuinpinta-ala
- 71,5 m²
- Muu pinta-ala
- 0 m²
- Kokonaispinta-ala
- 71,5 m²
- Pinta-alan peruste
- Yhtiöjärjestyksen mukainen, Isännöitsijäntodistuksen mukainen
- Lisätiedot pinta-alasta
- Yhtiön huoneistojen pinta-aloja ei ole tarkistusmitattu, tämän vuoksi pinta-alat saattavat poiketa olennaisestikin nykystandardien mukaan laskettavasta huoneistoalasta.
- Kohteen tyyppi
- Kerrostalo
- Kerros
- 2 / 3
- Rakennusvuosi
- 1969
- Käyttöönottovuosi
- 1969
- Kohde myydään vuokrattuna
- Ei
- Vapautuminen
- n. 2 kk / sop.muk.
Hinta ja kustannukset
- Velaton hinta
- 45 000 €
- Myyntihinta
- 45 000 €
- Yhtiövastike
- Hoitovastike 310,96 € / kk, Yhtiövastike yhteensä 310,96 € / kk
- Autopaikkamaksu
- 12 € / kk
- Saunamaksu
- 10 € / kk
- Vesimaksu
- 20 Kulutuksen mukaan
- Neliöhinta
- 629,37 € / m²
- Lisätietoja maksusta
- Lisätietoja vastikkeista: Vesimaksuennakko 20 €/hlö/kk, tasataan kulutuksen mukaan kylmä vesi 4,18 €/m3, lämmin vesi 9,11 €/m3 Autopistokepaikka 12 €/kk, autokatos 27 €/kk Taloyhtiön osakeluettelo on siirretty huoneistotietojärjestelmään. Ostajan tulee hakea omistusoikeuden rekisteröintiä Maanmittauslaitokselta. Ostaja vastaa tällöin omistusoikeuden rekisteröintikustannuksista, mahdollisista osakekirjan mitätöinnistä aiheutuvista kustannuksista sekä mahdollisesta hakemusmaksun korotuksesta. Ostajan pankin ostajalta mahdollisesti veloittamista kaupantekoon, omistusoikeuden rekisteröintiin tai panttausmerkinnän hakemiseen liittyvistä kustannuksista ostaja saa tiedon pankiltaan. Osakekirja toimitetaan siirtomerkinnällä varustettuna Maanmittauslaitokselle maksujen jälkeen allekirjoitusprosessissa annettujen valtuutusten mukaisesti. Siirtomerkitty osakekirja toimii myyjän suostumuksena omistuksen rekisteröinnille ostajan nimiin Maanmittauslaitoksen huoneistotietojärjestelmään. Ostaja on tietoinen siitä, että hänen tulee hakea omistusoikeutensa rekisteröintiä huoneistotietojärjestelmään Maanmittauslaitokselta kahden kuukauden kuluessa kauppakirjan allekirjoituksesta. Samalla paperinen osakekirja mitätöidään Maanmittauslaitoksen toimesta. DIAS-kaupassa ostajan asiamiehenä omistusoikeuden rekisteröinnissä toimii ostajan pankki
Tilat ja materiaalit
- Keittiön lattiat
- Muovimatto
- Keittiön seinät
- Maali
- Keittiön varusteet
- Liesi, jääkaappipakastin, ja varattu paikka astianpesukoneelle, kiinteät valaisimet
- Liesi
- sähköliesi
- Kylpyhuone
- Kylpyhuone on kuin uusi. Modernit värit ja korkeatasoiset välineet. Katto paneloitu
- Kylpyhuoneen seinät
- Kaakeli
- Kylpyhuoneen lattiat
- Laatta
- Kylpyhuoneen varusteet
- WC-istuin, lattialämmitys, allaskaappi, peilikaappi, pesukoneliitäntä, suihkukaappi, suihku, ja asennettuja erikoisvarusteita, kiinteät valaisimet
- Makuuhuoneiden lukumäärä
- 2
- Makuuhuoneiden seinät
- Tapetti
- Makuuhuoneiden lattiat
- Muovimatto
- Olohuoneen seinät
- Tapetti
- Olohuoneen lattiat
- Muovimatto
Lisätiedot
- Asunnon kunto
- Tyydyttävä
- Parveke
- On parveke
- Parvekkeen ilmansuunta
- Etelä
- Muuta kauppaan kuuluvaa
- Lisätietoja sisältyvistä varusteista: kiinteät valaisimet, sälekaihtimet/rullaverhot
Taloyhtiö ja kiinteistö
- Taloyhtiön nimi
- Asunto Oy Mukkulan City
- Isännöitsijätoimisto
- Oiva-isännöinti
- Isännöitsijän nimi
- Anssi Saarinen
- Isännöitsijän sähköposti
- [email protected]
- Isännöitsijän puhelin
- 010 739 3388
- Tuotot
- 17706
- Tontin pinta-ala
- 33 315 m²
- Tontin omistus
- Vuokra
- Maanvuokraaja
- Lahden Kaupunki
- Tontin vuosivuokra
- 53 100 €
- Vuokra-aika päättyy
- 31.05.2030
- Rakennusmateriaali
- Betoni
- Lämmitysjärjestelmä
- Kaukolämpö
- Kattotyyppi
- loiva harjakatto
- Katemateriaali
- huopa
- Lisätietoja kiinteistönhoidosta
- Huoltoyhtiö
- Kiinteistönhoidon lisätiedot
- Huoltoliike Totopro Oy
- Taloyhtiössä on
- Pesutupa, kaapeli-tv, urheiluvälinevarasto, väestönsuoja, ja huoneistokohtaiset varastot, sauna
- Kohteesta on energiatodistus
- Kyllä
- Energialuokka
- D2018
- Lisätietoja liikenneyhteyksistä
- Linjat 22 ja 1K Matkakeskus n. 5km, Lahden tori 4,5 km
- Palvelut
- S-Market Mukkula 150m, Holman Prisma 2 km R-Kioski 100m Kirjasto 300m Pääterveysasema 5 km
- Koulut
- Mukkulan peruskoulu (1-9 luokat) 300m
- Lisätietoja taloyhtiön autonsäilytyspaikoista
- Toteutuneet autopaikat 103, Liikehuoneisto = Autotallit 33 kpl, 629m2, Yhtiön hallussa 1 autotalli, 18 m2
- Autotallit
- 33
- Autokatokset
- 16
- Piha-autopaikkoja
- 49 kpl
- Taloyhtiöllä sauna
- Kyllä
- Kaavatilanne
- Asemakaava
- Lisätiedot kaavoituksesta
- Lahden kaupunki, p. 03 814 2355
- Asbestikartoitus
- Ei
- Lisätietoa asbestikartoituksesta
- Rakennus on valmistunut ennen vuotta 1995. Rakennuksessa eikä huoneistossa ole suoritettu asbestikartoitusta.
- Taloyhtiön kiinnitykset
- 9 336 438 €
Tehdyt remontit
1997 julkisivu-, katto- ja parvekeremontti, (parv.lasit yksityisiä)
2001 saunaremontti: talo 3
2002 käyttövesisaneeraus
2002 lämmönjakohuoneet
2002 alajakokeskus
2002 lämmitysjärjestelmän tasapainotus
2006 saunasaneeraus: talot 2 ja 4
2008 jätekatokset: 3 kpl
2009 Pihasaneeraus: talo 2
2012 ulko-ovien uusiminen
2012 lukituksen uusiminen (Abloy sento)
2017 kylmiö, Reppurinkatu 2, poistettu käytöstä (purettu)
2018 - 2019 linjasaneeraus: perinteinen menetelmä, kylpyhuoneissa UPO:n tekniikkaelementti, jossa putket ym. valmiina elementin sisällä, KoKa- huoneistokohtaiset vesimittarit, Iloq-lukitusjärjestelmä.
Poistoilman lämmöntalteenotto järjestelmä talo 3 ja talo 4.
Sähköpääkeskuksien uusiminen ja syöttökaapelien uusiminen.
Palohälytinjärjestelmä. Porraskäytävien savunpoistoikkunat. Kylmiöt, talot 3 ja 4, poistettu käytöstä (purettu). Taloon 4 tehty asukkaiden käyttöön kerhotilat, jossa on minikeittiö ja modeemiyhteys nettiin.
Talo 4 alapohjan puhdistus.
2020 Porrasvalaisimien uusimista. Numerovalaisimet (kuutiot) ja
porrasvalojen painonapit. Talo 2, lämmönjakohuone, automaation uusiminen
2021 pysäköintiruutujen maalausta, asfalttikorjauksia, talo 4 vesikaton korjauksia ja pellitysten huoltomaalauksia, talot 3, 4 ja 2 julkisivujen pesuja, talo 3 leikkialueen valaisimien lisäystä (2 kpl).
2022 autotallien ovien ja ovilinjan verhouspaneelien huoltomaalaus, Reppurinkatu 4 vesikaton saneeraus: pohjarakenteen uusiminen, räystäskorujen ja syöksyjen uusiminen, räystäskourujen
sulatuskaapelointi, valokatteiden uusiminen, vaakatason turvavaijerijärjestelmä henkilösuojainten kiinnitystä varten.
2023 Parvekekaide-elementtien korjausta 4-talossa
2024 Parvekekaide-elementtien korjaukset Reppurinkatu 2 & 3
2024 Porrashuoneiden aulojen maalaukset Reppurinkatu 3 & 4
2024 Huoneistokohtaiset palovaroittimet asennettu
Tulevat remontit
HALLITUKSEN 5-VUODEN KUNNOSSAPITOTARVESELVITYS
• Aulojen kunnostus
• Ikkunaremontin suunnittelu