Rivankatu 1 B
44200, Suolahti, Äänekoski
2h+k+s
39 000 € (672,41 € / m²)
58 m²

Tätä asuntoa myy Teemu Suoninen, Myyntineuvottelija, KiLAT
Huoneistokeskus Oy | Äänekoski

Sijainti
Asuntoesittely
Valoisa rivitalokaksio erinomaisella pohjaratkaisulla – oma sauna ja remontoitu kylpyhuone
Tervetuloa tutustumaan tähän viihtyisään rivitalokaksioon, joka hurmaa toimivalla pohjaratkaisullaan ja valoisalla yleisilmeellään! Asunnossa on tilava olohuone, josta avautuu käynti suojaiselle pihalle – täydellinen paikka rentoutumiseen ja kesäpäivistä nauttimiseen. Keittiö on käytännöllinen ja avara, ja sen yhteydessä on tilaa ruokailuryhmälle.
Makuuhuoneessa on reilusti säilytystilaa ja kylpyhuone on remontoitu tyylikkäästi. Rentoutumista varten löytyy myös oma sauna. Tämä koti tarjoaa mukavuutta ja toimivuutta niin yksinasujalle kuin pariskunnallekin.
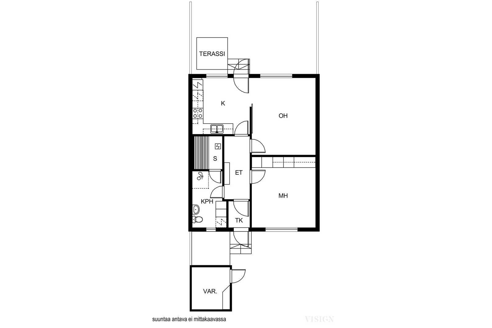
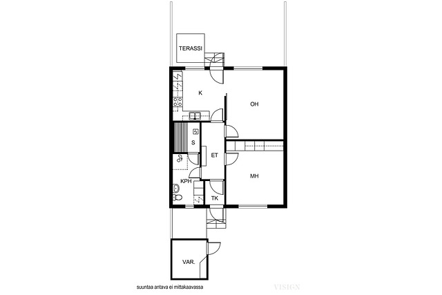
Pohjakuva

Perustiedot
- Sijainti
- Rivankatu 1 B, 44200, Suolahti, Äänekoski
- Omistusmuoto
- Omistusasunto
- Huoneluku
- 2
- Asuinpinta-ala
- 58 m²
- Kokonaispinta-ala
- 58 m²
- Pinta-alan peruste
- Isännöitsijäntodistuksen mukainen, Yhtiöjärjestyksen mukainen
- Kohteen tyyppi
- Rivitalo
- Kerros
- 1 / 1
- Rakennusvuosi
- 1985
- Käyttöönottovuosi
- 1985
- Kohde myydään vuokrattuna
- Ei
- Vapautuminen
- 1kk kaupanteosta
Hinta ja kustannukset
- Velaton hinta
- 39 000 €
- Myyntihinta
- 37 191,27 €
- Velkaosuus
- 1 808,73 €
- Yhtiövastike
- Hoitovastike 184,68 € / kk, Rahoitusvastike 35,91 € / kk, Yhtiövastike yhteensä 220,59 € / kk
- Autopaikkamaksu
- 5 € / kk
- Sähköliittymä siirtyy
- Kyllä
- Neliöhinta
- 672,41 € / m²
- Lisätietoja maksusta
- Lisätietoja vastikkeista: Vesimaksut kulutuksen mukaan. Kylmävesi 7,45 €/m³ Lämminvesi 13,30 €/m³ Arviovesilaskutus 7,44 € Talonmiesvuoro 30 €/kk Varainsiirtovero 1,5 % 1.7.2025 alkaen: Hoitovastike 0,20 €/os/kk. = 205,20 €/kk Kylmävesi 8,55 €/m³ Lämminvesi 15,20 €/m³
Tilat ja materiaalit
- Keittiön lattiat
- Laminaatti
- Keittiön seinät
- Maali ja tapetti
- Keittiön varusteet
- Astianpesukone, liesi, jääkaappipakastin, ja liesituuletin
- Liesi
- sähköliesi
- Kylpyhuoneen seinät
- Kaakeli
- Kylpyhuoneen lattiat
- Laatta
- Kylpyhuoneen varusteet
- Lattialämmitys, peili, suihku, wc-istuin, allaskaappi, ja pesukoneliitäntä
- Makuuhuoneiden lukumäärä
- 1
- Makuuhuoneiden seinät
- Tapetti
- Makuuhuoneiden lattiat
- Laminaatti
- Olohuoneen seinät
- Tapetti
- Olohuoneen lattiat
- Laminaatti
- Sauna
- Kyllä
- Kiuas
- Sähkökiuas
Lisätiedot
- Asunnon kunto
- Tyydyttävä
- Terassi
- Kyllä
Taloyhtiö ja kiinteistö
- Taloyhtiön nimi
- Asunto Oy Rivankatu 1
- Isännöitsijätoimisto
- Sisä-Suomen Kiinteistöapu Oy
- Isännöitsijän nimi
- Alpo Leppäaho
- Isännöitsijän sähköposti
- [email protected]
- Isännöitsijän puhelin
- 050 5597 411
- Tontin pinta-ala
- 4 335 m²
- Tontin omistus
- Oma
- Rakennusmateriaali
- puu
- Lämmitysjärjestelmä
- Kaukolämpö
- Kattotyyppi
- harjakatto
- Katemateriaali
- pelti
- Lisätietoja kiinteistönhoidosta
- Asukkaat
- Kiinteistönhoidon lisätiedot
- talkoilla
- Taloyhtiöön kuuluu
- kuivaushuone
- Lisätietoja taloyhtiön autonsäilytyspaikoista
- Toteutetut autopaikat 10 kpl
- Kaavatilanne
- Asemakaava
- Lisätiedot kaavoituksesta
- Suolahden kunta
- Asbestikartoitus
- Ei
- Lisätietoa asbestikartoituksesta
- Lain mukaan purettavien materiaalien asbesti pitää kartoittaa ennen purkutyötä. Jos osakas aikoo remontoida huoneistoaan, hänen tulee selvittää asbestikartoitus purettaviin materiaaleihin.
- Taloyhtiön kiinnitykset
- 100 000 €
Tehdyt remontit
SELVITYS AIEMPINA VUOSINA TEHDYISTA KUNNOSSAPITO- JA MUUTOSTOISTÄ
Yhtiön rakennuksissa on aiemmin toteutettu seuraavat merkittävimmät kunnossapito- ja muutostyöt:
- peltikattojen uusiminen 2003
- ilmastointikariavieri puhdistus 2006
- jätekatoksen rakentaminen 2007
- ulko-ovien uusiminen 2008
- lukostojen uusiminen 2008
- varastojen korjaus ja maalaus 2012
- julkisivun kunnontarkastus, kunnostus ja maalaus 2013
- käyttövesijärjestelmän uusiminen 2018
- uusittu lämmönsiirrin 2020
- ilmanvaihtokanavien puhdistus 2021
Tulevat remontit
Asennetaan etäluettavat vesimittarit seuraavan mittareiden päivityksen yhteydessä, mikäli asetus sitä vaatii
