Ruokosuontie 57
31600, Ruokosuo, Jokioinen
5h+k+psh+s+työhuone+et+aula+wc+2*vh
139 000 €
99 m²
Tätä asuntoa myy Samu Pohjola, Kiinteistönvälittäjä, LKV
Huoneistokeskus Oy | Forssa

Sijainti
Asuntoesittely
Tilava omakotitalo isolla 5550m²:n tontilla Jokioisten keskustan kupeessa, Ruokosuon pientaloalueella.
Vuonna 1954 rakennettua rintamamiestaloa on remontoitu matkan varrella paljon, ja isompia remontointi tarpeita ei ole tiedossa.
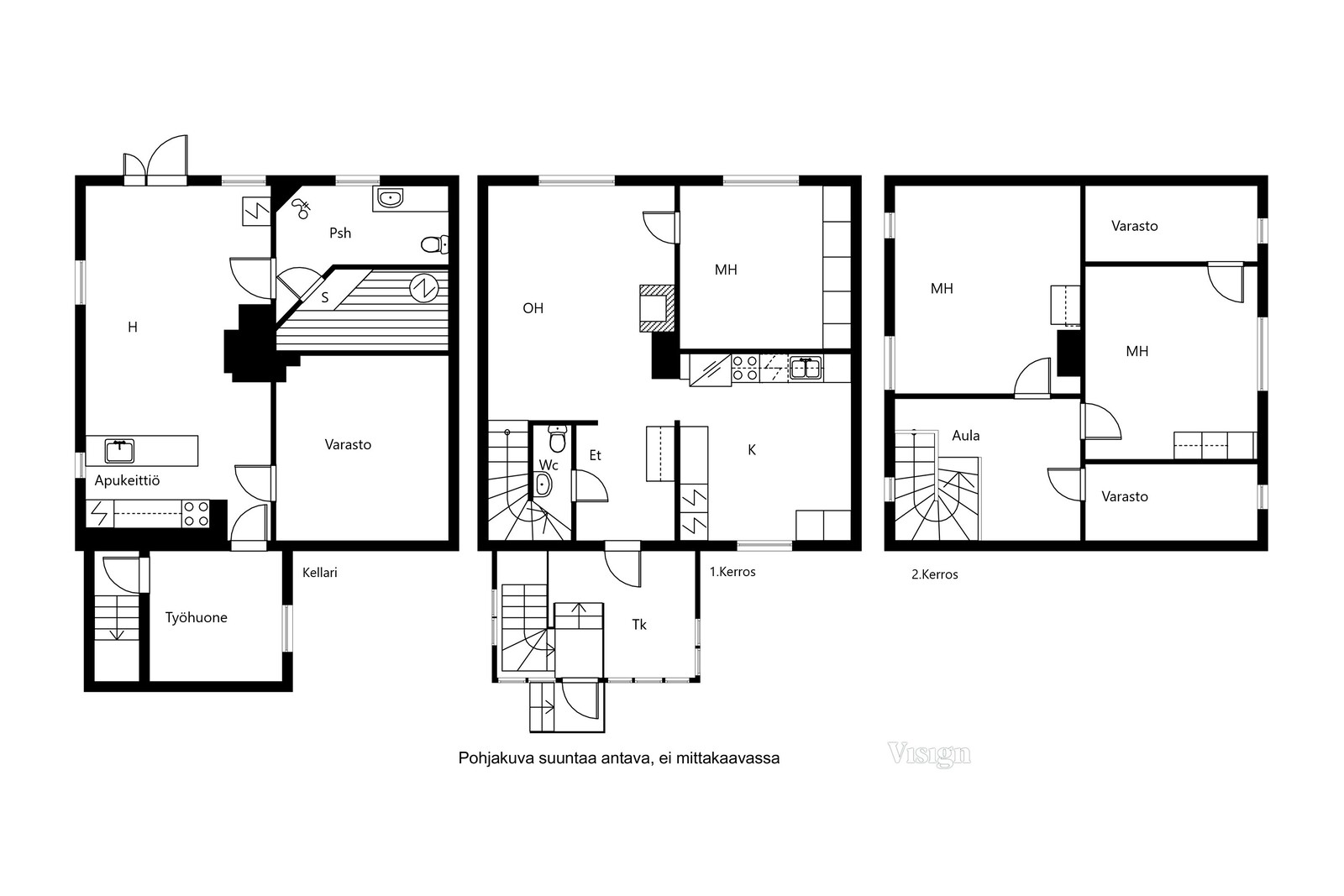
Tilat kolmessa kerroksessa. 1. kerroksessa mm. keittiö, olohuone ja makuuhuone, yläkerrassa 2 makuuhuonetta, ja kellarikerroksessa hiljattain valmistunut pesuhuone ja sauna, huone ja keittiö, työhuone ja varastotilaa.
Varaava takka ja ilmalämpöpumppu.
Piharakennuksessa sauna ja pesuhuone, lämmin autotalli, sekä reilusti varastotilaa.
Tervetuloa tutustumaan tarkemmin, varaa oma esittelyaika!
Samu Pohjola, samu.pohjola@huoneistokeskus,fi 050-557 6785
Pohjakuva

Perustiedot
- Sijainti
- Ruokosuontie 57, 31600, Ruokosuo, Jokioinen
- Omistusmuoto
- Omistusasunto
- Huoneluku
- 5
- Asuinpinta-ala
- 99 m²
- Muu pinta-ala
- 118 m²
- Kokonaispinta-ala
- 217 m²
- Lisätiedot pinta-alasta
- Pinta-alatiedot on saatu rakkennuspiirrustuksista, eikä niitä ole tarkistusmitattu. Mainittu pinta-ala saattaa tämän ikäisessä kohteessa poiketa olennaisesti nykyisten standardien mukaan laskettavasta asuinpinta-alasta. Todellinen asuinpinta-ala voi olla mainittua pienempi tai suurempi.
- Kohteen tyyppi
- Omakotitalo
- Kerros
- 3
- Rakennusvuosi
- 1954
- Käyttöönottovuosi
- 1954
- Kohde myydään vuokrattuna
- Ei
- Vapautuminen
- Heti
Tilat ja materiaalit
- Keittiön lattiat
- Lauta
- Keittiön seinät
- Maali ja tapetti
- Keittiön varusteet
- Liesituuletin, erillinen pakastin, astianpesukone, jääkaappi, ja liesi
- Liesi
- Keraaminen liesi ja puuliesi
- Kylpyhuoneen seinät
- Kaakeli
- Kylpyhuoneen lattiat
- Laatta
- Kylpyhuoneen varusteet
- Lattialämmitys, suihku, ja wc-istuin
- WC Lukumäärä
- 1
- WC:n lattiat
- Muovimatto
- WC:n seinät
- Tapetti
- Makuuhuoneiden lukumäärä
- 3
- Makuuhuoneiden seinät
- Tapetti
- Makuuhuoneiden lattiat
- Lauta
- Olohuoneen seinät
- Tapetti
- Olohuoneen lattiat
- Lauta
- Kohteen säilytystilat
- Vaatehuone ja ulkovarasto
- Sauna
- Kyllä
- Kiuas
- Puukiuas
- Saunan kuvaus
- Talon saunassa sähkökiuas, pihasaunassa puukiuas.
- Takka
- Takka
Lisätiedot
- Asunnon kunto
- Hyvä
- Muuta kauppaan kuuluvaa
- Lisätietoja sisältyvistä varusteista: istutukset, lämminvesivaraaja
Taloyhtiö ja kiinteistö
- Tontin pinta-ala
- 5 550 m²
- Tontin omistus
- Oma
- Tontin tyyppi
- Tasamaatontti
- Tontin myyntityyppi
- Koko tontti
- Rakennusmateriaali
- Puu
- Lämmitysjärjestelmä
- Puu Ilmalämpöpumppu Sähkö Tyyppi: sähköinen lattialämmitys, sähköpatterilämmitys uuni/takka, sähköinen lattialämmitys, sähköpatterilämmitys
- Kattotyyppi
- Harja
- Katon kunto
- Hyvä
- Katemateriaali
- Pelti
- Rakennusoikeus e-luku
- 0.2
- Lisätietoja energiatodistuksesta
- Laaditaan kuntotarkastuksen yhteydessä.
- Tie perille
- Kyllä
- Kaavatilanne
- Asemakaava
- Kaavoitustiedot
- Jokioisten kunta
- Asbestikartoitus
- Ei
- Lisätietoa asbestikartoituksesta
- Rakennus on valmistunut ennen vuotta 1994 eikä rakennukseen ole tehty asbestikartoitusta
- Muut rakennukset
- Autotalli ja saunarakennus