Sälssinkuja 8 A
36420, Sahalahti, Kangasala
2h+kk+s+p
92 000 € (1 719,63 € / m²)
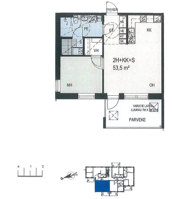
53,5 m²

Tätä asuntoa myy Petri Siira, Kiinteistönvälittäjä LKV
Sp-Koti Kangasala | Keyhouse Oy

Sijainti
Asuntoesittely
Kun tahdot uuden kodin!
Kangasalan Sahalahdella odottaa valoisa ja moderni kaksio, joka sijaitsee rauhallisella alueella, mutta silti lähellä kaupungin palveluita. Tämä ylimmän kerroksen asunto tarjoaa upeat näkymät länteen avautuvalta parvekkeelta, jossa voi nauttia ilta-auringosta.
Vuonna 2016 valmistunut talo on energiatehokas, sillä lämmitysjärjestelmä on päivitetty ilmavesilämpöpumppuun ja katolle on asennettu aurinkopaneelit. Asunnossa on oma sauna, joka tuo luksusta arkeen, sekä tilava vaatehuone, joka helpottaa säilytystarpeita.
Keittiö on hyvin varusteltu ja sieltä löytyy kaikki tarvittava ruoanlaittoon, kuten keraaminen liesi ja astianpesukone. Laminaattilattiat ja maalatut seinät luovat modernin ja raikkaan ilmeen koko asunnolle.
Hyvät liikenneyhteydet, kuten lähellä oleva bussipysäkki ja sujuvat autoyhteydet, tekevät liikkumisesta vaivatonta.
Asunto Oy Kangasalan Sahalahden Omenatarha on pieni ja viihtyisä taloyhtiö, jossa on vain 18 asuntoa. Yhtiö tarjoaa myös mahdollisuuden ostaa autokatospaikan erikseen, mikä lisää asumismukavuutta.
Tartu tilaisuuteen ja tule tutustumaan tähän upeaan kotiin, joka yhdistää modernin asumisen ja luonnonläheisyyden parhaalla mahdollisella tavalla.
Esittelyt ja lisätiedot
Petri Siira, LKV
0405412138
[email protected]
Perustiedot
- Sijainti
- Sälssinkuja 8 A, 36420, Sahalahti, Kangasala
- Omistusmuoto
- Omistusasunto
- Huoneluku
- 2
- Asuinpinta-ala
- 53,5 m²
- Muu pinta-ala
- 0 m²
- Kokonaispinta-ala
- 53,5 m²
- Pinta-alan peruste
- Yhtiöjärjestyksen mukainen, Isännöitsijäntodistuksen mukainen, (Pinta-ala ei ole tarkistusmitattu ja todellinen pinta-ala voi olla suurempi tai pienempi, kuin ilmoitettu)
- Lisätiedot pinta-alasta
- Ei tarkistusmitattu. Pinta-ala voi siis olla edellä mainittua pienempi tai suurempi.
- Kohteen tyyppi
- Kerrostalo
- Kerros
- 4 / 4
- Rakennusvuosi
- 2016
- Käyttöönottovuosi
- 2016
- Kohde myydään vuokrattuna
- Ei
- Vapautuminen
- Heti
Hinta ja kustannukset
- Velaton hinta
- 92 000 €
- Myyntihinta
- 92 000 €
- Yhtiövastike
- Hoitovastike 241 € / kk (4,50 € / m²), Yhtiövastike yhteensä 241 € / kk
- Vesimaksu
- 25 € / hlö /kk ennakko, tasaus kulutuksen mukaan
- Neliöhinta
- 1 719,63 € / m²
- Lisätietoja maksusta
- Taloyhtiön hallitukselle on annettu valtuutus periä (tai olla perimättä) ylimääräistä vastiketta yhtiön taloudellisen aseman tai maksuvalmiuden sitä vaatiessa
Tilat ja materiaalit
- Keittiön lattiat
- Laminaatti
- Keittiön seinät
- Maali
- Keittiön varusteet
- Jääkaappipakastin, liesi, liesituuletin, ja astianpesukone
- Liesi
- Keraaminen liesi
- Kylpyhuoneen seinät
- Kaakeli
- Kylpyhuoneen lattiat
- Laatta
- Kylpyhuoneen varusteet
- Suihkuseinä, peilikaappi, wc-istuin, suihku, pesukoneliitäntä, ja lattialämmitys
- Makuuhuoneiden lukumäärä
- 1
- Makuuhuoneiden seinät
- Maali ja tapetti
- Makuuhuoneiden lattiat
- Laminaatti
- Olohuoneen seinät
- Maali ja tapetti
- Olohuoneen lattiat
- Laminaatti
- Kohteen säilytystilat
- Vaatehuone ja häkkivarasto
- Sauna
- Kyllä
- Kiuas
- Sähkökiuas
Lisätiedot
- Parveke
- Ulostyönnetty parveke
- Parvekkeen ilmansuunta
- Länsi
- Hissi
- Kyllä
Taloyhtiö ja kiinteistö
- Taloyhtiön nimi
- Asunto Oy Kangasalan Sahalahden Omenatarha
- Isännöitsijän nimi
- Juha Leinonen
- Isännöitsijän puhelin
- 0405314830
- Tontin pinta-ala
- 3 694 m²
- Tontin omistus
- Vuokra
- Maanvuokraaja
- Kangasalan kaupunki
- Tontin vuosivuokra
- 9 441,01 €
- Vuokra-aika päättyy
- 31.03.2061
- Rakennusmateriaali
- Betoni
- Lämmitysjärjestelmä
- Ilmavesilämpöpumppu Aurinkolämpö
- Ilmanvaihto
- Koneellinen ilmanvaihto
- Vesijohto
- Kunnallisvesi
- Viemäröinti
- Kunnallinen viemäriverkosto
- Kattotyyppi
- Pulpettikatto
- Katemateriaali
- Tiili
- Lisätietoja kiinteistönhoidosta
- Talonmies
- Taloyhtiössä on
- Kellarikomero, väestönsuoja, ja urheiluvälinevarasto
- Lunastusoikeus yhtiöllä
- Ei
- Lunastusoikeus osakkaille
- Ei
- Kohteesta on energiatodistus
- Ei lain edellyttämää energiatodistusta
- Liikenneyhteydet
- Bussipysäkki lähellä ja sujuvat yhteydet omalla autolla
- Taloyhtiön autopaikat
- Autokatokset myydään osakkeina. Hinta 5.900 e
- Autokatokset
- 8
- Piha-autopaikkoja
- 14 kpl
- Kaavatilanne
- Asemakaava
- Asbestikartoitus
- Ei
Tehdyt remontit
Lämmitysjärjestelmä vaihdettu ilmavesilämpöön ja aurinkopanelit katolle
Tulevat remontit
Tarvittavat huoltotoimenoiteet