Sahanmäenkuja 2 A
00520, Konepaja, Vallila, Helsinki
3h, avok, kph, s, las. p
472 900 € (7 005,93 € / m²)
67,5 m²

Tätä asuntoa myy Raine Lamberg, Myyntipäällikkö, LKV, LVV, KED
Huoneistokeskus Oy | Helsinki, Runeberginkatu

Sijainti
Asuntoesittely
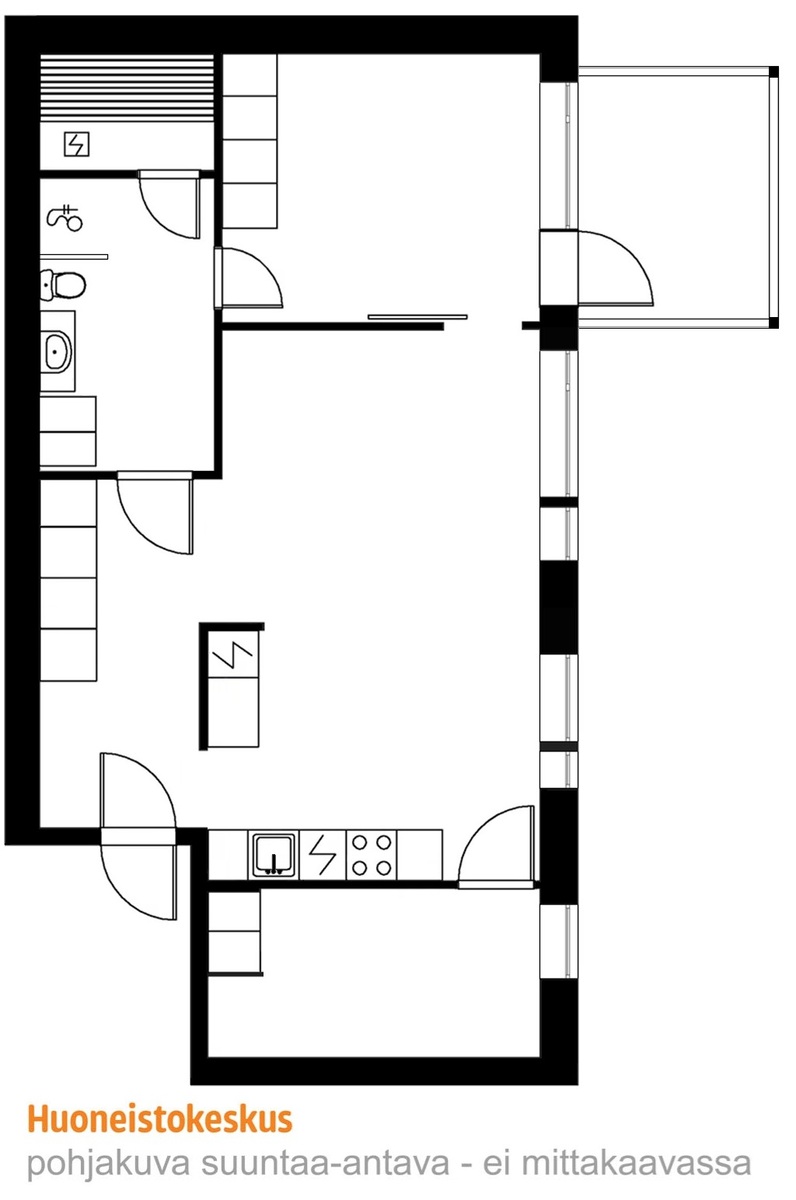
Tehoneliöinen ja valoisa kolmio hissillisen talon viidennessä kerroksessa.
Tässä kodissa on erittäin tehokas pohjaratkaisu, ison olohuoneen yhteydessä on avokeittiö, eteisessä ja makuuhuoneissa on hyvin kaappitilaa ja isomman makuuhuoneen yhteydessä on lasitettu parveke. Tilavaan kylpyhuoneeseen on käynti sekä eteisestä että päämakuuhuoneesta ja sen yhteydessä on ikkunallinen sauna.
Yhtiössä ei tarvitse remonteista kantaa huolta vielä useampaan vuoteen, talo on valmistunut vuonna 2015, eikä mitään suurempaa ole tiedossa lähitulevaisuudessa.
Eikä talon sijainnissakaan ole moitittavaa, kävelymatkan päässä ovat Pasilan juna-asema, kauppakeskus Tripla palveluineen ja Linnanmäki. Jos käveleminen ei räntäsateessa innosta, on lähellä linja-auto- ja raitiovaunupysäkit, joilta pääsee kulkemaan juna-asemalle ja keskustaan.
Asunto sopii myös liikuntarajoitteisille, hissille ei ole sisäpihan puolelta yhtään rappusta. 5/5. krs, hissi. Oma tontti. Talo on osittain kuusikerroksinen, mutta tämän asunnon yläpuolella ei ole enää toista asuntoa.
Kiinnostuitko? Ota yhteyttä, tulen mielelläni esittelemään tätä kotia!
Pohjakuva

Perustiedot
- Sijainti
- Sahanmäenkuja 2 A, 00520, Konepaja, Vallila, Helsinki
- Omistusmuoto
- Omistusasunto
- Huoneluku
- 3
- Asuinpinta-ala
- 67,5 m²
- Muu pinta-ala
- 0 m²
- Kokonaispinta-ala
- 67,5 m²
- Pinta-alan peruste
- Isännöitsijäntodistuksen mukainen, Yhtiöjärjestyksen mukainen
- Kohteen tyyppi
- Kerrostalo
- Kerros
- 5 / 5
- Rakennusvuosi
- 2015
- Käyttöönottovuosi
- 2015
- Kohde myydään vuokrattuna
- Ei
- Vapautuminen
- Heti
Hinta ja kustannukset
- Velaton hinta
- 472 900 €
- Myyntihinta
- 310 483,27 €
- Velkaosuus
- 162 416,73 €
- Yhtiövastike
- Hoitovastike 371,25 € / kk, Rahoitusvastike 1 330,88 € / kk, Yhtiövastike yhteensä 1 702,13 € / kk
- Vesimaksu
- 18 € / hlö
- Sähköliittymä siirtyy
- Kyllä
- Neliöhinta
- 7 005,93 € / m²
- Lisätietoja maksusta
- Lisätietoja vastikkeista: Vesimaksun tasaus todellisen kulutuksen mukaan. Hallituksella valtuudet periä enintään kahden kuukauden hoitovastiketta vastaava määrä yhtiön taloudellisen tilanteen niin vaatiessa. Hallituksella valtuudet määrittää osakkailta perittävän pääomavastikkeen taso, esimerkiksi taloyhtiölainan viitekoron nousun tai laskun takia
Tilat ja materiaalit
- Keittiön lattiat
- Parketti
- Keittiön seinät
- Maali
- Keittiön varusteet
- Erillisuuni, liesituuletin, jääkaappipakastin, astianpesukone, ja liesitaso, kiinteät valaisimet
- Liesi
- liesitaso erillisuuni
- Kylpyhuoneen seinät
- Kaakeli
- Kylpyhuoneen lattiat
- Laatta
- Kylpyhuoneen varusteet
- Suihku, wc-istuin, lattialämmitys, peilikaappi, pesukoneliitäntä, suihkuseinä, allaskaappi, ja kiinteät valaisimet
- Makuuhuoneiden seinät
- Maali
- Makuuhuoneiden lattiat
- Parketti
- Olohuoneen seinät
- Maali
- Olohuoneen lattiat
- Parketti
- Sauna
- Kyllä
- Kiuas
- Sähkökiuas
Lisätiedot
- Asunnon kunto
- Hyvä
- Näkymät
- Olohuoneen ja makuuhuoneiden ikkunat noin kaakkoon Sahanmäenkujalle, saunan ikkuna noin koilliseen, lasitettu parveke koilliseen, kaakkoon ja lounaaseen
- Parveke
- Lasitettu parveke
- Parvekkeen ilmansuunta
- Kaakko, lounas ja koillinen
- Hissi
- Kyllä
- Muuta kauppaan kuuluvaa
- Lisätietoja sisältyvistä varusteista: kaapistot, kiinteät valaisimet, sälekaihtimet/rullaverhot
Taloyhtiö ja kiinteistö
- Taloyhtiön nimi
- Asunto Oy Helsingin Bliksti
- Isännöitsijätoimisto
- Braleva Kiinteistöpalvelut Oy
- Isännöitsijän nimi
- Juha-Pekka Rainio
- Isännöitsijän puhelin
- 010 3276 461
- Tontin pinta-ala
- 2 154 m²
- Tontin omistus
- Oma
- Rakennusmateriaali
- Betoni
- Lämmitysjärjestelmä
- Kaukolämpö
- Kattotyyppi
- tasakatto.
- Katemateriaali
- bitumi
- Lisätietoja kiinteistönhoidosta
- Huoltoyhtiö
- Kiinteistönhoidon lisätiedot
- Kotikatu Alppila, Jarrumiehenkatu 2 a, 00520 Helsinki, [email protected]
- Taloyhtiössä on
- Kellarikomero, kuivaushuone, kaapeli-tv, urheiluvälinevarasto, ja väestönsuoja
- Kohteesta on energiatodistus
- Kyllä
- Energialuokka
- D2013
- Taloyhtiöön kuuluu
- Kerhotila ja pesutupa yhteiskäytössä kolmen muun yhtiön kanssa
- Lisätietoja liikenneyhteyksistä
- Linja-autopysäkki Aleksis Kiven kadulla noin 150 m (23N, 500, 510), Ratapihantiellä noin 350 m (23, 69, 506, 848) ja Teollisuuskadulla noin 350 m (59), raitiovaunupysäkki 450 m (9), Pasilan juna-asema (kaikki junat) noin 500 m
- Palvelut
- Paljon palveluita ja ravintoloita kauppakeskus Triplassa noin 500 m, Konepajan makasiinien ravintolat ja palvelut, mm. Vallilan Kansallisteatteri, noin 500 m, Linnanmäki noin 700 m, Eläintarhan urheilukenttä noin 1 km.
- Koulut
- Pasilan peruskoulu lähellä, samoin Alppilan lukio, Mäkelänrinteen lukio noin 1 km. Lisää kouluja lähialueilla.
- Lisätietoja taloyhtiön autonsäilytyspaikoista
- Autohallipaikat osakkeina
- Autohallipaikat
- 36 kpl
- Kaavatilanne
- Asemakaava
- Lisätiedot kaavoituksesta
- Helsingin kaupunki
- Taloyhtiön kiinnitykset
- 12 164 220 €
Tehdyt remontit
Ilmanvaihdon puhdistus ja säätö, autohallin sähköautojen latausvalmiuden rakentaminen 2020, jätehuoneen lattian pinnoitus 2021, pihan kunnostus, ilmanvaihdon puhdistus, mittaus ja säätö 2023, 10-vuotisvastuutarkastus ja PTS 2024
Tulevat remontit
Ikkunoiden ja ovien tiivisteiden uusimisia 2025-2026, julkisivun ja parvekkeiden elastisten saumojen uusiminen 2026, automaatiosaneeraus 2027, sulku- ja säätöventtiilien uusimisia 2028, IV-kanavien nuohous ja säätö 2030 sekä muita ylläpito- ja huoltokorjauksia, tarkempi erittely kunnossapitotarveselvityksessä