Salakkakuja 3
01490, Nikinmäki, Vantaa
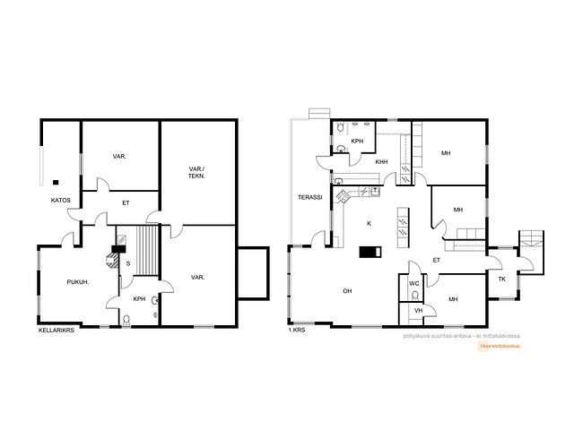
4h, k, khh, kh/wc, erill. wc, vh, alakerrassa saunaosasto, takkahuone, 2 harrastehuonetta, 2 varastohuonetta
410 000 €
113 m²

Tätä asuntoa myy Juha Remes, Myyntipäällikkö, LKV
Huoneistokeskus Oy | Vantaa

Sijainti
Asuntoesittely
Tyylikäs, avara ja valoisa v. 2006 valmistunut huolella pidetty omakotitalo keskellä rauhallista pientaloaluetta. Reilut asuintilat sekä erinomaiset alakerran vapaa-ajanviettotilat, harrastehuoneet ja varastotilat. Suuri terassiparveke ilta-aurinkoon päin sekä suojainen piha-alue.
Nikinmäen alueelta löytyvät hienojen ulkoilualueiden lisäksi mm. lähikauppa ja koulu.
Sovi oma esittelyaikasi ja tule tutustumaan hienoon kotiin!
Perustiedot
- Sijainti
- Salakkakuja 3, 01490, Nikinmäki, Vantaa
- Huoneluku
- 4
- Asuinpinta-ala
- 113 m²
- Muu pinta-ala
- 137 m²
- Kokonaispinta-ala
- 250 m²
- Lisätiedot pinta-alasta
- Kerrosala 129 m2. Pinta-alatiedot on saatu rakennuspiirustuksista eikä niitä ole tarkistusmitattu.
- Kohteen tyyppi
- Omakotitalo
- Kerros
- 2
- Rakennusvuosi
- 2006
- Käyttöönottovuosi
- 2006
- Kohde myydään vuokrattuna
- Ei
- Vapautuminen
- 2-3 kk / sopimuksen mukaan
Tilat ja materiaalit
- Keittiön kuvaus
- Välitila lasi
- Keittiön lattiat
- Laatta
- Keittiön varusteet
- Astianpesukone, erillisuuni, erillinen pakastin, jääkaappi, ja liesitaso, liesituuletin / hormi
- Liesi
- erillisuuni liesitaso
- Kylpyhuoneen seinät
- Kaakeli
- Kylpyhuoneen lattiat
- Laatta
- Kylpyhuoneen varusteet
- Lattialämmitys, suihku, peili, ja wc-istuin
- WC:n lattiat
- Laatta
- WC:n seinät
- Osalaatoitus
- Makuuhuoneiden lukumäärä
- 3
- Makuuhuoneiden lattiat
- Parketti
- Olohuoneen lattiat
- Parketti
- Kodinhoitohuoneen varusteet
- Lattialämmitys, lattiakaivo, pesukoneliitäntä, pöytätaso, ja pesuallas
- Kodinhoitohuoneen lattiat
- Laatta
- Säilytystilojen kuvaus
- Alakerran varastot
- Kohteen säilytystilat
- Alakerran varastot
- Sauna
- Kyllä
- Kiuas
- Puukiuas
- Takka
- Takka
Lisätiedot
- Asunnon kunto
- Hyvä
- Lisätietoja kunnosta
- Kuntotarkastus teetetään ennen kauppaa ostajan kanssa yhdessä.
- Muut tilat
- Eteisessä ja porrastilassa seinäpatterit.
- Muuta kauppaan kuuluvaa
- Lisätietoja sisältyvistä varusteista: hälytys- /valvontajärjestelmä, kaapistot, sälekaihtimet/rullaverhot, verhotangot
- Kauppaan ei kuulu
- Yhden makuuhuoneen vaatekaappi.
Taloyhtiö ja kiinteistö
- Tontin pinta-ala
- 605 m²
- Tontin omistus
- Oma
- Tontin tyyppi
- Rinnetontti
- Tontin myyntityyppi
- Koko tontti
- Tontin tiedot
- 1/2 hallinnanjakosopimuksen mukaisesti 1210 m2 tontista.
- Rakennusmateriaali
- Puu
- Lämmitysjärjestelmä
- Puu Sähkö Tyyppi: sähköinen lattialämmitys uuni/takka, sähköinen lattialämmitys
- Kattotyyppi
- Harja
- Katemateriaali
- Tiili
- Rakennusoikeus e-luku
- 0.2
- Kohteesta on energiatodistus
- Kyllä
- Energialuokka
- D2018
- Kaavatilanne
- Asemakaava
- Kaavoitustiedot
- AO erillispientalojen korttelialue
- Muut rakennukset
- Leikkimökki
