Sampsantie 5
95430, Saarenpää, Tornio
5mh+2xk+ruok+työh+ohx2+kellari+varastotiloja+at
65 000 €
155,7 m²

Tätä asuntoa myy Hanna Pölkky, kiinteistönvälittäjä LKV, LVV, KiLAT
kaupanvahvistaja
Pilvilinna LKV Oy

Sijainti
Asuntoesittely
Tämä aivan kaupunkikeskustan lähistöllä sijaitseva rintamamiestalo etsii uutta huolenpitäjää tuleville vuosille. Perinteitä kunnioittaen talossa on tehty korjauksia puusepän taidoilla entisöiden ja ajan henkeä kunnioittaen. Talo onkin säilyttänyt hienosti alkuperäisen tunnelmansa ja huoneet ovat perinteistä rintamamiestaloa kookkaampia ja korkeampia tehden siitä erittäin tilavan.
Talo on asuttavassa kunnossa, mutta kunnostustarpeita toki löytyy. Tärkeitä on remontteja on kuitenkin tehty jo mittavasti, kuten mm. käyttövesiputket, peltikatto ja ikkunat uusittu, asennettu hulevesipumppaamo, tehty salaojaremontti patolevytyksineen ja liitytty kunnan hulevesi-, vesijohto- ja viemäriverkkoon.
Ihanteellinen sijainti arvostetulla alueella kaksoiskaupungin kupeessa, josta hyvät yhteydet kaupunkiin, kouluihin, päiväkoteihin, Tornionjokirantaan tai vaikkapa golfaamaan kahden maan välille.
Jos olet haaveillut entisöitävästä talosta, johon mahtuu paljon elämää, tässä se on. Soita ja sovi oma esittelyaikasi.
~ Iloa ja onnistumista asuntokauppaan ~
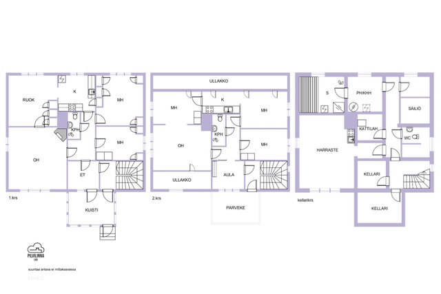
Pohjakuva

Perustiedot
- Sijainti
- Sampsantie 5, 95430, Saarenpää, Tornio
- Huoneluku
- 8
- Asuinpinta-ala
- 155,7 m²
- Muu pinta-ala
- 106,4 m²
- Kokonaispinta-ala
- 262,1 m²
- Pinta-alan peruste
- Pinta-ala ei ole tarkistusmitattu ja todellinen pinta-ala voi olla suurempi tai pienempi, kuin ilmoitettu
- Lisätiedot pinta-alasta
- Asuinpinta-alat: 1 krs: Makuuhuone x2, olohuone, keittiö, ruokailuhuone, kylpyhuone/wc, eteinen. 2 krs: Kolme makuuhuonetta, olohuone, asuinkeittiö, kylpyhuone, aula Muut tilat: Kellarikerros: Harrastehuone, wc, sauna, kattilahuone Kuisti, ullakko, säiliötilaa Pinta-alatiedot ovat toimeksiantajan ilmoittamia eikä niitä ole tarkistusmitattu. Mainitut pinta-alat saattavat tämän ikäisessä kohteessa poiketa olennaisesti nykyisten standardien mukaan laskettavasta asuinpinta-alasta.
- Kohteen tyyppi
- Omakotitalo
- Rakennusvuosi
- 1951
- Käyttöönottovuosi
- 1952
- Kohde myydään vuokrattuna
- Ei
- Vapautuminen
- Sopimuksen mukaan
Hinta ja kustannukset
- Myyntihinta
- 65 000 €
- Kiinteistövero (€/vuosi)
- 375 €
- Sähköliittymä siirtyy
- Kyllä
- Neliöhinta
- 417,47 € / m²
- Lisätietoja maksusta
- Öljylämmityksen vuosikulutusarvio n. 3000 ltr/v. Jätehuolto sopimuksen mukaan. Sähkönkulutus 2024: (sis.- lämmitys- ja käyttösähkön) 14 741 kWh. Vesi- ja jätevesimaksut kulutuksen mukaan.
Tilat ja materiaalit
- Keittiön kuvaus
- Keittiöt ylä- ja alakerrassa
- Keittiön lattiat
- Muovimatto ja lauta
- Keittiön seinät
- Maali ja kaakeli
- Keittiön varusteet
- Jääkaappipakastin ja uuni
- Liesi
- Sähköhella ja keraaminen liesi
- Kylpyhuone
- Pesutilat kellarikerroksessa saunan yhteydessä. Suihkumahdollisuus ylä- ja alakerran vessojen yhteydessä
- Kylpyhuoneen seinät
- Kaakeli
- Kylpyhuoneen lattiat
- Muovimatto
- Kylpyhuoneen varusteet
- WC-istuin, suihku, peili, ja pesuallas
- WC Lukumäärä
- 3
- Erillinen WC
- Wc:t ylä- ja alakerrassa sekä kellarikerroksessa
- WC:n lattiat
- Laatta ja muovimatto
- WC:n seinät
- Kaakeli ja muovi
- Makuuhuoneiden lukumäärä
- 3
- Makuuhuoneiden seinät
- Tapetti ja maali
- Makuuhuoneiden lattiat
- Parketti ja muovimatto
- Olohuone
- Olohuoneessa takka (ei varaava)
- Olohuoneen seinät
- Tapetti
- Olohuoneen lattiat
- Parketti
- Kodinhoitohuoneen varusteet
- Pesukoneliitäntä
- Kodinhoitohuoneen seinät
- Paneeli ja betoni
- Kodinhoitohuoneen lattiat
- Laatta
- Kodinhoitohuone
- Kodinhoitotila kellarikerroksessa pukuhuoneen yhteydessä
- Kohteen säilytystilat
- Kellarikomero, vinttikomero ja seinäkaapit
- Sauna
- Kyllä
- Kiuas
- Puukiuas ja sähkökiuas
Lisätiedot
- Asunnon kunto
- Tyydyttävä
- Parveke
- Ulostyönnetty parveke
- Parvekkeen ilmansuunta
- Etelä
- Hissi
- Ei
- Muut tilat
- Kellarikerroksessa wc, varastotiloja, autotallista harrastehuoneeksi muokattuhuone (sähköinen lattialämmitys), pannuhuone, öljysäiliö, pukuhuone (kh-tila), sauna/pesuhuone
- Lisätietoa katon pintamateriaaleista
- 2017 Peltikatto uusittu (huopakatteen päälle)
- Kauppaan ei kuulu
- Polttopuut eivät kuulu kauppaan
Taloyhtiö ja kiinteistö
- Tontin pinta-ala
- 983 m²
- Tontin omistus
- Oma
- Tontin tyyppi
- Tasamaatontti
- Tontin myyntityyppi
- Koko tontti
- Lisätiedot rakennusmateriaaleista
- Purueristeinen
- Rakennusmateriaali
- Puu
- Lämmitysjärjestelmä
- Öljy Lattialämmitys Puu Sähkö Tyyppi: Lattialämmitys "harrastehuoneessa" kellarissa sekä pukuhuoneessa
- Ilmanvaihto
- Painovoimainen ilmanvaihto
- Vesijohto
- Kunnallisvesi
- Viemäröinti
- Kunnallinen viemäriverkosto
- Lisätietoja viemäristä
- 2011: Liittyminen kunnan vesijohto- ja viemäriverkkoon
- Kattotyyppi
- Harjakatto
- Katemateriaali
- Pelti
- Rakennusoikeus
- 294.9
- Rakennusoikeus e-luku
- 0.3
- Kohteesta on energiatodistus
- Ei lain edellyttämää energiatodistusta
- Kiinteistöön kuuluu
- Asuinrakennus sekä 2 auton autotalli (kylmä)
- Tie perille
- Kyllä
- Kaavatilanne
- Asemakaava
- Kuntotarkastus tehty
- 06.07.2025
- Rakennusvaihe
- Valmis
- Asbestikartoitus
- Kyllä
- Lisätietoa asbestikartoituksesta
- Osittainen asbestikartoitus (2018). Raportti tehty vesivahinkokorjauksen yhteydessä (sis. keittiön ja käytävän lattiapinnoitteet sekä wc:n seinä-ja lattiamateriaalit -> ei asbestia)
- Muut rakennukset
- Autotalli
- Lisätietoa muista rakennuksista
- 2 auton autotalli (kylmä) rak. 1989. Kerrosala noin 29,7 m²
Tehdyt remontit
2025: Öljysäiliö puhdistettu ja tarkastettu. Öljypoltin huollettu ja palaminen säädetty. Nuohous tehty. Sisäpiipun asennus.
2021: Lämmityksen paisuntasäiliö, varoventtili ja säätöventtiilit uusittu
2019: Öljysäiliön tarkastus, imuputki vaihdettu ja öljypoltin huollettu
2018: Vesivahinkokorjaus keittiö (raportti). Käyttövesiputket uusittu. Keskikerroksen viemäröinti uusittu vessan kattoon asti. Öljysäiliön syöttöjohto uusittu. Lämmityspatteri lisätty eteiseen.
2017: Peltikatto uusittu (vanhan huovan päälle, huopa purettu harjalta ja räystäiltä).
2016: Hulevesipumppaamo asennettu
2015: Vesikalusteet (WC-istuimet lähinnä)
2013: Salaojaremontti (mm. sadevesi- ja salaojakaivojen asennus, patolevytys ym). Liittyminen kunnan hulevesiverkostoon.
2011: Liittyminen kunnan vesijohto- ja viemäriverkkoon.
2003: Öljypoltin uusittu
1989: Keittiöremontti. Kellarin peruskorjaus (sisäpuolelta). Asuintilojen pintaremonttia ja muutoksia (mm. tapettia, lattia uusittu). Remontti on tehty pinkopahveilla eikä rakenteita ole muutettu alkuperäisestä. Sähkökeskus uusittu. Ikkunat uusittu (MSEA-ikkunatyyppi). Autotalli rakennettu (kylmä).
1979: Öljykattila vaihdettu (valurautakattila)
