Saukonkatu 5
80230, Niinivaara, Joensuu
4h+k+kph+s+at
135 000 €
114 m²

Tätä asuntoa myy Jyrki Makkonen, Kiinteistönvälittäjä, LKV, kaupanvahvistaja
Huoneistokeskus Oy | Joensuu

Sijainti
Asuntoesittely
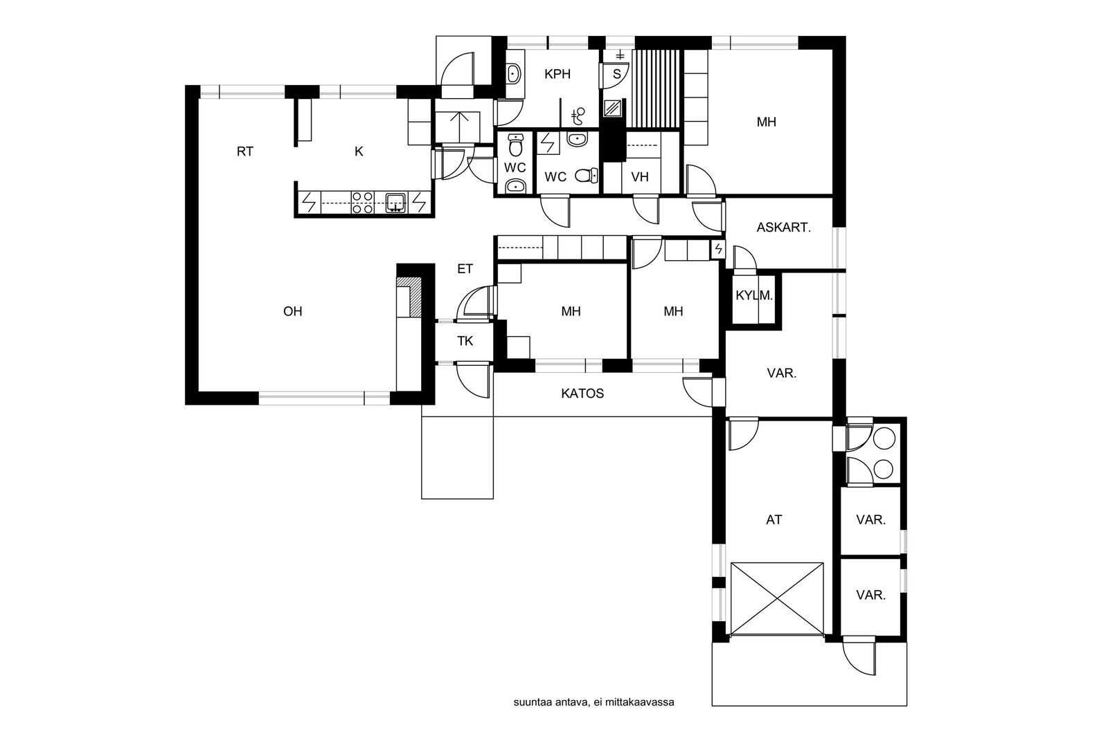
Erinomaisella sijainnilla, puistoalueen reunassa, 1963 valmistunut ja 1972 laajennettu tiilitalo. Olohuone, ruokailutila, keittiö, kolme makuuhuonetta, kylpyhuone, puulämmitteinen sauna, kaksi wc:tä, varasto/askarteluhuone. Autotallin takaosassa työtila ja varastot. Kaukolämpö! Kuntotarkastettu 10/2025.
Rauhallinen sijainti. Koulut, päiväkoti ja kaupat lähellä. Keskustaankin lyhyt matka.
Esittelyt sopimuksen mukaan
Pohjakuva

Perustiedot
- Sijainti
- Saukonkatu 5, 80230, Niinivaara, Joensuu
- Huoneluku
- 4
- Asuinpinta-ala
- 114 m²
- Muu pinta-ala
- 63 m²
- Kokonaispinta-ala
- 177 m²
- Kohteen tyyppi
- Omakotitalo
- Kerros
- 1
- Rakennusvuosi
- 1963
- Käyttöönottovuosi
- 1963
- Kohde myydään vuokrattuna
- Ei
- Vapautuminen
- Sopimuksen mukaan
Hinta ja kustannukset
- Myyntihinta
- 135 000 €
- Lämmityskustannukset (Muu kuin sähkö €/kk)
- 231 €
- Sähköliittymä siirtyy
- Kyllä
- Neliöhinta
- 1 184,21 € / m²
- Lisätietoja maksusta
- Tietoja kiinteistöverosta: 268,07. Lisätietoja vastikkeista: Kaukolämpö: Tehomaksu 394,68 eur/v, energiamaksu n. 2377,40 eur/v = 2772,08 eur/v. Sähkö n. 400 eur/v.
Tilat ja materiaalit
- Keittiön lattiat
- Muovimatto
- Keittiön seinät
- Maali
- Keittiön varusteet
- Liesituuletin, jääkaappipakastin, liesi, astianpesukone, ja kiinteät valaisimet
- Liesi
- sähköliesi
- Kylpyhuoneen seinät
- Kaakeli
- Kylpyhuoneen lattiat
- Laatta
- Kylpyhuoneen varusteet
- Suihku, suihkuseinä, ja kiinteät valaisimet
- WC Lukumäärä
- 2
- WC:n lattiat
- Laatta
- WC:n seinät
- Kaakeli
- Makuuhuoneiden lukumäärä
- 3
- Makuuhuoneiden seinät
- Tapetti ja maali
- Makuuhuoneiden lattiat
- Lauta ja parketti
- Olohuoneen seinät
- Maali
- Olohuoneen lattiat
- Lauta
- Sauna
- Kyllä
- Kiuas
- Puukiuas
- Takka
- Takka
Lisätiedot
- Asunnon kunto
- Tyydyttävä
- Muut tilat
- Varastohuone. Tekninen tila (autotallin takaosassa) jossa lämmönvaihdin ja vesipiste.
- Muuta kauppaan kuuluvaa
- Lisätietoja sisältyvistä varusteista: istutukset, jätesäiliö, kaapistot, kiinteät valaisimet, naulakko, sälekaihtimet/rullaverhot
Taloyhtiö ja kiinteistö
- Tontin pinta-ala
- 1 029 m²
- Tontin omistus
- Vuokra
- Tontin tyyppi
- Rinnetontti
- Tontin myyntityyppi
- Koko tontti
- Maanvuokraaja
- Joensuun kaupunki
- Tontin vuosivuokra
- 935,88 €
- Vuokra-aika päättyy
- 31.12.2028
- Rakennusmateriaali
- Tiili
- Lämmitysjärjestelmä
- Kaukolämpö vesikiertoinen patterilämmitys
- Kattotyyppi
- Harja
- Katemateriaali
- Pelti
- Rakennusoikeus
- 170
- Kohteesta on energiatodistus
- Ei lain edellyttämää energiatodistusta
- Tie perille
- Kyllä
- Kaavatilanne
- Asemakaava
- Kaavoitustiedot
- AO
- Kuntotarkastus tehty
- 10.10.2025
- Asbestikartoitus
- Ei
