Sepetlahdentie 12 G
02230, Matinkylä, Espoo
2 mh, oh, k, rt, kh, wc, s (yj:n mukaan 3h+k+s)
249 000 € (3 458,33 € / m²)
72 m²

Tätä asuntoa myy Jussi Tamminen, Kiinteistönvälittäjä LKV, KTM
Huoneistokeskus Oy | Espoo

Sijainti
Asuntoesittely
Hyvä ylimmän kerroksen saunallinen kulmahuoneisto. Puistomaisessa Matinkylässä, lapsiystävällisellä alueella. Huoneiston lasitetulta eteläparvekkeelta on kaunis ja vehreä näkymä. Ikkunat ja parvekeovet uusittu 2025. Asunto on vapaa.
Sijainti Matinkylän ja Nuottaniemen merellisissä maisemissa, noin 20 minuutin päässä Helsingin keskustasta. Läheisiin kouluihin pääsee turvallisesti, aivan läheisyydessä sijaitsee päiväkoteja, myös englanninkielinen. Bussipysäkiltä kulkee bussilinja Iso Omenaan ja metrolle ja Suurpellon International Schoolille. Lähistöllä on kaksi lähikauppaa. Espoon rantaraitti ulottuu koko eteläisen Espoon alueelle ja houkuttelee nauttimaan merimaisemista. Rantaraitilla on useita yleisiä uimalaitureita, joista saa pulahtaa veteen. Uimaranta, venesatama, rantakahvilat ja -ravintolat ovat kaikki lähellä. Nokkalan saaristovenelaituri ja rantaravintola Nokkalan Majakka sijaitsevat nekin aika likellä. Tätä kaikkea on As. Oy Matinpyökki.
A beautiful and light apartment in top-tier floor in marine Matinkylä next to Nuottaniemi. Location relatively near to the sea, 20 minutes from Helsinki. Good layout for family living, beautiful and safe green surroundings. Day-care centers (also English) and schools are near. Matinkylä beach, cafeterias, marinas are all within reach. The surroundings call for outdoor activities. Bus connection to Iso Omena shopping center, metro station and International school (Suurpelto)
Service also in English.
SOITA JA SOVI YKSITYISESITTELY - PLEASE CALL AND BOOK A PRIVATE SHOWING.
Jussi Tamminen p. 040 5757 303 [email protected]
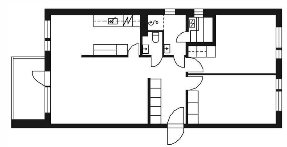
Pohjakuva

Perustiedot
- Sijainti
- Sepetlahdentie 12 G, 02230, Matinkylä, Espoo
- Omistusmuoto
- Omistusasunto
- Huoneluku
- 3
- Asuinpinta-ala
- 72 m²
- Muu pinta-ala
- 0 m²
- Kokonaispinta-ala
- 72 m²
- Pinta-alan peruste
- Isännöitsijäntodistuksen mukainen, Yhtiöjärjestyksen mukainen
- Kohteen tyyppi
- Kerrostalo
- Kerros
- 3 / 3
- Rakennusvuosi
- 1985
- Käyttöönottovuosi
- 1985
- Kohde myydään vuokrattuna
- Ei
- Vapautuminen
- Heti
Hinta ja kustannukset
- Velaton hinta
- 249 000 €
- Myyntihinta
- 242 935,75 €
- Velkaosuus
- 6 064,25 €
- Yhtiövastike
- Hoitovastike 342 € / kk, Rahoitusvastike 162,04 € / kk, Yhtiövastike yhteensä 504,04 € / kk
- Autopaikkamaksu
- 10 € / kk
- Saunamaksu
- 9 € / kk
- Sähköliittymä siirtyy
- Kyllä
- Neliöhinta
- 3 458,33 € / m²
- Lisätietoja maksusta
- Lisätietoja vastikkeista: Yhtiökokous 12.6.2024: Myönnettiin hallitukselle valtuudet periä tai jättää perimättä enintään kahden kuukauden ylimääräinen hoitovastike, taloudellisen tilanteen sitä edellyttäessä tai sen salliessa. Päätettiin yksimielisesti hallituksen esityksen mukaisesti lainanlyhennysrahastoa kartutettavan enintään tilikauden aikana suoritettujen kertasuoritusten, lainanlyhennysten ja osakassuoritusten määrällä. Ylimääräinen yhtiökokous 5.3.2025: Hyväksyttiin hallituksen ehdotus ikkunoiden uusimisesta sekä sälekaihtimien asentamisesta ikkunoihin. Kokonaiskustannusarvio on 396.500 euroa. Myytävälle huoneistolle 12 G 66 tämä tekee noin 7621 euroa
Tilat ja materiaalit
- Keittiön kuvaus
- Jääkaappi / pakastin 2020, kaapistot, keraaminen liesi 2024, liesituuletin / suodatin, integroitu mikroaaltouuni, astianpesukone 2024, kiinteät valaisimet, pesuallas, välitila kaakeli, lattia laminaatti, seinät maali.
- Kylpyhuone
- Suihku, peilikaappi, kylpyhuonekaapisto, pesuallas, pyyhekuivauspatteri (kaukolämmössä), kiinteä valaisin, ikkuna, mukavuuslattialämmitys, kokonaan laatoitettu.
- WC Lukumäärä
- 1
- Erillinen WC
- Wc-istuin, pesuallas, peilikaappi, pyyhekuivauspatteri (kaukolämmössä), bidee-suihku, kokonaan laatoitettu.
- Makuuhuoneet
- Kaapistot, lattia laminaatti, seinät maali. Toisessa makuuhuoneessa ranskalainen parveke.
- Makuuhuoneiden lukumäärä
- 2
- Olohuone
- Lattia laminaatti, seinät maali. Käynti lasitetulle eteläparvekkeelle.
- Säilytystilojen kuvaus
- Huoneistokohtainen varasto.
- Kohteen säilytystilat
- Huoneistokohtainen varasto.
- Sauna
- Kyllä
- Saunan kuvaus
- Sähkökiuas, lasiovi, ikkuna, lattia laatta, seinät puu.
Lisätiedot
- Asunnon kunto
- Tyydyttävä
- Näkymät
- Kauniit vehreät puistomaiset näkymät.
- Parveke
- Ranskalainen parveke ja lasitettu parveke
- Parvekkeen ilmansuunta
- Etelä
- Muut tilat
- Eteinen; vaatenaulakko, kaapisto, lattia laminaatti, seinät maali.
- Muuta kauppaan kuuluvaa
- Verhokiskot. Lisätietoja sisältyvistä varusteista: sälekaihtimet/rullaverhot.
- Muut kaupan kannalta merkittävät tiedot
- Taloyhtiön osakeluettelo on siirretty huoneistotietojärjestelmään. Ostajan tulee hakea omistusoikeuden rekisteröintiä Maanmittauslaitokselta. Ostaja vastaa tällöin omistusoikeuden rekisteröintikustannuksista, mahdollisista osakekirjan mitätöinnistä aiheutuvista kustannuksista sekä mahdollisesta hakemusmaksun korotuksesta. Ostajan pankin ostajalta mahdollisesti veloittamista kaupantekoon, omistusoikeuden rekisteröintiin tai panttausmerkinnän hakemiseen liittyvistä kustannuksista ostaja saa tiedon pankiltaan. Espoon Kaupungin päätös 8.11.2018: osakashallinnassa oleville parvekkeille ja huoneistopihoille on määrätty tupakointikielto.
Taloyhtiö ja kiinteistö
- Taloyhtiön nimi
- As. Oy Matinpyökki
- Isännöitsijätoimisto
- Matinkylän Huolto Oy
- Isännöitsijän nimi
- Janne Hellste
- Isännöitsijän sähköposti
- [email protected] (toimisto), [email protected]
- Tontin pinta-ala
- 6 332,5 m²
- Tontin omistus
- Oma
- Käyttö/luovutusrajoitukset
- Autotallien lunastusoikeus yhtiöjärjestyksen 6§:n mukaan. Kukin osakas vastaa hallitsemansa huoneiston parvekelasituksesta ja siihen liittyvistä muista asennuksista ja rakentamis-, korjaus-, kunnossapito- sekä huoltokustannuksista ja purkamisesta yhtiöjärjestyksen 5§:n mukaan.
- Rakennusmateriaali
- Betoni
- Lämmitysjärjestelmä
- Kaukolämpö
- Kattotyyppi
- tasa
- Katemateriaali
- kumibitumi
- Lisätietoja kiinteistönhoidosta
- Huoltoyhtiö
- Kiinteistönhoidon lisätiedot
- Matinkylän Huolto Oy
- Lunastusoikeus osakkaille
- Kyllä
- Kohteesta on energiatodistus
- Kyllä
- Energialuokka
- E2018
- Taloyhtiöön kuuluu
- Ilmanvaihtojärjestelmä: porraskohtainen koneellinen pois. Ulkoiluvälinevarasto, väestönsuoja, 2 kuivaushuonetta, 2 saunaa, huoneistokohtaiset varastot, 2 lastenvaunuvarastoa. Kaapeliyhtiö DNA/Welho (10 M perusnopeus). Tietoliikennejärjestelmä: yleinen kaapelointi
- Lisätietoja liikenneyhteyksistä
- Bussi, metro.
- Palvelut
- Iso Omena monipuolisine palveluineen 1 km, lähikauppa 200 m.
- Koulut
- Alueella
- Lisätietoja taloyhtiön autonsäilytyspaikoista
- 47 autopaikkaa.
- Autotallit
- 2
- Kaavatilanne
- Asemakaava
- Lisätiedot kaavoituksesta
- Espoon kaupunki vaihde 09 816 21
- Asbestikartoitus
- Ei
- Taloyhtiön kiinnitykset
- 1 037 600 €
Tehdyt remontit
Merkittäviä perusparannus- ja korjaushankkeita vuodesta 1992 alkaen
-ulkoaluerakenteiden, varusteiden ja –kalusteiden korjauksia
-rakennusten pohjarakenteiden korjauksia
-ulkopuolisten rakenteiden korjauksia
-ilmalämpöpumput (osakkaiden vastuulla) - F50, G60
-sisäpuolisten rakenteiden ja kalusteiden korjauksia
-huoneistokorjauksia (As. Oy:lle kuuluvia)
-pesuhuoneiden lattioiden ja seinien sekä löylyhuoneiden lattioiden kunnostuksia
-löylyhuoneiden kattojen ja seinien kunnostuksia
-LVI-järjestelmiin liittyviä korjauksia
-sähkö- ja tietojärjestelmiin liittyviä korjauksia.
Pyydä välittäjältä ja tutustu tarkemmin kunnossapidon periaateohjelmaan vuosille 2024 – 2033
Tulevat remontit
Kunnossapidon periaateohjelma vuodelle 2024 (LTS)
Palovaroittimien asennus huoneistoihin, ikkunoiden ja parvekeovien uusimisen hankesuunnittelu, väestönsuojan tiiveyskoe, jäte- ja sadeveden pohjaviemärien huuhtelu ja kuvaus, kiinteistökatselmuksen toimenpiteet, pesutilojen ja vesikalusteiden kuntotarkastus, leikkialueen turvatarkastus
Kunnossapidon periaateohjelma vuosille 2025 – 2028 (KPTS)
Julkisivujen kuntotutkimus, sähköautojen latauspisteiden asentaminen, IV-kojeiden uusiminen, savunpoistoikkunoiden asennus porrashuoneisiin, salaojien painehuuhtelu, jäte- ja sadeveden piha- ja pohjaviemärien painehuuhtelu, ilmanvaihtojärjestelmien puhdistus ja säätö, korvausilmaventtiilien suodattimien vaihto, poistoilmaventtiilien uusiminen, lukituksen uusiminen
Kunnossapidon periaateohjelma vuosille 2029– 2033 (PTS)
Jäte- ja sadeveden piha- ja pohjaviemärien painehuuhtelu, salaojien painehuuhtelu, sähköpääkeskusten peruskunnostus, porrashuoneiden huoltomaalaus, porrasvalaisimien uusiminen, 1- ja 3-talojen kellaritilojen huoltomaalaus, 1- ja 3-talojen kellarivalaisimien uusiminen, ilmanvaihtojärjestelmien puhdistus ja säätö, korvausilmaventtiilien suodattimien vaihto, alkuperäisten wc-istuimien uusiminen, lämmitysverkoston tasapainotus, huoneistojen löylyhuoneiden seinien ja kattojen kunnostus
Pyydä välittäjältä ja tutustu tarkemmin kunnossapidon periaateohjelmaan vuosille 2024 – 2033.