Slaissitie 3
99130, Sirkka Levi, Sirkka, Kittilä
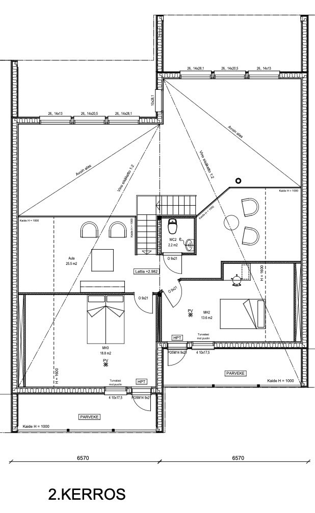
3-4 mh, olohuone, aula,ja eteinen, avokeittiö, kodinhoitohuone, pesuhuone sauna, 3 WC, vh, varasto
1 190 000 €
207 m²

Tätä asuntoa myy Jussi Pirhonen, Varatuomari, LKV
KotiSome Oy

Sijainti
Asuntoesittely
Upea loma-asunto Sirkassa, Levillä odottaa uusia omistajiaan! Tämä vuonna 2023 valmistunut huvila tarjoaa täydelliset puitteet rentouttavaan lomailuun Lapin kauniissa maisemissa. Tilava 207 m²:n huvila on sisustettu tyylikkäästi ja on täysin kalustettu, joten voit muuttaa tähän huvilaan vaivattomasti.
Huvilan avara olohuone ja avokeittiö muodostavat viihtyisän kokonaisuuden, jossa suuri ikkuna-ala tuo sisään runsaasti luonnonvaloa. Neljä makuuhuonetta tarjoavat runsaasti tilaa isollekin perheelle tai ystäväseurueelle. Saunaosasto on tyylikäs ja laadukkailla materiaaleilla varustettu, mikä luo rentouttavan ja ylellisen saunomiskokemuksen.
Ulkoalueella on katettu terassi, josta löytyy 5 hengen poreamme ja josta avautuvat upeat näkymät ympäröivään luontoon. Iso autotalli ja huvimaja täydentävät tämän upean kokonaisuuden.
Huvila on varustettu modernilla tekniikalla, kuten maalämmöllä ja ilmalämpöpumpulla, mikä tekee siitä energiatehokkaan valinnan. Sijainti on erinomainen, sillä Ski-Bus pysähtyy noin 500 metrin päässä ja Kittilän lentokenttä on helposti saavutettavissa.
Tämä huolella suunniteltu ja rakennettu huvila on täydellinen valinta niille, jotka arvostavat laatua ja mukavuutta Lapin luonnon helmassa. Tartu tilaisuuteen ja tee tästä unelmiesi lomakoti!
Lisätiedot ja esittelyistä sopiminen Varatuomari, LKV, Broker Jussi Pirhonen / [email protected] / 0400 923 905.
- - - -
A magnificent vacation home in Sirkka, Levi, awaits its new owners! Completed in 2023, this villa offers the perfect setting for a relaxing vacation in the beautiful landscapes of Lapland. The spacious 207 m² villa is stylishly decorated and fully furnished, so you can move in effortlessly.
The villa's spacious living room and open kitchen form a cozy whole, with large windows bringing in plenty of natural light. Four bedrooms offer plenty of space for the whole family or a group of friends. The sauna area creates a relaxing and luxurious sauna experience.
The outdoor area has a covered terrace with a 5-person hot tub and stunning views of the surrounding nature. A garage and gazebo complete the package.
The villa is equipped with modern technology, such as geothermal heating and an air source heat pump, making it an energy-efficient choice. The location is excellent, with the Ski-Bus stopping about 500 meters away and Kittilä Airport within easy reach.
This carefully designed and built villa is the perfect choice for those who appreciate quality and comfort in the heart of Lapland's nature. Seize the opportunity and make this your dream vacation home!
For more information and to arrange a viewing, please contact Jussi Pirhonen, LKV, Broker / [email protected] / +358 400 923 905.
Pohjakuva


Perustiedot
- Sijainti
- Slaissitie 3, 99130, Sirkka Levi, Sirkka, Kittilä
- Huoneluku
- 5
- Asuinpinta-ala
- 207 m²
- Muu pinta-ala
- 53 m²
- Kokonaispinta-ala
- 260 m²
- Pinta-alan peruste
- Pinta-ala ei ole tarkistusmitattu ja todellinen pinta-ala voi olla suurempi tai pienempi, kuin ilmoitettu
- Lisätiedot pinta-alasta
- Autotalli 40m2 ja Huvimaja 13m2
- Kohteen tyyppi
- Mökki tai huvila
- Rakennusvuosi
- 2023
- Lisätietoja rakennusvuodesta
- Loppukatselmus pitämättä, myyjä hoitaa ennen kauppakirjojen allekirjoitusta.
- Käyttöönottovuosi
- 2023
- Kohde myydään vuokrattuna
- Ei
- Vapautuminen
- Sopimuksen mukaan
Hinta ja kustannukset
- Velaton hinta
- 1 190 000 €
- Myyntihinta
- 1 190 000 €
- Kiinteistövero (€/vuosi)
- 2 221,40 €
- Sähköliittymä siirtyy
- Kyllä
- Neliöhinta
- 5 748,79 € / m²
- Lisätietoja maksusta
- Vesi, jätevesi ja sähkö kulutuksen mukaan. Kokonaissähkönkulutus on ollut 23-25 000Kwh kun huvilassa on asuttu ympäri vuoden.
Tilat ja materiaalit
- Keittiön lattiat
- Komposiittivinyyli
- Keittiön seinät
- Maali
- Keittiön varusteet
- Jääkaappi, jääkaappipakastin, uuni, liesi, liesituuletin, mikroaaltouuni, astianpesukone, ja keittiösaareke
- Liesi
- Induktioliesi
- Kylpyhuoneen seinät
- Kaakeli
- Kylpyhuoneen lattiat
- Laatta
- Kylpyhuoneen varusteet
- Suihku, suihkuseinä, ja lattialämmitys
- WC Lukumäärä
- 3
- Erillinen WC
- 2 WC laattalattia, kaakeli seinät, yksi WC lattia laatta, seinissä tapetti.
- Makuuhuoneiden lukumäärä
- 4
- Makuuhuoneiden seinät
- Maali
- Makuuhuoneiden lattiat
- Komposiittivinyyli
- Olohuoneen seinät
- Maali
- Olohuoneen lattiat
- Komposiittivinyyli
- Kodinhoitohuoneen varusteet
- Pesukone, kuivausrumpu, lattiakaivo, lattialämmitys, pesuallas, kurapiste, ja pöytätaso
- Kodinhoitohuoneen seinät
- Maali
- Kodinhoitohuoneen lattiat
- Laatta
- Kohteen säilytystilat
- Vaatehuone, lämmin ulkovarasto, seinäkaapit ja kaapistot
- Sauna
- Kyllä
- Kiuas
- Sähkökiuas
- Saunan kuvaus
- Seinät ja katto tervaleppä, lauteet lämpökäsitelty haapa
- Takka
- Takka, varaava takka ja contura
Lisätiedot
- Asunnon kunto
- Erinomainen
- Parveke
- Lasitettu parveke
- Parvekkeen ilmansuunta
- Länsi
- Terassi
- Kyllä
- Lisätietoja terassista
- Katettu ympärikäveltävä terassi lasikaiteilla.
- Piha
- Murske, kuntta, luonnontila
- Ranta
- Ei rantaa
- Kohde on saaressa
- Ei
- Muuta kauppaan kuuluvaa
- Polttopuut kuuluvat kauppaan
Taloyhtiö ja kiinteistö
- Tontin pinta-ala
- 1 591 m²
- Tontin omistus
- Oma
- Tontin myyntityyppi
- Koko tontti
- Rakennusmateriaali
- Puu ja hirsipaneeli
- Lämmitysjärjestelmä
- Maalämpö Ilmalämpöpumppu Vesivaraaja Lattialämmitys
- Ilmanvaihto
- Koneellinen ilmanvaihto ja ilmastointilaite
- Vesijohto
- Kunnallisvesi
- Viemäröinti
- Kunnallinen viemäriverkosto
- Kattotyyppi
- Harjakatto
- Katon kunto
- Hyvä
- Katemateriaali
- Huopa
- Kohteesta on energiatodistus
- Kohteella ei energiatodistuslain nojalla tarvitse olla energiatodistusta
- Liikenneyhteydet
- Lentokenttä
- Lisätietoja liikenneyhteyksistä
- Ski-Bus noin 500m
- Tie perille
- Kyllä
- Kaavatilanne
- Asemakaava
- Kaavoitustiedot
- Kittilän kunta
- Rakennusvaihe
- Valmis
- Muut rakennukset
- Autotalli ja huvimaja
