Sorvarintie 4
61800, Keskusta, Kauhajoki
6h + k + ak + halli
169 000 €
120 m²

Tätä asuntoa myy Riku Nurmela
Luxuskodit LKV

Sijainti
Asuntoesittely
Toimitilat ja koti samassa osoitteessa? Yrittäjälle mahdollisuus!
Löydä uusi kotisi Kauhajoen sydämestä, jossa monien mahdollisuuksien kiinteistö tarjoaa tilaa ja mahdollisuuksia suuremmallekin perheelle tai yrittäjälle, joka arvostaa asumisen ja työnteon yhdistämisen helppoutta. Tämä vuonna 1996 perusteellisesti remontoitu ja laajennettu koti sijaitsee omalla, yli 6000 neliömetrin tontilla, tarjoten rauhallista asumista lähellä kaupungin keskustan palveluita.
Kodin sydämessä on kuusi huonetta, jotka tarjoavat monipuoliset puitteet arjen eri tarpeisiin – työhuoneesta lasten leikkitilaan. Keittiö on uusittu vuonna 2009 ja kutsuu kokkaamaan yhdessä perheen kanssa, Lisäksi talossa on sauna, jossa voit rentoutua pitkän päivän päätteeksi. Talossa öljy+sähkö lämmitysmuotona. Sähköllä lämpiää vain ns. uusi osa, eli pienempi osa talosta. Kiinteistöllä myös mahdollisuus liittyä kaukolämpöön! Kun toimit nopeasti, saat vielä tähän valtion tuen.
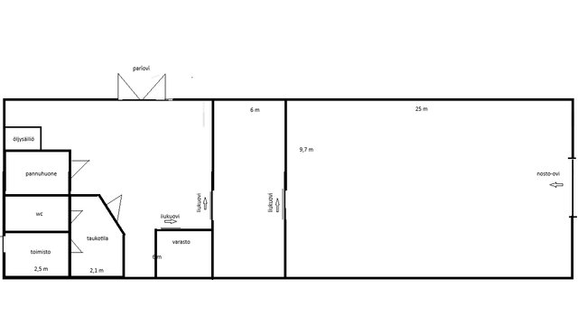
Tontilla sijaitsee myös 475 neliömetrin halli, joka tarjoaa runsaasti tilaa vaikkapa yritystoimintaan, harrastuksiin tai varastointiin. Ja mikäli itselläsi ei hallitilalle ole käyttöä, voit vaikkapa vuokrata sen. Vuokratuloilla kattaa helposti asumiskulut. Halliin kulku kätevästi myös sisäkautta. Autokatos pitää autot suojassa säältä, ja kaksi terassia – sekä etu- että takapuolella – tarjoavat ihanteelliset puitteet kesäpäivien viettoon.
Sijainti on ihanteellinen: koulukeskus sijaitsee vain noin 500 metrin päässä ja päiväkoti noin kilometrin päässä, mikä tekee tästä kodista erinomaisen valinnan myös lapsiperheille. Keskustan palvelut ovat vain noin kilometrin päässä, joten kaikki tarvittava on lähellä, mutta asut silti rauhallisella alueella.
Tämä koti on säilyttänyt charmikkaan luonteensa vuosien varrella, ja se tarjoaa ainutlaatuisen yhdistelmän tilaa, sijaintia ja mahdollisuuksia. Olitpa sitten etsimässä tilaa perheellesi tai paikkaa, jossa yhdistää koti ja työ, tämä talo tarjoaa ainutlaatuiset puitteet unelmiesi toteuttamiseen. Tutustu tähän ainutlaatuiseen kotiin ja anna sen inspiroida sinua – tervetuloa kotiin, joka kasvaa ja muuntautuu tarpeidesi mukaan. Varaa oma henkilökohtainen esittelyaikasi, niin mennään yhdessä suunnittelemaan, mitä juuri sinä voisit täällä toteuttaa!
Tee rohkeasti tarjous! (Myyjä pidättää oikeuden hyväksyä tai hylätä tarjous)
Onko oma koti vielä myymättä? Pyydä ilmainen arviokäynti! 0405812981, [email protected]
Pohjakuva

Perustiedot
- Sijainti
- Sorvarintie 4, 61800, Keskusta, Kauhajoki
- Huoneluku
- 6
- Asuinpinta-ala
- 120 m²
- Muu pinta-ala
- 475 m²
- Kokonaispinta-ala
- 595 m²
- Pinta-alan peruste
- Pinta-ala ei ole tarkistusmitattu ja todellinen pinta-ala voi olla suurempi tai pienempi, kuin ilmoitettu
- Lisätiedot pinta-alasta
- Ei tarkistusmitattu. Pinta-ala voi siis olla edellä mainittua pienempi tai suurempi.
- Kohteen tyyppi
- Omakotitalo
- Rakennusvuosi
- 1996
- Lisätietoja rakennusvuodesta
- Alkuperäinen rakennusvuosi 1967, laajenusosa 1979, lisälaajennus 1983, Asuintilan lisälaajennus ja remontti 1996
- Kohde myydään vuokrattuna
- Ei
- Vapautuminen
- Sopimuksen mukaan
Tilat ja materiaalit
- Keittiön lattiat
- Muovimatto
- Keittiön seinät
- Tapetti
- Keittiön varusteet
- Jääkaappi, uuni, liesi, liesituuletin, ja astianpesukone
- Kylpyhuoneen seinät
- Kaakeli ja puolipaneeli
- Kylpyhuoneen lattiat
- Laatta
- Kylpyhuoneen varusteet
- WC-istuin, suihku, pesukoneliitäntä, ja lattialämmitys
- WC Lukumäärä
- 3
- Makuuhuoneiden lukumäärä
- 5
- Makuuhuoneiden seinät
- Tapetti
- Makuuhuoneiden lattiat
- Muovimatto
- Olohuoneen seinät
- Tapetti
- Olohuoneen lattiat
- Muovimatto
- Säilytystilojen kuvaus
- 475 neliöinen halli
- Kohteen säilytystilat
- Lämmin ulkovarasto ja kaapistot
- Sauna
- Kyllä
- Kiuas
- Sähkökiuas
- Takka
- Ei takkaa
Lisätiedot
- Asunnon kunto
- Hyvä
- Lisätietoja kunnosta
- Kohde hyvässä peruskunnossa, Pinnat osittain alkuperäiset, mutta erittäin siistit.
- Terassi
- Kyllä
- Lisätietoja terassista
- Terassit sekä etu - että takapuolella
- Ranta
- Ei rantaa
- Kohde on saaressa
- Ei
- Muuta kauppaan kuuluvaa
- Kaapistot
Taloyhtiö ja kiinteistö
- Tontin pinta-ala
- 6 030 m²
- Tontin omistus
- Oma
- Tontin tyyppi
- Tasamaatontti
- Tontin myyntityyppi
- Koko tontti
- Rakennusmateriaali
- Puu
- Lämmitysjärjestelmä
- Öljy Sähkö Tyyppi: Patterit asuinosassa Kustannukset: 11500 kWh / vuosi
- Ilmanvaihto
- Painovoimainen
- Kattotyyppi
- Harjakatto
- Katemateriaali
- Pelti
- Rakennusoikeus
- 3618
- Rakennusoikeus e-luku
- 0.6
- Kohteesta on energiatodistus
- Ei lain edellyttämää energiatodistusta
- Tie perille
- Kyllä
- Palvelut
- Keskustan palvelut 1km päässä, kaupat 2km
- Koulut
- Koulukeskus 500m
- Kaavatilanne
- Asemakaava
- Rakennusvaihe
- Valmis
- Asbestikartoitus
- Ei
- Muut rakennukset
- Autokatos ja halli
- Lisätietoa muista rakennuksista
- 475 neliöinen halli, autokatos
Tehdyt remontit
Asuinosan täysi remontti ja laajennus 1996, Putkiremontti 1996, Käyttövesiputket 2023, Patteritermostaatit 2023, Keittiö 2009, Pesuhuone osittain 2021.
