Suvituulentie 22
40530, Sarvivuori, Jyväskylä
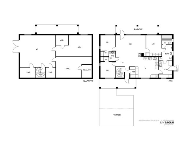
4h, k, khh, kph, s, erill.wc, 2vh, parv, autotalli/varastot, autokatos
220 000 €
111 m²

Tätä asuntoa myy Ossi Louhivaara, Kiinteistönvälittäjä LKV, KiLAT
Kiinteistönvälitys LKV Savolin Oy

Sijainti
Asuntoesittely
Etsitkö omakotitaloa, jossa reilusti tilaa askarrella ja touhuta.
Tämä viehättävä omakotitalo Jyväskylän Sarvivuoressa tarjoaa täydellisen kodin perheelle. Talo sijaitsee omalla 1351 m² suojaisalla tontilla, joka rajoittuu puistoalueeseen, tarjoten rauhaa ja luonnonläheisyyttä. Viimeistellyllä tontilla reilusti tilaa viettää perheen yhteistä aikaa sekä halutessaan mahdollista jatkaa puutarhan hoitoa. Piha-aitassa mukava viettää kesäöitä.
Vuonna 1989 valmistunut talo on kahdessa kerroksessa, jonka ehdoton valtti on 111 m² asuintilojen lisäksi koko alakerroksen kokoinen autotalli- ja varastotila, mahdollistaen autojen korjailun ja rassailun kotioloissa tai vaikkapa taidepajan pyörittämisen. Tontilla lisäksi autokatos.
Talossa on kolme makuuhuonetta, valoisa olohuone varaavalla takalla ja ilmalämpöpumpulla, sekä hyvin varusteltu keittiö, jonka puuhella tarjoaa lisälämpöä ja -mahdollisuutta ruoanlaittoon. Saunassa voit rentoutua sähkökiukaan lämmössä ja kodinhoitohuoneessa on oma uloskäynti, mikä helpottaa arjen askareita varsinkin lapsien ja lemmikkien kanssa.
Talossa on tehty merkittäviä remontteja, kuten viemäreiden sukitus ja käyttövesiputkien uusiminen vuonna 2025 sekä katto uusittu 2015, mitkä lisäävät asumisen huolettomuutta.
Sijaintina Sarvivuori on hyvä. Läheltä löytyy mm. päiväkoti, koulu, kirjasto, kauppa ja pitseria. Keljon kauppakeskuskin lyhyen etäisyyden päässä. Sääksjärven uimaranta kävelyetäisyyden säteellä, joka tarjoaa myös talviuinti mahdollisuuden. Alueelta hyvät liikenneyhteydet keskustan suuntaan.
Tartu tilaisuuteen ja tee tästä talosta perheesi uusi koti!
Kysy lisää ja sovi oma esittelyaikasi:
Ossi Louhivaara
050 3665193
[email protected]
Perustiedot
- Sijainti
- Suvituulentie 22, 40530, Sarvivuori, Jyväskylä
- Huoneluku
- 4
- Asuinpinta-ala
- 111 m²
- Muu pinta-ala
- 143 m²
- Kokonaispinta-ala
- 254 m²
- Pinta-alan peruste
- Pinta-ala ei ole tarkistusmitattu ja todellinen pinta-ala voi olla suurempi tai pienempi, kuin ilmoitettu
- Lisätiedot pinta-alasta
- Talon pinta-alatiedot rakennuslupapiirustuksista ja asiakastiedoista. Rakennuslupa-asiakirjoissa: Huoneistoala 111 m² Kerrosala 264 m² Suomen Asiakastietojen kautta: Asuintilojen pinta-ala 111 m² Kokonaisala 254 m² Kiinteistöllä lisäksi puuvaja/varasto 10m², autokatos ja piha-aitta.
- Kohteen tyyppi
- Omakotitalo
- Kerros
- 2
- Rakennusvuosi
- 1989
- Kohde myydään vuokrattuna
- Ei
- Vapautuminen
- Sopimuksen mukaan
Tilat ja materiaalit
- Keittiön lattiat
- Laatta
- Keittiön seinät
- Laatta ja lasikuitutapetti
- Keittiön varusteet
- Jääkaappi, liesi, uuni, liesituuletin, puuliesi, ja astianpesukone
- Liesi
- Keraaminen liesi
- Kylpyhuoneen seinät
- Kaakeli
- Kylpyhuoneen lattiat
- Laatta
- Kylpyhuoneen varusteet
- WC-istuin, suihku, lattialämmitys, peilikaappi, pesuallas, ja bidee-suihku
- WC Lukumäärä
- 1
- WC:n lattiat
- Laatta
- WC:n seinät
- Kaakeli
- Makuuhuoneiden lukumäärä
- 3
- Makuuhuoneiden seinät
- Maali ja tapetti
- Makuuhuoneiden lattiat
- Laminaatti
- Olohuone
- Valoisa olohuone, jossa varaavatakka ja ilmalämpöpumppu
- Olohuoneen seinät
- Maali ja tapetti
- Olohuoneen lattiat
- Laminaatti
- Kodinhoitohuoneen varusteet
- Pesukoneliitäntä, lattialämmitys, pesuallas, lattiakaivo, pöytätaso, ja pyykkikaapit
- Kodinhoitohuoneen seinät
- Lasikuitutapetti
- Kodinhoitohuoneen lattiat
- Laatta
- Säilytystilojen kuvaus
- - Vaatehuone 2kpl - Kaapistot - Alakerta (autotalli ja varastotilat) - Ulkovarasto
- Sauna
- Kyllä
- Kiuas
- Sähkökiuas
- Takka
- Varaava takka
Lisätiedot
- Asunnon kunto
- Tyydyttävä
- Parveke
- On parveke
- Parvekkeen ilmansuunta
- Etelä ja lounas
- Muut tilat
- Eteisestä portaat alakertaan, jossa autotalli ja reilusti varastotiloja. Autotalli mahdollista lämmittää seinässä olevasta lämpöpuhaltimesta.
- Lisätietoa seinien pintamateriaaleista
- Seinäpinnat tapetoitu/maalattu. Kylpyhuoneessa ja erillisessä wc:ssä laatoitettu.
- Lisätietoa lattioiden pintamateriaaleista
- Lattiat laminaattia/laattaa.
Taloyhtiö ja kiinteistö
- Tontin pinta-ala
- 1 351 m²
- Tontin omistus
- Oma
- Tontin tyyppi
- Rinnetontti
- Tontin myyntityyppi
- Koko tontti
- Tontin tiedot
- Päättyvän tien päässä suojainen ja porrastettu tontti. Tontti rajoittuu puistoalueeseen.
- Rakennusmateriaali
- Betoni, puu ja tiili
- Lämmitysjärjestelmä
- Sähkö Kustannukset: 10500 kWh / vuosi Ilmalämpöpumppu Puu
- Ilmanvaihto
- Koneellinen ilmanvaihto
- Vesijohto
- Kunnallisvesi
- Viemäröinti
- Kunnallinen viemäriverkosto
- Kattotyyppi
- Harjakatto
- Katon kunto
- Hyvä
- Katemateriaali
- Pelti
- Rakennusoikeus
- 270.2
- Rakennusoikeus e-luku
- 0.2
- Kohteesta on energiatodistus
- Kyllä
- Energialuokka
- D2018
- Energiatodistuksen voimassaolo
- 21.10.2035
- Lisätietoja energiatodistuksesta
- Todistuksen laatimispäivä 21.10.2025
- Kaavatilanne
- Asemakaava
- Kaavoitustiedot
- kartta.jkl.fi / Jyväskylän kaupunki
- Kuntotarkastus tehty
- 15.10.2025
- Rakennusvaihe
- Valmis
- Asbestikartoitus
- Ei
- Lisätietoa muista rakennuksista
- - Autokatos - Kevythirsiaitta - Puuliiteri/varasto 2013
Tehdyt remontit
- 2025 Viemärit sukitettu ja käyttövesiputket uusittu
- 2022 Julkisivun puuosien huoltomaalaus
- 2015 Vesikate uusittu ja korjattu 2022, kun lumiesteet repeytyneet
- 2015 Ilmanvaihtokone uusittu, yläpohjan lisälämmöneristys ja 2 kpl ulko-ovia uusittu
