Svingikuja 1
73310, Tahkovuori, Kuopio
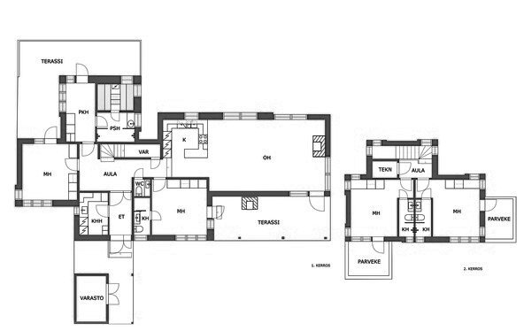
oh, k, 4 mh, 4 kh, s, pkh, khh, 4 wc, varasto
550 000 € (3 160,92 € / m²)
174 m²

Tätä asuntoa myy Jukka Leskinen, Kiinteistönvälittäjä, LKV LVV
Huoneistokeskus Oy | Kuopio

Sijainti
Asuntoesittely
Tyylikäs loma-asunto golfkentän laidalla – upeat näkymät järvelle
Tervetuloa tutustumaan tähän vuonna 2006 valmistuneeseen, korkeatasoiseen vapaa-ajan asuntoon, joka sijaitsee ainutlaatuisella paikalla aivan golfkentän äärellä. Suuret ikkunat ja lasitettu terassi avautuvat kauniille järvimaisemalle – täällä luonto ja mukavuus kohtaavat harmonisesti.
Tässä tilavassa lomakodissa on neljä makuuhuonetta, joiden yhteydessä on kylpyhuone suihkuineen – täydellinen ratkaisu niin omalle perheelle kuin vieraillekin. Avara olohuone yhdistyy luontevasti ruokailu- ja keittiötilaan, ja takkatulen äärellä viihtyy niin kesäiltaisin kuin talvipakkasillakin.
Saunaosastolta on käynti suoraan terassille, mikä tekee löylyhetkistä vieläkin nautinnollisempia. Lasitettu, tulisijalla varustettu terassi toimii tunnelmallisena oleskelutilana aikaisesta keväästä pitkälle syksyyn.
Asunto myydään kalustettuna, joten voit muuttaa sisään ja nauttia lomailusta heti. Oma 1 115 m² tontti tarjoaa rauhaa ja tilaa ympärillesi.
Tämä kohde tarjoaa loistavan mahdollisuuden laadukkaaseen lomailuun – ja miksei myös etätyöskentelyyn upeissa puitteissa.
Pohjakuva

Perustiedot
- Sijainti
- Svingikuja 1, 73310, Tahkovuori, Kuopio
- Omistusmuoto
- Omistusasunto
- Huoneluku
- 5
- Asuinpinta-ala
- 174 m²
- Kokonaispinta-ala
- 174 m²
- Pinta-alan peruste
- Isännöitsijäntodistuksen mukainen, Yhtiöjärjestyksen mukainen
- Lisätiedot pinta-alasta
- Pinta-alatieto ilmoitettu kerrosalana.
- Kohteen tyyppi
- Mökki tai huvila
- Kerros
- 1-2 / 2
- Rakennusvuosi
- 2006
- Käyttöönottovuosi
- 2006
- Kohde myydään vuokrattuna
- Ei
- Vapautuminen
- Sopimuksen mukaan
Hinta ja kustannukset
- Velaton hinta
- 550 000 €
- Myyntihinta
- 550 000 €
- Yhtiövastike
- Hoitovastike 661,20 € / kk (3,80 € / m²), Yhtiövastike yhteensä 661,20 € / kk
- Neliöhinta
- 3 160,92 € / m²
Tilat ja materiaalit
- Keittiön lattiat
- Parketti
- Keittiön seinät
- Maali
- Keittiön varusteet
- Jääkaappipakastin, erillisuuni, liesituuletin, mikroaaltouuni, ja astianpesukone
- Liesi
- Induktioliesi
- Kylpyhuone
- Rakennuksessa on erillinen saunaosasto. Kolmen makuuhuoneen yhteydessä on oma kylpyhuone, jossa suihku ja wc.
- Kylpyhuoneen seinät
- Kaakeli
- Kylpyhuoneen lattiat
- Laatta
- Kylpyhuoneen varusteet
- Suihku, suihkuseinä, pesukone, pesukoneliitäntä, kuivauskaappi, lattialämmitys, ja peili
- WC Lukumäärä
- 3
- WC:n lattiat
- Laatta
- WC:n seinät
- Kaakeli
- Makuuhuoneet
- Yläkerran makuuhuoneissa on parveke.
- Makuuhuoneiden lukumäärä
- 4
- Makuuhuoneiden seinät
- Maali
- Makuuhuoneiden lattiat
- Parketti
- Olohuone
- Olohuoneessa on takka.
- Olohuoneen seinät
- Maali
- Olohuoneen lattiat
- Parketti
- Kohteen säilytystilat
- Ulkovarasto
- Sauna
- Kyllä
- Kiuas
- Sähkökiuas
- Takka
- Takka
Lisätiedot
- Asunnon kunto
- Hyvä
- Näkymät
- Komeat näkymät viereiselle golfkentälle ja Syväri -järvelle.
- Parveke
- Lasitettu parveke
- Parvekkeen ilmansuunta
- Etelä ja länsi
- Terassi
- Kyllä
- Lisätietoja terassista
- Näkymiä viereiselle golfkentälle ja Syvärille.
- Piha
- Pihalla nurmikkoa ja koristeistutuksia.
- Muut tilat
- Kiinteistössä on kaksi isoa terassia, joista toisessa on lasitus. Yläkerrassa on kaksi parveketta.
- Muuta kauppaan kuuluvaa
- Kalustus ja muu irtain erillisen ostotarjouksen mukaisesti.
- Kauppaan ei kuulu
- Mahdollinen henkilökohtainen irtain.
Taloyhtiö ja kiinteistö
- Taloyhtiön nimi
- Kiinteistö Oy Tahkon Twinhills 212
- Isännöitsijätoimisto
- Retta Isännöinti Oy, Kuopio
- Isännöitsijän nimi
- Teemu Jääskeläinen
- Isännöitsijän puhelin
- 010 228 8200
- Tontin pinta-ala
- 1 115 m²
- Tontin omistus
- Oma
- Rakennusmateriaali
- Puu, kivi ja betoni
- Lämmitysjärjestelmä
- Sähkö Ilmalämpöpumppu
- Ilmanvaihto
- Koneellinen ilmanvaihto ja ilmanvaihtokone
- Vesijohto
- Kunnallisvesi
- Viemäröinti
- Kunnallinen viemäriverkosto
- Kattotyyppi
- Harjakatto
- Katemateriaali
- Tiili
- Rakennusoikeus
- 196.2
- Lisätietoja kiinteistönhoidosta
- Huoltoyhtiö
- Kiinteistönhoidon lisätiedot
- Tahkon Talkkarit Oy ja konelumityöt V. P. Airaksinen Oy.
- Taloyhtiössä on
- Kaapeli-tv ja ulkovarasto
- Lunastusoikeus yhtiöllä
- Ei
- Lunastusoikeus osakkaille
- Ei
- Kohteesta on energiatodistus
- Kohteella ei energiatodistuslain nojalla tarvitse olla energiatodistusta
- Lisätietoja liikenneyhteyksistä
- Alueella on maksuton Skibussi sesonkiaikoina, lähin pysäkki n. 300 m.
- Palvelut
- Rakennus sijaitsee golfkentän (Old Course) alueella, golfklubille n. 1 km, Piazza, ravintolat, kaupat n. 1 km, rinteille n. 1,7 km
- Huoneistoon kuuluu yhtiöjärjestyksen mukaan autopaikka
- Pistokkeellinen pihapaikka
- Lisätietoja huoneiston autopaikasta
- Autopistokepaikat rakennuksen etupihalla.
- Taloyhtiön autopaikat
- Mökkikohtaiset autopistokepaikat kunkin mökin piha-alueella.
- Kaavatilanne
- Asemakaava ja yleiskaava
- Lisätiedot kaavoituksesta
- www.kuopio.fi/kaavat, (017) 182 111
- Taloyhtiön kiinnitykset
- 2 990 271 €
