Svingitie 14
73310, Tahkovuori, Kuopio
oh, k, 4 mh + kph/wc, erill. wc, th/kph, saunaosasto, khh/vh, useita varastoja, lasitettu terassi säteilylämmittimellä ja takalla
745 000 €
290 m²

Tätä asuntoa myy Jukka Leskinen, Kiinteistönvälittäjä, LKV LVV
Huoneistokeskus Oy | Kuopio

Sijainti
Asuntoesittely
Huippupaikalla Tahkolla, keskustan Old Course -kentän ympäröimänä, vuonna 2005 valmistunut, tyylikäs loma-asunto, jossa tilaa riittää niin majoittumiseen kuin edustamiseenkin. Kiinteistössä on mm. laadukkaat pintamateriaalit, kylpyhuoneet jokaisen makuuhuoneen yhteydessä ja ennekaikkea, hienot näkymät mäen päältä golfkentälle ja Syväri -järvelle. Näyttävät takat löytyvät olohuoneesta ja lasitetulta terassilla. Autoille on pihalla kolme katospaikkaa. Rauhallinen sijainti kadun päässä. Esittelyt sopimuksen mukaan.
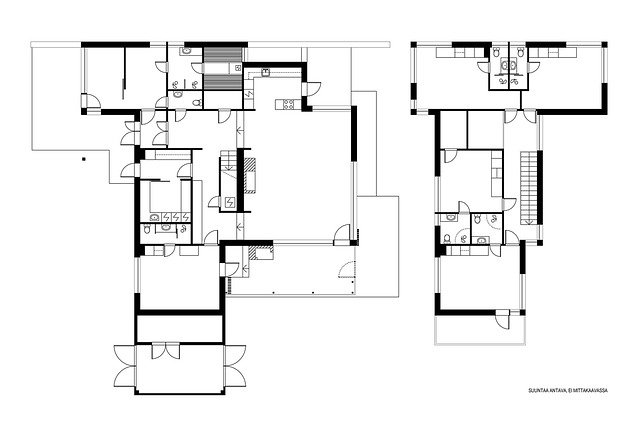
Pohjakuva

Perustiedot
- Sijainti
- Svingitie 14, 73310, Tahkovuori, Kuopio
- Omistusmuoto
- Omistusasunto
- Huoneluku
- 6
- Asuinpinta-ala
- 290 m²
- Kokonaispinta-ala
- 320 m²
- Lisätiedot pinta-alasta
- Kerrosala on 290 m2 ja kokonaispinta-ala on 320 m2. Pinta-aloja ei ole tarkistusmitattu.
- Kohteen tyyppi
- Mökki tai huvila
- Kerros
- 2
- Rakennusvuosi
- 2005
- Käyttöönottovuosi
- 2005
- Kohde myydään vuokrattuna
- Ei
- Vapautuminen
- Sopimuksen mukaan
Hinta ja kustannukset
- Velaton hinta
- 745 000 €
- Myyntihinta
- 745 000 €
- Sähköliittymä siirtyy
- Kyllä
- Neliöhinta
- 2 568,97 € / m²
- Lisätietoja maksusta
- Tietoja tiemaksuista: 308,35. Tietoja kiinteistöverosta: 2964,25. Lisätietoja vastikkeista: Sähkön kulutus vaihdellut välillä 28 - 33 000 KWh. Kulutuksen vaikuttaa sääolosuhteet, käyttöaste ja käyttötottumukset. Tiemaksu sisältää myös aurauksen mutta ei pihan pudistusta. Varainsiirtovero 3% kauppahinnasta.
Tilat ja materiaalit
- Keittiön kuvaus
- Keittiön työtasot massiivipuuta.
- Keittiön lattiat
- Kivi
- Keittiön varusteet
- Erillisuuni, mikroaaltouuni, liesituuletin, astianpesukone, liesi, jääkaappipakastin, ja liesitaso, kiinteät valaisimet
- Liesi
- Induktioliesi ja liesitaso erillisuuni
- Kylpyhuone
- Useita kylpyhuoneita, joissa varustelu vaihtelee.
- Kylpyhuoneen seinät
- Kaakeli
- Kylpyhuoneen lattiat
- Laatta
- Kylpyhuoneen varusteet
- Lattialämmitys, suihku, ja kiinteät valaisimet
- WC Lukumäärä
- 6
- Erillinen WC
- Rakennuksessa on useita wc-tiloja, joissa varustelu vaihtelee.
- WC:n lattiat
- Laatta
- WC:n seinät
- Kaakeli
- Makuuhuoneiden lukumäärä
- 4
- Makuuhuoneiden lattiat
- Parketti
- Olohuone
- olohuoneen lattia massiiviparkettia
- Olohuoneen lattiat
- Parketti
- Kodinhoitohuoneen varusteet
- Lattialämmitys, pöytätaso, pesukoneliitäntä, kuivauskaappi, pesukone, ja kuivausrumpu
- Kodinhoitohuoneen lattiat
- Laatta
- Säilytystilojen kuvaus
- Vaatehuone/varasto. Ulkosisävarasto. Moottorikelkkatalli/ulkovarasto.
- Kohteen säilytystilat
- Vaatehuone, ulkovarasto ja vaatehuone/varasto. ulkosisävarasto. moottorikelkkatalli/ulkovarasto.
- Sauna
- Kyllä
- Kiuas
- Sähkökiuas
- Takka
- Takka
Lisätiedot
- Asunnon kunto
- Hyvä
- Terassi
- Kyllä
- Lisätietoja terassista
- Lasitettu terassi, Patio
- Muut tilat
- Pintamateriaalit vaihtelevat tiloittain.
- Muuta kauppaan kuuluvaa
- Lisätietoja sisältyvistä varusteista: hälytys- /valvontajärjestelmä, ilmalämpöpumppu, kiinteät valaisimet, kuivauskaappi/-rumpu, lämminvesivaraaja, pyykinpesukone, sälekaihtimet/rullaverhot
- Kauppaan ei kuulu
- Kauppaan kuulmattomasta irtaimesta on laadittu erillinen luettelo.
Taloyhtiö ja kiinteistö
- Tontin pinta-ala
- 0,12 ha
- Tontin omistus
- Oma
- Tontin tyyppi
- Tasamaatontti
- Tontin myyntityyppi
- Koko tontti
- Tontin tiedot
- 1 200 m2
- Rakennusmateriaali
- Puu ja harkko, muu kivi
- Lämmitysjärjestelmä
- Puu Ilmalämpöpumppu Sähkö Tyyppi: sähköinen lattialämmitys uuni/takka, sähköinen lattialämmitys
- Kattotyyppi
- aumakatto
- Katemateriaali
- tiilikate
- Rakennusoikeus
- 290
- Lisätietoa rakennusoikeudesta
- Koko korttelin rakennusoikeus on 1 160 m2 ja joka jakautuu neljän kiinteistön kesken.
- Lisätietoja energiatodistuksesta
- Kohteelle ei lain mukaan tarvita energiatodistusta.
- Tie perille
- Kyllä
- Palvelut
- Lähin kauppa ja Piazza 1,7 km. Tahko Golf -klubi ja Tahko Spa 1,5 km. Keskustassa useita ravintoloita. Rinteille n. 2,5 km. Lähin hiihtolatu n. 300 m ja uimaranta n. 2,5 km. Alueella maksuton Skibussi sesonkiaikoina. Lähin pysäkki n. 600 m. Bussi vie ja tuo Tahkon ja Nilsiän keskustaan sekä rinteiden ala-asemalle.
- Kaavatilanne
- Yleiskaava ja asemakaava
- Kaavoitustiedot
- www.kuopio.fi/kaavat, (017) 182 111/kaavoitus.
- Kuntotutkimus tehty
- 01.01.2024
- Muut rakennukset
- Autokatos
- Lisätietoa muista rakennuksista
- Autokatos loppukatselmoitu 27.6.2008. Katoksessa kolme autopaikkaa lämpöpistokkeilla. Pihalla on 3 kpl pistokepaikkoja. Päärakennuksen yhteydessä on sekä lämmintä että kylmää varastotilaa.
