Sysimaa 10 A
02740, Miilukorpi, Espoo
3mh,oh,k,kph,khh,s,var.,terassi,piha
385 000 €
136 m²

Tätä asuntoa myy Jarkko Partanen, Kiinteistönvälittäjä, LKV
Huoneistokeskus Oy | Espoo

Sijainti
Asuntoesittely
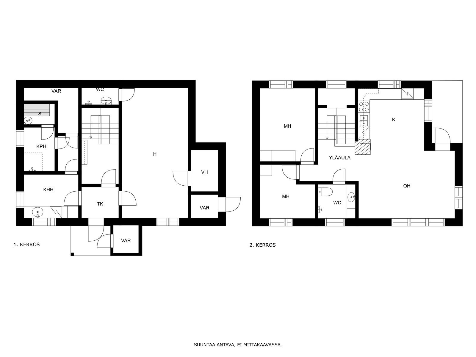
OKT Miilukorpi 3mh,oh,k,kph,khh,s,var.,terassi,piha 136/159 m².
Erinomaisella sijainnilla viihtyisä 2003 valmistunut omakotitalo.
Valoisat ja avarat huonetilat. Tyylikäs keittiö on uusittu 2022.
Alakerrassa iso avarahuone, jossa isot ikkunat ja normaali huonekorkeus.
Tila sopii hyvin eri tarkoituksiin, käytännössä pieni yksiö tai normaali
makuuhuonetila.
Sopii hyvin vaikka lapsiperheelle. Erinomaiset ulkoilumahdollisuudet
sekä palvelut.
Suojaisa ja viihtyisä yläpiha-alue ja terassi kauniin kallion vieressä.
Edulliset asumiskulut n. 400 e/kk. Espoon kaupungin vuokratontti 894 m².
Kiinteistöllä on Elisa valokuitu.
Esittelyt voi sopia Jarkko Partanen 0500 409 631 tai
[email protected]
Asuntokauppaa jo 35 vuoden ja yli 4000 kaupan kokemuksella
Pohjakuva

Perustiedot
- Sijainti
- Sysimaa 10 A, 02740, Miilukorpi, Espoo
- Huoneluku
- 4
- Asuinpinta-ala
- 136 m²
- Muu pinta-ala
- 23 m²
- Kokonaispinta-ala
- 159 m²
- Pinta-alan peruste
- Pinta-ala ei ole tarkistusmitattu ja todellinen pinta-ala voi olla suurempi tai pienempi, kuin ilmoitettu
- Lisätiedot pinta-alasta
- Espoon kaupungin rakennus -ja huoneistorekisteriotteen mukaan huoneistoala 105 m², kerrosala 136 m², kokonaisala 159,0 m², kellarin pinta-ala 23 m². Rakennusluvan mukaan kerrosala 136 m2, kokonaisala 159,0 m2. Rakennusluvan mukaisten piirustusten mukaan kerrosala yläkerta 75 m2, alakerta 39 m2 yhteensä 114 m2. rak.ala 82 m2, varastotilat yhteen 11,0 m2 ja tilavuus 505 m3.
- Kohteen tyyppi
- Omakotitalo
- Kerros
- 2
- Rakennusvuosi
- 2003
- Käyttöönottovuosi
- 2003
- Kohde myydään vuokrattuna
- Ei
- Vapautuminen
- Sopimuksen mukaan
Hinta ja kustannukset
- Myyntihinta
- 385 000 €
- Kokonaissähkön kulutustiedot
- 16000 kWh / vuosi
- Sähkölämmityskulut keskimäärin
- 200 € / kk
- Keskimääräinen lämmityskustannus
- 200 € / kk
- Kiinteistövero (€/vuosi)
- 330,22 €
- Sähköliittymä siirtyy
- Kyllä
- Neliöhinta
- 2 830,88 € / m²
- Lisätietoja maksusta
- Vesi -ja jätemaksut kulutuksen mukaan. Tonttivuokra 1927,43 e/vuosi 2025. Kiinteistövero 2024 rakennuksen osalta 330,22 euroa. Maapohjasta ei makseta. Jätehuolto n. 40 e/kk. Varainsiirtovero 3 % kauppahinnasta.
Tilat ja materiaalit
- Keittiön kuvaus
- Keittiö remontoitu 2/2022.
- Keittiön lattiat
- Laminaatti
- Keittiön seinät
- lasikuitutapetti
- Keittiön varusteet
- Jääkaappipakastin (-22), jääkaappi (Samsung), ja astianpesukone (Bosch)
- Liesi
- Induktioliesi (Electrolux -17) integroitu
- Kylpyhuone
- Asunnossa on kolme suihkutilaa; yläkerrassa sekä alakerrassa saunan kylpyhuoneen suihkutila ja alakerran huoneen yhteydessä wc istuin ja suihkutila. 2023: Silikonisaumojen uusiminen
- Kylpyhuoneen seinät
- Kaakeli
- Kylpyhuoneen lattiat
- Laatta
- Kylpyhuoneen varusteet
- Lattialämmitys, wc-istuin, ja suihku
- Makuuhuoneiden lukumäärä
- 3
- Makuuhuoneiden seinät
- Lasikuitutapetti
- Makuuhuoneiden lattiat
- Laminaatti
- Olohuoneen seinät
- Lasikuitutapetti
- Olohuoneen lattiat
- Laminaatti
- Kodinhoitohuoneen varusteet
- Lattialämmitys ja pesukoneliitäntä
- Kodinhoitohuoneen seinät
- Maali
- Kodinhoitohuoneen lattiat
- Laatta
- Kohteen säilytystilat
- Vaatehuone ja kaapistot
- Sauna
- Kyllä
- Kiuas
- Sähkökiuas
- Takka
- Varaava takka
Lisätiedot
- Asunnon kunto
- Hyvä
Taloyhtiö ja kiinteistö
- Tontin pinta-ala
- 894 m²
- Tontin omistus
- Vuokra
- Tontin tyyppi
- Rinnetontti
- Tontin myyntityyppi
- Koko tontti
- Maanvuokraaja
- Espoon kaupunki
- Tontin tiedot
- Tontin omistaa Espoon kaupunki vuokrasopimus 16.2.2000 ja päättyy 31.12.2059. Maapohjan kiinteistövero 1 066,90 e / 2024 (ei tarvitse maksaa kun vuokratontti). Rakennuksen kiinteistövero 330,22 e / 2024. Vuosivuokra on tontista 1 927,43 e / 2025. Vuokra on sidottu elinkustannusindeksiin ja käytetään 9/1999 indeksiä pisteluku 1457 ja vuosivuokra 1 204,23 e (vuokrasopimuksessa 7 160 markkaa). Vuokra tarkistetaan 1.1.2001 alkaen kalenteri vuosittain edellisen kalenterivuoden keskimääräisen indeksipisteluvun (vertausluku) mukaisesti siten, että perusvuokraa korotetaan tai alennetaan samassa suhteessa kuin vertausluku on perusindeksilukua suurempi tai pienempi.
- Tontin vuosivuokra
- 1 927,43 €
- Vuokra-aika päättyy
- 31.12.2059
- Lisätiedot rakennusmateriaaleista
- Puu, betoni. Paikalla rakennettu. Maanvaraiset betonianturat. Harkkoperusmuuri. Maanvastainen betonilaatta, lämmöneristys alapuolella. Ulkoseinät ja julkisivut: Kiviainesrakenteisia (1.krs). Puurakenteisia (2. krs). Rappaus ja puuverhous. Väliseinät: Kiviainesrakenteiset, Puu-/ levyrakenteiset. Välipohjat: 1.krs/2.krs: Kiviainesrakenteinen.
- Lämmitysjärjestelmä
- Sähkö Tyyppi: Sähköinen lattialämmitys, ilmalämpöpumppu Kustannukset: 16000 kWh / vuosi
- Ilmanvaihto
- Koneellinen poisto
- Vesijohto
- Kunnallisvesi
- Viemäröinti
- Kunnallinen viemäriverkosto
- Kattotyyppi
- Harjakatto
- Katemateriaali
- Tiili
- Rakennusoikeus
- 178.8
- Lisätietoa rakennusoikeudesta
- Rakennusluvan mukaan rakennusoikeus 179 m2 + 17 m2
- Rakennusoikeus e-luku
- 0.2
- Kohteesta on energiatodistus
- Kyllä
- Energialuokka
- D2018
- Energiatodistuksen voimassaolo
- 24.4.2035
- Lisätietoja energiatodistuksesta
- Todistuksen laatimispäivä: 24.4.2025. Viimeinen voimassaolopäivä: 24.04.2035.
- Tie perille
- Kyllä
- Palvelut
- Lidl Bemböle, Kauppakeskus Entresse, K-Supermarket Aurora, Ikea Espoo, Motonet, Jorvin sairaala.
- Koulut
- Koulumestarin koulu, Kirkkojärven koulu
- Kaavatilanne
- Asemakaava
- Kaavoitustiedot
- Espoon kaupunki puh. (09) 8162 5500
- Kuntotarkastus tehty
- 23.04.2025
- Rakennusvaihe
- Valmis
Tehdyt remontit
2025: Yläkerran ilmalämpöpumppu uusittu.
2023: Talon maalaus
2022: Alakerran ilmalämpöpumppu on asennettu v. 2022 ja huollettu 10/2025
2022: Keittiö remontoitu
2022: Ikkunat ja ulko-ovet tiivisteet vaihdettu
2020: Patio tehty, maalattu
2020: Ensimmäinen ilmalämpöpumppu huollettu
2019: Ilmanvaihtokanavien puhdistus ja savuhormien nuohous vuosittain
2019: Tiilikaton pesu, homesuojaus ja
pinnoitus
2015: Huippuimuri uusittu n. 2015
2011: Terassi lasitettu, maalattu
puunsuojalla useita kertoja /
puunsuojalla parina kesänä
