Tahkokorvantie 14
85100, Hiekkasärkät, Kalajoki
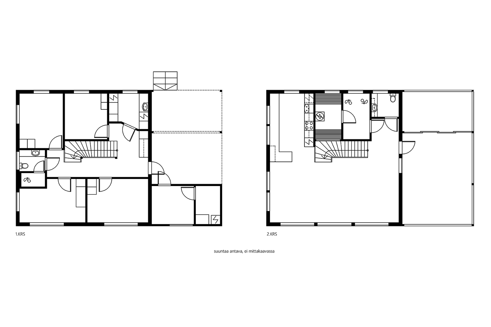
4mh+oh+k+khh+ph+s+2wc
344 000 €
132,5 m²

Tätä asuntoa myy Asla Ohtamaa, Kiinteistönvälittäjä, LKV, LVV, KiLAT
Huoneistokeskus Oy | Ylivieska

Sijainti
Asuntoesittely
Neljän makuuhuoneen talo merinäkymillä!
Kalajoen loma-asuntomessualueella myynnissä keväällä 2023 valmistunut kohde, joka sopii hyvin niin kodiksi kuin vapaa-ajan asunnoksikin. Alakerrasta löytyy neljä makuuhuonetta, kodinhoitohuone sekä wc- ja suihkutilat. Avarasta ja valoisesta yläkerrasta avautuu hieno näkymä merelle ja saunaosastolta pääsee aurinkoiselle parvekkeelle nauttimaan kesäpäivistä.
Talon yhteydessä autokatos, lämmin varasto ja tekninen tila. Lämmitysmuotona energiatehokas maalämpö, yläkerrassa viilentävä ilmalämpöpumppu. Pihan kulkualueet asfaltoitu.
Hyvä sijainti tyylikkäällä messualueella. Meren rantaan 400 metriä ja ulkoilureiteille pääsee heti talon vierestä.
Kysy lisää ja varaa oma esittelyaikasi!
Pohjakuva

Perustiedot
- Sijainti
- Tahkokorvantie 14, 85100, Hiekkasärkät, Kalajoki
- Huoneluku
- 5
- Asuinpinta-ala
- 132,5 m²
- Muu pinta-ala
- 21 m²
- Kokonaispinta-ala
- 153,5 m²
- Lisätiedot pinta-alasta
- Pinta-alatiedot rakennuspiirustuksista.
- Kohteen tyyppi
- Omakotitalo
- Kerros
- 2
- Rakennusvuosi
- 2023
- Käyttöönottovuosi
- 2023
- Kohde myydään vuokrattuna
- Ei
- Vapautuminen
- Heti
Tilat ja materiaalit
- Keittiön lattiat
- Laminaatti
- Keittiön seinät
- Maali
- Keittiön varusteet
- Erillisuuni, astianpesukone, jääkaappi, mikroaaltouuni, erillinen pakastin, liesituuletin, ja kiinteät valaisimet
- Liesi
- Keraaminen liesi ja erillisuuni
- Kylpyhuoneen seinät
- Kaakeli
- Kylpyhuoneen lattiat
- Laatta
- Kylpyhuoneen varusteet
- Lattialämmitys, suihku, ja kiinteät valaisimet
- WC Lukumäärä
- 2
- WC:n lattiat
- Laatta
- WC:n seinät
- Maali
- Makuuhuoneiden lukumäärä
- 4
- Makuuhuoneiden seinät
- Maali
- Makuuhuoneiden lattiat
- Laminaatti
- Olohuoneen seinät
- Maali
- Olohuoneen lattiat
- Laminaatti
- Kodinhoitohuoneen varusteet
- Pesukoneliitäntä, pyykkikaapit, lattiakaivo, pesuallas, pöytätaso, ja lattialämmitys
- Kodinhoitohuoneen seinät
- Maali
- Kodinhoitohuoneen lattiat
- Laatta
- Säilytystilojen kuvaus
- Lämmin varasto.
- Kohteen säilytystilat
- Lämmin varasto.
- Sauna
- Kyllä
- Kiuas
- Sähkökiuas
Lisätiedot
- Asunnon kunto
- Hyvä
- Terassi
- Kyllä
- Lisätietoja terassista
- Lasitettu terassi
- Lisätietoa seinien pintamateriaaleista
- Saunassa puupaneeli, pesutiloissa kaakeli, muut tilat maalipinnalla.
- Lisätietoa lattioiden pintamateriaaleista
- Sauna, kylpyhuone, kodinhoitohuone ja wc laatta, muut asuintilat laminaatti.
- Lisätietoa katon pintamateriaaleista
- Kosteat tilat puupaneeli, muut asuintilat mdf-paneeli.
- Muuta kauppaan kuuluvaa
- Lisätietoja sisältyvistä varusteista: kaapistot, kiinteät valaisimet, parveke-/terassilasitus
Taloyhtiö ja kiinteistö
- Tontin pinta-ala
- 1 068 m²
- Tontin omistus
- Vuokra
- Tontin tyyppi
- Tasamaatontti
- Tontin myyntityyppi
- Koko tontti
- Maanvuokraaja
- Kalajoen kaupunki
- Tontin tiedot
- Tontti mahdollisuus ostaa omaksi vuokra-aikana. Lunastushinta noin 49 600€.
- Tontin vuosivuokra
- 2 480 €
- Vuokra-aika päättyy
- 08.03.2052
- Rakennusmateriaali
- Betoni, puu ja elementti
- Lämmitysjärjestelmä
- Maalämpö vesikiertoinen lattialämmitys
- Kattotyyppi
- Pulpetti
- Katemateriaali
- Pelti
- Rakennusoikeus
- 250
- Kohteesta on energiatodistus
- Kyllä
- Energialuokka
- B2018
- Tie perille
- Kyllä
- Kaavatilanne
- Asemakaava ja yleiskaava
- Kaavoitustiedot
- Kalajoen kaupunki
- Rakennusvaihe
- Valmis
- Lisätietoa muista rakennuksista
- Talon yhteydessä autokatos, lämmin varasto ja tekninen tila.