Takalankatu 11
95420, Kalliopudas, Tornio
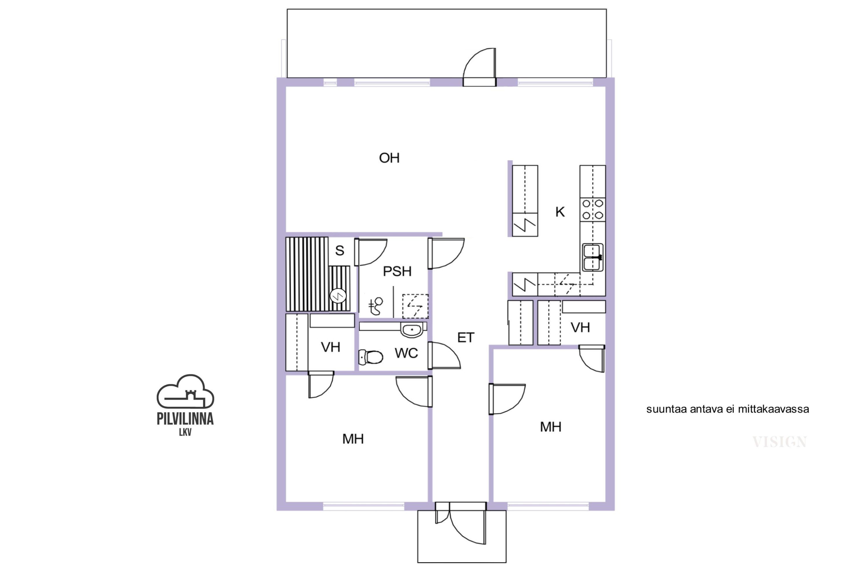
2mh+oh+k+kph+s+wc+vh
89 000 € (1 141,03 € / m²)
78 m²

Tätä asuntoa myy Hanna Pölkky, kiinteistönvälittäjä LKV, LVV, KiLAT
kaupanvahvistaja
Pilvilinna LKV Oy

Sijainti
Asuntoesittely
Siisti rivitalokolmio Tornion Kallioputaalla valmiina vastaanottamaan uudet asukkaat. Pohjaratkaisua on avattu reippaasti alkuperäisestä ja ajattomasti uusitussa keittiössä on runsaasti tasoa sekä kaapistoja. Sauna ja kylpyhuone on uusittu todella tyylikkäästi ja tilan tunnelmaa voi säätää valaistuksen avulla. Molempien makuuhuoneiden yhteydessä vaatehuoneet.
Suojaisa tontti rajoittuu kaupungin puistoalueeseen ja kivan kokoinen terassi suuntaa länteen. Sijainti kerrassaan loistava koulujen, harrastusten ja hyvien kulkuyhteyksien äärellä. Sovi oma esittelyaikasi ja tule tutustumaan paikan päälle! Myydään vuokrattuna toistaiseksi voimassaolevalla sopimuksella.
~ Iloa ja onnistumista asuntokauppaan ~
Pohjakuva

Perustiedot
- Sijainti
- Takalankatu 11, 95420, Kalliopudas, Tornio
- Omistusmuoto
- Omistusasunto
- Huoneluku
- 3
- Asuinpinta-ala
- 78 m²
- Kokonaispinta-ala
- 78 m²
- Pinta-alan peruste
- Yhtiöjärjestyksen mukainen, Isännöitsijäntodistuksen mukainen, (Pinta-ala ei ole tarkistusmitattu ja todellinen pinta-ala voi olla suurempi tai pienempi, kuin ilmoitettu)
- Lisätiedot pinta-alasta
- Ei tarkistusmitattu. Pinta-alat saattavat tämän ikäisissä kohteissa (yhtiö rekisteröity ennen 01.01.1992) poiketa olennaisestikin asuinrakennusten nykyisten mittaustapojen ja standardien (SFS 5139) mukaan laskettavasta asuintilojen pinta-alasta. Pinta-ala voi siis olla edellä mainittua pienempi tai suurempi.
- Kohteen tyyppi
- Rivitalo
- Kerros
- 1 / 1
- Rakennusvuosi
- 1975
- Käyttöönottovuosi
- 1975
- Kohde myydään vuokrattuna
- Kyllä
- Vapautuminen
- Myydään vuokrattuna toistaiseksi voimassaolevalla sopimuksella
Hinta ja kustannukset
- Velaton hinta
- 89 000 €
- Myyntihinta
- 89 000 €
- Velkaosuus
- 0 €
- Yhtiövastike
- Hoitovastike 322,34 € / kk (0,05 € / os.), Yhtiövastike yhteensä 322,34 € / kk
- Autopaikkamaksu
- 10 € / kk
- Neliöhinta
- 1 141,03 € / m²
- Lisätietoja maksusta
- Taloyhtiön hallitukselle on annettu valtuutus periä (tai olla perimättä) ylimääräistä vastiketta yhtiön taloudellisen aseman tai maksuvalmiuden sitä vaatiessa
Tilat ja materiaalit
- Keittiön lattiat
- Kaakeli
- Keittiön seinät
- Puu, kaakeli ja maali
- Keittiön varusteet
- Jääkaappipakastin, liesi, liesituuletin, astianpesukone, ja sähköinen lattialämmitys
- Liesi
- Keraaminen liesi
- Kylpyhuone
- Sauna- ja pesuhuoneremontti 8-9/2020
- Kylpyhuoneen seinät
- Kaakeli
- Kylpyhuoneen lattiat
- Laatta
- Kylpyhuoneen varusteet
- Suihku, pesukoneliitäntä, lattialämmitys (Sähköinen), ja suihkuseinä
- WC Lukumäärä
- 1
- WC:n lattiat
- Laatta
- WC:n seinät
- Tapetti ja kaakeli
- Makuuhuoneet
- Molempien makuuhuoneiden yhteydessä vaatehuone
- Makuuhuoneiden lukumäärä
- 2
- Makuuhuoneiden seinät
- Maali
- Makuuhuoneiden lattiat
- Parketti
- Olohuone
- Kulku takaterassille
- Olohuoneen seinät
- Paneeli ja maali
- Olohuoneen lattiat
- Parketti
- Kohteen säilytystilat
- Vaatehuone
- Sauna
- Kyllä
- Kiuas
- Sähkökiuas
Lisätiedot
- Asunnon kunto
- Hyvä
- Terassi
- Kyllä
- Lisätietoja terassista
- Länsi
Taloyhtiö ja kiinteistö
- Taloyhtiön nimi
- Asunto Oy Kalliopudas
- Isännöitsijätoimisto
- Tornion Kiinteistökolmio Oy
- Isännöitsijän nimi
- Laura Körkkö
- Isännöitsijän sähköposti
- [email protected]
- Isännöitsijän puhelin
- 0456029300
- Tontin omistus
- Vuokra
- Maanvuokraaja
- Tornion kaupunki
- Rakennusmateriaali
- Puu ja tiili
- Lämmitysjärjestelmä
- Sähkö Kaukolämpö Lattialämmitys Sähköpatteri
- Ilmanvaihto
- Painovoimainen ilmanvaihto
- Vesijohto
- Kunnallisvesi
- Viemäröinti
- Kunnallinen viemäriverkosto
- Kattotyyppi
- Harjakatto
- Katemateriaali
- Pelti
- Lisätietoja kiinteistönhoidosta
- Huoltoyhtiö
- Kiinteistönhoidon lisätiedot
- Kiinteistöhuolto Rautio Oy
- Taloyhtiössä on
- Kaapeli-tv
- Kohteesta on energiatodistus
- Ei lain edellyttämää energiatodistusta
- Sähköpistokepaikkoja
- 14 kpl
- Kaavatilanne
- Asemakaava
- Asbestikartoitus
- Ei
Tehdyt remontit
1993: Harjakatto
2000: Ulko-ovien uusiminen
2002: Talojen etupihojen kunnostus (talojen etupihojen kaltevuusleikkaukset, salaojitukset, maastonvaihdot ja portaat)
2005: Ulkovuoren maalaus
2007: Talojen välisten kanaalissa kulkevien putkien uusiminen
2007: A- ja B-talon välisten kanaalissa kulkevien (lämpökanaalin) putkien uusiminen
2007: Molok-sekajäteastia
2007: Autolämmitystolppien uusiminen
2007: Parkkialueen maastonvaihto ja salaojitus
2007: Kaukolämpöön liittyminen
2010: Ikkunoiden uusiminen
2010: Vesimittareiden asennus
2010: Käyttövesi- ja lämpöjohtoverkoston uusiminen
2011: Pihateiden kaivojen kunnostus
2016: Pihan asfaltointi (parkkialue ja pihatiet)
2017: Maanpäällisten Molok-jäteastioiden hankinta (paperi, kartonki, bio, lasi ja metalli.
2017: Uudet postilaatikot
2023: Päätyseinien saneerausremontti: Päätyseinien kengitys ja tiiliverhouksen muutos lautaverhoilluksi (Oulun Kuivaustekniikan tarkastusraportin 25.5.2022, 4.10.2022, 24.11.2022, mukaan suositeltua toimenpidettä huoneistojen osastoivien väliseinien seinärakenteiden avausta ja rakenteiden kunnon tarkistusta ei ole toteutettu).
2024: Julkisivulaudoitusten huoltomaalaus (maalattu pitkät sivuseinät, otsalaudat, aluslaudat, ja yläpäätykolmiot sekä väliaidat talojen etu- ja takapuolelta.
2025: Optiset palovaroittimet (Sammutinhuolto Redi on asentanut huoneistoihin optiset palovaroittimet 10 vuoden litium paristolla 3/2025)
