Talolankatu 10 F
20460, Jäkärlä, Turku
4h,k,kph,sauna,patio
99 500 € (947,62 € / m²)
105 m²

Tätä asuntoa myy Jari Luoto, Kiinteistönvälittäjä, LKV
Huoneistokeskus Oy | Turku

Sijainti
Asuntoesittely
Tämä koti tarjoaa tasapainoisen yhdistelmän tilaa, toiminnallisuutta ja viihtyisyyttä. Tervetuloa tutustumaan! Ihastu ja löydä uusi kotisi Jäkärlästä!
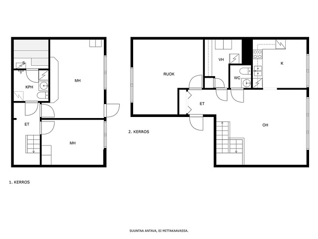
Tässä 105 m² kaksikerroksisessa rivitaloasunnossa yhdistyvät avaruus, toimiva pohjaratkaisu ja mukava arki. Asunto tarjoaa kolme makuuhuonetta, tilavan olohuoneen, erillisen keittiön, saunaosaston, kaksi wc:tä ja oman takapihan.
Asunto sijaitsee hyvin hoidetussa rivitaloyhtiössä, As Oy Jäkärlän Harjakas, jossa on viihtyisä ja siisti pihapiiri. Asunnolle kuuluu oma autopaikka, ja piha-alue on turvallinen myös lapsiperheille.
Alueen uusi koulu on valmistumassa lukuvuoden 2026 alkuun mennessä. Koululaisille on järjestetty kuljetus tämän hetkiseen kouluun.
Perustiedot
- Sijainti
- Talolankatu 10 F, 20460, Jäkärlä, Turku
- Omistusmuoto
- Omistusasunto
- Huoneluku
- 4
- Asuinpinta-ala
- 105 m²
- Kokonaispinta-ala
- 105 m²
- Pinta-alan peruste
- Isännöitsijäntodistuksen mukainen
- Lisätiedot pinta-alasta
- Huoneiston asuinpinta-ala on yhtiöjärjestyksen mukaan 105 m². Edellä mainittu pinta-ala saattaa tämän ikäisessä kohteessa poiketa olennaisestikin huoneiston nykyisten mittaustapojen ja standardien mukaan laskettavasta pinta-alasta. Huoneiston todellinen asuinpinta-ala voi siis olla yhtiöjärjestyksessä, isännöitsijäntodistuksessa ja esitteessä mainittua pienempi tai suurempi.
- Kohteen tyyppi
- Rivitalo
- Kerros
- 1-2 / 2
- Rakennusvuosi
- 1980
- Käyttöönottovuosi
- 1980
- Kohde myydään vuokrattuna
- Ei
- Vapautuminen
- Heti
Hinta ja kustannukset
- Velaton hinta
- 99 500 €
- Myyntihinta
- 78 453,98 €
- Velkaosuus
- 21 046,02 €
- Yhtiövastike
- Hoitovastike 397,95 € / kk, Rahoitusvastike 232,88 € / kk, Yhtiövastike yhteensä 630,83 € / kk
- Autopaikkamaksu
- 8 € / kk
- Sähköliittymä siirtyy
- Kyllä
- Neliöhinta
- 947,62 € / m²
- Lisätietoja maksusta
- Lisätietoja vastikkeista: Vesi ja sähkö kulutuksen mukaan. Vesi- ja sähköennakko peritään sovitusti. Varainsiirtovero 1,5% velattomasta kauppahinnasta erääntyy ostajan maksettavaksi kaupanteossa. Huoneistokohtaisen velkaosuuden takaisinmaksun päälle lisätään kulloinkin pankin voimassa olevan hinnaston mukainen kulu ja kulu laskutetaan velkaosuuden pois maksaneelta osakkaalta. Huoneistokohtaisen velkaosuuden takaisinmaksu mahdollista vuosittain kesä ja joulukuussa (ilmoitus edellisen kuun loppuun mennessä isännöintitoimistoon). Taloyhtiön osakeluettelo on siirretty huoneistotietojärjestelmään. Ostajan tulee hakea omistusoikeuden rekisteröintiä Maanmittauslaitokselta. Ostaja vastaa tällöin omistusoikeuden rekisteröintikustannuksista, mahdollisista osakekirjan mitätöinnistä aiheutuvista kustannuksista sekä mahdollisesta hakemusmaksun korotuksesta. Ostajan pankin ostajalta mahdollisesti veloittamista kaupantekoon, omistusoikeuden rekisteröintiin tai panttausmerkinnän hakemiseen liittyvistä kustannuksista ostaja saa tiedon pankiltaan
Tilat ja materiaalit
- Keittiön lattiat
- Laminaatti
- Keittiön seinät
- Tapetti ja maali
- Keittiön varusteet
- Astianpesukone, jääkaappipakastin, liesi, ja liesituuletin / hormi
- Liesi
- sähköliesi
- Kylpyhuoneen seinät
- Kaakeli
- Kylpyhuoneen lattiat
- Laatta
- Kylpyhuoneen varusteet
- Lattialämmitys, suihku, ja wc-istuin
- WC:n lattiat
- Laatta
- WC:n seinät
- Kaakeli
- Makuuhuoneiden seinät
- Tapetti ja maali
- Makuuhuoneiden lattiat
- Laminaatti ja muovimatto
- Olohuoneen seinät
- Tapetti
- Olohuoneen lattiat
- Laminaatti
- Kohteen säilytystilat
- Ulkovarasto
- Sauna
- Kyllä
- Kiuas
- Sähkökiuas
Lisätiedot
- Asunnon kunto
- Tyydyttävä
- Terassi
- Kyllä
- Lisätietoja terassista
- Patio
Taloyhtiö ja kiinteistö
- Taloyhtiön nimi
- Asunto-Oy Jäkärlän Harjakas
- Isännöitsijätoimisto
- Jäkärlän Huolto Oy
- Isännöitsijän nimi
- Tomi Laatuniemi
- Isännöitsijän puhelin
- 02 2769781
- Tuotot
- 4016
- Tontin pinta-ala
- 11 653 m²
- Tontin omistus
- Oma
- Rakennusmateriaali
- Betoni ja puu
- Lämmitysjärjestelmä
- Kaukolämpö
- Kattotyyppi
- Harjakatto
- Katemateriaali
- Pelti
- Lisätietoja kiinteistönhoidosta
- Huoltoyhtiö
- Kohteesta on energiatodistus
- Kyllä
- Energialuokka
- D2018
- Lisätietoja energiatodistuksesta
- Viimeinen voimassaolopäivä 24.05.2034.
- Huoneistoon kuuluu yhtiöjärjestyksen mukaan autopaikka
- Pihapaikka
- Lisätietoja huoneiston autopaikasta
- Autopaikat: sähköpistoke
- Piha-autopaikkoja
- 34 kpl
- Kaavatilanne
- Asemakaava
- Asbestikartoitus
- Ei
- Lisätietoa asbestikartoituksesta
- Rakennus on valmistunut ennen vuotta 1994, eikä asbestikartoitusta ole tehty. Jos osakas aikoo tehdä tai teettää huoneistoremontin, hänen tulee teettää tietyissä tapauksissa asbestikartoitus purettaviin materiaaleihin. Vuoden 2016 alusta voimaan tulleen lain mukaan ennen vuotta 1994 rakennettujen purettavien materiaalien asbestin ja sitä sisältävien materiaalien laatu ja määrä, pitää kartoittaa ennen purkutyötä.
- Taloyhtiön kiinnitykset
- 372 279 €
Tehdyt remontit
2002 Rakennusten päädyt lämpörapattu ja pitkien sivujen elementtisaumat ja vesipellit uusittu
2002-2005 Salaojia on kunnostettu
2007 Taloyhtiön lämpökeskus uusittu
2010 Katot uusittu
2021 Ulko-ovet uusittu
2024-2025 Salaoja- ja runkoputkien uusiminen
Tulevat remontit
2025 Pihasaneeraus. Salaoja-, viemäri-, vesiputkien ja sähköjen uusiminen jatkuu
2029 Ikkunoiden ja paneeliseinien uusiminen + lämmöneriste tarvittaessa, betonielementtiseinät (lämmöneriste ja rappaus)
