Talvitie 68
20610, Pääskyvuori, Turku
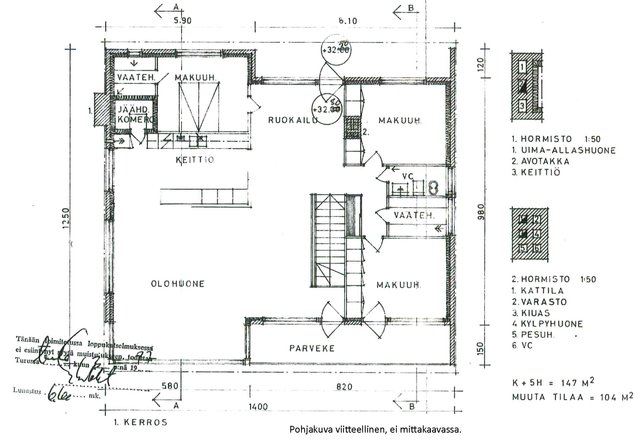
Oh+k+3mh+th+2 kpl wc+kph+ph+sauna +allash.+ khh+2 kpl vh+ tekninentila + v + eteisaula + urheiluvälinev.+lämmin autotalli+ parveke
310 000 €
147 m²

Tätä asuntoa myy Arto Koski, Kiinteistönvälittäjä LKV
Huoneistomarkkinat Oy LKV

Sijainti
Asuntoesittely
Puiston reunassa
Etsitkö tilavaa ja valoisaa kotia perheellesi?
Pääskyvuoren rauhallisella alueella sijaitseva omakotitalo tarjoaa täydelliset puitteet mukavaan asumiseen. Talossa on kolme makuuhuonetta, tilava olohuone ja moderni Noblessa- keittiö, jossa on saareke ja laadukkaat kodinkoneet.
Kaksikerroksisen talon kokonaispinta-ala on 251 m², ja se on rakennettu omalle 1510 m²:n puistoon rajoittuvalle tontille. Talon lämmitysjärjestelmä on päivitetty vesi-ilmalämpöpumpulla vuonna 2019, mikä tuo energiatehokkuutta asumiseen. Lisäksi talossa on kaksi wc:tä, kodinhoitohuone, takkahuone/allasosasto ja runsaasti säilytystilaa, mukaan lukien kaksi vaatehuonetta ja lämmin ulkovälinevarasto.
Sijainti on erinomainen perheille: lähellä on Pääskyvuoren koulu ja Itäharjun Prisma vain 1,8 km päässä. Julkinen liikenne on helposti saavutettavissa, sillä lähin bussipysäkki on vain 200 metrin päässä.
Tartu tilaisuuteen ja tule tutustumaan tähän kodikkaaseen taloon, joka yhdistää modernit mukavuudet ja rauhallisen ympäristön.Perustiedot
- Sijainti
- Talvitie 68, 20610, Pääskyvuori, Turku
- Huoneluku
- 5
- Asuinpinta-ala
- 147 m²
- Muu pinta-ala
- 104 m²
- Kokonaispinta-ala
- 251 m²
- Pinta-alan peruste
- Pinta-ala ei ole tarkistusmitattu ja todellinen pinta-ala voi olla suurempi tai pienempi, kuin ilmoitettu
- Lisätiedot pinta-alasta
- Rakennuslupa-asiakirjojen mukaan talon talon huoneistoala on 147 m² ja kokonaispinta-ala noin 251 m². Asuinpinta-alaa ei ole määritelty ja kauppaa ei tehdä pinta-ala perusteisesti vaan myydään kokonaisuutena.
- Kohteen tyyppi
- Omakotitalo
- Kerros
- 2
- Rakennusvuosi
- 1971
- Käyttöönottovuosi
- 1970
- Kohde myydään vuokrattuna
- Ei
- Vapautuminen
- Sopimuksen mukaan
Tilat ja materiaalit
- Keittiön kuvaus
- Kuin uusi Noblessa-keittiö
- Keittiön lattiat
- Laminaatti
- Keittiön seinät
- Tapetti ja maali
- Keittiön varusteet
- Jääkaappipakastin, liesi, liesituuletin, mikroaaltouuni, astianpesukone, keittiösaareke, ja höyryuuni
- Liesi
- Induktioliesi
- Kylpyhuoneen seinät
- Kaakeli
- Kylpyhuoneen lattiat
- Laatta
- Kylpyhuoneen varusteet
- Suihku, peili, ja allaskaappi
- WC Lukumäärä
- 2
- WC:n lattiat
- Laatta
- WC:n seinät
- Kaakeli
- Makuuhuoneiden lukumäärä
- 3
- Makuuhuoneiden seinät
- Maali
- Makuuhuoneiden lattiat
- Laminaatti
- Olohuoneen seinät
- Maali
- Olohuoneen lattiat
- Laminaatti
- Kodinhoitohuoneen varusteet
- Pesukone, pesukoneliitäntä, pöytätaso, pyykkikaapit, kuivausrumpu, ja pesuallas
- Kodinhoitohuoneen seinät
- Maali
- Kodinhoitohuoneen lattiat
- Laatta
- Säilytystilojen kuvaus
- Kaksi vaatehuonetta, lämmin ulkovälinevarasto omalla sisäänkäynnillä.
- Kohteen säilytystilat
- Vaatehuone, kaapistot, seinäkaapit ja lämmin ulkovarasto
- Sauna
- Kyllä
- Kiuas
- Sähkökiuas
- Takka
- Takka
Lisätiedot
- Asunnon kunto
- Hyvä
- Parveke
- Ulostyönnetty parveke
- Parvekkeen ilmansuunta
- Etelä
- Muuta kauppaan kuuluvaa
- Kodinhoitohuoneessa oleva Mielen pesutorni ja Biolan kompostori (laitettu 2024).
- Muut kaupan kannalta merkittävät tiedot
- Ei tiedossa.
Taloyhtiö ja kiinteistö
- Tontin pinta-ala
- 1 510 m²
- Tontin omistus
- Oma
- Tontin tyyppi
- Rinnetontti
- Tontin myyntityyppi
- Koko tontti
- Tontin tiedot
- Rajoittuu puistoon.
- Rakennusmateriaali
- Tiili ja betoni
- Lämmitysjärjestelmä
- Ilmavesilämpöpumppu Vesikiertoinen patterilämmitys Ilmalämpöpumppu Puu
- Ilmanvaihto
- Painovoimainen ilmanvaihto
- Vesijohto
- Kunnallisvesi
- Viemäröinti
- Kunnallinen viemäriverkosto
- Kattotyyppi
- Harjakatto
- Katon kunto
- Huolto tehty 2021
- Katemateriaali
- Huopa
- Rakennusoikeus
- 264
- Kohteesta on energiatodistus
- Kyllä
- Energialuokka
- C2018
- Energiatodistuksen voimassaolo
- 30.9.2035
- Kiinteistöön kuuluu
- Ulkovarasto takapihalla metsän reunassa.
- Lisätietoja liikenneyhteyksistä
- Lähin pysäkki noin 200m.
- Tie perille
- Kyllä
- Palvelut
- Itäharjun Prisma noin 1,8 km
- Koulut
- Pääskyvuoren koulu
- Kaavatilanne
- Asemakaava
- Asbestikartoitus
- Ei
- Muut rakennukset
- Leikkimökki
- Lisätietoa muista rakennuksista
- Ulkovarasto / iso leikkimökki
Tehdyt remontit
Katon pinnoite uusittu 1990 luvun lopulla.
Salaojat, patolevyt, sorastukset ja hulevesiviemäröinti uusittu 2012.
Ikkunat ja ovet uusittu 2012.
Ilmalämpöpumppu asennettu 2015.
Yläkerran pinnat, lattia, keittiö (Noblessa) ja osittain sähköjä uusittu 2016.
Vesijohdot ja lämmitysputket uusittu.
Lämmitysjärjestelmä uusittu, vesi-ilmalämpöpumppu 2019.