Tammispaltantie 71 b
20300, Vätti, Turku
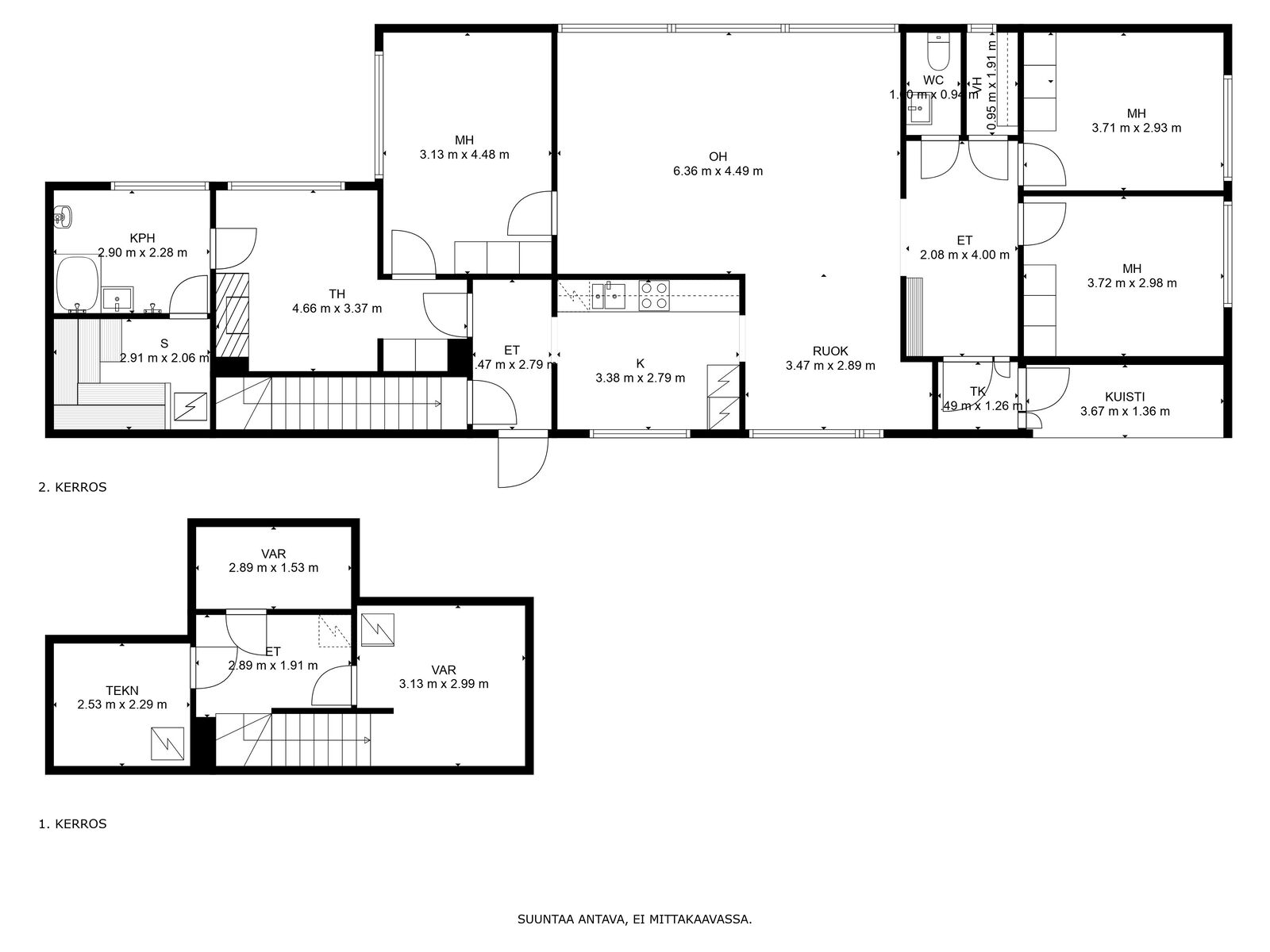
oh, k, 3 x mh, takkahuone, kh, s, wc
163 000 €
156 m²

Tätä asuntoa myy Carita Wihanto, Myyntipäällikkö, LKV
Huoneistokeskus Oy | Turku

Sijainti
Asuntoesittely
Valoisa omakotitalo Kastun suositulla alueella – suuri puistoon rajoittuva tontti!
Tervetuloa tutustumaan tähän yksitasoiseen, vuonna 1970 valmistuneeseen omakotitaloon, joka sijaitsee rauhallisella ja arvostetulla Kastun asuinalueella.
Talon pohjaratkaisu on avara, valoisa ja suuret ikkunat tuovat runsaasti luonnonvaloa sisään. Asuinpinta-alaa täydentävät olohuone, keittiö, ruokailutila, kolme makuuhuonetta, saunaosasto sekä tunnelmallinen takkahuone. Lisäksi talosta löytyy reilunkokoinen autotalli, joka tarjoaa runsaasti säilytystilaa ja mahdollisuuksia harrastamiseen.
Talo sijaitsee omalla, 1062 m² tontilla, joka rajoittuu kauniiseen puistoalueeseen. Tämä alkuperäiskuntoinen 70-luvun kokonaisuus tarjoaa upean mahdollisuuden remontoida juuri oman näköiseksi, perusrunko on hyvä ja tilat toimivat.
Tule ja näe paikan päällä, tässä on koti, jossa on potentiaalia ja puitteet unelmien toteuttamiseen!
Pohjakuva

Perustiedot
- Sijainti
- Tammispaltantie 71 b, 20300, Vätti, Turku
- Huoneluku
- 4
- Asuinpinta-ala
- 156 m²
- Muu pinta-ala
- 0 m²
- Kokonaispinta-ala
- 180 m²
- Lisätiedot pinta-alasta
- Pinta-ala tiedot on saatu myyjältä ja Digi-ja viestintäviraston rakennuksen tiedot dokumentista, hinta ei ole pinta-ala perusteinen. Huoneiston asuinpinta-ala on yhtiöjärjestyksen mukaan 101 m². Edellä mainittu pinta-ala saattaa tämän ikäisessä kohteessa poiketa olennaisestikin huoneiston nykyisten mittaustapojen ja standardien mukaan laskettavasta pinta-alasta. Kiinteistön todellinen asuinpinta-ala voi siis olla esitteessä mainittua pienempi tai suurempi.
- Kohteen tyyppi
- Omakotitalo
- Kerros
- 1
- Rakennusvuosi
- 1971
- Käyttöönottovuosi
- 1971
- Kohde myydään vuokrattuna
- Ei
- Vapautuminen
- Heti
Hinta ja kustannukset
- Myyntihinta
- 163 000 €
- Sähköliittymä siirtyy
- Kyllä
- Neliöhinta
- 1 044,87 € / m²
- Lisätietoja maksusta
- Lisätietoja vastikkeista: kiinteistövero 478.97/ 2024. Jätehuolto, sähkökulutuksen mukaan. Öljynkulutusta ei ole tiedossa, talossa ei ole asuttu vähään aikaan. Varainsiirtovero 3% kauppahinnasta
Tilat ja materiaalit
- Keittiön kuvaus
- myyjä ei vastaa kodinkoneiden toimintakunnosta
- Keittiön lattiat
- Parketti
- Keittiön seinät
- Tapetti ja maali
- Keittiön varusteet
- Liesi ja jääkaappipakastin
- Liesi
- sähköliesi
- Kylpyhuoneen seinät
- Kaakeli
- Kylpyhuoneen lattiat
- Laatta
- Kylpyhuoneen varusteet
- WC-istuin ja suihku
- WC Lukumäärä
- 1
- WC:n lattiat
- Muovimatto
- Makuuhuoneiden lukumäärä
- 3
- Makuuhuoneiden seinät
- Tapetti ja maali
- Makuuhuoneiden lattiat
- Muovimatto
- Olohuoneen seinät
- Tapetti ja maali
- Olohuoneen lattiat
- Parketti
- Sauna
- Kyllä
- Saunan kuvaus
- öljykäyttöinen kiuas
Lisätiedot
- Asunnon kunto
- Tyydyttävä
- Lisätietoja kunnosta
- alkuperäinen kunto
- Muuta kauppaan kuuluvaa
- Lisätietoja sisältyvistä varusteista: kiinteät valaisimet
Taloyhtiö ja kiinteistö
- Tontin pinta-ala
- 1 062 m²
- Tontin omistus
- Oma
- Tontin myyntityyppi
- Koko tontti
- Tontin tiedot
- tasamaastoinen puutarhatontti mäen päällä
- Rakennusmateriaali
- Puu, tiili ja muu
- Lämmitysjärjestelmä
- Öljy vesikiertoinen patterilämmitys
- Kattotyyppi
- Harja
- Katemateriaali
- Tiili
- Lisätietoa rakennusoikeudesta
- A1L. Yhteenlaskettu kerrosala 180M2.
- Kohteesta on energiatodistus
- Kyllä
- Energialuokka
- F2018
- Tie perille
- Kyllä
- Kaavatilanne
- Asemakaava
- Kaavoitustiedot
- asemakaava, sitova tonttijako
- Kuntotutkimus tehty
- 01.01.2024
- Asbestikartoitus
- Ei
- Lisätietoa asbestikartoituksesta
- Rakennus on valmistunut ennen vuotta 1994, eikä asbestikartoitusta ole tehty. Jos osakas aikoo tehdä tai teettää huoneistoremontin, hänen tulee teettää tietyissä tapauksissa asbestikartoitus purettaviin materiaaleihin. Vuoden 2016 alusta voimaan tulleen lain mukaan ennen vuotta 1994 rakennettujen purettavien materiaalien asbestin ja sitä sisältävien materiaalien laatu ja määrä, pitää kartoittaa ennen purkutyötä.
- Muut rakennukset
- Autotalli