Taoskuja 12
01300, Kuninkaala, Vantaa
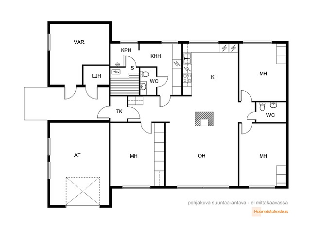
4h,k,s,kh,2 erill. wc,varasto ja autotalli
390 000 €
101 m²

Tätä asuntoa myy Juha Remes, Myyntipäällikkö, LKV
Huoneistokeskus Oy | Vantaa

Sijainti
Asuntoesittely
Komealla suojaisalla 1055 m2 rinnetontilla yksitasoinen kuntotarkastettu omakotitalo heti muuttovalmiina. Talo on puuelementtirakenteinen, tiiliverhoiltu ja harjakattoinen.
Lämmityksen hoitaa kaukolämpö, ilmalämpöpumppu ja olohuoneen varaava takka.
Myös autotalli ja varasto ovat lämpimiä. Suurella vehreällä pihalla terassit sekä idyllinen pihamökki.
Esittely sovittavissa joustavasti!
Perustiedot
- Sijainti
- Taoskuja 12, 01300, Kuninkaala, Vantaa
- Huoneluku
- 4
- Asuinpinta-ala
- 101 m²
- Muu pinta-ala
- 52 m²
- Kokonaispinta-ala
- 153 m²
- Lisätiedot pinta-alasta
- Pinta-alatietoja ei ole tarkistusmitattu, joten ne saattavat poiketa nykymääräysten mukaan mitattavista pinta-aloista. Pinta-alatiedot on saatu omistajalta talon rakennuspiirustuksista.
- Kohteen tyyppi
- Omakotitalo
- Kerros
- 1
- Rakennusvuosi
- 1986
- Käyttöönottovuosi
- 1986
- Kohde myydään vuokrattuna
- Ei
- Vapautuminen
- Heti
Tilat ja materiaalit
- Keittiön lattiat
- Vinyyli
- Keittiön varusteet
- Astianpesukone ja jääkaappipakastin
- Kylpyhuoneen seinät
- Kaakeli
- Kylpyhuoneen lattiat
- Laatta
- Kylpyhuoneen varusteet
- Suihku
- WC Lukumäärä
- 2
- WC:n lattiat
- Muovimatto
- WC:n seinät
- muovi
- Makuuhuoneiden lukumäärä
- 3
- Makuuhuoneiden lattiat
- Vinyyli
- Olohuoneen lattiat
- Vinyyli
- Kohteen säilytystilat
- Ulkovarasto ja muu erillinen varasto
- Sauna
- Kyllä
- Kiuas
- Sähkökiuas
Lisätiedot
- Asunnon kunto
- Tyydyttävä
- Muuta kauppaan kuuluvaa
- Lisätietoja sisältyvistä varusteista: ilmalämpöpumppu, kaapistot, sälekaihtimet/rullaverhot
Taloyhtiö ja kiinteistö
- Tontin pinta-ala
- 1 055 m²
- Tontin omistus
- Oma
- Tontin tyyppi
- Rinnetontti
- Tontin myyntityyppi
- Koko tontti
- Rakennusmateriaali
- Tiili ja puu
- Lämmitysjärjestelmä
- Kaukolämpö Ilmalämpöpumppu Puu uuni/takka, vesikiertoinen patterilämmitys
- Kattotyyppi
- harja
- Katon kunto
- Kate uusittu 2019
- Katemateriaali
- profiilipeltikate
- Rakennusoikeus e-luku
- 0.2
- Kohteesta on energiatodistus
- Kyllä
- Energialuokka
- B2018
- Kaavatilanne
- Asemakaava
- Kaavoitustiedot
- AO 11, omakoti- tai paritalojen korttelialue.
- Kuntotutkimus tehty
- 01.01.2024
- Asbestikartoitus
- Ei
- Lisätietoa asbestikartoituksesta
- Asbestiselvitykset on tehty korjausrakentamisen urakoitsijan toimesta tarvittavassa laajuudessa eikä erillisiä selvitysdokumentteja ole asiakkaalla.
- Muut rakennukset
- varasto
- Lisätietoa muista rakennuksista
- Varasto on pihan perällä oleva vanha pihamökki.
