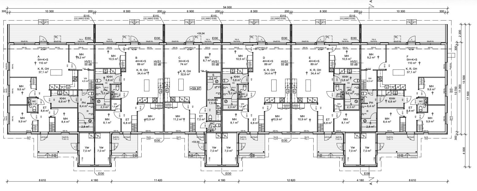
Tasalankulma 3 A
04500, Kellokoski, Hyökännummi, Mäntsälä
5h + k + s
324 000 €
110 m²

Tätä asuntoa myy Valtteri Parikka
Roof Järvenpää | ROOF LKV Keski-Uusimaa Oy

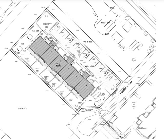
Sijainti
Asuntoesittely
Uusi 5H, K, S
Upea mahdollisuus asua uudessa, modernissa rivitalokodissa rauhallisella Roinilanpellon pientaloalueella Kellokoskella! Tämä tilava, yksitasoinen koti tarjoaa 110 neliötä laadukasta asumista, ja se valmistuu heinäkuussa 2026.
Kodin avara ja valoisa olohuone kutsuu viihtymään, ja keittiön saareke tarjoaa runsaasti tilaa ruoanlaittoon. Neljä makuuhuonetta takaavat riittävästi tilaa perheelle tai työskentelyyn kotona. Kylpyhuoneen lattialämmitys ja sauna tarjoavat arjen luksusta.
Koti on varustettu nykyaikaisilla lämmitysratkaisuilla, kuten poistoilmalämpöpumpulla ja ilmalämpöpumpulla, mikä pitää asumiskustannukset kurissa.
Sijainti on erinomainen perheille: Hyökännummen koulu ja päiväkoti ovat vain 800 metrin päässä, ja Kellokosken palvelut ovat kävelyetäisyydellä. Hyvät pyörätieyhteydet ja sujuvat autoyhteydet tekevät liikkumisesta vaivatonta.
Tartu tilaisuuteen ja tee tästä kodista oma rauhan tyyssijasi!
Myynti, Esittelyt ja Lisätiedot:
Valtteri Parikka
Myyntijohtaja, LKV, LVV, Kaupanvahvistaja
040 1614131
[email protected]Pohjakuva

Perustiedot
- Sijainti
- Tasalankulma 3 A, 04500, Kellokoski, Hyökännummi, Mäntsälä
- Huoneluku
- 5
- Asuinpinta-ala
- 110 m²
- Muu pinta-ala
- 7 m²
- Kokonaispinta-ala
- 117 m²
- Lisätiedot pinta-alasta
- Lämmin varasto 7m2
- Kohteen tyyppi
- Rivitalo
- Kerros
- 1
- Rakennusvuosi
- 2026
- Käyttöönottovuosi
- 2026
- Kohde myydään vuokrattuna
- Ei
- Lisätietoja vapautumisesta
- Arvio valmistuminen 7/2026
Tilat ja materiaalit
- Keittiön lattiat
- Vinyyli
- Keittiön seinät
- Maali
- Keittiön varusteet
- Jääkaappi, erillinen pakastin, uuni, liesi, liesituuletin, mikroaaltouuni, astianpesukone, ja keittiösaareke
- Liesi
- Induktioliesi
- Kylpyhuoneen seinät
- Kaakeli
- Kylpyhuoneen lattiat
- Kivi
- Kylpyhuoneen varusteet
- WC-istuin, lattialämmitys, pesuallas, allaskaappi, suihkuseinä, ja bidee-suihku
- WC Lukumäärä
- 1
- WC:n lattiat
- Laatta
- WC:n seinät
- Maali
- Makuuhuoneiden lukumäärä
- 4
- Makuuhuoneiden seinät
- Maali
- Makuuhuoneiden lattiat
- Vinyyli
- Olohuoneen seinät
- Maali
- Olohuoneen lattiat
- Vinyyli
- Kodinhoitohuoneen varusteet
- Lattialämmitys, pöytätaso, pesuallas, lattiakaivo, pyykkikaapit, tila pesutornille, ja pesukoneliitäntä
- Kodinhoitohuoneen seinät
- Maali
- Kodinhoitohuoneen lattiat
- Laatta
- Kohteen säilytystilat
- Vaatehuone, kaapistot ja lämmin ulkovarasto
- Sauna
- Kyllä
- Kiuas
- Sähkökiuas
- Takka
- Takkavaraus
Lisätiedot
- Asunnon kunto
- Uusi
- Parveke
- Ei parveketta
- Terassi
- Kyllä
- Ranta
- Ei rantaa
- Kauppaan ei kuulu
- Polttopuut eivät kuulu kauppaan
Taloyhtiö ja kiinteistö
- Tontin pinta-ala
- 0,2866 ha
- Tontin omistus
- Oma
- Tontin tyyppi
- Tasamaatontti
- Tontin myyntityyppi
- Määräosa
- Rakennusmateriaali
- Puu
- Lämmitysjärjestelmä
- Poistoilmalämpöpumppu Ilmalämpöpumppu
- Ilmanvaihto
- Koneellinen ilmanvaihto
- Vesijohto
- Kunnallisvesi
- Viemäröinti
- Kunnallinen viemäriverkosto
- Kattotyyppi
- Harjakatto
- Katemateriaali
- Pelti
- Rakennusoikeus
- 660
- Kohteesta on energiatodistus
- Kyllä
- Energialuokka
- B2018
- Liikenneyhteydet
- Hyvät pyöräilytiet ja sujuvat yhteydet omalla autolla
- Tie perille
- Kyllä
- Paikallistiedot
- Roinilanpellon rauhallinen pientaloalue
- Palvelut
- Kellokosken palvelut n. 1,5km
- Koulut
- Hyökännummen koulu n. 800m, Kellokosken koulu n. 2,3km, Kellokosken Lukio n. 2,3km
- Kaavatilanne
- Asemakaava
- Kaavoitustiedot
- Ap Asuinpientalojen korttelialue. Alueella on ohjeellinen tonttijako. Autopaikkoja tulee varata 1ap/asunto + 1 viereaspaikka / 2 asuntoa.
- Rakennusvaihe
- Rakenteilla
- Asbestikartoitus
- Ei
