Tehtaankatu 18 D
00140, Ullanlinna, Helsinki
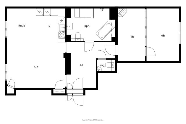
2-3h, avok, kph/wc, wc, eteinen
645 000 € (8 498,02 € / m²)
75,9 m²

Tätä asuntoa myy Linda Salonius-Pasternak, Partner, KTM, LKV
Central LKV

Sijainti
Asuntoesittely
Kauniin sisäpihan rauhassa oleva, Ullanlinnan tunnelmaa parhaimmillaan edustava kaunis koti
Harmoninen kokonaisuus, jossa runsaasti avaruutta ja rauhallinen tunnelma. Isot tilat, jotka voi tarvittaessa jakaa entisestään, moneen taipuvan pohjan ansiosta. Ylellisen tilava kylpyhuone, jossa pesutorni katseilta piilotettu kaapiston ovien taakse. Spa-henkeä luo kauniit materiaalivalinnat, amme sekä suihku. Tässä huoneistossa on kaksi wc:tä, toinen kylpyhuoneen yhteydessä ja toinen erillinen. Makuuhuone on jaettu lasiseinällä kahtia, niin että tilaan saa myös esimerkiksi erillisen työhuoneen, jota koristaa (toimiva) kakluuni.
As Oy Impivaara on hyvin hoidettu yhtiö, jossa merkittävimmät korjaukset tehty lähivuosien aikana. Esimerkiksi perinteinen linjasaneeraus tehtiin v. 2015. Sijainti on upea, lähellä palveluita, puistoja ja rantaa. Raitiovaunu kulkee talon edestä ja ydinkeskusta on alle vartin kävelymatkan päässä.
Ota yhteyttä ja sovi kanssamme yksityisesittelystä tai osallistu yleisesittelyyn.
Avaamme ovet uuteen - Ullanlinnan sydämessä, ihastuttavan jugendilmapiirin sisäpihan rauhassa.
Lisätiedot ja esittelyt
Linda Salonius-Pasternak
Partner, LKV, KTM
[email protected]
+358 45 201 4331
Helen Wrede
Partner, KiLAT, KTM
[email protected]
+358 400 50 8384
Betjäning även på svenska. Service also in English.Perustiedot
- Sijainti
- Tehtaankatu 18 D, 00140, Ullanlinna, Helsinki
- Omistusmuoto
- Omistusasunto
- Huoneluku
- 2
- Asuinpinta-ala
- 75,9 m²
- Kokonaispinta-ala
- 75,9 m²
- Pinta-alan peruste
- Isännöitsijäntodistuksen mukainen, Yhtiöjärjestyksen mukainen, (Pinta-ala ei ole tarkistusmitattu ja todellinen pinta-ala voi olla suurempi tai pienempi, kuin ilmoitettu)
- Lisätiedot pinta-alasta
- Ei tarkistusmitattu. Pinta-alat saattavat tämän ikäisissä kohteissa (yhtiö rekisteröity ennen 01.01.1992) poiketa olennaisestikin asuinrakennusten nykyisten mittaustapojen ja standardien (SFS 5139) mukaan laskettavasta asuintilojen pinta-alasta. Pinta-ala voi siis olla edellä mainittua pienempi tai suurempi.
- Kohteen tyyppi
- Kerrostalo
- Kerros
- 2 / 3
- Rakennusvuosi
- 1907
- Kohde myydään vuokrattuna
- Ei
- Vapautuminen
- Sopimuksen mukaan
Hinta ja kustannukset
- Velaton hinta
- 645 000 €
- Myyntihinta
- 610 589,26 €
- Velkaosuus
- 34 410,74 €
- Yhtiövastike
- Hoitovastike 447,81 € / kk (5,90 € / m²), Rahoitusvastike 503,98 € / kk (6,64 € / m²), Yhtiövastike yhteensä 951,79 € / kk
- Lisätietoja vastikkeista
- PO 1 Talotekniikkaurakka 3,25 €/ m2 PO 2 Ikkunaurakka 1 €/ m2 PO 3 Kattoremontti 2,39 €/ m2 Ylimääräinen hoitovastike 2,95 €/ m2
- Vesimaksu
- 25 € / hlö / kk
- Neliöhinta
- 8 498,02 € / m²
- Lisätietoja maksusta
- Taloyhtiön hallitukselle on annettu valtuutus periä (tai olla perimättä) ylimääräistä vastiketta yhtiön taloudellisen aseman tai maksuvalmiuden sitä vaatiessa
Tilat ja materiaalit
- Keittiön kuvaus
- L-muotoinen v. 2022 uusittu avokeittiö, jossa runsaasti lasku- ja kaappitilaa. Integroidut kodinkoneet.
- Keittiön lattiat
- Lauta
- Keittiön seinät
- Maali ja laatta
- Keittiön varusteet
- Uuni, liesi, liesituuletin, astianpesukone, ja jääkaappipakastin
- Liesi
- Induktioliesi
- Kylpyhuone
- Kauniisti ja laadukkain materiaalein muutama vuosi sitten remontoitu tilava kylpyhuone, jossa sekä amme ja suihkutila. Tila pesutornille on sijoitettu kaapistoon. Kylpyhuoneen yhteydessä on yksi (seinä-)wc ja asunnossa on myös toinen erillinen (seinä-)wc.
- Kylpyhuoneen seinät
- Kaakeli
- Kylpyhuoneen lattiat
- Laatta
- Kylpyhuoneen varusteet
- WC-istuin, suihku, kylpyamme, peili, pesuallas, suihkuseinä, rättipatteri, ja allaskaappi
- WC:n seinät
- Kaakeli
- Makuuhuoneet
- Tilava makuuhuone, joka on lasiseinällä jaettu kahdeksi tilaksi, josta toinen toimii hyvin esimerkiksi työhuoneena.
- Makuuhuoneiden lukumäärä
- 1
- Makuuhuoneiden seinät
- Maali
- Makuuhuoneiden lattiat
- Lauta
- Olohuone
- Tilava olohuone, jonka yhteydessä avokeittiö.
- Olohuoneen seinät
- Maali
- Olohuoneen lattiat
- Lauta
- Kohteen säilytystilat
- Kaapistot, ullakko ja kellarikomero
- Sauna
- Ei
- Takka
- Kakluuni toimiva
Lisätiedot
- Asunnon kunto
- Hyvä
- Näkymät
- Läpitalon asunnosta kauniit näkymät kahdelle eri sisäpihalle, etelään ja pohjoiseen.
- Parveke
- Ei parveketta
- Hissi
- Ei
Taloyhtiö ja kiinteistö
- Taloyhtiön nimi
- As Oy Impivaara
- Isännöitsijätoimisto
- Ardour Oy
- Isännöitsijän nimi
- Juha Lunden
- Isännöitsijän sähköposti
- [email protected]
- Isännöitsijän puhelin
- +358 40 138 0097
- Tuotot
- 24319.57
- Tontin pinta-ala
- 1 773,2 m²
- Tontin omistus
- Oma
- Rakennusmateriaali
- Betoni ja tiili
- Lämmitysjärjestelmä
- Kaukolämpö
- Ilmanvaihto
- Painovoimainen ilmanvaihto
- Kattotyyppi
- Harjakatto
- Katemateriaali
- Pelti
- Lisätietoja kiinteistönhoidosta
- Huoltoyhtiö
- Kiinteistönhoidon lisätiedot
- Kotikatu Oy
- Taloyhtiössä on
- Pesutupa, urheiluvälinevarasto, ja ullakoilla pyykinkuivaustilat.
- Lunastusoikeus yhtiöllä
- Ei
- Lunastusoikeus osakkaille
- Ei
- Kohteesta on energiatodistus
- Kyllä
- Energialuokka
- E2018
- Energiatodistuksen voimassaolo
- 22.12.2032
- Taloyhtiöön kuuluu
- Liikenneyhteydet
- Bussipysäkki lähellä, taksitolppa lähellä, raitiovaunupysäkki lähellä, hyvät pyöräilytiet, hyvä kulkuyhteys, sujuvat yhteydet omalla autolla ja kaupunkiliikenneyhteys
- Taloyhtiöllä sauna
- Ei
- Kaavatilanne
- Asemakaava
- Lisätiedot kaavoituksesta
- Helsingin kaupunki.
- Asbestikartoitus
- Ei
- Taloyhtiön kiinnitykset
- 3 509 317 €
- Taloyhtiön kiinnitysten päivämäärä
- Isännöitsijäntodistuksen päivämäärän mukainen
Tehdyt remontit
KIINTEISTÖSSÄ SUORITETUT KORJAUKSET
Vuosi Korjaus
1996 Sähkötyöt ja päätaulu
1998 A- ja B-portaiden sähkösaneeraus
1999 Porrashuoneiden maalauskunnostus
2002 Katurakennuksen rappauksen uusiminen ja ikkunoiden kunnostus
2002 A- ja B-portaiden antenniverkon kunnostus tähtiverkoksi
2004 Jäteasema ja pihatalon eteläsivun kunnostus
2004 C-ja D-portaiden antenniverkon kunnostus tähtiverkoksi
2006 Katujulkisivun kunnostus ja maalaus
2007 Vesikattojen kunnostus ja maalaus
2008 Katutalon tuuletusparvekkeiden kunnostus
2008 Lämmitysverkoston perussäätö
2009 Katutalon sisäpihan ikkunoiden kunnostus ja porttikongin maalaus
2010 Piharak.etel. Julkisivun rappauksen uusiminen ja ikkunoiden kunnostus
2013 Lämmönvaihtimen uusiminen
2014 Lukoston uusiminen
2015 Linjasaneeraus (perinteinen, myös märkätilat)
2015 Katon kuntotutkimus
2018 Porrashuoneiden marmoroinnin uusiminen
2022 Kaasun sulkeminen
2022 Meren puolen ja ullakon ikkunoiden huoltokorjaus ja kattoikkunoiden uusimien
2022 Katon kuntotutkimus
2024 Kattojen peruskorjaus
Tulevat remontit
Vuosi, Korjaus, Kustannusarvio, arvio €/ vastikeyksikkö
2025 D-portaan tuuletusparvekkeen peruskorjaus
2028 Katon maalaus
2028 Talojen kadun puolen ikkunoiden huoltomaalaus
2028 Tuuletusparvekkeiden korjaus
2029 Pihan korjaustarpeen selvitys ja suunnittelu
Kiinteistössä tehtävät vuosihuollot:
Huoneistojen lämpötilan tarkastus
Lämmönvaihtimen vuosihuolto
Kiinteistöautomaation vuosihuolto
Kulutusseuranta
Taloyhtiön sähkön kilpailutus
Jätehuollon päivittäminen
Vesikalusteiden tarkastus (asukkaat)
Sadevesikaivojen tarkastus ja tyhjennys
Piha-alueen kasvien, puiden ja leikkipaikkojen katselmus
Kattotarkastus, -turvatuotteiden tarkastus ja -huolto
Turvallisuuskatselmus
Osakkaiden omat vuositarkastukset
Takuutarkastukset
2024 Meren puolen ja ullakon ikkunoiden huoltokorjaus ja kattoikkunoiden uusimien
2026 Kattojen peruskorjaus
