Toivonpolku 4
30100, Kaukjärvi, Forssa, Tammela
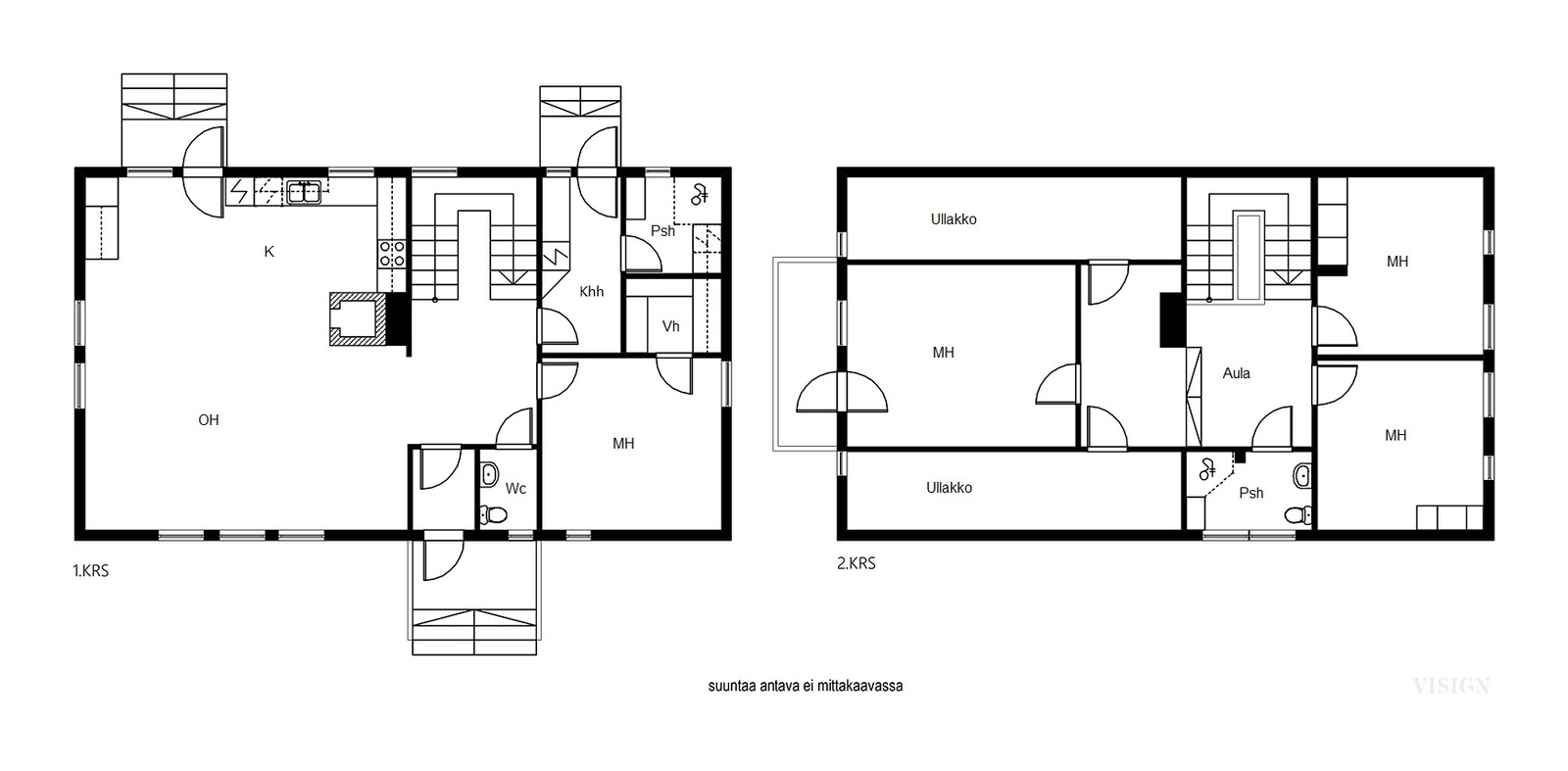
5h+k+psh+2*wc+et+aula+vh
197 000 €
151 m²

Tätä asuntoa myy Samu Pohjola, Kiinteistönvälittäjä, LKV
Huoneistokeskus Oy | Forssa

Sijainti
Asuntoesittely
Vuonna 2000 valmistunut , tyylikäs ja kattavasti remontoitu omakotitalo rauhallisella sijainnilla idyllisessä Kaukjärven kylässä, jossa voit nauttia sekä pelto- että järvimaisemista.
Talo on lähes täysin remontoitu vuosien 2023-2025 aikana. Remontin yhteydessä on uusittu mm. katto, ja monet pinnat, sekä kalusteet on päivitetty vastaamaan nykyajan vaatimuksia.
Tilat ovat kahdessa tasossa. Alakerrassa olohuone, keittiö, pesuhuone, makuuhuone, kodinhoitohuone ja wc. Yläkerrassa 3 makuuhuonetta, wc, sekä reilusti lämmintä varastotilaa.
Pihassa erillinen saunarakennus, jossa sauna, pesuhuone, tupa ja wc.
Tämä koti yhdistää modernit mukavuudet ja luonnonläheisen ympäristön ainutlaatuisella tavalla. Sopii erinomaisesti perheelle, joka arvostaa valmiiksi remontoitua kokonaisuutta. Tilava piha ja pihasauna tarjoaa runsaasti mahdollisuuksia vapaa-ajan viettoon ja puutarhanhoitoon.
Tule tutustumaan ja ihastumaan tähän kohteeseen!
Katso kohteen kuvat ja sovi oma esittelyaika, niin käydään tarkemmin ihastelemassa!
Samu Pohjola, 050-557 6785, [email protected]
Pohjakuva

Perustiedot
- Sijainti
- Toivonpolku 4, 30100, Kaukjärvi, Forssa, Tammela
- Huoneluku
- 5
- Asuinpinta-ala
- 151 m²
- Muu pinta-ala
- 51 m²
- Kokonaispinta-ala
- 202 m²
- Lisätiedot pinta-alasta
- Pinta-alatiedot on saatu rakennuspiirustuksista, eikä niitä ole tarkistusmitattu.
- Kohteen tyyppi
- Omakotitalo
- Kerros
- 2
- Rakennusvuosi
- 2000
- Lisätietoja rakennusvuodesta
- Sauna- ja piharakennuksesta ei löydy lupatietoja.
- Käyttöönottovuosi
- 2000
- Kohde myydään vuokrattuna
- Ei
- Vapautuminen
- Sopimuksen mukaan
Hinta ja kustannukset
- Myyntihinta
- 197 000 €
- Sähköliittymä siirtyy
- Kyllä
- Neliöhinta
- 1 304,64 € / m²
- Lisätietoja maksusta
- Tietoja tiemaksuista: 403,17. Tietoja kiinteistöverosta: 483,40 €. Lisätietoja vastikkeista: Esitetyt asumiskustannukset perustuvat nykykäyttöön ja voivat siten olla pienempiä tai suurempia, riippuen asukasmäärästä, asumistottumuksista sekä palveluntarjoajasta. Varainsiirtovero 3 %.
Tilat ja materiaalit
- Keittiön lattiat
- Vinyyli
- Keittiön seinät
- Laatta
- Keittiön varusteet
- Erillisuuni, liesituuletin, liesi, jääkaappi, mikroaaltouuni, astianpesukone, ja erillinen pakastin
- Liesi
- Induktioliesi ja erillisuuni
- Kylpyhuoneen seinät
- Kaakeli
- Kylpyhuoneen lattiat
- Laatta
- Kylpyhuoneen varusteet
- Lattialämmitys ja suihku
- WC Lukumäärä
- 2
- WC:n lattiat
- Vinyyli
- WC:n seinät
- Puu
- Makuuhuoneiden lukumäärä
- 4
- Makuuhuoneiden seinät
- Tapetti
- Makuuhuoneiden lattiat
- Vinyyli
- Olohuoneen seinät
- Maali
- Olohuoneen lattiat
- Vinyyli
- Kodinhoitohuoneen varusteet
- Pesukoneliitäntä
- Kodinhoitohuoneen seinät
- Maali
- Kodinhoitohuoneen lattiat
- Laatta
- Säilytystilojen kuvaus
- alakerrassa vaatehuone ja yläkerrassa kaksi isoa, lämmintä ullakkovarastoa.
- Kohteen säilytystilat
- Vaatehuone, vinttikomero, ja alakerrassa vaatehuone ja yläkerrassa kaksi isoa lämmintä ullakkovarastoa.
- Sauna
- Kyllä
- Kiuas
- Puukiuas
- Saunan kuvaus
- Sauna talon vieressä olevassa pihasauna rakennuksessa.
- Takka
- Takka
Lisätiedot
- Asunnon kunto
- Hyvä
- Muuta kauppaan kuuluvaa
- Lisätietoja sisältyvistä varusteista: ilmalämpöpumppu, lämminvesivaraaja
Taloyhtiö ja kiinteistö
- Tontin pinta-ala
- 3 280 m²
- Tontin omistus
- Oma
- Tontin tyyppi
- Tasamaatontti
- Tontin myyntityyppi
- Koko tontti
- Rakennusmateriaali
- Puu
- Lämmitysjärjestelmä
- Sähkö Tyyppi: sähköinen lattialämmitys, sähköpatterilämmitys Ilmalämpöpumppu Puu sähköpatterilämmitys, uuni/takka, sähköinen lattialämmitys
- Lisätietoja vesiputkesta
- Kaukjärven Vesihuolto Oy
- Lisätietoja viemäristä
- Tammelan kunta saattaa velvoittaa uuden omistajan liittymään viemäriverkkoon.
- Kattotyyppi
- Harja
- Katon kunto
- Hyvä
- Katemateriaali
- Pelti
- Lisätietoa rakennusoikeudesta
- Tammelan kunta Miika Tuki 050 464 3274 [email protected]
- Rakennusoikeus e-luku
- 0.2
- Lisätietoja energiatodistuksesta
- Laaditaan kuntotarkastuksen yhteydessä
- Tie perille
- Kyllä
- Kaavatilanne
- Asemakaava
- Kaavoitustiedot
- Ohjeellinen tonttijako. Tammelan kunta
- Muut rakennukset
- Autotalli ja saunarakennus
- Lisätietoa muista rakennuksista
- Saunarakennus (n. 30 m²), jossa sauna, pesuhuone, tupa ja wc, sekä autotalli/varastorakennus (n. 35 m²)