Tuusatie 6 F
37550, Saikka, Lempäälä
4h, k, kph, 2x erill.wc, khh, var, ak, kattoterassi
354 041 € (3 806,89 € / m²)
93 m²

Tätä asuntoa myy Jussi Uusitalo, Kiinteistönvälittäjä LKV, Yrittäjä
Muutos LKV | Urban Cabin Oy

Sijainti
Asuntoesittely
Asunto Oy Lempäälän Saikan Tähti, Lempäälän asuntomessujen yksi näyttävimmistä messukohteista!
Viisi kuudesta asunnosta on jo myyty ja vain tämä, huoneisto F on enää vapaana!
Nämä kohteet rakennetaan jo perustasoltaan korkeimpaan mahdolliseen varustelutasoon. Materiaalit ovat huippuluokkaisia sekä kohteen arkkitehtuuri on todella ainutlaatuisen upeaa!
Arkkitehtuurissa niin sisätiloissa kuin ulkona, laadukkaat materiaalit ovat pääosassa. Yläkerran tilat ovat arkitilojen keskiössä, jossa harjalle asti nouseva sisäkatto. Isot ikkunat kohti talon etupihaa tekevät asunnoista todella valoisat, luoden myös valtavasti tilantuntua. Lisäksi olohuoneen lasiliukuoven kautta on käynti kattoterassille, jonka alle jää autokatos. Lisäksi jokaiselle huoneistolle on yksi pihapaikka. Makuuhuoneet ovat myös suunniteltu vastaamaan nykypäivän tarpeita säilytystiloiltaan ja toimivuudeltaan. Kylpyhuoneissa upeat laatoitukset sekä säädettävä valaistus luo tunnelmaa.
Asunnoille jää tilava etupiha, jossa myös autokatos sähköauton latausmahdollisuudella. Pihapiiri on asukkaiden viihtyisää oleskelualuetta omien pihojen jatkeena, josta löytyy lasten leikkipaikka sekä taloyhtiön sauna. Taloyhtiölle jää myös tilava polkupyörävarasto asukkaiden käyttöön.
Tämä kohde rakennetaan paikallisen Kootatalot Oy:n toimesta. Vakavarainen rakennusliike, joka on tunnettu korkeatasoisesta rakentamisesta ja huippuluokkaisesti viimeistelystä.
+ Kohde valmistuu 06/26. Vapautuminen asuntomessujen jälkeen 15.8.2026.
+ Kaukolämpö, vesikiertoinen lattialämmitys.
+ Taloyhtiöllä on mahdollisuus lunastaa tontti Lempäälän kunnalta.
+ Kauppavalmius!
+ Lisäksi asuntoihin on mahdollisuus saada lisätyönä takka.
Lempäälän kunnan esittely asuinalueesta: "Saikan alueelle Lempäälään rakentuu ilmastoviisas, moderni ja tiivis asuinalue, jonka keskiössä on helppo, nykyajan, kestävän kehityksen mukainen asuminen. Saikan keskeinen sijainti Ideaparkin läheisyydessä takaa palveluiden läheisyyden ja sujuvat kulkuyhteydet Tampereelle ja pääkaupunkiseudulle. Saikan alue sijaitsee riittävän kaukana ja tarpeeksi lähellä kaikkea, mitä tarvitaan toimivaan arkeen ja vapaa-aikaan. Vuonna 2026 Asuntomessuista tulee 160 vuotta täyttävän Lempäälän kunnan juhlavuoden päätapahtuma. Asuntomessutapahtuma on 10.7.–9.8.2026."
Kysy lisätietoja rohkeasti kiinteistönvälittäjältä!
Jussi Uusitalo, LKV
Kiinteistönvälittäjä, Yrittäjä
040 8273 808
[email protected]
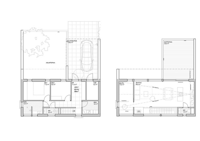
Pohjakuva

Perustiedot
- Sijainti
- Tuusatie 6 F, 37550, Saikka, Lempäälä
- Omistusmuoto
- Omistusasunto
- Huoneluku
- 4
- Asuinpinta-ala
- 93 m²
- Muu pinta-ala
- 5 m²
- Kokonaispinta-ala
- 98 m²
- Pinta-alan peruste
- Yhtiöjärjestyksen mukainen, Isännöitsijäntodistuksen mukainen
- Lisätiedot pinta-alasta
- Huoneiston todellinen pinta-ala voi olla esitteessä mainittua pienempi tai suurempi. Hinta ei ole pinta-alaperusteinen. Muihin tiloihin on laskettu varasto.
- Kohteen tyyppi
- Rivitalo
- Kerros
- 1 / 2
- Rakennusvuosi
- 2026
- Käyttöönottovuosi
- 2026
- Kohde myydään vuokrattuna
- Ei
- Vapautuminen
- Valmistuessa arviolta 2026/8
Hinta ja kustannukset
- Velaton hinta
- 354 041 €
- Myyntihinta
- 141 616,42 €
- Velkaosuus
- 212 424,58 €
- Yhtiövastike
- Hoitovastike 441 € / kk (4,74 € / m²), Rahoitusvastike 612,84 € / kk (6,59 € / m²), Yhtiövastike yhteensä 1 053,84 € / kk
- Lisätietoja vastikkeista
- Rahoitusvastikearvio lyhennysten alkaessa: 1 350,43 €, laskettu Aito Säästöpankki Oy:n 30.10.2025 antaman rahoitustarjouksen mukaisella marginaalilla (1,25% huoneistojen luovutuksen jälkeen) lisättynä 12 kk euriborilla 2,212% (noteerauspvm 10.11.2025). Yhtiölainan takaisinmaksuaika on 25 vuotta + rakennusaika. Viitekorkona on 12 kk euribor-korko ja marginaalina 1,25 %. Viitekoron muutokset vaikuttavat rahoitusvastikkeen määrään.
- Neliöhinta
- 3 806,89 € / m²
Tilat ja materiaalit
- Keittiön kuvaus
- Upea avokeittiö jossa saareke jakaa tiloja. Kalustesuunnittelu tehdään yhdessä sisustussuunnittelijan kanssa. Kiintokalusteet tulevat Puustellilta.
- Kylpyhuone
- Märkätilojen (pesuhuone ja sauna) sekä kodinhoitohuoneen, WC:n ja eteisen lattiat ovat laatoitetut, mallit Sisustusoppaan mukaisesti. Pesuhuoneen seinäpinnat ja WC:n kalusteseinä laatoitetaan, mallit Sisustusoppaan mukaisesti. Sisustusoppaassa on esitetty vaihtoehdot sekä lisähintaiset materiaalit.
- WC Lukumäärä
- 2
- Erillinen WC
- Märkätilojen (pesuhuone ja sauna) sekä kodinhoitohuoneen, WC:n ja eteisen lattiat ovat laatoitetut. WC:n kalusteseinä laatoitetaan, muut seinäpinnat maalattuna.
- Makuuhuoneet
- Tilavat makuuhuoneet.
- Makuuhuoneiden lukumäärä
- 3
- Olohuone
- Upea korkea olohuone, josta lasiliukuovi huoneiston terassille.
- Kodinhoitohuone
- Märkätilojen (pesuhuone ja sauna) sekä kodinhoitohuoneen, WC:n ja eteisen lattiat ovat laatoitetut, seinäpinnat maalattu.
- Säilytystilojen kuvaus
- 98 m2 asuntojen yhteydessä on erillinen 5m2 lämminvarasto ja 81m2 asuntojen yhteydessä 4,5m2 varasto.
- Kohteen säilytystilat
- muu erillinen varasto, 98 m2 asuntojen yhteydessä on erillinen 5m2 lämminvarasto ja 81m2 asuntojen yhteydessä 45m2 varasto.
- Saunan kuvaus
- Saunan paneelit, lauteet ja pesuhuoneen katto lämpökäsitelty leppä. Kiukaana ainavalmis kiuas etäohjauksella.
- Takka
- Takkavaraus
Lisätiedot
- Asunnon kunto
- Uusi
Taloyhtiö ja kiinteistö
- Taloyhtiön nimi
- Asunto Oy Lempäälän Saikan Tähti
- Tontin pinta-ala
- 2 224 m²
- Tontin omistus
- Vuokra
- Maanvuokraaja
- Lempäälän kunta
- Rakennusmateriaali
- Puu
- Lämmitysjärjestelmä
- Kaukolämpö
- Kattotyyppi
- Harjakatto
- Katemateriaali
- Peltikate
- Lunastusoikeus yhtiöllä
- Ei
- Lunastusoikeus osakkaille
- Ei
- Taloyhtiöön kuuluu
- Rakennus liitetään sähkö-, vesi- ja viemärijärjestelmiin. Asuntokohtainen ilmanvaihtojärjestelmä lämmöntalteenotolla. Rakennus on varustettu huoneistokohtaisella sähkön ja veden mittauksella. Rakennus liitetään valitun operaattorin tiedonsiirtoverkkoon. Palovaroittimet on kytketty sähköverkkoon. Jokaisella asunnolla on oma aidattu etupiha, sekä autokatospaikka. Kulkuväylät yhtiön teknisiin tiloihin/varastoihin, ajotiet, pysäköintipaikat, autojen asuntokohtaiset autopaikat ja nurmialueet toteutetaan Ark-asemakuvan mukaisesti. Pihavalaisimet toteutetaan sähkösuunnitelman mukaisesti.
- Huoneistoon kuuluu yhtiöjärjestyksen mukaan autopaikka
- Katospaikka
- Lisätietoja huoneiston autopaikasta
- Jokaiselle huoneistolle on asunnon edessä autokatospaikka sekä lisäksi yksi pihapaikka sähköpistokkeella. Autopaikat varustellaan sähköautonlataus valmiudella.
- Autokatokset
- 6
- Taloyhtiöllä sauna
- Kyllä
- Kaavatilanne
- Asemakaava
- Lisätiedot kaavoituksesta
- Lempäälän kunta
