Uitintie 35
73300, Nilsiä, Kuopio
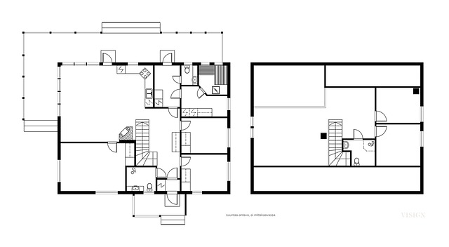
oh, k, 5 mh, parvi, khh, ph, s, 3 wc
219 000 €
149 m²
Tätä asuntoa myy Jukka Leskinen, Kiinteistönvälittäjä, LKV LVV
Huoneistokeskus Oy | Kuopio

Sijainti
Asuntoesittely
Mukavalla paikalla, komein näkymin Syvärille, todella tilava ja valoisa omakotitalo vuodelta 2012. Talossa on yhteensä viisi makuuhuonetta ja iso parvi. Täällä on siis tilaa isommallekin perheelle. Osin katettua terassitilaa on rakennuksen kahdella sivulla. Oma, iso tontti 5 125 m2, josta osa on luonnontilaista metsää. Pihapiirissä on erillinen varasto ja puuvaja. Viereisestä kaupungin venevalkamasta on mahdollista vuokrata venepaikka.
Tahkolle on matkaa vain 10 kilometriä ja jonne pääsee Skibussilla talvisin. Pysäkki on on noin 100 metrin päässä. Halssin liikuntareitistö ja kelkkareitistö löytyvät myös läheltä.
Esittelyt onnistuvat sopimuksen mukaan.
Pohjakuva

Perustiedot
- Sijainti
- Uitintie 35, 73300, Nilsiä, Kuopio
- Omistusmuoto
- Omistusasunto
- Huoneluku
- 6
- Asuinpinta-ala
- 149 m²
- Muu pinta-ala
- 0 m²
- Kokonaispinta-ala
- 167 m²
- Lisätiedot pinta-alasta
- Pinta-alatiedot on saatu rakennusvalvonnan RaHU -kortista ja kohdetta koskevista asiakirjoista
- Kohteen tyyppi
- Omakotitalo
- Kerros
- 2
- Lisätietoja rakennusvuodesta
- Loppukatselmus 8.5.2018.
- Käyttöönottovuosi
- 2012
- Kohde myydään vuokrattuna
- Ei
- Vapautuminen
- Sopimuksen mukaan
Tilat ja materiaalit
- Keittiön lattiat
- Laatta
- Keittiön seinät
- Maali
- Keittiön varusteet
- Liesituuletin, keittiösaareke, jääkaappipakastin, erillisuuni, astianpesukone, ja kiinteät valaisimet, liesitaso
- Liesi
- erillisuuni liesitaso
- Kylpyhuoneen seinät
- Kaakeli
- Kylpyhuoneen lattiat
- Laatta
- Kylpyhuoneen varusteet
- Suihku, lattialämmitys, wc-istuin, ja kiinteät valaisimet
- WC Lukumäärä
- 3
- WC:n lattiat
- Kivi
- WC:n seinät
- Kaakeli
- Makuuhuoneiden lukumäärä
- 5
- Makuuhuoneiden seinät
- Maali
- Makuuhuoneiden lattiat
- Laatta
- Olohuoneen seinät
- Maali
- Olohuoneen lattiat
- Laatta
- Kodinhoitohuoneen varusteet
- Pesukoneliitäntä, pöytätaso, lattiakaivo, ja lattialämmitys
- Kodinhoitohuoneen seinät
- Puu ja maali
- Kodinhoitohuoneen lattiat
- Laatta
- Kohteen säilytystilat
- Ulkovarasto
- Sauna
- Kyllä
- Kiuas
- Sähkökiuas
- Takka
- Takka
Lisätiedot
- Asunnon kunto
- Hyvä
- Terassi
- Kyllä
- Muuta kauppaan kuuluvaa
- Lisätietoja sisältyvistä varusteista: ilmalämpöpumppu, kaapistot, kiinteät valaisimet
- Kauppaan ei kuulu
- irtain
Taloyhtiö ja kiinteistö
- Tontin pinta-ala
- 5 125 m²
- Tontin omistus
- Oma
- Tontin tyyppi
- Tasamaatontti
- Tontin myyntityyppi
- Koko tontti
- Tontin tiedot
- Osa tontista on luonnontilassa.
- Rakennusmateriaali
- Puu
- Lämmitysjärjestelmä
- Puu Ilmalämpöpumppu Sähkö Tyyppi: sähköinen lattialämmitys uuni/takka, sähköinen lattialämmitys
- Kattotyyppi
- harjakatto
- Katemateriaali
- peltikate
- Lisätietoa rakennusoikeudesta
- Rakennusoikeutta on yhteensä noin 420 m2 tontin eteläiseen osaan. Tontin metsäiselle puolelle ei ole rakennusoikeutta.
- Kohteesta on energiatodistus
- Kyllä
- Energialuokka
- B2007
- Lisätietoja energiatodistuksesta
- Energiatodistus on voimassa 10.4.2025 saakka.
- Tie perille
- Kyllä
- Palvelut
- Nilsiän keskustan kaupat ja muut palvelut n. 1,4 - 1,8 km.
- Koulut
- Ala-aste, yläaste ja lukio n. 1,4 km.
- Kaavatilanne
- Yleiskaava ja asemakaava
- Kaavoitustiedot
- www.kuopio.fi/kaavat, (017) 182 111/kaavat
- Kuntotutkimus tehty
- 01.01.2017
- Muut rakennukset
- Liiteri ja varasto
- Lisätietoa muista rakennuksista
- Ulkorakennus n. 12 m2. Valmistunut 2024. Puuvarasto. Pihapiirissä on rakennuspaikka valmiina autotallille tai -katokselle (sähkökaapelointi valmiina).