Ulvilantie 19 E
00350, Munkkivuori, Helsinki
4 h, k, kph, p (yj: 4h+k)
396 000 € (4 800 € / m²)
82,5 m²

Tätä asuntoa myy Jarmo Kaipainen, Kiinteistönvälittäjä, LKV
Huoneistokeskus Oy | Helsinki, Runeberginkatu

Sijainti
Asuntoesittely
Tämä tilava ja toimiva perhehuoneisto sijaitsee rauhallisella alueella, jossa arki sujuu mutkattomasti. Esteetön kulku hissille takaa helpon liikkumisen ja tekee asunnosta erinomaisen valinnan myös pitkäaikaiseen asumiseen.
Kyseessä on suuri ja hyvin hoidettu taloyhtiö, jossa on yhteensä 282 asuntoa. Yhtiössä on panostettu kunnossapitoon ammattimaisella otteella – suuret remontit on jo tehty, ja talon arvoa sekä asumismukavuutta on ylläpidetty suunnitelmallisesti.
Tulevaisuutta ajatellen yhtiössä on vireillä maalämpöremontti, joka toteutuessaan parantaa energiatehokkuutta ja pienentää asumiskustannuksia. Samalla se tukee ekologisesti kestävää elämäntapaa.
Yhtiöllä on oma talonmies, mikä tuo arkeen huolettomuutta ja lisää asumisen laatua.
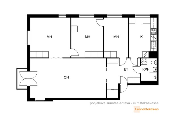
Pohjakuva

Perustiedot
- Sijainti
- Ulvilantie 19 E, 00350, Munkkivuori, Helsinki
- Omistusmuoto
- Omistusasunto
- Huoneluku
- 4
- Asuinpinta-ala
- 82,5 m²
- Muu pinta-ala
- 0 m²
- Kokonaispinta-ala
- 82,5 m²
- Pinta-alan peruste
- Yhtiöjärjestyksen mukainen, Isännöitsijäntodistuksen mukainen
- Kohteen tyyppi
- Kerrostalo
- Kerros
- 3 / 4
- Rakennusvuosi
- 1957
- Käyttöönottovuosi
- 1957
- Kohde myydään vuokrattuna
- Kyllä
- Vapautuminen
- 1 kk kaupanteosta
Hinta ja kustannukset
- Velaton hinta
- 396 000 €
- Myyntihinta
- 389 235,28 €
- Velkaosuus
- 6 764,72 €
- Yhtiövastike
- Hoitovastike 560,42 € / kk, Rahoitusvastike 90,62 € / kk, Yhtiövastike yhteensä 651,04 € / kk
- Vesimaksu
- 0 / kk
- Neliöhinta
- 4 800 € / m²
- Lisätietoja maksusta
- Lisätietoja vastikkeista: Hoitovastike 7,35 e/jm2/kk 01.07.2025 alkaen (2024: 7,15e). Pääomavastike 6: 0,52 e/jm2/kk 01.07.2025 alkaen (2024: 0,61e). Pääomavastike 8: 0,46 e/jm2/kk 01.07.2025 alkaen (2024: 0,54620e) Pysäköintikortti yhtiön autopaikoilla 7 e/kpl/kk ja 01.07.2025 alkaen 10 e/kpl/k. Autohallipaikka 40 e/kpl/kk ja 01.07.2025 alkaen 50 e/kpl/kk. Autotallipaikkavuokra 115 €/kk. Yhtiökokouksessa 21.05.2025 hallitukselle on myönnetty periä enintään 2 kuukauden suuruinen ylimääräinen hoitovastike yhtiön taloudellisen tilanteen sitä vaatiessa
Tilat ja materiaalit
- Keittiön lattiat
- Muovimatto
- Keittiön seinät
- Maali
- Keittiön varusteet
- Jääkaappipakastin, astianpesukone, ja liesituuletin
- Liesi
- Keraaminen liesi
- Kylpyhuone
- allaskaappi, vesikierto kuivauspatteri.
- Kylpyhuoneen lattiat
- Laatta
- Kylpyhuoneen varusteet
- Peilikaappi, pesukoneliitäntä, pesukone, suihkuseinä, wc-istuin, ja kiinteät valaisimet
- Makuuhuoneet
- 2 makuuhuoneessa on laminaatti.
- Makuuhuoneiden lukumäärä
- 3
- Makuuhuoneiden seinät
- Tapetti
- Makuuhuoneiden lattiat
- Parketti ja laminaatti
- Olohuone
- kalanruotoparketti
- Olohuoneen seinät
- Tapetti
- Olohuoneen lattiat
- Parketti
- Säilytystilojen kuvaus
- Huoneiston käytössä on 2 kellarikomeroa.
- Kohteen säilytystilat
- Huoneiston käytössä on 2 kellarikomeroa.
Lisätiedot
- Asunnon kunto
- Tyydyttävä
- Näkymät
- Pihapuistomaiset, n. lounas-kaakko-luode.
- Parveke
- Ulostyönnetty parveke
- Parvekkeen ilmansuunta
- Luode
- Hissi
- Kyllä
- Muuta kauppaan kuuluvaa
- Lisätietoja sisältyvistä varusteista: kaapistot, kiinteät valaisimet, sälekaihtimet/rullaverhot
Taloyhtiö ja kiinteistö
- Taloyhtiön nimi
- Asunto Oy Munkkivuori
- Isännöitsijätoimisto
- Retta Services Oy, Retta Isännöinti
- Isännöitsijän nimi
- Kaisa Dabnell
- Isännöitsijän puhelin
- 010 228 2000
- Tuotot
- 83430.28
- Taloyhtiön lisätiedot
- Tietoja lainojen pituuksista: Käyttötilin limiitti Nordea: 100 000 € (ei käytetty). Erittely lainojen määristä, koroista ja maksuajoista löytyy isännöitsijäntodistuksesta. Tietoja sopimuksista: Talotekniikkakuilut: Taloyhtiössä on ollut vireillä vuonna 2024 talotekniikkakuilujen palokatkoja koskeva selvitys. Talotekniikkakuiluihin selvityksen mukaan kohdistettavia toimenpiteitä. Suunnittelua ei ole vielä aloitettu.
- Tontin pinta-ala
- 37 448,7 m²
- Tontin omistus
- Vuokra
- Maanvuokraaja
- Helsingin kaupunki
- Tontin vuosivuokra
- 391 710 €
- Vuokra-aika päättyy
- 31.12.2075
- Rakennusmateriaali
- Betoni
- Lämmitysjärjestelmä
- Kaukolämpö
- Kattotyyppi
- harjakatto
- Katemateriaali
- pelti
- Lisätietoja kiinteistönhoidosta
- Talonmies
- Kiinteistönhoidon lisätiedot
- Talonmies Jouni Kinnunen 040 485 1000 [email protected]
- Taloyhtiössä on
- Kaapeli-tv, väestönsuoja, mankeli, pesutupa, kellarikomero, urheiluvälinevarasto, ja sauna
- Kohteesta on energiatodistus
- Kyllä
- Energialuokka
- E2018
- Lisätietoja energiatodistuksesta
- voimassa 26.3.2035 asti
- Lisätietoja liikenneyhteyksistä
- Hyvät: www.hsl.fi HSL bussit 20, 33 , pysäkki lähes vieressä. Munkkivuori sijaitsee hyvien liikenneyhteyksien varrella: Turun moottoritien päässä ja sen sekä Vihdintien liikenneympyrän välillä. Keskustaan pääsee bussilinjoilla 20, 25 ja 30, Pasilaan ja Itäkeskukseen runkolinjalla 500 sekä Viikkiin ja Kontulaan linjalla 57. Lisäksi alueelle pääsee Jouko-linjoilla, linjalla 52 sekä runsaan kilometrin kävelyn päästä Pikaraitiotie 15:sta
- Palvelut
- Munkkivuoren ostoskeskus, Munkkiniemi
- Koulut
- Munkkivuoressa ja Munkkiniemessä suomen ja -ruotsinkieliset koulut lisäksi Munkkivuoressa Ranskalainen koulu ja Meilahdessa Englantilainen koulu
- Lisätietoja taloyhtiön autonsäilytyspaikoista
- 132 kpl autopaikkoja, joista autotalli/-hallipaikkoja 43 kpl. Osakkaiden ja asukkaiden tulee hankkia pihapysäköintiin oikeuttava huoneistokohtainen pysäköintikortti talonmieheltä. Lupa on maksullinen.
- Taloyhtiöllä sauna
- Kyllä
- Kaavatilanne
- Asemakaava
- Lisätiedot kaavoituksesta
- vahvistettu asemakaava Helsingin kaupunki, p.(09) 310 1691 Munkkivuoren ostoskeskuksen asemakaavan muutossuunnitelma: https://kartta.hel.fi/?sukkaId=2019-000059
- Asbestikartoitus
- Ei
- Taloyhtiön kiinnitykset
- 6 635 155 €
Tehdyt remontit
1983 Kaukolämpöliittymä, 1991 Kaukolämpöliittymä korjaukset, 1994 Peltikatteiden maalaus (kaikki peltikatteet / katot on uusittu 201, 2012 ja 2015),1995 Ikkunoiden huoltomaalaus (kaikki kohteen ikkunat on vaihdettu uusiin 2009, 2014 ja 2019), 1998 Asuinhuoneistojen patteriventtiilit uusittu, 2000 Talojen b-, c- ja d julkisivukorjaus ja maalaus, 2000 Talon e julkisivutyö, 2003 Talon g julkisivukorjaus, 2004 Talon f julkisivukorjaus ja maalaus, 2008 Putki- ja sähkösaneeraus, 2009 Tornitalojen parvekkeiden sivuikkunoiden lasitus, Torni- ja kerrostalojen hissiaulojen lattioiden uusiminen, 2010 Tornitalojen ja rivitalojen kattojen uusiminen sekä matalien kerrostalojen kattojen maalauskorjaus, 2012 Lämmönsiirtimen uusiminen, M-talon peltikaton uusiminen, E-talon katon uusiminen, 2013 pintavesien ohjaus, Rivitalojen kosteusvauriokorjauksia, talokohtaisten säätö- ja pumppuryhmien uusiminen, 2014 Ulko-ovien kunnostus (kaikki kohteen ulko-ovet on vaihdettu uusiin 2019), Ranskalaistenparvekeovien uusiminen, 2015 F- ja G-talon vesikaton uusiminen, 2016 Rakennusten välisen kuituverkon rakentaminen, taloyhtiölaajakaistan käyttöönotto, 2017, H-rivitalon sisäänkäyntipuolen salaojituksen ja sokkelin vedeneristyksen uusiminen, 2018 10-kerroksisten kerrostalojen hissien uusiminen, 2019 Ikkunoiden ja parvekeovien sekä sisäänkäyntien ovien uusiminen, 2021 Rakennusten peltikattojen huoltomaalaukset, pintavesien ohjauksen suunnittelu, puiden kuntoarvion ja hoitosuunnitelmien toteuttaminen, L3 huoneiston kellarikerroksen maanvastaisten rakenteiden korjaus, 2022 Tornitalojen 3 kpl sisäänkäyntien esteettömyyden toteutus, Polkupyörien säilytyksen suunnittelu ja toteutus, Pintavesien ohjaus - kilpailutus, Lukituksen uusiminen iLOQ S5 ja kiinteistön lukitusjärjestelmän kokonaisuudistus, 2024 Ilmanvaihtokanavien puhdistus ja takkahormien nuohous.
Tulevat remontit
Yhtiökokous 21.05.2025.
Kunnossapitotarveselvitys 2024:
2024: Matalien kerrostalojen sadevesien osittaiset korjaukset (käynnissä), Energiaselvitys päälämmitysjärjestelmä ja muut (käynnissä), Energiaselvitys LTO/PILP mahdollisuus (käynnissä), Julkisivujen kuntotutkimus (suositeltu), Tornitalojen sisäänkäyntiaulojen kunnostus (suositeltu), Puiden hoitosuunnitelman toteutus (joka vuosi) (käynnissä), Parvekkeiden uusinnan tarveselvityksien valmistelu (suositeltu), Viemärien puhdistus (suositeltu)
2025: Parvekkeiden uusimisen suunnittelu (suositeltu), Ilmanvaihtokoneiden uusiminen (käyttöikä loppu) (suositeltu), Rivitalojen puuosien huoltomaalaus (suositeltu), Matalien kerrostalojen sisäänkäyntiaulojen kunnostus (suositeltu).
2026 Parvekkeiden uusinta (suositeltu).
2027 Julkisivujen uusinta (suositeltu), Pintavesien ohjaus (suositeltu), Tornitalojen porrashuoneiden maalaus (suositeltu).