Välimerenkatu 12 H
00220, Jätkäsaari, Helsinki
2h, avok, kph, las. p
345 900 € (7 686,67 € / m²)
45 m²

Tätä asuntoa myy Raine Lamberg, Myyntipäällikkö, LKV, LVV, KED
Huoneistokeskus Oy | Helsinki, Runeberginkatu

Sijainti
Asuntoesittely
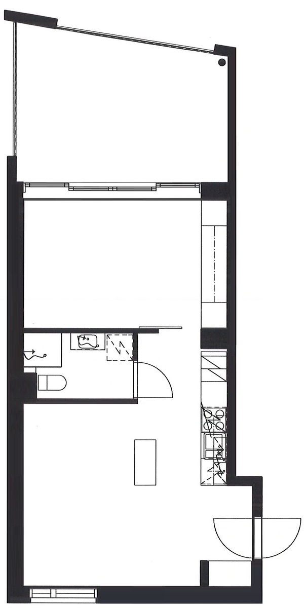
Hyväkuntoinen ja valoisa läpitalon kaksio vuonna 2017 valmistuneessa talossa.
Kompaktin olohuoneen yhteydessä on siisti avokeittiö valkoisine kaapinovineen ja kivitasoineen, makuuhuoneessa on reilusti säilytystilaa ja sen yhteydessä on noin 16-neliöinen terassiparveke. Tyylikkäässä kylpyhuoneessa on tilaa pesukoneelle ja tilaa avartaa mukavasti lavuaarin yläpuolelle asennettu iso peili.
Yhtiössä ei tarvitse murehtia remonteista vielä moneen vuoteen, rakennus on valmistunut vuonna 2017, eikä mitään peruskorjauksia ole suunnitteilla lähitulevaisuudessa.
Talon sijainti on todella hyvä, Välimerenkadun ympäristössä on paljon erilaisia palveluita sekä ravintoloita kävelymatkan päässä. Kulman takaa kulkevalla raitiovaunulla pääsee nopeasti keskustaan ja jos kaipaa vaihtelua sen palveluihin, on kävelyetäisyydellä Länsiterminaali, josta on lauttayhteys Tallinnaan.
Tämä koti sopii myös liikuntarajoitteisille, hissille ei ole yhtään rappusta. 2/8. kerros, oma tontti.
Kiinnostuitko? Ota yhteyttä, tulen mielelläni esittelemään tätä kotia!
Pohjakuva

Perustiedot
- Sijainti
- Välimerenkatu 12 H, 00220, Jätkäsaari, Helsinki
- Omistusmuoto
- Omistusasunto
- Huoneluku
- 2
- Asuinpinta-ala
- 45 m²
- Kokonaispinta-ala
- 45 m²
- Pinta-alan peruste
- Isännöitsijäntodistuksen mukainen, Yhtiöjärjestyksen mukainen
- Kohteen tyyppi
- Kerrostalo
- Kerros
- 2 / 8
- Rakennusvuosi
- 2017
- Käyttöönottovuosi
- 2017
- Kohde myydään vuokrattuna
- Ei
- Vapautuminen
- Heti
Hinta ja kustannukset
- Velaton hinta
- 345 900 €
- Myyntihinta
- 345 900 €
- Yhtiövastike
- Hoitovastike 263,25 € / kk, Yhtiövastike yhteensä 263,25 € / kk
- Vesimaksu
- 25 € / hlö
- Neliöhinta
- 7 686,67 € / m²
- Lisätietoja maksusta
- Lisätietoja vastikkeista: Pesutuvan käyttö sisältyy hoitovastikkeeseen. Hallituksella valtuudet periä enintään kahden kuukauden ylimääräinen hoitovastike yhtiön taloudellisen tilanteen niin vaatiessa. Vesimaksun tasaus todellisen kulutuksen mukaan
Tilat ja materiaalit
- Keittiön lattiat
- Parketti
- Keittiön seinät
- Maali
- Keittiön varusteet
- Jääkaappipakastin, erillisuuni, mikroaaltouuni, liesituuletin, astianpesukone, ja kiinteät valaisimet, liesitaso
- Liesi
- erillisuuni liesitaso
- Kylpyhuoneen seinät
- Kaakeli
- Kylpyhuoneen lattiat
- Laatta
- Kylpyhuoneen varusteet
- Peili, suihkuseinä, suihku, wc-istuin, pesukoneliitäntä, ja kiinteät valaisimet
- Makuuhuoneiden seinät
- Maali
- Makuuhuoneiden lattiat
- Parketti
- Olohuoneen seinät
- Maali
- Olohuoneen lattiat
- Parketti
Lisätiedot
- Asunnon kunto
- Hyvä
- Näkymät
- Läpitalon, terassiparveke ja makuuhuone koilliseen kävelytielle, olohuone lounaaseen sisäpihalle
- Parveke
- Lasitettu parveke
- Parvekkeen ilmansuunta
- Luode ja koillinen
- Hissi
- Kyllä
- Muuta kauppaan kuuluvaa
- Lisätietoja sisältyvistä varusteista: kaapistot, kiinteät valaisimet, sälekaihtimet/rullaverhot
- Muut kaupan kannalta merkittävät tiedot
- Taloyhtiö vastaa yhteisjärjestelyn mukaisesti 14 % kustannusosuudella Victoria korttelin ulkoaluekustannuksista. Kustannukset sisältyvät hoitovastikkeeseen
Taloyhtiö ja kiinteistö
- Taloyhtiön nimi
- Bostads Ab Victoria 9 i Helsingfors
- Isännöitsijätoimisto
- Retta Services Oy
- Isännöitsijän nimi
- Kari Ristivehmas
- Isännöitsijän puhelin
- 010 228 4000
- Tontin pinta-ala
- 605 m²
- Tontin omistus
- Oma
- Rakennusmateriaali
- Betoni
- Lämmitysjärjestelmä
- Kaukolämpö
- Kattotyyppi
- tasakatto.
- Katemateriaali
- bitumikermi
- Lisätietoja kiinteistönhoidosta
- Huoltoyhtiö
- Kiinteistönhoidon lisätiedot
- Kotikatu Oy, Atlantinkatu 7, 00220 Helsinki
- Taloyhtiössä on
- Kellarikomero, kaapeli-tv, pesutupa, urheiluvälinevarasto, mankeli, ja sauna
- Kohteesta on energiatodistus
- Kyllä
- Energialuokka
- C2013
- Lisätietoja liikenneyhteyksistä
- Raitiovaunupysäkki Välimerenkadulla talon edustalla (9) ja Länsisatamankadulla (8) noin 300 m sekä Tyynenmerenkadulla (6T, 7) noin 400 m, Ruoholahden metroasema noin 650 m
- Palvelut
- Välimerenkadulla useita ravintoloita, kahviloita, kuntosaleja ja kirjasto. Alepa ja K-Market noin 200 m, Verkkokauppa.com noin 500 m. Kauppakeskus Ruoholahti noin 850 m
- Lisätietoja taloyhtiön autonsäilytyspaikoista
- Autohallipaikat Jätkäsaaren Pysäköinti Oy:n maanalaisessa pysäköintilaitoksessa, Rokkiparkissa
- Autohallipaikat
- 17 kpl
- Taloyhtiöllä sauna
- Kyllä
- Kaavatilanne
- Asemakaava
- Lisätiedot kaavoituksesta
- Helsingin kaupunki
- Taloyhtiön kiinnitykset
- 0 €
Tehdyt remontit
Parvekelasien tarkastus ja huolto
Tulevat remontit
Ilmanvaihdon nuohous ja säätö, julkisivun 8. kerroksen kullattujen peltien puhdistus ja pinnoitus korttelin yhteisurakkana 2025, taloyhtiön rakennusurakan 10-vuotisvastuutarkastus hallituksen päättämässä laajuudessa 2027
