Välitalontie 71 C
00660, Länsi-Pakila, Pakila, Helsinki
1h+k+kph+parvi+parveke
175 000 € (7 142,86 € / m²)
24,5 m²

Tätä asuntoa myy Marika Parhiala
Uudisovi Uusimaa Oy

Sijainti
Asuntoesittely
Huikea yksiö viihtyisällä sijainnilla Länsi-Pakilassa!
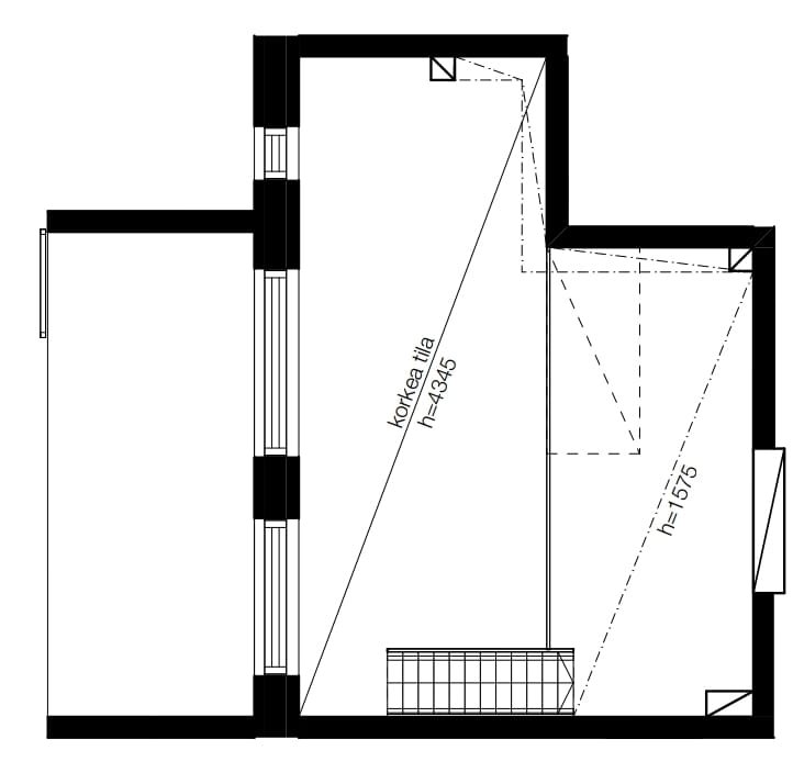
Tässä yksiössä on todellista tilantuntua; huonekorkeutta löytyy yli 4 metriä, ja suurista ikkunoista tulvii valoa huoneistoon.
Ajattoman tyylikkäät ja laadukkaat pintamateriaalit sekä uudehko taloyhtiö takaavat huoletonta asumista vuosiksi eteenpäin.
Keittiö- ja oleskelutilat yhtenäistä tilaa, jonka lisäksi tilava parvi, jonne saat hyvin sisustettua makuuhuoneen sekä työpisteen. Eteisessä kiinteät kaapistot, lisäksi huoneistokohtainen häkkivarasto kellaritiloissa.
Rauhallinen sijainti, mutta lähellä yhteyksiä ja palveluita. Osta omaksi tai sijoitukseen, tässä kodissa on helppo viihtyä!
Lisätiedot ja esittelyt:
Marika Parhiala
Kiinteistönvälittäjä, LKV
p. 045 856 9060
Hanna Saarenkylä
Kiinteistönvälittäjä LKV
p. 044 2484 281Pohjakuva


Perustiedot
- Sijainti
- Välitalontie 71 C, 00660, Länsi-Pakila, Pakila, Helsinki
- Omistusmuoto
- Omistusasunto
- Huoneluku
- 1
- Asuinpinta-ala
- 24,5 m²
- Muu pinta-ala
- 10 m²
- Kokonaispinta-ala
- 34,5 m²
- Pinta-alan peruste
- Yhtiöjärjestyksen mukainen, (Pinta-ala ei ole tarkistusmitattu ja todellinen pinta-ala voi olla suurempi tai pienempi, kuin ilmoitettu)
- Lisätiedot pinta-alasta
- Asuinpinta-ala 24,5m² käsittää yhtiöjärjestyksen mukaiset asuintilat, lisätilana huoneistossa tilava parvi, jonka pinta-ala ei ilmene asiakirjoista. Parven pinta-ala sekä kokonaispinta-ala on arvio. Parven korkeus vähän alle 160cm.
- Kohteen tyyppi
- Kerrostalo
- Kerros
- 1 / 3
- Rakennusvuosi
- 2023
- Kohde myydään vuokrattuna
- Kyllä
- Vapautuminen
- Vapautuu viimeistään 6kk kaupanteosta.
Hinta ja kustannukset
- Velaton hinta
- 175 000 €
- Myyntihinta
- 35 844,24 €
- Velkaosuus
- 139 155,76 €
- Yhtiövastike
- Hoitovastike 240,35 € / kk (9,81 € / m²), Rahoitusvastike 152,80 € / kk, Yhtiövastike yhteensä 393,15 € / kk
- Lisätietoja vastikkeista
- Tontin vuokra sisältyy hoitovastikkeeseen.
- Vesimaksu
- 20 € / hlö / kk
- Neliöhinta
- 7 142,86 € / m²
- Lisätietoja maksusta
- Vesimaksuennakko, tasataan todellisen kulutuksen mukaan vuosittain. Taloyhtiön hallitukselle on annettu valtuutus periä (tai olla perimättä) ylimääräistä vastiketta yhtiön taloudellisen aseman tai maksuvalmiuden sitä vaatiessa
Tilat ja materiaalit
- Keittiön kuvaus
- Vaalea keittiö electroluxin kodinkoneilla. Hyvin tilaa ruokailuryhmälle. Isot ikkunat ja korkea huonekorkeus.
- Keittiön lattiat
- Parketti
- Keittiön seinät
- Maali
- Keittiön varusteet
- Jääkaappipakastin, liesi, liesituuletin, mikroaaltouuni, erillisuuni, ja astianpesukone
- Liesi
- Induktioliesi
- Kylpyhuone
- Tilava kylpyhuone, jossa aikaa kestävät pintamateriaalit.
- Kylpyhuoneen seinät
- Kaakeli
- Kylpyhuoneen lattiat
- Laatta
- Kylpyhuoneen varusteet
- WC-istuin, suihku, suihkuseinä, pesukoneliitäntä, lattialämmitys, peilikaappi, allaskaappi, pesuallas, ja bidee-suihku
- Makuuhuoneet
- Ei erillistä makuuhuonetta, asunnossa parvi.
- Olohuone
- Korkea, yli 4,3 metrin huonekorkeus ja isot ikkunat, portaat parvelle sekä käynti parvekkeelle.
- Olohuoneen seinät
- Maali
- Olohuoneen lattiat
- Parketti
- Kohteen säilytystilat
- Kaapistot ja häkkivarasto
- Sauna
- Ei
Lisätiedot
- Asunnon kunto
- Erinomainen
- Näkymät
- Yhtiön pihalle ja naapurustoon
- Parveke
- Sisäänvedetty parveke
- Hissi
- Kyllä
- Muut tilat
- Parvella reilusti tilaa sängylle sekä esimerkiksi työspisteelle.
- Lisätietoa seinien pintamateriaaleista
- Maalatut seinät
- Lisätietoa lattioiden pintamateriaaleista
- Parkettilattiat
Taloyhtiö ja kiinteistö
- Taloyhtiön nimi
- Asunto Oy Helsingin Stella
- Isännöitsijätoimisto
- Fluxio Isännöinti Oy
- Isännöitsijän nimi
- Pasi Puustinen
- Isännöitsijän puhelin
- 0103390533
- Tontin pinta-ala
- 2 300 m²
- Tontin omistus
- Vuokra
- Maanvuokraaja
- LähiTapiola Tontit II Ky
- Tontin tiedot
- Tontin maanvuokrasopimus voimassa vuoteen 2071 saakka.
- Käyttö/luovutusrajoitukset
- Yhtiöjärjestyksen 18§: Osakkailla lunastusoikeus autopaikkaosakkeisiin.
- Rakennusmateriaali
- Betoni
- Lämmitysjärjestelmä
- Lattialämmitys Kaukolämpö
- Ilmanvaihto
- Koneellinen ilmanvaihto
- Vesijohto
- Kunnallisvesi
- Viemäröinti
- Kunnallinen viemäriverkosto
- Kattotyyppi
- Harjakatto
- Katemateriaali
- Bitumikermi
- Lisätietoja kiinteistönhoidosta
- Huoltoyhtiö
- Kiinteistönhoidon lisätiedot
- Huoltia Oy
- Taloyhtiössä on
- Kaapeli-tv, ulkovarasto, pyörävarasto, kellarikomero, pesutupa, ja urheiluvälinevarasto
- Lunastusoikeus osakkaille
- Kyllä
- Kohteesta on energiatodistus
- Kyllä
- Energialuokka
- B2018
- Energiatodistuksen voimassaolo
- 18.5.2032
- Liikenneyhteydet
- Bussipysäkki lähellä, hyvä kulkuyhteys, sujuvat yhteydet omalla autolla, hyvät pyöräilytiet ja kaupunkiliikenneyhteys
- Taloyhtiön autopaikat
- Autopaikat (20kpl) erillisinä osakkeina.
- Taloyhtiöllä sauna
- Kyllä
- Kaavatilanne
- Asemakaava
- Lisätietoja kunnossapitotarveselvityksestä
- Hallituksen ehdottamat kunnossapitotoimet vuosille 2025-2029: Salaojien ja viemärien kuvaus ja mahdollinen huuhtelu 2029, IV-kanavien nuohous ja ilmansäädöt 2029.
