Västanbyntie 10
10360, Inkoo
1k+k
100 000 €
50 m²

Tätä asuntoa myy Eeva Kemmo, Varatuomari, Kiinteistönvälittäjä, LKV
Suomen LM2 Oy

Sijainti
Asuntoesittely
Perinteinen 1951 valmistunut omakotitalo, ns. mummonmökki, uudempi sauna rakennus ja iso vaja.
Rakennus sijaitsee hyvällä paikalla siten, että näkymiä on isoille peltoaukeille kahteen suuntaan. Tie 186 kulkee vierestä, mutta ei häiritse, koska väliin jää korkeaa kasvillisuutta. Palvelut ovat Inkoon kirkolla (13 km) ja Karjaalla (17 km). Bussipysäkki on aivan talon vieressä, tie 186. Helsingin keskustaan on matkaa vajaat 70 km, Tammisaareen 33 km ja Saloon vajaat 70 km. Lähin järvi on Linkullasjön noin 1,5 km, merenrantaan (Inkoon satama) on 13 km.
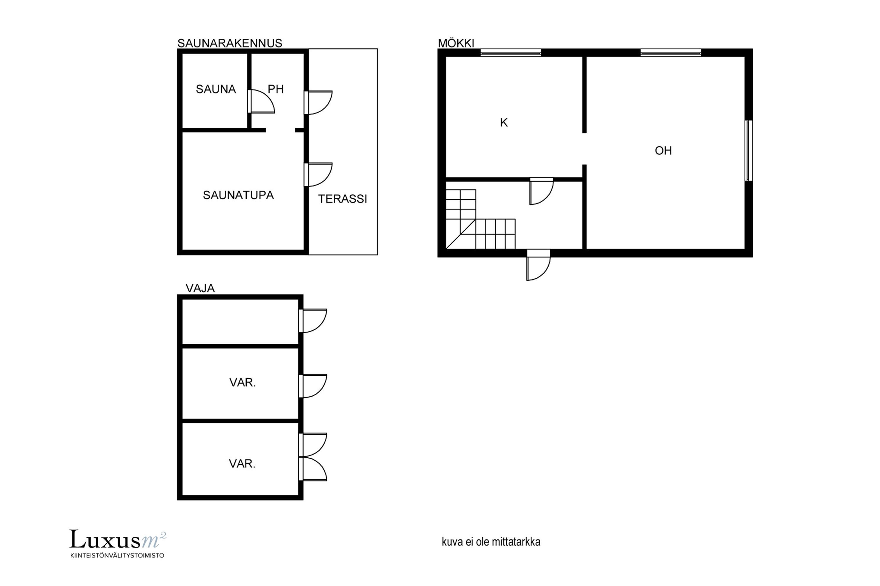
Talossa on yksi huone ja keittiö sekä sisäportaat yläkertaan, jonne voi tehdä lisähuoneita. Alakerta on remontoitu ja suunniteltu sisä wc:n rakentamista. Vajassa on ulko wc.
Talo on ollut lähinnä vapaa-ajan käytössä. Juoksevaa vettä ja viemäröintiä ei ole. Kesällä vesi saadaan taloon sisälle tonttipumpulla kaivosta, jonne vesi tuodaan autolla. Jätevedet ohjataan maahan, kemikaaleja ei ole käytetty.
Saunarakennuksessa on iso terassi.
Taloa ympäröi hyvin hoidettu nurmikko ja puutarha, jossa on mm. omenapuita.
Tervetuloa tutustumaan tarkemmin.
Lisätietoja nja esittelyistä sopiminen:
Eeva Kemmo puh. 050 68922, [email protected]
Pohjakuva

Perustiedot
- Sijainti
- Västanbyntie 10, 10360, Inkoo
- Huoneluku
- 1
- Asuinpinta-ala
- 50 m²
- Muu pinta-ala
- 40 m²
- Kokonaispinta-ala
- 90 m²
- Pinta-alan peruste
- Pinta-ala ei ole tarkistusmitattu ja todellinen pinta-ala voi olla suurempi tai pienempi, kuin ilmoitettu
- Lisätiedot pinta-alasta
- Ei tarkistusmitattu. Pinta-alat saattavat tämän ikäisissä kohteissa (rekisteröity ennen 01.01.1992) poiketa olennaisestikin asuinrakennusten nykyisten mittaustapojen ja standardien (SFS 5139) mukaan laskettavasta asuintilojen pinta-alasta. Pinta-ala voi siis olla edellä mainittua pienempi tai suurempi. Muut tilat käsittävät omakotitalon ullakon ja saunarakennuksen.
- Kohteen tyyppi
- Omakotitalo
- Kerros
- 2
- Rakennusvuosi
- 1951
- Lisätietoja rakennusvuodesta
- Nykyiset omistajat ostaneet kiinteistön huutokaupasta, heillä ei ole kiinteistön rakennuslupaa, rakennuspiirustuksia, lopputarkastus- tai muitakaan asiakirjoja. Myöskään Inkoon rakennusvalvonnasta ei löydy mitään asiakirjoja.
- Käyttöönottovuosi
- 1951
- Kohde myydään vuokrattuna
- Ei
- Vapautuminen
- Sopimuksen mukaan
Hinta ja kustannukset
- Myyntihinta
- 100 000 €
- Sähkölämmityskulut keskimäärin
- 33,75 € / kk
- Vesi ja jätevesi (€/kk)
- 0 €
- Tiemaksut (€/vuosi)
- 55 €
- Kiinteistövero (€/vuosi)
- 300 €
- Sähköliittymä siirtyy
- Kyllä
- Neliöhinta
- 2 000 € / m²
- Lisätietoja maksusta
- Vesi on ilmaista, käyttösähkö ja sähkölämmitys yhteensä keskimäärin 480-600 €/vuosi.
Tilat ja materiaalit
- Keittiön kuvaus
- Keittiö uusittu sisäremontin yhteydessä. Jääkaappi/pakastin, liesi, kalusteuuni, liesituuletin.
- Keittiön lattiat
- Laminaatti
- Keittiön seinät
- Paneeliseinät
- Olohuone
- Yhdistetty olohuone ja makuuhuone.
- Sauna
- Ei
Lisätiedot
- Asunnon kunto
- Tyydyttävä
- Lisätietoa seinien pintamateriaaleista
- Seinät paneelia.
- Lisätietoa lattioiden pintamateriaaleista
- Lattiat laminaattia.
Taloyhtiö ja kiinteistö
- Tontin pinta-ala
- 1 900 m²
- Tontin omistus
- Oma
- Tontin tyyppi
- Tasamaatontti
- Tontin myyntityyppi
- Koko tontti
- Rakennusmateriaali
- Puu
- Lämmitysjärjestelmä
- Sähkö Puu
- Ilmanvaihto
- Painovoimainen ilmanvaihto
- Vesijohto
- Ei juoksevaa vettä
- Lisätietoja vesiputkesta
- Oikeus kantatilaan vesijohdolle ja talousveden ottamiselle
- Lisätietoja viemäristä
- Käytetyt vedet menevät maahan, ei ole kemikaaleja.
- Katon kunto
- hyvä
- Katemateriaali
- Pelti
- Rakennusoikeus
- 190
- Kohteesta on energiatodistus
- Ei lain edellyttämää energiatodistusta
- Tie perille
- Kyllä
- Kaavatilanne
- Yleiskaava
- Kaavoitustiedot
- Yleiskaava 149-2002-12-12
- Rakennusvaihe
- Valmis
- Asbestikartoitus
- Ei
- Muut rakennukset
- Saunarakennus ja vaja
- Lisätietoa muista rakennuksista
- Myöhemmin rakennettu saunarakennus, jossa iso terassi. Isohko vaja, jossa ulkokäymälä.
