Vahverokuja 11
02730, Laaksolahti, Espoo
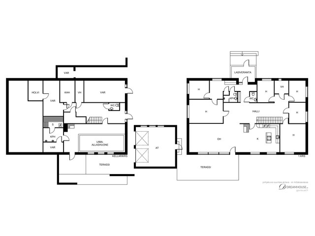
7h+k+2x kph+2x wc, khh, s, uima-allashuone+2x vh+2xvar+holvi+piha
799 000 €
274,5 m²

Tätä asuntoa myy Minttu Mattsson, Myyntijohtaja, LKV, LVV, KiLAT
Dreamhouse Lkv Oy

Sijainti
Asuntoesittely
Upea ja tilava, kuuden makuuhuoneen kiinteistö päättyvän tien varrella Laaksolahdessa!
Upea ja tilava täystiilitalo Vahverokujalla Laaksolahdessa! Oma tontti ja maalämpö! Kuntotarkastettu 12/2025.
Talo on rakennettu 1970-luvun puolivälissä kalliolle mäen päälle. Täystiilinen rakenne tekee rakennuksesta poikkeuksellisen vakaan ja pitkäikäisen. Perustamistapa ja materiaalivalinnat heijastavat aikaa, jolloin talot suunniteltiin kestämään vuosikymmeniä, ei vain seuraavaa remonttia. Rakennuksen on suunnitellut unkarilaistaustainen arkkitehti Imre Weöres, jonka tuotantoon kuuluu omakotitalojen lisäksi useita tunnettuja ja arvostettuja julkisia rakennuksia Helsingissä, kuten Laajasalon ja Lauttasaaren kirjastot sekä Töölöntorin kioski. Weöresin kädenjälki näkyy talon rauhallisessa mittakaavassa, toimivissa näkymälinjoissa ja siinä, miten rakennus asettuu luontevasti ympäristöönsä.
Viimeisen viidentoista vuoden aikana talotekniikkaa, pintoja, ja rakenteita on laajasti uudistettu. Lämmitysmuotona on energiatehokas maalämpö,käyttökustannukset ovat maltilliset. Vuonna 2025 valmistunut erittäin laadukas autotalli täydentää kokonaisuuden ja vastaa modernin arjen tarpeisiin.
Piha-alue on yksi kodin merkittävistä vahvuuksista. Suojaisa takapiha, sisäuima-allas sekä useat terassit talon eri puolilla muodostavat poikkeuksellisen viihtyisän ja monikäyttöisen kokonaisuuden.
Sisällä on satoja neliöitä tilaa elää! Olohuone ja keittiö ovat yhtä avointa tilaa, kaunis takka luo tunnelmaa. Kuusi makuuhuonetta ja runsaat säilytystilat tekevät arjesta toimivaa ja mahdollistavat joustavat tilaratkaisut eri elämäntilanteissa. Tämä on talo, josta ei tarvitse muuttaa pois tilantarpeen kasvaessa. Pohjaratkaisu on erittäin toimiva monenlaisiin tarpeisiin ja vaikka yritystoimintaan.
Sijainti Laaksolahdessa on rauhallinen ja käytännöllinen. Talo sijaitsee päättyvän tien varrella, ja alue on erityisesti lapsiperheiden arvostama. Ala-asteelle on noin 400 metrin kävelymatka, ja lähimpään kauppaan sekä kuntosalille noin 500 metriä.
Jos etsit tilaa ja avaruutta sekä pitkäaikaista kotia, ota yhteyttä niin mennään katsomaan tätä kaunista kotia!
TIEDUSTELUT JA ESITTELYT :
Minttu Mattsson
Myyntijohtaja, LKV, LVV, KiLAT
puh 046 600 6181
[email protected]
www.dreamhouse.fi
Onko oma asuntosi vielä myymättä? Varaa minulta maksuton arviokäynti niin keskustellaan asiasta lisääPerustiedot
- Sijainti
- Vahverokuja 11, 02730, Laaksolahti, Espoo
- Huoneluku
- 7
- Asuinpinta-ala
- 274,5 m²
- Muu pinta-ala
- 53,5 m²
- Kokonaispinta-ala
- 328 m²
- Pinta-alan peruste
- Pinta-ala on tarkistusmitattu Sustera:n Juuso Honkanen toimesta 8.12.2025
- Lisätiedot pinta-alasta
- Talossa on suoritettu huoneistoalamittaus 8.12.2025. Mittauksen mukaan alat ovat seuraavat: Huoneistoala 193m2, Asuintiloiksi luokitellut tilat 274,5m2, sisätilojen kokonaispinta-ala 328m2. Lisäksi on varasto 6,3m², lasiveranta 10m² ja autotalli 38m².
- Kohteen tyyppi
- Omakotitalo
- Kerros
- 2
- Rakennusvuosi
- 1972
- Kohde myydään vuokrattuna
- Ei
- Vapautuminen
- Sopimuksen mukaan
Tilat ja materiaalit
- Keittiön lattiat
- Laatta
- Keittiön varusteet
- Jääkaappi, erillinen pakastin, uuni, liesi, keittiösaareke, astianpesukone, ja liesituuletin
- Liesi
- Keraaminen liesi
- Kylpyhuone
- Kylpyhuoneet alakerrassa ja yläkerrassa. Molemmissa sadesuihku.
- Kylpyhuoneen lattiat
- Laatta
- WC Lukumäärä
- 2
- Makuuhuoneiden lukumäärä
- 6
- Makuuhuoneiden lattiat
- Parketti
- Olohuoneen lattiat
- Parketti
- Kodinhoitohuoneen varusteet
- Pesukoneliitäntä, pesuallas, ja pöytätaso
- Säilytystilojen kuvaus
- Vaatehuoneita ja paljon varastotiloja. Holvi.
- Kohteen säilytystilat
- Vaatehuone
- Sauna
- Kyllä
- Takka
- Takka
Lisätiedot
- Asunnon kunto
- Tyydyttävä
- Parveke
- Ei parveketta
- Terassi
- Kyllä
- Piha
- Pihalla terassia ja nurmikkoa
- Hissi
- Ei
- Muuta kauppaan kuuluvaa
- Kiinteät valaisimet, kiinteät kaapistot
Taloyhtiö ja kiinteistö
- Tontin pinta-ala
- 1 056 m²
- Tontin omistus
- Oma
- Tontin tyyppi
- Rinnetontti
- Tontin myyntityyppi
- Koko tontti
- Rakennusmateriaali
- Puu, tiili ja kivi
- Lämmitysjärjestelmä
- Maalämpö
- Ilmanvaihto
- Koneellinen tulo- ja poistoilmanvaihto Painovoimainen ilmanvaihto
- Vesijohto
- Kunnallisvesi
- Viemäröinti
- Kunnallinen viemäriverkosto
- Kattotyyppi
- Harjakatto
- Katemateriaali
- Pelti
- Rakennusoikeus
- 264
- Lisätietoa rakennusoikeudesta
- Kaikki rakennusoikeus käytetty
- Rakennusoikeus e-luku
- 0.25
- Kohteesta on energiatodistus
- Kyllä
- Energialuokka
- C2018
- Energiatodistuksen voimassaolo
- 17.12.2035
- Kiinteistöön kuuluu
- Asuinrakennus, autotalli
- Liikenneyhteydet
- Bussipysäkki lähellä
- Tie perille
- Kyllä
- Palvelut
- Laaksolahden palvelut
- Koulut
- Jupperin Koulu vieressä
- Kaavatilanne
- Asemakaava
- Kaavoitustiedot
- https://kartat.espoo.fi/ims
- Kuntotarkastus tehty
- 08.12.2025
- Rakennusvaihe
- Valmis
- Asbestikartoitus
- Ei
- Muut rakennukset
- Autotalli
- Lisätietoa muista rakennuksista
- 38m2 autotalli rakennettu 2025.
Tehdyt remontit
Katon pinnoitus ja maalaus 2015, salaojat uusittu 2010, Koko perusmuurin vedeneristys uusittu yhdessä salaoja- ja sadevesijärjestelmän kanssa 2010, sadevesijärjestelmä osittain uusittu 2010, hulevesien pumppukaivo asennettu 2010, kkunoiden huoltomaalaus 2010, Räystäslautojen huoltomaalaus 2015, Tapettien poisto, seinien tasoitus ja maalaus / 2010, Ovi poistettu
tuulikaapilta 2010, Uima-allashuoneen ikkunoiden vaihto 2020, Koneellisen
ilmanvaihdon asennus, lattialämmityksen asennus, lattian laatoitus 2010, ulko-ovia vaihdettu 2012, Ilmanvaihtoputkien eristys 2025, maalämpö 2015, Liittyminen kunnallistekniikkaan 12/2014, kodinhoitohuone remontoitu 2010. Sähköpääkeskus uusittu 2025.
