Valjaskatu 2-4 B
15830, Metsäkangas, Lahti
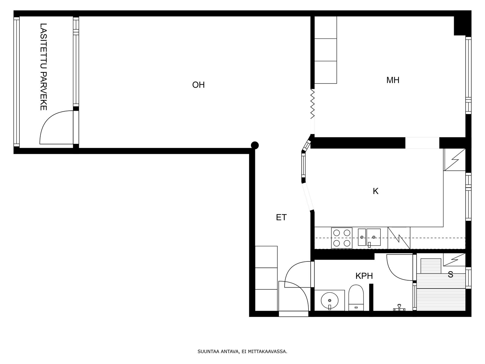
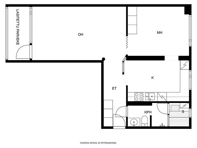
2h,k,kph/wc,s,et,lasip.
32 000 € (524,59 € / m²)
61 m²

Tätä asuntoa myy Antti Lavonen, Kiinteistönvälittäjä, LKV, kaupanvahvistaja
Huoneistokeskus Oy | Lahti

Sijainti
Asuntoesittely
Hissitalon 6/7 -kerroksen saunallinen ja lasiparvekkeellinen, tilava läpitalon kaksio avarin maisemin. Huoneisto myydään vuokrattuna. Varaa oma esittelyaikasi kohteen välittäjältä.
Pohjakuva

Perustiedot
- Sijainti
- Valjaskatu 2-4 B, 15830, Metsäkangas, Lahti
- Omistusmuoto
- Omistusasunto
- Huoneluku
- 2
- Asuinpinta-ala
- 61 m²
- Muu pinta-ala
- 0 m²
- Kokonaispinta-ala
- 61 m²
- Pinta-alan peruste
- Isännöitsijäntodistuksen mukainen, Yhtiöjärjestyksen mukainen
- Kohteen tyyppi
- Kerrostalo
- Kerros
- 6 / 7
- Rakennusvuosi
- 1975
- Käyttöönottovuosi
- 1975
- Kohde myydään vuokrattuna
- Ei
- Vapautuminen
- Heti
Hinta ja kustannukset
- Velaton hinta
- 32 000 €
- Myyntihinta
- 32 000 €
- Yhtiövastike
- Hoitovastike 239,75 € / kk, Muu vastike 137 € / kk, Yhtiövastike yhteensä 376,75 € / kk
- Autopaikkamaksu
- 15 € / kk
- Vesimaksu
- 26 € / hlö
- Sähköliittymä siirtyy
- Kyllä
- Neliöhinta
- 524,59 € / m²
- Lisätietoja maksusta
- Lisätietoja vastikkeista: Sähkötolpallinen autopaikka + sisälämmittimen käyttö, yht. 15 eur/kk
Tilat ja materiaalit
- Keittiön lattiat
- Laminaatti
- Keittiön seinät
- Tapetti ja maali
- Keittiön varusteet
- Astianpesukone, jääkaappipakastin, ja liesituuletin
- Liesi
- Keraaminen liesi
- Kylpyhuoneen seinät
- Kaakeli
- Kylpyhuoneen lattiat
- Laatta
- Kylpyhuoneen varusteet
- Pesukoneliitäntä, suihkuseinä, wc-istuin, peili, ja suihku
- Makuuhuoneiden lukumäärä
- 1
- Makuuhuoneiden seinät
- Tapetti
- Makuuhuoneiden lattiat
- Laminaatti
- Olohuoneen seinät
- Tapetti
- Olohuoneen lattiat
- Parketti
- Sauna
- Kyllä
- Kiuas
- Sähkökiuas
Lisätiedot
- Asunnon kunto
- Hyvä
- Parveke
- Lasitettu parveke
- Hissi
- Kyllä
Taloyhtiö ja kiinteistö
- Taloyhtiön nimi
- Asunto Oy Ohjas
- Isännöitsijätoimisto
- Kontu Oy
- Isännöitsijän nimi
- Jani Kirmanen
- Isännöitsijän puhelin
- 010 411 8144
- Tontin pinta-ala
- 7 863,900000000001 m²
- Tontin omistus
- Oma
- Rakennusmateriaali
- Betoni
- Lämmitysjärjestelmä
- Kaukolämpö
- Kattotyyppi
- tasakatto
- Katemateriaali
- huopa
- Lisätietoja kiinteistönhoidosta
- Huoltoyhtiö
- Kiinteistönhoidon lisätiedot
- Kukaon Oy
- Taloyhtiössä on
- Väestönsuoja, pesutupa, jäähdytetty kellari, urheiluvälinevarasto, askarteluhuone, ja sauna, huoneistokohtaiset varastot
- Kohteesta on energiatodistus
- Kyllä
- Energialuokka
- E2018
- Taloyhtiöllä sauna
- Kyllä
- Kaavatilanne
- Asemakaava
- Lisätiedot kaavoituksesta
- Lahden kaupunki, p. 03 814 2355
- Asbestikartoitus
- Ei
- Lisätietoa asbestikartoituksesta
- Rakennus on valmistunut ennen vuotta 1995 eikä asbestikartoitusta ole tehty
- Taloyhtiön kiinnitykset
- 434 000 €
Tehdyt remontit
2025 lV-kanavien nuohous ja perussäätö
2021 Huoneiston ikkunoiden saranoiden tarkastus (ikkunoissa valmistusvika)
2021 Porrashuoneiden ja yleisten tilojen valaistuksen uusinta
2020 Korkean talon alakäytävän kunnostus (maalit poistettu)
2020 Puisteluparvekkeiden pintojen tarkastukset ja osittaiset korjaukset
2019 Elementtien pinnoitteiden kohdennettuja korjauksia
2019 Matalan talon parkkialueen lisäasfaltointi
2019 lkkunoiden tarkastus ja huolto
2017 lV-kanavien puhdistus
2017 Valvontakamerat
2017 Maalauksia, piha-asfaltointia, kivituhkat, talonmiehen asunnon korjauksia
2016 Vesikaton korjauksia
2015 Asfaltointikorjauksia
2013 Lisätty autopaikkoja, uusittu kaikkien autopaikkojen sähkösyötöt ja ohjauskellot
2013 Pelastusteiden rakentaminen, sadevesijärjestelmä, pääovien katokset
2012 Yleisten tilojen uIko-ovet: iLoq-järjestelmä
2011 Palohälytinjärjestelmä
2010 Parvekkeiden laastikorjaus, parvekelasitukset
2006 lV-kanavien puhdistus
2005 lkkunat ja parvekeovet uusittu
2001 Parvekkeiden uudet vesieristykset ja kaidekorjaukset
1996 Lämmönvaihdin uusittu
1993 Julkisivujen, parvekkeiden ja elementtisaumojen korjauksia
Tulevat remontit
Julkisivusaneeraus
Kattosaneeraus
Märkätilojen uusiminen
Käyttövesiputkiston saneeraus
Sähkönousujen ja huoneistosähkökeskusten uusinta, datakaapelointi, huoneistojen palovaroittimien uusinta