Valssimyllynkatu 23
00920, Myllypuro, Helsinki
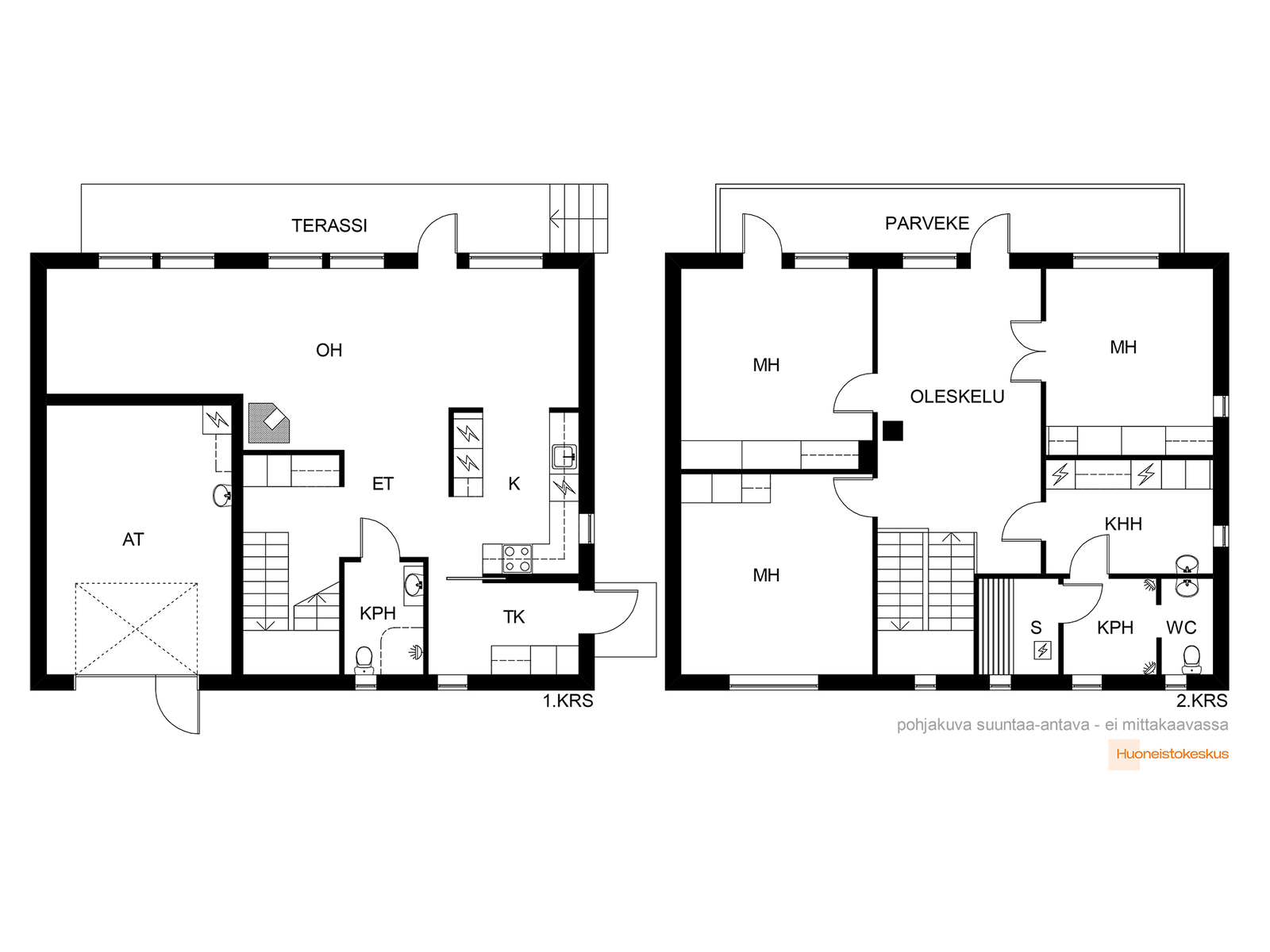
3mh,halli, avokeittiö,oh,khh, 2x kph,s,2x parveke,autotalli,terassit
680 000 €
148 m²

Tätä asuntoa myy Annu Kristiina Dobre, Kiinteistönvälittäjä, KiAT, LKV
Huoneistokeskus Oy | Helsinki, Runeberginkatu

Sijainti
Asuntoesittely
Myllykylässä , Puu-Myllypuron kehutulla uudella alueella kokee uudenlaisen ja sosiaalisen ilmapiirin. Monille unelmien koti on löytynyt värikkäiden talojen ,luonnon ja palveluiden keskeltä
Tässä talossa on arvokas puurakenne yhdistetty huippumoderneihin mukavuuksiin ja tyylikkääseen muotokieleen. Sijainti kallion päällä hurmaa arkkitehtuurillaan ja huolella suunnitelluilla ja käytännöllisillä tiloillaan. Kaksikerroksinen koti tarjoaa avaria, valoisia oleskelutiloja, toimivan keittiön , upeasta saunaosastosta tai parvekkeista puhumattakaan. Asukkaat ovat valinneet laadukkaat materiaalit sekä viimeisimmän ajan mukavuudet ja talotekniset ratkaisut kuten maalämpö, lattialämmitys ja integroitu hälytysjärjestelmä.
Lämmin autotalli on hyvin varusteltu ja siellä on tilaa myös säilytykseen.
Rinnepihan helppohoitoiset istutukset sekä kolmessa eri tasossa olevat terassit luovat pihaan
ainutlaatuisia ja mukavia oleskelualueita. Piha rajoittuu kaupungin metsäkaistaleeseen.
Myllypuro on Itä-Helsingin suosikki eikä syyttä sillä täällä on kaikki mitä tarvitaan asukkaiden vaivattomaan arkielämään.
Alueen koulut tarjoavat polun alakoulusta kielilukioon, stadin ammattiopistoon tai korkeakouluun saakka. Päiväkodit, terveyskeskus, lähikaupat, ostoskeskus, pyöräily-kävelyreitit, puistot ja viheralueet, liikunta- ja vapaa-ajan palvelut. Joukkoliikenne on tehokas; bussit, metro sekä pikaratikka.
Tervetuloa näyttöön !
Pohjakuva

Perustiedot
- Sijainti
- Valssimyllynkatu 23, 00920, Myllypuro, Helsinki
- Huoneluku
- 4
- Asuinpinta-ala
- 148 m²
- Muu pinta-ala
- 24 m²
- Kokonaispinta-ala
- 172 m²
- Lisätiedot pinta-alasta
- Alakerroksen kokonaisala 78,5 m ² ja yläkerrassa 96,7 m², autotalli 24 m². Kaikki 199,2 m². Kerrosala 191,8 m². Kokonaisala tarkoittaa rakennuksen kaikkien tilojen yhteenlaskettua pinta-alaa, mukaan lukien seinien paksuudet, käytävät ja esimerkiksi varastotilat. - Huoneistoala taas viittaa asunnon käytettävissä olevaan pinta-alaan eli asuintiloihin ilman seinien paksuuksia, yleisiä käytäviä tai muita yhteisiä tiloja.
- Kohteen tyyppi
- Omakotitalo
- Kerros
- 2
- Rakennusvuosi
- 2016
- Käyttöönottovuosi
- 2016
- Kohde myydään vuokrattuna
- Kyllä
- Vapautuminen
- 2kk kaupantosta tai sopimuksen mukaan
Hinta ja kustannukset
- Myyntihinta
- 680 000 €
- Lämmityskustannukset (Muu kuin sähkö €/kk)
- 110 €
- Vesi ja jätevesi (€/kk)
- 95 €
- Puhtaanapito (€/kk)
- 40 €
- Sähköliittymä siirtyy
- Kyllä
- Neliöhinta
- 4 594,59 € / m²
- Lisätietoja maksusta
- Tietoja kiinteistöverosta: 504,36. Lisätietoja vastikkeista: Sähkön kulutus 13510kwh/vuosi Tontin vuokra vuonna 2025 on 4859,40 / vuosi ja 404,92/kk Se maksetaan 4krt vuodessa, Vesi kulutuksen mukaan, vesimittari. Valokuitu talossa ,modeemin kautta yhteys, oma sopimus.
Tilat ja materiaalit
- Keittiön lattiat
- Laminaatti
- Keittiön seinät
- Maali
- Keittiön varusteet
- Astianpesukone, jääkaappi, erillisuuni, erillinen pakastin, ja liesitaso, kiinteät valaisimet, liesituuletin / hormi
- Liesi
- erillisuuni liesitaso
- Kylpyhuone
- Kylpyhuoneet 2 kpl Alakerran kph ; allaskaappi, wc-istuin, pidee, suihku,lattiakaivo
- Kylpyhuoneen seinät
- Kaakeli
- Kylpyhuoneen lattiat
- Laatta
- Kylpyhuoneen varusteet
- WC-istuin, peilikaappi, suihku, lattialämmitys, ja kiinteät valaisimet
- Makuuhuoneiden lukumäärä
- 3
- Makuuhuoneiden seinät
- Maali
- Makuuhuoneiden lattiat
- Laminaatti
- Olohuoneen lattiat
- Laminaatti
- Kodinhoitohuoneen varusteet
- Pesukoneliitäntä, lattiakaivo, pesuallas, pöytätaso, ja lattialämmitys
- Kodinhoitohuoneen lattiat
- Laatta
- Sauna
- Kyllä
- Kiuas
- Sähkökiuas
- Takka
- Takka
Lisätiedot
- Asunnon kunto
- Hyvä
- Lisätietoja kunnosta
- Talopaketti,kaikki piirustukset ,luvat dokumentoitu.
- Terassi
- Kyllä
- Muuta kauppaan kuuluvaa
- Ilmalämpöpumppu viilennykseen. Lisätietoja sisältyvistä varusteista: hälytys- /valvontajärjestelmä, istutukset, jätesäiliö, kaapistot, kiinteät valaisimet, naulakko, sälekaihtimet/rullaverhot.
- Kauppaan ei kuulu
- Alakerran kylpyhuoneen kaapistot. Otetaan mukaan jotain kasveja tai sen osia /oksia. Keinu sovittaessa.
Taloyhtiö ja kiinteistö
- Tontin pinta-ala
- 288 m²
- Tontin omistus
- Vuokra
- Tontin tyyppi
- Rinnetontti
- Tontin myyntityyppi
- Koko tontti
- Maanvuokraaja
- Helsingin kaupunki
- Tontin tiedot
- Tammikuun 1. päivästä 2017 alkaen vuosivuokra sidotaan viralliseen elinkustannusindeksiin, missä lokakuu 1951 on 100 siten, että perusvuosivuokra on 210 euroa vuodessa sekä sitä vastaava perusindeksi 100. Kunkin kalenterivuoden vuosivuokra tarkistetaan kertomalla perusvuosivuokra luvulla, joka saadaan jakamalla edellisen kalenterivuoden keskimääräinen elinkustannusindeksi perusindeksillä 100.Tontin maanvuokra perustuu rakennus- oikeuteen 175 k-m². Vuokra maksetaan vuosittain neljässä yhtä suuressa erässä 1.3,15.4.,15.7,ja 15.10. mennessä.
- Tontin vuosivuokra
- 4 859,40 €
- Vuokra-aika päättyy
- 31.12.2080
- Rakennusmateriaali
- Puu
- Lämmitysjärjestelmä
- Maalämpö vesikiertoinen lattialämmitys
- Lisätietoja vesiputkesta
- Käyttöveden lämmitysjärjestelmä : maalämpöpumppu, ei kiertojohtoa, vesikiertoinen lattialämmitys Maalämpöpumpun kuvaus. NIBE F 1245
- Kattotyyppi
- Harjakatto
- Katemateriaali
- Peltikate
- Lisätietoa rakennusoikeudesta
- Rakennusoikeus kerrosalaneliömetreinä 175 Parvekkeita,erkkereitä, lasikuisteja, viherhuoneista sekä varasto-ja aputiloja saa rakentaa rakennusoikeuden lisäksi enintään 8 % rakennuksen kerrosalasta (14 m²)
- Kohteesta on energiatodistus
- Kyllä
- Energialuokka
- B2018
- Lisätietoja liikenneyhteyksistä
- Pikaratikkapysäkki noin 300 metriä , bussi pysäkki noin 100 metriä, metro asema Myllypuro noin 1,2 km tai metroasema Itis noin 2 km (bussin liittymäkuljetus)
- Tie perille
- Kyllä
- Palvelut
- Useita ruokakauppoja noin 500 metriä, myös postin palvelut. Itiksen kauppakeskus noin 2 km, Myllypuron ostoskeskus noin 1,5 km
- Koulut
- Ala-ja yläkoulut, kielilukio, Stadin ammattiopisto, Myllypuron kampus: Metropolia ammattikorkeakoulu
- Kaavatilanne
- Asemakaava
- Kaavoitustiedot
- Vieressä on tyhjä rakennuspaikka. Erillispientalojen korttelialue AO. Helsingin tonttiosaston ohjeistus huomioitava mikäli viereiselle tontille rakennetaan.
- Muut rakennukset
- Autotalli
- Lisätietoa muista rakennuksista
- Autotalli ei ole erillinen rakennus, käynti kadulta. Noin 24 m², lattiala noin 20 m². Sähköt, lämpö, vesipiste, viemäri, tekninen tila, varastotilaa